Von Spru­deln und Wel­len

Ersatzneubau und Instandsetzung Therme Bad Nauheim (D)

Architekturerlebnis gepaart mit Wellness bietet die Sprudelhoftherme im hessischen Bad Nauheim. Nach fünf Jahren Planungs- und Bauzeit öffnete dort im Dezember 2023 der Ersatzneubau der 1971 erbauten Therme seine Türen. Die Besonderheit: Der Neubau schliesst an den historischen Sprudelhof an, das grösste geschlossene Jugendstil-Ensemble Europas. Als letzter Baustein wurde dort nun auch das restaurierte historische Badehaus 2 wiedereröffnet.

Publikationsdatum
02-03-2026

1846 war ein besonderes Jahr für Nauheim (damals noch ohne den Zusatz «Bad»): Der «grosse Sprudel» wurde entdeckt, eine 30 ºC warme Thermalquelle mit natürlich enthaltener Kohlensäure. Der Fund war der Beginn einer fulminanten Karriere: von der hessischen Kleinstadt zum international renommierten Kurort Bad Nauheim, die architektonisch im Bau des Sprudelhofs kulminierte. 

Das von dem Zwickauer Architekten Wilhelm Jost 1901/02 und 1912 im Jugendstil erbaute und heute denkmalgeschützte Ensemble besteht aus einer Trinkkuranlage, zwei Verwaltungsgebäuden und sechs unterschiedlich gestalteten Badehäusern mit 265 Badezellen. Im Zentrum der Anlage liegt der Sprudelhof mit der Brunnenfassung der unterdessen drei Thermalquellen. Bei der künstlerischen Ausgestaltung der Bade- und Kuranlagen wirkten damals auch Künstler der Darmstädter Künstlerkolonie Mathildenhöhe mit.

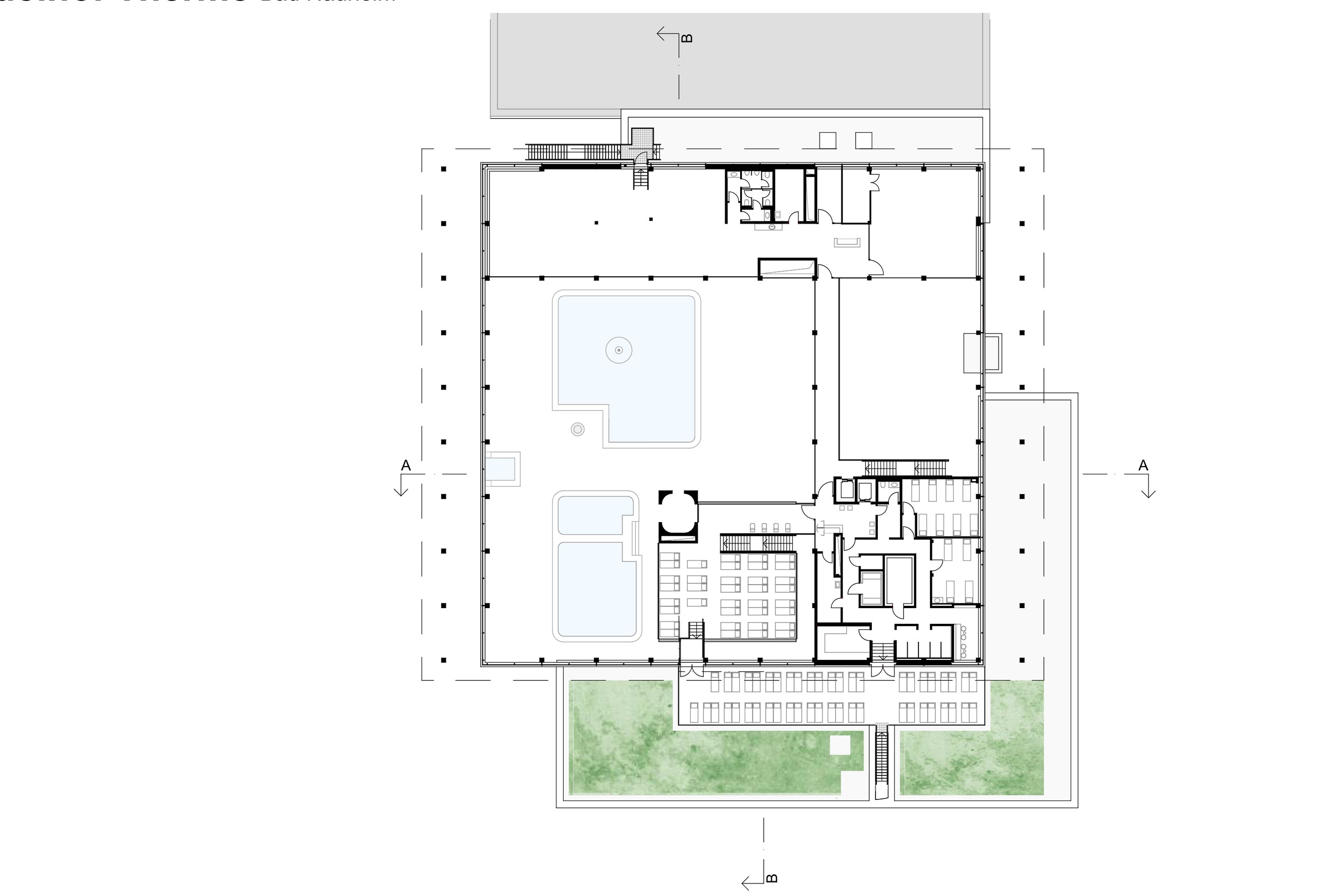
Ein Neubau für mehr Grosszügigkeit

1972 eröffnete man in direkter Nachbarschaft, nördlich des Sprudelhofs, eine neue Therme. Die eingeschossige, quadratische «Therme am Park» galt als «Hessens modernstes und grösstes Thermalsolehallenschwimmbad». Doch nach über 40 Jahren im Betrieb wurde sie 2015 geschlossen – Technik und Angebot waren in die Jahre gekommen,

Die Gemeinde schrieb 2018 einen Wettbewerb aus, der nicht nur ein neues, zeitgemässes Raumprogramm für die Therme umfasste, sondern auch die bis dato unbefriedigende städtebauliche Situation klären sollte. Der Entwurf des Friedberger Architekturbüros blfp planungs gmbh konnte sich durchsetzen, für die Umsetzung kam die Kannewischer Holding, ein Familienunternehmen aus dem schweizerischen Zug, als beratender Planer und späterer Betreiber an Bord.

Der Standort wurde im Zuge eines städtebaulichen Rahmenplans, der neben der Therme auch Flächen für ein Hotel und die Tiefgarage vorgab, parallel zur Hochbauplanung entwickelt. Das Grundstück im Westen des Sprudelhof-Ensembles nimmt Bezug zum historischen Kontext und den städtebaulichen Achsen der Jost‘schen Planung aus dem 19. Jahrhundert. Vormals waren dort der Saunabereich, Grünflächen und die Aussenbecken der alten Therme angesiedelt. 

So wurde die Blickachse Ludwigstrasse/Sprudelhof geöffnet, die bis dato durch den Bestandbau und den Parkplatz mit seinem Baumbestand verstellt war. Der Platz vor der Therme ist dadurch grosszügiger und gefasst – mit einem baulichen Abschluss in Richtung der Parkanlage und einem natürlichen Abschluss durch den nahen Flusslauf.

Zwischen Innen und Aussen

Herzstück der neuen zweigeschossigen Therme ist das Foyer, die Bereiche für das Restaurant, die Kasse und den Shop gehen fliessend ineinander über. Ein grosses Lichtobjekt zieht die Blicke auf sich. Wie Sauerstoffblasen perlt es über den Köpfen der Gäste, reflektiert und spendet Licht.

Über schlichte Treppen und Übergänge werden die Nicht-Bade-Zonen im Obergeschoss der Therme erschlossen. Nutzt man die Trainingsgeräte des Fitnessbereichs, blickt man durch die wandhohe Verglasung des Studios über eine Landschaft aus verschiedenen Wasserbecken, Sprudeln und Liegebereichen. Während des Trainings kann man den Badenden zusehen, erlebt die Reflexionen des Wassers und nimmt die Lichtstimmungen aus dem Badebereich wahr. Nach aussen reicht der Blick in den nahen Kurpark bis zum Kurhaus.

Auf dem Weg zum Thermeninnenraum passieren die Gäste einen leicht geschwungenen Gang entlang der Ostfassade zur Ludwigstrasse hin, mit Aussicht auf die historische Bausubstanz der JugendstilbadehäuserBegleitet von Tageslicht und Ausblicken auf den Platz vor der Therme führt der Weg durch die Umkleiden zu den Duschen. Der Fokus liegt nun im geschlossenen Innenraum. Erst mit dem Eintritt in den Thermeninnenraum kommt das Tageslicht wieder ins Spiel.

Mit seinen verborgenen und offenen Räumen, Aus- und Durchblicken in den Aussenraum erzeugt die Badehalle eine ausgewogene Atmosphäre zwischen Innen und Aussen. Die sechs verschiedenen Wasserbecken kommen auf insgesamt 425 m² Wasserfläche im Innenbereich. In der Aussenanlage gibt es neben verschiedenen Liegebereichen das Warmaussenbecken mit ca. 170 m² sowie ein Sportaussenbecken. Es braucht einige Zeit, um alle Räume, Becken und Wasserspielereien zu entdecken – in Summe eine Wasserfläche von über 800 m².

Subtile Stimulierung der Sinne

Ein interessantes Detail ist der obere Abschluss der Beckenumrandung. Er ist aus hellem, leicht angerautem Südtiroler Silberquarzit gefertigt, einem sehr harten, kompakten und auch rutschfesten Stein. Dieser Stein war nötig, um den Alterungsprozess möglichst gering zu halten. Der neigt sich leicht aber spürbar nach innen zum Wasser hin

Spätestens wenn der Fuss diese ungewohnte Neigung beim Eintritt ins Becken wahrnimmt, ist man mit vollem Bewusstsein bei der Sache: Jetzt heisst es abtauchen! Das Detail ist ungewöhnlich und überraschend, aber gelungen. Der Einstiegsbereich in die Becken und deren Einfassung erscheinen so als konstruktive wie gestalterische Einheit.

Ein ähnlicher Ansatz zeigt sich im Bereich des Strömungskanals im Aussenbecken. Dieser lässt sich erst als solcher erkennen, wenn die oberen Abschlüsse der Trennmauern unter der Wasseroberfläche in Erscheinung treten. Auch hier ist Naturstein verbaut, diesmal ein paar Zentimeter unter Wasser.

Die Akustik in der Therme ist angenehm. Quadratische Holzkörper in verschiedenen Stärken hängen frei unter der Decke. Die Form ist eine Reminiszenz an die historischen, auf einem Säulengang gelagerten Quadratdecken des Badehauses 2, was eine starke Verbindung zwischen Alt und Neu schafft. Die Kreuzungspunkte der Zwischenräume sind indirekt beleuchtet, setzen hier und da Lichtakzente. Wird die Geräuschkulisse in der Badehalle doch zu laut, findet man in den separaten Ruheräumen mit ihren begrünten Wänden Ruhe und frische Luft.

Über eine Treppe im Thermeninnenraum gelangt man zu weiteren Ruhebereichen mit Liegen sowie zu den Räumen für Wellnessprogramme und Massagen. Die Dachterrasse wird bei schönem Wetter auch für Yogakurse genutzt.

Reise in die Vergangenheit

Wem der Sinn nach weiterer Entspannung steht, kann einen Abstecher in die Vergangenheit machen. Die neue Therme ist über einen verglasten Gang an das historische Badehaus 2 des Sprudelhofs angebunden. Hier sind fünf weitere Saunen inklusive Ruhebereichen untergebracht. 

Geschützt zwischen Badehaus 2, dem Thermenneubau und dem historischen Windmühlenturm ist ein neuer Ort entstanden, der als Aussenbereich der Sauna genutzt wird. Für die Sanierungs- und Umbauplanung des Badehauses zeichnet das Architekturbüro Reith Wehner Storch Architekten aus Fulda verantwortlich.

Beim Badehaus 2 ging es vor allem darum, die künstlerisch hochwertige Innenarchitektur anhand der Vorgaben der Denkmalpflege zu restaurieren und das Gebäude statisch, technisch und energetisch so zu ertüchtigen, dass anstelle des bisher praktizierten Sommerbetriebs eine ganzjährige Nutzung möglich wurde. 

➔ Eine sehenswerte Übersicht der Anlage mit Details zu den einzelnen Badehäusern zeigt der Jugendstilverein Bad Nauheim auf seiner Webseite.

Im Zentrum des Badehauses liegt der grosse Ruhesaal. Die im oberen Teil der Wände in den Putz eingelassenen und nun restaurierten Gemälde des Bremer Malers Friedrich Wilhelm Kleukens (1878–1956) gaben dem Raum den Namen KLeukens-Saal (neu: «Kleukens-Lounge»). Die Ausgestaltung des historischen Raums mit unbunten und pastelligen Farben ist eher kühl. Dominiert wird der hohe Saal von den schmalen hohen Fenstern zum Innenhof hin. 

Die Fensterfunktion ist intakt, die Fenster lassen sich zur Belüftung des Raums von Hand öffnen. Ornamente und Vogelmotive schmücken die Verglasungen. Die Stege der Verbleiung und die unbunten Farben der Lotmalerei erzeugen eine gewisse Strenge. Erst bei genauerem Hinsehen erkennt man, dass die Motive in den Fenstern variieren und sich aus vielen verschiedenen Vogelpaaren zusammensetzen. 

Dem gegenüber erscheinen die im oberen Teil des Saals in den Putz eingelassenen restaurierten Gemälde Kleukens verträumt und fantasievoll. Die Gemälde zeigen Elfen, die sogenannten «Schmetterlingskinder», in verschiedenen Variationen. Sie sind in pastelligen Farben oder monochrom gehalten. Während der Bauzeit und bis zu ihrer Restaurierung hingen die Gemälde im Foyer des Jugendstiltheaters in Bad Nauheim. Nun sind  sie wieder an ihren angestammten Platz im Badehaus 2 zurückgekehrt.

Im Gegensatz zur Halle und dem Innenhof sind die ehemaligen Badezellen kleinteilig. Sie werden als separate private Ruheräume, als Räume für Anwendungen und sogar als einzelne Toiletten genutzt. Im Badehaus 2 standen bis zur Restaurierung die historischen Solewassertanks im rund 400 m2 grossen sogenannten «Behälterraum». Diese wurden bis auf vier Stück demontiert und der dadurch gewonnene Raum für neue Einbauten wie Saunen, Dampfbäder und Duschen genutzt.

Die vier erhaltenen Solewasserbehälter einschliesslich derer Anschlussleitungen sind als Industriedenkmal hinter einer Glastrennwand für die Gäste des Saunabereichs sichtbar und geben Zeugnis von der Technikkultur des beginnenden 20. Jahrhunderts.

130 Jahre Badekultur

Nach dem Badehaus 2 werden sukzessive auch die anderen Bauten des Sprudelhofs erneuert. Mit dem Ensemble aus Jugendstilgebäuden und neuer Therme besitzt Bad Nauheim einen Ort, an dem sich rund 130 Jahre Badekultur erleben lassen. Publikum, Ansprüche, Architektur und Angebote haben sich verändert und weiterentwickelt, aber das Thermalwasser sprudelt wie eh und je. 

Neubau Sprudelhof Therme Bad Nauheim (D)

 

Architektur
blfp planungs gmbh, Friedberg (D)

 

Gebäudetechnik
Kannewischer Ingenieurgesellschaft mbH, Baden-Baden (D)

 

Elektroplanung
Ingenieurbüro Freudl & Ruth, Bruchkübel (D)

 

Tragwerksplanung 
Engelbach + Partner, Frankfurt a. M. (D)

 

Bauphysik
Kurz & Fischer GmbH, Winnenden (D)

 

Freiflächenplanung
KuBuS Freiraumplanung GmbH & Co. KG, Wetzlar (D)

 

Brandschutz
BFT Cognos GmbH, Aachen (D)

 

Vermessung
Vermessungsbüro Vollmer, Friedberg (D)

 

Küchenplanung
Profil Gastronomieplanung, Kriftel (D)

 

Verbauplanung
Dr. Hug Geoconsult GmbH, Oberursel (D)

 

Lichtplanung
a.g Licht Gesellschaft, Köln (D)

 

Fassadenplanung
Christian Bonik GmbH, Bensheim (D)


Instandsetzung Badehaus 2

 

Bauherrschaft
Landesbetrieb Bau und Immobilien Hessen (LBIH)  

Planung Instandsetzung gesamte Anlage
Reith Wehner Storch Architekten, Fulda (D)

 

Projektleitung Instandsetzung Badehaus 2
Heidelmann & Klingebiel, Dresden (D)
PROconsult, Wiesbaden (D)
WPV Baubetreuung GmbH, Frankfurt a. M. (D)

Verwandte Beiträge