Hy­bri­de im Sil­ber­kleid

Auf dem Areal der «Suurstoffi», eines ehemaligen Gaswerks der Gemeinde Risch, wird exemplarisch auf Innovation gesetzt. Etappenweise entstehen hier seit dem Jahr 2010 Wohnungen, Büros, Geschäfte und ein Komplex für die Hochschule Luzern. Müller Sigrist Architekten haben fünf Punkthäuser in Holz-Hybrid-Bauweise erstellt. 

Publikationsdatum
09-12-2016
Revision
14-06-2017
Hella Schindel
Innenarchitektin und Fachjournalistin, Korrespondentin Architektur/Innenarchitektur

1500 Bewohner, 2500 Arbeitsplätze sowie 2000 Studierende sollen auf dem Suurstoffi Platz finden (vgl. «Fliessende Räume im Zürcher Hinterland»). Neben alten, sanierten Gewerbe- und Industriegebäuden des Gaswerks machen neue Baukörper seit 2010 das gut an den Nahverkehr angebundene Quartier attraktiver und dichter. Andererseits wird es noch eine Weile dauern, bis das Quartier, das abseits des Stadtzentrums von Rotkreuz auf der grünen Wiese liegt, über einen urbanen Anschluss verfügt.

Zwischen 2013 und 2015 wurden den Büros Masswerk und Müller Sigrist Architekten, Letztere bekannt durch den markanten Bau an der Kalkbreite in Zürich, nach einem selektiven Studienverfahren die Aufträge für neun Wohnhäuser zugesprochen. Die Planung für die Häuser 5–9 verantworteten Müller Sigrist Architekten. Die Vorgabe des Investors, die Bauten in Holz zu erstellen, arbeiteten alle Beteiligten im Lauf der Planung gemeinsam aus. 

Holz ohne Ökoromantik

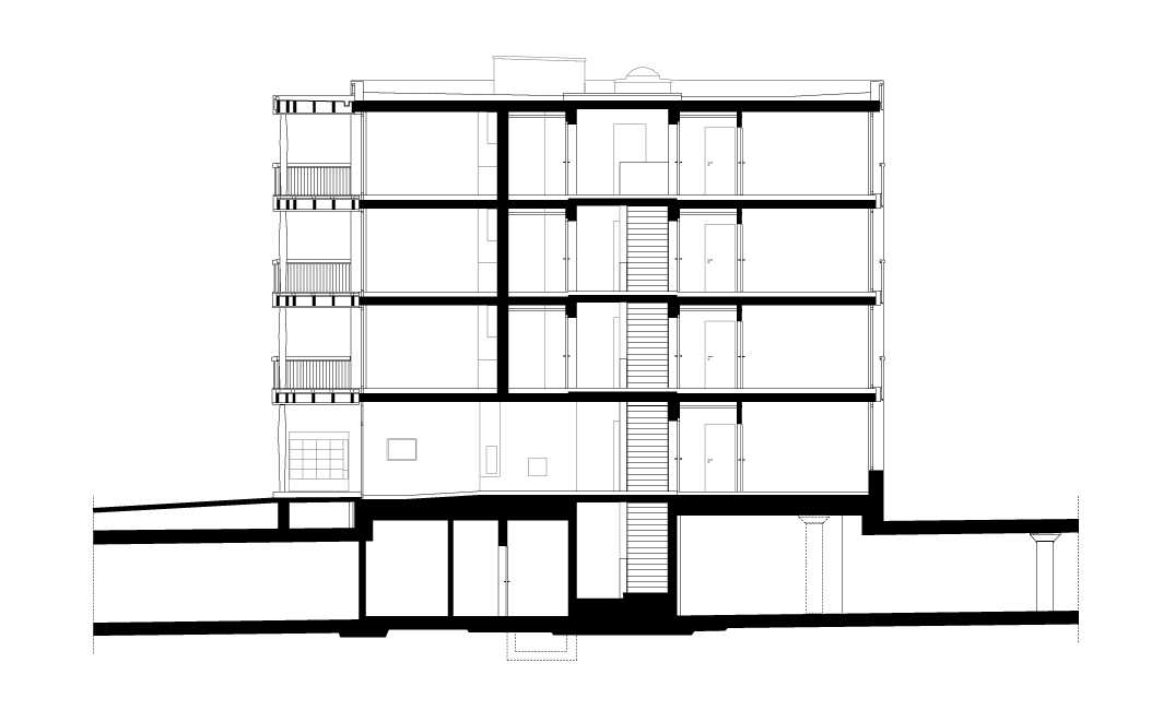
Die Treppenhäuser der viergeschossigen Punkthäuser wurden in Ortbeton gegossen. Sie strecken sich aus der durchgehenden Tiefgarage empor und gewährleisten konstruktiv Windsteifigkeit und Erdbebensicherheit. In Tafelbauweise eingebrachte Brettschichtholzdecken sind per Stahlträger mit ihnen verbunden. Damit die Holzdecken unterseitig sichtbar bleiben können, erfolgt der Schallschutz durch Schüttungen und einen Unterlagsboden. Alle tragenden Wände sind grossformatige Brettsperrholzelemente mit Gipsauflagen, sodass auch sie den Brandschutzanforderungen genügen. Inzwischen haben sich die Vorschriften gelockert, sodass zukünftig auf den Gips verzichtet werden kann. 

Die mehrseitig orientierten 1.5- bis 4.5-Zimmer-Wohnungen sind aus einem Satz von Grundrissbausteinen entwickelt. Um einen zentralen, fliessenden Wohn- und Küchenbereich gruppieren sich unterschiedlich viele abgeschlossene Zimmer, die jeder Nutzung offenstehen. Die gleichwertigen Wohnräume ermöglichen es den Bewohnern, auf familieninterne Veränderungen oder neue Wohnformen zu reagieren, ohne in die Grundrisse eingreifen zu müssen – auch das ein Nachhaltigkeitsaspekt. 

Die hinterlüftete Holzständerfassade der fünf Baukörper ist mit einer Schicht aus senkrechten Holzrippen überzogen. Die Holzstützen zwischen den Balkondecken wirken mit ihren Konturen schon aus der Ferne identitätsstiftend. Das Material bildet eine lebendig wirkende Struktur. Alle Teile sind mit einem silbrig schimmernden Anstrich versehen, der sie zu einem Ganzen verbindet. Durch die gelben Deckenuntersichten in den Balkonen wird die stringente Ton-in-Ton-Optik charmant gebrochen. Die Terrassen und Eingangsbereiche sind in Sichtbeton gefertigt, die einzelnen Flächen sind mit einem Farbschimmer lasiert. Das Holz wirkt also vergleichsweise kühler und der Beton wärmer. Die feine Gestaltung verbindet die konträren Materialien. Auf diese Weise gelingt es den Architekten, jegliche Ökoromantik zu vermeiden. Die Häuser haben eine städtisch-elegante Erscheinung. 

Bekannt und ablesbar

Die Baukörper sind versetzt zueinander platziert, sodass unregelmässige Zwischenräume entstehen. Fusswege mäandern zwischen den Häusern, eingebunden in eine auffallend schöne und vielfältige Vegetation. Da der Autoverkehr weitgehend in Tiefgaragen und umliegende Parkzonen gelenkt wird, gibt es Platz für einen gemeinschaftlich genutzter Aussenraum, den die Kinder bereits fröhlich okkupieren. 

Vor den Wohnbauten führt ein dicker Schienenstrang zum nahe gelegenen Bahnhof, gegenüber ein Reifenhändler und eine Feuerwache. Dahinter liegen Novartis, Porche, Roche. Bis in die nächsten Jahre lebt man hier auf einer Insel: in sich vielfältig, aber losgelöst von städtischer Einbindung. Bemerkenswert ist die Entscheidung des Projektträgers Zug Estates für ein experimentelles Energiekonzept mit einem CO2-freien Betrieb.1 Als Baumaterialien kommen möglichst schadstoffarme, nachhaltige und regionale Produkte zum Einsatz. Die Holz-Fertigteile gewährleisten eine zügige Bauzeit. Wenn wie hier die Häuser parallel entstehen und dies eine engmaschige Platz- und Zeitökonomie voraussetzt, zahlt sich das aus. Durch die Verwendung gleicher Elemente bleibt der sonst so gefürchtete Mehraufwand für die Holzkonstruktion aus. Die Kosten sind mit denen eines in konventioneller Bauweise errichteten Gebäudes vergleichbar. 

Weiterhin hat es sich als Gewinn herausgestellt, dass der Bauablauf eine reduzierte Belastung in den bezogenen Häusern bedeutet. Die Montage der Holzelemente geht schnell, relativ leise und sauber vonstatten. Dem Argument, dass Holzfassaden nach einigen Jahren verwittern, begegneten die Architekten mit dem silbrigen Anstrich, der die Alterung des Holzes vorweg nimmt.
Zuletzt ist natürlich die Wohnqualität selbst ausschlaggebend. In den Holzbauten herrscht ein angenehmes Raumklima. Die Bewohner müssen keine giftigen Ausdünstungen oder schlecht alternden Bauteile befürchten. Die Materialien sind bekannt, ablesbar und unempfindlich. Heute ist man stolz, mit neun Bauten die grösste Holzbausiedlung der Zentralschweiz geschaffen zu haben.     

 Anmerkung
1 Energienetz: Wärmenetz für Quartiere, das dezentrale Wärmeverbraucher (Gebäude) mit niederwertiger Energie beliefert und die Abwärme aus der Gebäudekühlung als Wärmerückgewinnung oder aus anderen Quellen bereitstellt. Die «Suurstoffi» hat 220 Einzelsonden in ca. 150 m Tiefe. Das Erdsondenfeld wird als Wärmespeicher genutzt und die Energie zum Heizen oder Kühlen verwendet.

Dieses Projekt wurde realisiert mit Unterstützung des Bundesamtes für Umwelt (BAFU) im Rahmen des Aktionsplans Holz.

Der Artikel ist im Sonderheft «Stadt aus Holz II» erschienen. Weitere Beiträge zum Thema Holzbau finden sich im gleichnamigen E-Dossier.

Am Bau Beteiligte
 

Bauherrschaft
Zug Estates, Zug


Architektur
Müller Sigrist Architekten, Zürich


Tragwerk Holz
Pirmin Jung, Rain; Merz Kley Partner, Altenrhein


Tragwerk Stahlbeton
Funk + Partner, Urdorf

Holzbau, Ausführung
Hecht, Sursee; Tschopp, Hochdorf; Bisang, Küssnacht; Zaugg, Rohrbach; Fussenegger Holzbautechnik, Buchs


Bauphysik
Pirmin Jung, Rain


Bauökonomie
Archobau, Zürich

Weitere Informationen

 

Gebäude
Grundstücksfläche: 18 656 m2 (SIA 416)
Geschossfläche/Parking: 27 569 m2
Gebäudevolumen/Parking: 91 002 m3
Geschosszahl: 4 Vollgeschosse, 1 Tiefgarage
Wohneinheiten: 156 (1.5–5.5 Zimmer)
Parkplätze: 410

 

Holz und Konstruktion (Haus 5–9)
Kern aus Ortbeton, Wände und Decken aus Brettsperrholzelementen;
Schottenstruktur in Holzbauweise
Tragkonstruktion: Fichte
Schichtverleimtes Voll- und Brettschichtholz: 365 m3
Brettsperrholz: 1485 m3
Fassadenholz: Weisstanne (aus der Region und dem EU-Raum)
Fassadenbekleidung Schalung: 5200 m2
Wohnräume: Eichen-Riemenparkett, natur­geölt
Herkunft: Umliegende Grossregion (D/A)

Verwandte Beiträge