Ge­hei­me Welt im Gott­hard

Über das Wasser zu gehen ist seit Sommer 2012 auch Normalsterblichen möglich. Zumindest im «gefühlsmässigen Mittelpunkt des Landes» – wie Staatsrat N. Gobbi den Gotthard an der Eröffnung der Dauerausstellung «Sasso San Gottardo» im August nannte. Hier wurde die ehemalige Gotthardfestung von Holzer Kobler Architekturen in einen aussergewöhnlichen Ausstellungsraum transformiert.

Publikationsdatum
26-12-2012
Revision
25-10-2015

Die Ausstellung ist in zwei Teile gegliedert: Im einen Teil tauchen die Besucher in eine Themenwelt ein, die sich mit den natürlichen Ressourcen des Gebiets auseinandersetzt, im anderen kann der Zustand von 1945 im Bereich der historischen Festung Sasso da Pigna erkundet werden.

Die Gefahr ist vorbei

Im grössten Artilleriewerk der Gotthardregion sind Dinge zu sehen, die man bisher nicht sehen durfte. Bis 1999 wusste nur das Militär um die geheime Welt im Gotthardstollen, dessen Eingang nur fünf Gehminuten vom Hospiz  entfernt liegt und sich rund 1 km oberhalb der Tunnelröhren befindet, die in den Sommermonaten jeweils den Auftakt an die nicht immer freie Fahrt ans Mittelmeer markieren.
Die Artilleriefestung wurde 1941 ausgehöhlt, um Mussolinis Truppen im Ernstfall mit schwerem Geschütz in die Schranken weisen zu können. Der Ernstfall trat nie ein, das Réduit-Denken in der Schweiz hatte aber noch lange Bestand. Erst vor rund zehn Jahren wurde die Gotthardfestung aus der Geheimhaltung entlassen. Martin Immenhauser war der letzte Kommandant des Artilleriewerks Sasso da Pigna, wie die Festung auf dem Gotthard hiess. Er wollte nicht, dass der knapp 1.8 km lange Stollen fortan ein dunkles Dasein fristet oder bloss in ein weiteres Festungsmuseum umgewandelt wird. Mit dem letzten Kommandanten der Gotthard-Brigade, Alfred Markwalder, und dem Luzerner Künstler Jean Odermatt bildete er 1999 ein Team mit dem Ziel, die Festung für eine Neuentdeckung der Region zu nutzen. Das Projekt «Sasso San Gottardo» wurde nach der Gründung der Stiftung 2008 mit finanzieller Unterstützung von Wirtschaftspartnern, Stiftungen und der öffentlichen Hand im Auftrag der Fondazione Sasso San Gottardo realisiert. Insgesamt sind so 12.5 Mio. Franken zusammengekommen.

Der Berg als Inspiration

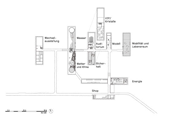
Die Architekten sehen im Gotthard einen Mythos mit vielen Bedeutungen für die Schweiz: ein Ort, der Norden und Süden verbindet und Grenzen überwindet, ein Symbol für den Aufbruch in die Moderne, für technischen Fortschritt und Ingenieurskunst. Hier zeigen sich aber auch die Grenzen des Fortschritts – in kilometerlangen Staus und in der Veränderung des Alpenraums durch den Menschen. Daran knüpft das Konzept für die Themenwelt im ehemaligen Stollen an, das die Architekten zusammen mit der Kuratorin Lisa Humbert-Droz entwickelt haben. In fünf Räumen werden die Themen Mobilität und Lebensraum, Wasser, Klima, Energie und Sicherheit atmosphärisch in Szene gesetzt.
Neben der Ausstellungsarchitektur mussten vor allem auch sicherheits- und feuertechnische Einbauten sowie Stromleitungen und weitere unsichtbare kostenintensive Massnahmen getroffen werden, um das Innere des Bergs für die Öffentlichkeit begehbar zu machen. Auch die Sprengungen des soliden Ortbetons stellten eine Herausforderung dar, wie Tristan Kobler erklärt. Wo zum Beispiel einst ein zweistöckiges Militärspital in eine Kaverne einbetoniert wurde, das gemäss General Guisan noch in den 1960er-Jahren (!) Bestand haben sollte, befindet sich nun eine riesige, in den Fels geschlagene Halle. Schallschluckende Einbauten im Boden sorgen dafür, dass die Höhle auch als Bankettraum vermietet werden kann. Als Station der Themenwelt wird hier die Mobilität behandelt, was mit einem Zusammenschnitt aus unzähligen Filmsequenzen vermittelt wird.
Trotz den neuen Interventionen ist die Vergangenheit spürbar. Holzer Kobler haben das Vorhandene mit aktuellen Informationen angereichert und den Bestand am Leben erhalten. So sind die Beschriftungen zu den einzelnen Kavernen in signalpinken Lettern auf die Felswand gesprayt, wo zeitgleich ein altes Telefon mit Wählscheiben an eine Welt erinnert, die noch nicht lange her ist, aber ewig vergangen scheint.

Wie lange dauert eine Dauerausstellung 

Alle sieben Jahre wird wohl eine Überarbeitung der Themenwelt stattfinden, meint Tristan Kobler. Gewisse Bereiche seien jedoch bewusst atmosphärisch und somit zeitlos angelegt worden. Die Themenwelten sind interessant, wenn auch vor allem effektvoll. So geht man zum Beispiel in der «Wasser»-Höhle auf einem Rost, der mit einer feinen Wasserschicht bedeckt ist und den Eindruck vermittelt, man könne tatsächlich über das Wasser gehen. In einem Zyklus werden Projektionen an die Felswand geworfen, die bei den Besuchern vermutlich jedoch ähnlich wie Wassertropfen auf einer beschichteten Jacke abperlen. Zehn Tafeln aus Cortenstahl, auf denen die Architekten ihre Definition von Nachhaltigkeit dokumentiert haben, ergänzen das biblische Bild: Sie erinnern an die Steintafeln der Zehn Gebote. Davor ist ein Modell des Stollensystems zu sehen, das die 7550 m2 im Berg besser begreifbar macht: Die ehemalige Festung befindet sich rund 100 Höhenmeter über dem Eingangsbereich und wird deshalb auch mit einer Seilbahn erschlossen.

Als wäre die Zeit stehen geblieben

In den Kavernen, wo es blubbert und blinkt, klingt und donnert, ist der Lern- vielleicht kleiner als der Showeffekt. Trotzdem oder gerade deswegen lohnt sich ein Besuch. Die Räumlichkeiten sind einmalig, die Ausstellung ist unterhaltsam – auch wenn der heimliche Höhepunkt nicht nur für Militärunkundige die ehemalige Festung sein dürfte. Hier scheint ein Augenblick in der Geschichte eingefroren zu sein, der trotzdem lebendig wirkt. Die Räume sind so hergerichtet, als ob sich die WK-Soldaten nur gerade in der Pause befänden. Da liegt ein «Blick» von 1995 neben einer Dose Bier und den Artillerieberechnungen. In den Schlaftrakten liegen die militärgrünen Schlafsäcke ordentlich auf den Betten, und die Zahnbürsten stehen in Reih und Glied im Waschraum.

Magazine

Verwandte Beiträge