Foun­da­ti­on Award 2024: Um­bau Ar­bei­ter­haus, Win­ter­thur

Auszeichnung «Gebautes Projekt»

Publikationsdatum
28-05-2024

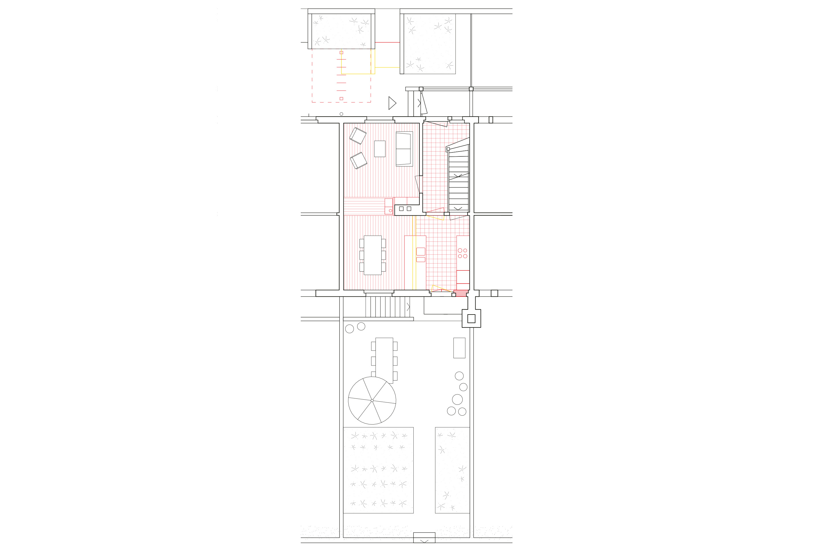
An der Tössfeldstrasse in Winterthur haben steigerspielmann mit denkmalpflegerischem Feingefühl in den vorgefundenen Bestand eingegriffen und das Arbeiterhaus mit viel Wertschätzung für seine Geschichte saniert. Infolge zahlreicher Renovationen im vergangenen Jahrhundert hatte das Haus an Authentizität eingebüsst. Die Architektinnen und Architekten befreiten die Oberflächen von teilweise schadhaften Materialien und setzten die darunterliegenden originalen Bauteile instand. Minimale räumliche Eingriffe stellten den Erhalt der grösstenteils originalen Baustruktur sicher. Nur was nicht gerettet werden konnte, wurde neu gebaut.

Der Tonplattenboden, der nach dem Rückbau des Bodenbelags in der Küche und im Korridor an die Oberfläche kam, eignete sich nicht als Nutzschicht. Trotzdem konservierten ihn ­steigerspielmann, indem sie ihn mit einer darüber­gelegten Trennschicht schützten, bevor sie die neuen Terrazzoplatten verlegten. Der Umgang mit dem Originalboden liegt somit in den Händen künftiger Bewohnerinnen und Bewohner. Die neue Küche zeugt von einer intensiven Auseinandersetzung mit historischen Vorbildern. Die Farbigkeit im Treppenhaus orientiert sich an den vorgefundenen Farben aus der Entstehungszeit. Sämtliche Fenster wurden energetisch ertüchtigt und wieder eingebaut.

Steigerspielmann weisen eine reife Haltung auf, die sich im Umbau des Arbeiterhauses widerspiegelt. Sie greifen Vorhandenes auf, erkennen Qualitäten und Potenziale, überführen sie atmosphärisch gekonnt in die Gegenwart und sorgen dafür, dass der vorgesehene Charakter erhalten bleibt und der Bestand langfristig genutzt und geschätzt werden kann. Die Eingriffe sind subtil, feinfühlig und präzise. Mit der Instandsetzung hat das Arbeiterhaus den Charakter zurückgewonnen, der in den vergangenen Jahrzehnten verloren gegangen war. Die Architektinnen und Architekten haben eine grosse Wertschätzung für das Handwerk und ein starkes Bewusstsein für Materialien bewiesen und einen wert­vollen baukulturellen Beitrag geleistet, der nicht nur Vorbildcharakter für die gesamte Häuserzeile zeigt, sondern auch für einen Haustyp, der ganze Wohnquartiere von zahlreichen ehemaligen Industriestandorten der Schweiz prägt.

Umbau Arbeiterhaus, Winterthur
 

Architektur
steigerspielmann, Luzern; gegründet 2020

Foundation Award 2024: Mehr Informationen zu den Nominierten und Siegerprojekten

Verwandte Beiträge