Feu­er, Feu­er, Un­ge­heu­er!

Wache Nord mit Zentraler Einsatzlogistik Schutz und Rettung

Mit dem Neubau der Wache Nord und der Zentralen Einsatzlogistik soll der Grundstein für eine dezentrale Notfallversorgung der Stadt Zürich ­gelegt werden. Enzmann Fischer Partner und Schnetzer Puskas Ingenieure haben mit «Mazinga» das Verfahren für sich entschieden.

Publikationsdatum
13-07-2017
Revision
13-07-2017

Zürich wächst. Mit mehr Einwohnern kommen mehr Aufgaben auf die Infrastruktur der Stadt zu. Mehr Feuer löschen, mehr Menschenleben retten und mehr Verletzungen behandeln. Dafür ist in Zürich «Schutz & Rettung» zuständig. Damit «Schutz & Rettung» auch in Zukunft seinen Auftrag gewährleisten kann, hat sich die Stadt Zürich für eine Umstrukturierung entschieden. Mit sechs neuen Standorten soll die Notfallversorgung dezentral organisiert werden. Der erste Schritt ist der Neubau der Wache Nord mit zentraler Einsatzlogistik an der Binzmühlestrasse, der den Grundstein für diese Strategie legt.

In einem selektiven Wett­bewerb gewann das Projekt «Mazinga» von Enzmann Fischer Partner und Schnetzer Puskas Ingenieure. Bis zur Realisierung ist es aber noch ein langer Weg. Die Wache Nord soll 2024 in Betrieb genommen werden. 2019 wird der Objektkredit von 84 Mio. Fr. dem Gemeinderat vor­gelegt. Mitte 2020 ist die Volks­abstimmung vorgesehen. In einer ­zweiten Etappe ist eine Erweiterung mit Büroflächen möglich.

Wache mit Herz

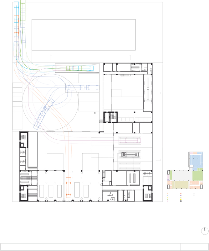
Der Entwurf «Mazinga» ist den teilweise heute noch bestehenden grosszügigen und funktionalen Industriehallen Oerlikons nachempfunden. Typische architektonische und konstruktive Merkmale werden aufgenommen und weiterentwickelt. Das Gebäude ist von einer klaren und kräftigen Konstruktion und Trag­struktur aus Beton geprägt. Es ist als Betonskelettbau mit einer selbsttragenden Hülle aus Trapezblech und Glas konzipiert.

Das eigentliche Herz des Projekts «Mazinga» stellt jedoch die grosse stützenfreie Übungshalle dar, die an den Aussenbereich anschliesst und einen direkten betrieblichen Bezug zur Fahrzeughalle, zu den Werkstätten und zur Anlieferung hat. Auch die Nutzungen der oberen Geschosse sind rund um die Übungshalle organisiert. Zwischengeschosse innerhalb der Hallenteile, die mit einläufigen Treppen angebunden werden, ergänzen die nutzbaren Flächen des Erdgeschosses wie auch des ersten Obergeschosses. Lichthöfe über die ganze Höhe setzen die Aufenthalts- und Büroräume in Bezug zur Übungshalle und gewährleisten Sicht- und Lichtbeziehungen zwischen den Nutzungseinheiten. Das stimmige Gesamtkonzept zeigt eine intensive Auseinandersetzung mit den Eigenheiten des Orts und den Anforderungen des Raumprogramms. Betrieblich, konstruktiv und räumlich ist das Projekt durchdacht und ausgereift. Nicht zufriedenstellend für die Jury ist der Vorschlag für die spätere Er­wei­terung mit Büroflächen, da diese die Silhouette des Baukörpers gegen aussen massgeblich verändert.

Licht im Dunkeln

Auch das Projekt «Lichtsirene» lehnt sich mit seiner Optik an die industrielle Geschichte des Quartiers an. Er fügt sich «selbstverständlich und präzise» in die Gebäudereihe an der Binzmühlestrasse ein. Die Lichtsirenen genannten, verglasten Dachlaternen akzentuieren die beinahe nüchterne Erscheinung mit ihrer Verkleidung aus Betonlamellen, Verglasungen und Rohzinkblechen. Sie verweisen auf die späteren Ausbaumöglichkeiten im Dachgeschoss. Die Jury bemängelt die Platzverhältnisse für den Fahrzeugverkehr.

Höhenspiel

Das drittplatzierte Projekt «Garde Du Nord» schlägt einen L-förmigen Baukörper vor. Zur Binzmühlestras­se nimmt der Baukörper die Höhe der Nachbarn mit drei Geschossen auf. Im Innenhof wird ein Bau mit einer Höhe von 20 m vorgeschlagen. In der zweiten Etappe verliert der strassenseitige Baukörper die Höhenreferenz zu den Nachbarn. So werde der Baukörper im Strassenraum zu dominant, bemängelt die Jury. Gleichzeitig gehe die starke volumetrische Differenzierung der beiden Gebäudeteile verloren. Auch «Garde Du Nord» spielt mit Bezügen zur Industriearchitektur. «Glas und Betonfertigteile mit unterschied­lichen Wellungen und örtlichen, gut integrierten Vordächern flirten mit einer industriellen Direktheit, ohne sie genau zu kopieren.»

Zweigeteilt

Das Ensemble von «Züri löscht» fügt sich städtebaulich sehr gut in den umliegenden Kontext ein. Das Projekt mit industriellen Anmutungen wird in zwei unterschiedliche Gebäude unterteilt: eine rund 9 m hohe Fahrzeughalle und einen rund 20 m hohen Gewerbetrakt mit den Wache- und Logistiknutzungen, die beide winkelförmig zueinander angeordnet sind. Was im Stadtbild gut funktioniert, hat typologische und betriebliche Nachteile. Die Fahrzeughalle ist wegen der zahlreichen, betrieblich bedingten Unterteilungen nur wenig als offener Hallenraum wahrnehmbar. Zudem ist die Verbindung von Wache und Fahrzeughalle im Notfalleinsatz mit zwei Gruppen von Rutschstangen und einer dazwischengelegten ­Passerelle als Horizontalverteilung ungünstig.

Weitere Informationen finden Sie unter der Rubrik Wettbewerbe.

Auszeichnungen
 

1. Rang / 1. Preis: «Mazinga»
Enzmann Fischer Partner, Zürich;
Schnetzer Puskas Ingenieure, Zürich;
ffbk Architekten, Zürich;
s3-engineering, Dübendorf;
Enz & Partner, Zürich;
BAKUS Bauphysik & Akustik, Zürich;
SMLXL Landschaft + Städtebau, Zürich


2. Rang / 2. Preis: «Lichtsirenen»
Staufer & Hasler Architekten, Frauenfeld;
ACS-Partner, Zürich;
hps energieconsulting, Zürich;
EBP Schweiz, Zürich;
Mühlebach Partner, Wiesendangen


3. Rang / 3. Preis: «Garde Du Nord»
ARGE Wagner Vanzella Architekten/ Ressegatti Thalmann Architektinnen, Zürich;
Fürst Laffranchi Bauingenieure, Aarwangen;
GMS Partner, Zürich-Flughafen;
Klaus Zweibrücken, Zürich;
Durable Planung und Beratung, Zürich


4. Rang / 4. Preis: «Züri löscht»
Graser Architekten Zürich;
Ferrari Gartmann, Chur;
Rombo, Zürich;
Prof. Dieter Fischer, Windisch

 

FachJury
 

Jeremy Hoskyn, Architekt, Amt für Hochbauten (Vorsitz); Britta Brauer, Architektin, Amt für Städtebau; Christian Hönger, Architekt, Zürich; Daniel Meyer, Bauingenieur, Zürich; Silva Ruoss, Architektin, Zürich; Andreas Sonderegger, Architekt, Zürich

 

SachJury
 

Hanspeter Fehr, Direktor Schutz & Rettung Zürich; Thomas Heil, Schutz & Rettung Zürich; Daniel Riedmann, Immobilien Stadt Zürich; Patricia Egloff, Immobilien Stadt Zürich; Alexandra Nötzli, Quartiervertreterin Oerlikon

 

Verwandte Beiträge