Be­stechend lo­gisch

Projektwettbewerb Neubau Hallenbad Appenzell

Appenzell bekommt ein neues Hallenbad. Nachdem der bestehende Bau von 1971 vor vier Jahren aus Sicherheitsgründen geschlossen wurde, suchte man in einem selektiven Projektwettbewerb nach Ersatz. Mit Erfolg: Der Entwurf von Peter Moor Architekten vereint schlichte Eleganz mit einem effizienten Raumprogramm.

Publikationsdatum
14-06-2018
Revision
14-06-2018
Tina Cieslik
Head of Multimedia | espazium digital lab; Korrespondentin Architektur/Innenarchitektur TEC21

Es ist nicht der erste Anlauf für ein neues Hallenbad, nicht einmal der erste Architekturwettbewerb. 2011 ergab eine Machbarkeitsstudie, dass die Vorteile eines Ersatzbaus jene einer Instandsetzung überwiegen. Den anschliessenden Projektwettbewerb konnte 2013 das Büro Seilerlinhart Architekten aus Luzern für sich entscheiden, mit einem Holzvolumen, das die Funktionen gestapelt in sich vereinte. Das Projekt scheiterte jedoch 2015 an der Landsgemeinde, den Appenzellern waren die prognostizierten Kosten von 23.5 Mio. Fr. zu hoch.

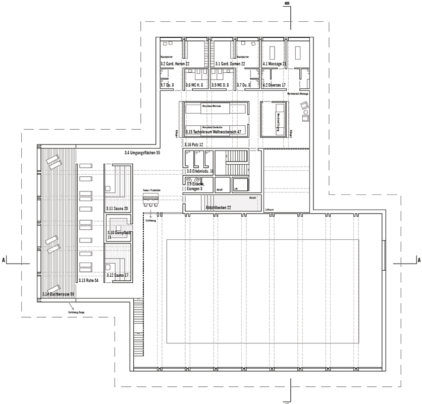
Nun also Runde zwei, in weiser Voraussicht mit einem im Wettbewerbsprogramm festgehaltenen Kostendach von 20 Mio. Fr. Zwölf Projekte wurden eingereicht, das Rennen machte der Entwurf «Equilibre» von Peter Moor Architekten. Er setzt auf Holz, wie auch die drei weiteren rangierten Projekte. Beim Sieger zeigt es sich in Form ­einer zweigeschossigen Holzkon­struktion mit Betonsockel, die den Standort des alten Hallenbads aufgreift. Der Entwurf nutzt und adaptiert die vorhandenen Werte – so wird etwa der Küechlimoosbach entlang der Südfassade umgeleitet, sodass er als natürliches Kneipp­becken genutzt werden kann.

Die Räume im Innern des dreiflügeligen Volumens sind be­merkenswert logisch um einen Erschliessungskern angeordnet, jeder Flügel ist mit einer Funktion belegt: die Garderoben im Norden, das Lehr­becken im Westen und das 25-­m-Schwimmbecken im Süden. Der Sauna- und Wellnessbereich befindet sich im OG, inklusive Dach­terrasse. Das UG beherbergt die Technik.

Bleibt zu hoffen, dass die Landsgemeinde diesmal «Ja» stimmt – eine vorteilhaftere Ba­lance ­zwischen Ausdruck, Funktion und Kosten wird sich nur schwer finden lassen.

Weitere Infos und Pläne auf competitions.espazium.ch

Auszeichnungen
 

1. Rang / 1. Preis: «Equilibre»
Peter Moor Architekten, Zürich; Kannewischer Ingenieurbüro, Cham; ASP Landschaftsarchitekten, Zürich; Synaxis, Zürich; Gartenmann Engineering, Zürich

2. Rang / 2. Preis: «Mostbröckli»
Graber Pulver Architekten, Zürich; Krebs und Herde, Winterthur; Schnetzer Puskas Ingenieure, Basel; Dr. Eicher + Pauli, Zürich, Kannewischer Ingenieurbüro, Cham; Maaars Architektur Visualisierungen, Zürich

3. Rang / 3. Preis: «nemo»
jessenvollenweider architektur, Basel; Stauffer Rösch, Basel; Dr. Lüchinger + Meyer Bauingenieure, Zürich; Kannewischer Ingenieurbüro, Cham; Schällibaum, Wattwil

4. Rang / 4. Preis: «Silhouette»
MAK architecture, Zürich; Beck Schwimmbadbau, Winterthur; Kolb Landschaftsarchitektur, Zürich

Fachjury
 

Erol Doguoglu, Architekt, Frauenfeld


Christian Hönger, Architekt, Zürich


Corinna Menn, Architektin, Zürich /Chur

Verwandte Beiträge