Aus­zeich­nung gu­ter Bau­ten im Kan­ton Zü­rich 2013

Zum vierten Mal werden gute Gebäude mit einer Auszeichnung versehen, die im Kanton Zürich erstellt wurden. Die letzte Prämierung erfolgte 2006, womit sich die hohe Zahl von 123 Eingaben erklärt. Die drei Auszeichnungen decken ein weites Spektrum ab.

Publikationsdatum
14-11-2013
Revision
01-09-2015

Die Stiftung für die Auszeichnung guter Bauten im Kanton Zürich prämiert 2013 zum vierten Mal beispielhafte Bauten, die im ­Kanton entstanden sind. Dabei folgt sie jeweils einem Leitmotiv. Nach «Weiterbauen!» (2001), «Bauen in der Öffentlichkeit» (2003) und «Bauen und Öffentlichkeit» (2006) stand heuer das Thema «Mit Bauen Grenzen er­forschen» im Vordergrund. Die drei ausgezeichneten Projekte haben bereits vor ihrer Auszeichnung für Aufmerksamkeit gesorgt. Der Preis gibt Gelegenheit zu untersuchen, welche Grenzen die drei Gewinner ausloten.

Stadt in der Stadt

Mit dem Projekt Sihlcity wurde die Umnutzung einer ehemaligen Industrieanlage am südlichen Stadtrand von Zürich ausgezeichnet. Am Übergang zur Agglomeration schafft sie Urbanität, wo vorher keine war. Das ehemalige Gelände der Sihlpapierfabrik bietet heute alles, was eine Stadt ausmacht: hohe Dichte neben Durchmischung von sozialen, funktionalen und städtebaulichen Elementen.

Die neuen Häuser lassen den alten Industriebauten ihren Platz. Mehr noch: Sie integrieren sie geschickt in die Gestaltung der gesamten Anlage. Die gelungene Mischung der Bauten ist bemerkenswert, denn an der Planung waren lediglich ein einziger Investor und nur ein Architekturbüro beteiligt.

Die zweite Moderne aufwerten

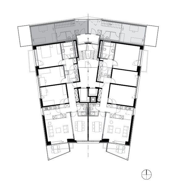
Eine Auszeichnung ging an die Erweiterung und Sanierung des Wohnhochhauses Weberstrasse (Winterthur) aus den 1960er-Jahren. Gebäude aus dieser Epoche geniessen nur wenig Kredit: Weder Bauherrschaften noch Investoren oder gar Bewohnende bringen ihnen viel Begeisterung entgegen. Umso verdienstvoller, wenn sich das hässliche Entlein nach seiner Sanierung als eleganter Schwan präsentiert.

Die neue Schicht, die dem bestehenden Gebäude vorangestellt wurde, bietet neben neuen Balkonen ineinander verschränkte Duplexwohnungen. Sie bilden die gelungene Synthese von zwei Bauepochen.

Klare Kante setzen

Die dritte Auszeichnung ging an das neue Bezirksgebäude von Dietikon. Es bietet ein klares Gesicht für den 1989 neu geschaffenen Bezirk. Direkt am Bahnhof gelegen ­versammelt es den Bezirksrat, die Staats­anwaltschaft und das Gefängnis unter seinem Dach. Die prägnante Architektur bringt mit ihren klaren Linien Ordnung in die vielge­staltige Umgebung, der siebengeschossige Kopfbau markiert selbstbewusst die Staatsgewalt am Bahnhofplatz.

Tags

Verwandte Beiträge