Alt und Neu ver­kup­peln

Sanierung ehemaliges Schlachthofareal Lugano; Zweistufiger Projektwettbewerb

In den Bestandsgebäuden auf dem ehemaligen Schlachthofareal in Lugano soll ein Kultur- und Begegnungszentrum entstehen. Zusätzlich ist ein ­Neubau mit Wohnungen für Studierende und Dozierende vorgesehen. ­Durisch + Nolli Architetti gelingt der Spagat zwischen Alt und Neu mit einer Adaptation der vorgefundenen Satteldächer.

Publikationsdatum
15-04-2021

Der ehemalige Schlachthof von Lugano liegt auf der rechten Seite des Flusses Cas­serate. Er wurde Ende des 19. Jahr­hunderts gebaut und lag ursprünglich ausserhalb der Stadt. Heute ist das Areal Teil des Stadt­gefüges und eines der wenigen ­Zeugnisse der Industriekultur von grosser architektonischer und geschichtlicher Bedeutung. Viele öffentliche Bauten reihen sich in Fussgängerdistanz dem Fluss entlang auf. Im Norden befinden sich die Universität der italienischen Schweiz und die Fachhochschule Südschweiz. Im Süden liegen das Teatro delle Radici und das Studio Foce, das zusätzlich zum Theater Foce und zum Konzertsaal auch eine Mediathek und die Schule für moderne Musik umfasst. Auch das Kongresszentrum Campo Marzio Nord befindet sich in der Nähe.

In den Gebäuden des ehemaligen Schlachthofs ist ein neues Kultur- und Begegnungszentrum vorgesehen, das Synergien mit den öffentlichen Nutzungen in der Umgebung schaffen soll. Zusätzlich sind Wohnungen für Studierende und Dozierende der Universität geplant. Von den sechs bestehenden Gebäuden sollen fünf erhalten bleiben. Das Haus F im Westen des Areals ist in desolatem Zustand und soll dem Neubau für die Wohnungen der Universität weichen. Als Nutzungen für die erhaltenswerten Gebäude sind ein Veranstaltungsraum, Coworking- und Co-Studying-Bereiche, ein Gastronomieangebot und attraktive Aussenräume vorgesehen.

Um Lösungsansätze für diese spannende Aufgabe zu erhalten, hat die Stadt Lugano einen zwei­stu­figen Projektwettbewerb im offenen Verfahren gemäss der Ordnung für Wettbewerbe SIA 142 ausgeschrieben. Ziele des Wettbewerbs sind die Sanierung und Aufwertung des ehemaligen Schlachthofareals, die ­Öffnung der Räume für ein breites Publikum, die Schaffung eines Angebots von kulturellen und sozia­len Aktivitäten sowie der Neubau von Wohnungen für Studierende und Gastprofessoren der Universität. Insgesamt soll die neue Nutzung des Areals dazu beitragen, das ganze Quartier zu beleben. In der ersten Stufe gingen 83 Beiträge ein, wovon neun Projekte für die zweite Stufe ausgewählt wurden. In der zweiten Stufe mussten die Architekten Planerteams mit Bauingenieuren, Haustechnikplanern, Bauphysikern und Brandschutzexperten bilden.

Ikonisches Satteldach

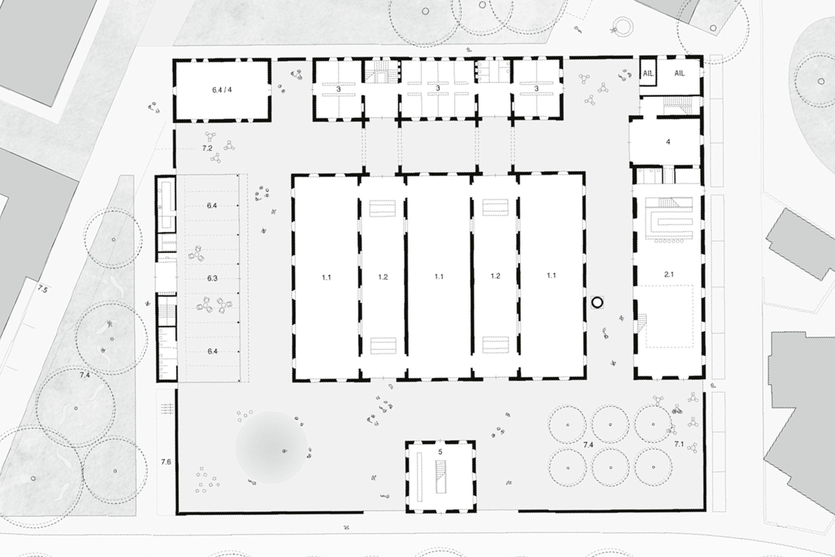
Die Jury empfiehlt einstimmig den Beitrag «Campus Matrix» von Durisch + Nolli Architetti zur Weiter­bearbeitung. Das neue Wohngebäude vermittelt zwischen dem alten Schlachthof und dem Quartier. Das doppelte Satteldach greift die Be­dachung der historischen Gebäude auf. Der Neubau weist einen Versatz im Grundriss und eine Staffelung in der Höhe auf. Der Kopf zum Casserate ist siebengeschossig, während der hintere Teil fünf Geschosse aufweist. Mit dieser Gliederung fügt sich der grosse Baukörper gut ins städtische Gefüge des Quartiers ein. Es entsteht der Eindruck, als sei der Neubau aus der Zeit gefallen und schon immer da gewesen. Die schlanke Fassade zum Casserate mit dem doppelten Satteldach wird zum Markenzeichen des neuen Schlacht­hofareals mit einem hohen Wiedererkennungswert.

Die grosszügige, zweigeschossige Eingangshalle empfängt sowohl die Bewohner des Wohngebäudes als auch die Besucher des Kultur- und Begegnungszentrums. Die Materialisierung verweist auf die Nutzung: Beton für die öffent­lichen Bereiche, Holz für die Wohnungen und eine Kombination von beiden für die Zwischenzonen. Die Zimmer für Studierende und die Doppelzimmer für Dozierende und Gäste sind durch den Versatz im Grundriss gegliedert. Eine breite, ganz verglaste Laube enthält die gemeinschaftlichen Nutzungen wie Kochen, Essen, Wohnen oder Studieren.

Die Eingriffe in die Sub­stanz des bestehenden Gebäudes sind zurückhaltend, und auch das Tragwerk bleibt erhalten. Dies erlaubt es, Räume unterschiedlicher Grösse anzubieten, die sich gut an die zukünftigen Bedürfnisse und Aktivitäten anpassen lassen. Das Gastronomieangebot aus Restaurant und Literaturcafé wird an einem Ort konzentriert, was die Zubereitung der Mahlzeiten und die Bewirtung der Gäste vereinfacht und eine gemeinsame Küche er­möglicht. Die Aussenflächen innerhalb des ursprünglichen Schlacht­hofs sind nicht bepflanzt, aber mit Sonnensegeln ausgestattet. Ausserhalb der Umfassungsmauer zum Fluss sind Bäume vorgesehen, um die Südfassaden zu beschatten. Die Jury empfiehlt, das rigide Freiraum­konzept zu überprüfen – insbe­sondere das Verhältnis von versie­gelten und begrünten Flächen – sowie die vi­suellen Querbezüge in Nord-Süd-­Richtung zu verbessern. Das Projekt besticht laut dem Bericht des Preisgerichts durch seinen «Wiedererkennungswert und seine Ikonizität».

Gegensatz von leicht und schwer

Das mit dem zweiten Preis ausgezeichnete Projekt «Le città sottili» von Pessina Architetti zeichnet sich durch ein leichtes, siebengeschossiges Wohngebäude aus. Die Jury würdigt insbesondere den Eingangsbereich übereck des neuen Gebäudes, die Begegnungszonen in den Lauben auf den Obergeschossen und die jeweils im Kopf des Gebäudes untergebrachten Gemeinschafts­räume mit Blick auf den Casserate. Gegen Osten bietet ein ausladendes Vordach einen geschützten Aussenbereich, der zusammen mit dem Restaurant in der ersten Zeile des ehemaligen Schlachthofs genutzt werden kann. Das neue Gebäude fügt sich gut in den historischen Kontext ein und artikuliert die Grenze des Schlachthofareals zum städtischen Kontext. Die bestehende Umfassungsmauer wird im Neubau hochgezogen und teilt das Volumen der Länge nach in einen Bereich mit Lauben im Osten und Zimmern im Westen. Die bestehenden Bauten werden mit seriellen, vorfabrizierten Elementen ergänzt, was dem industriellen Charakter des alten Schlachthofs entspricht.

Hortus conclusus

Auch der Beitrag auf dem dritten Rang, «Suitetti» von Briccola, Sansossio und Aguiar, nimmt das Thema der Umfassungsmauer auf und setzt es radikal als mittelalterlichen «hortus conclusus» um. Das neue, kompakte Gebäude sitzt auf der Mauer und nimmt mit seiner Grundfläche und Ausrichtung Bezug auf die Hallen des ehemaligen Schlachthofs. Es ist sehr kompakt und fügt sich adäquat in den städtischen Kontext ein. Die scharfe Trennung von innen und aussen durch die Umfassungsmauer führt zu unattraktiven Restflächen ausserhalb des klar umrissenen Gevierts. Den Freiräumen im Innern mangelt es an Hierarchie, Struktur und Blickbezügen. Auch die architektonische Sprache des Neubaus überzeugte nicht. Die Jury meint, sie sei zu «abstrakt und unpersönlich». Die Wohnungen sind effizient organisiert. Obwohl die Gemeinschaftsräume stellenweise doppelgeschossig angelegt sind, fehlt es ihnen aber an Grosszügigkeit. Die konsequente Umsetzung des Konzepts «Stadt in der Stadt» wird dem Entwurf zum Verhängnis. So fehlt es dem Beitrag an Durchlässigkeit, und die Flächen ausserhalb der Umfassungsmauer sind nur eingeschränkt nutzbar.

Flexibilität und Durchlässigkeit

Pessina Architetti gelingt es, ihren siebengeschossigen Neubau durch seine Leichtigkeit und Transparenz gut in den heterogenen Kontext einzubetten. Sie scheitern aber an der rigiden Teilung des neuen Wohngebäudes durch die Umfassungsmauer, die sich als Längswand durch alle Obergeschosse des Neubaus zieht. Noch pointierter formuliert der Beitrag auf dem dritten Rang das Thema «Stadt in der Stadt». Dem starren Konzept mangelt es an Grosszügigkeit und Durchlässigkeit. Beide Beiträge bestechen zwar durch die kohärente Umsetzung eines klaren Konzepts, scheitern aber an der dadurch bedingten fehlenden Flexibilität.

Durisch + Nolli Architetti lösen die schwierige Aufgabe, ein grosses Volumen in den historischen Kontext einzufügen, auf überzeugende Art. Aufgrund einer sorgfältigen Analyse des Bestands entwickeln sie für den Neubau ein Markenzeichen mit hohem Wiedererkennungswert. Es entsteht der Eindruck eines Déjà-vu, trotzdem ist die Bildsprache neu und eigenständig. Mit dem doppelten Satteldach nimmt der Neubau Bezug auf die bestehenden Hallen des ehemaligen Schlachthofs. Gleichzeitig fügt sich das Gebäude mit dem Versatz im Grundriss und der Höhenstaffelung geschickt in den urbanen Kontext mit zeitgenössischen Bauten ein und schafft ein einprägsames Wahrzeichen für das neue Kultur- und Begegnungszentrum.

Pläne und Jurybericht zum Wettbewerb finden Sie auf competitions.espazium.ch

Auszeichnungen

1. Rang / 1. Preis: «Campus Matrix»
Durisch + Nolli Architetti, Massagno; Ingeni; Ifec Ingegneria; Westpol Landschaftsarchitekten
2. Rang / 2. Preis: «Le città sottili»
Pessina Architetti, Lugano; Schnetzer Puskas Ingenieure; Visani Rusconi Talleri; Evolve; Swiss Safety Center; Ghiggi Paesaggi Landschaft und Städtebau
3. Rang / 3. Preis: «suitetti»
Roberto Briccola, Giubiasco, mit Montemurro Aguiar Architetti, Mendrisio; Messi Associati, Mendrisio; Moggio Engineering; Elettroconsulenze Solcà; Think Exergy; Officina del Paesaggio
4. Rang / 4. Preis: «La ringhiera»
Schwarzburg Architekten mit Nicolas Burckhardt Architekten, Basel; Ferrari Gartmann; Marco De-Carli Studio di ingegneria; C&C Electric; Gartenmann Engineering; TEA Engineering, Antón Landschaft
5. Rang / 5. Preis (ex aequo): «Il taglio preciso»
Elisa Valero, Granada (E); Anastasi & Partners; Piero Simonin; SPED; Cispi
5. Rang / 5. Preis (ex aequo): «A-PRI»
Vaillo-Irigary y Asociados mit Christian Eberli, Navarra (E) / Ponte Capriasca; Studio di Ingegneria Lepori; Studio di Ingegneria Zocchetti; Elettronorma; Eco Control; Fabio Della Casa
6. Rang / 6. Preis (ex aequo): «Rigibile»
Mauro Malisia, Muralto; Mario Monotti ingegneri; Verzeri & Asmus; Erisel
6. Rang / 6. Preis (ex aequo): «Vis-a-vis»
Gaëlle Christina Isabelle Verrier mit Giacomo Ortalli, Canzo (I); Passera & Associati; Silvano Pozzi; Piona Engineering; CSD Lugano; Claudia Sulmoni; Demolfetta Strodel Silvano
6. Rang / 6. Preis (ex aequo): «Un edificio come una città»
Sánchez García Architetti, Salorino; Lurati Muttoni Partner; Tecnoprogetti

FachJury

Gino Boila, Architekt, Departement Immobilien Stadt Lugano; Ruggero Tropeano, Architekt; Martin Boesch, Architekt; Céline Guibat, Architektin; Ludovica Molo, Architektin (Ersatz)

SachJury

Cristina Zanini Barzaghi, Bauingenieurin, Stadträtin Lugano, Vorsteherin Departement Immobilien Stadt Lugano (Vorsitz); Boas Erez, Rektor der Università della Svizzera Italiana; Lisa Muscionico, Architektin, Departement Immobilien Stadt Lugano (Ersatz)

Verwandte Beiträge