Tran­sfor­ma­tion Fir­st Church of Chri­st, Bâ­le (BS)

Il faut pénétrer dans une arrière-cour pour découvrir un emblème architectural d’Otto Rudolf Salvisberg: l’église de la «First Church of Christ, Scientist». Le Canton de Bâle-Ville a acquis ce bâtiment classé, aujourd’hui souvent inoccupé. Le cabinet Beer Merz Architekten a effectué avec passion et beaucoup d’attention sa transformation en salle de répétition de musique.

Data di pubblicazione
20-01-2022

À Bâle, en 1936, l’architecte Otto Rudolf Salvisberg érige le temple de la «First Church of Christ, Scientist», tandis que Paul Bonatz et Rudolf Christ construisent à quelques mètres de là le Kunstmuseum. Contrairement à ses confrères, Salvisberg, parangon du Neues Bauen, utilise des procédés stylistiques minimalistes qui font de ce lieu sacré un bâtiment presque profane.

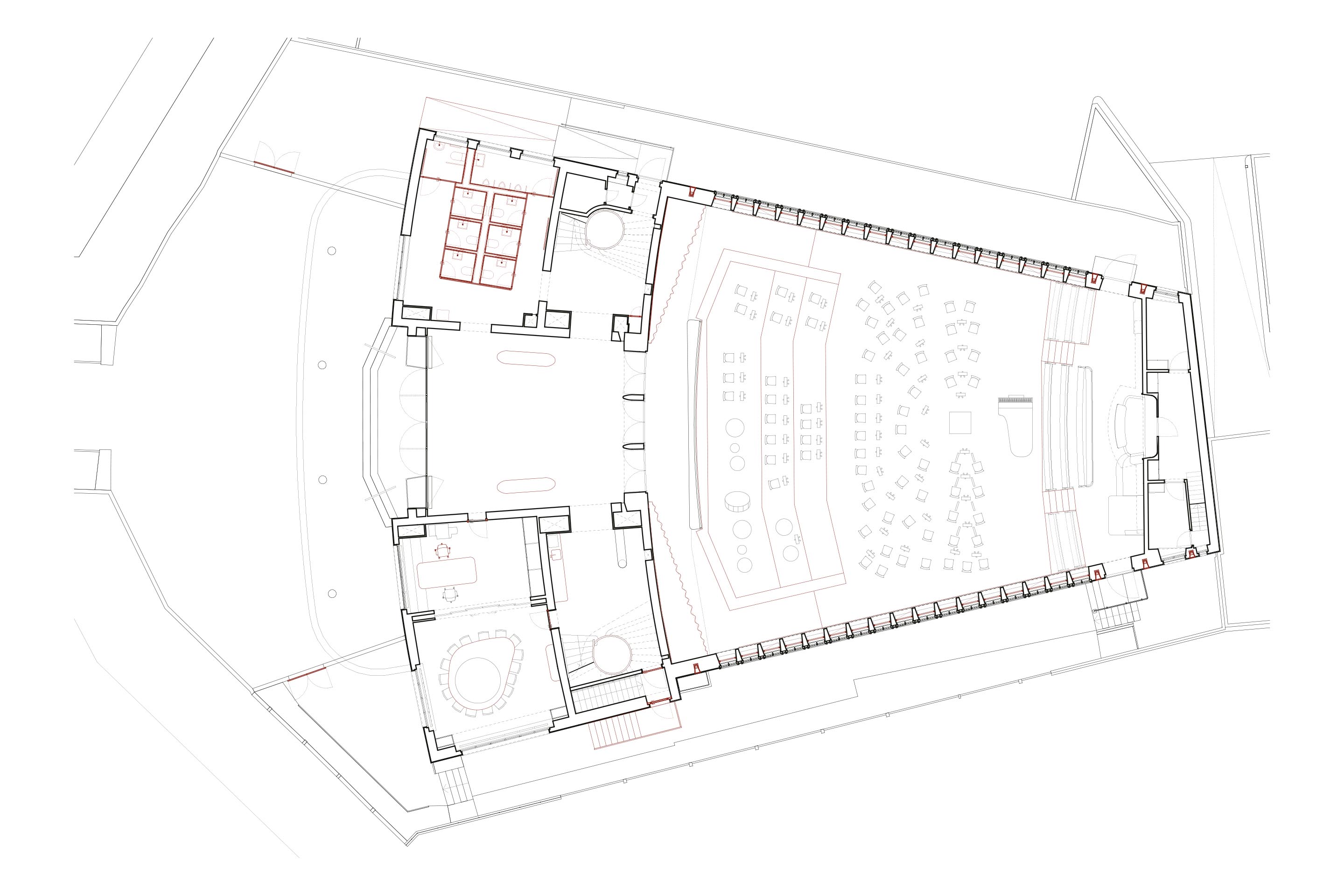
L’église est située dans une arrière-cour. Pour tirer parti de la parcelle, Salvisberg a adopté un plan de forme trapézoïdale presque symétrique. À l’entrée, quatre minces piliers de béton soutiennent l’avant-bâtiment au frontispice arrondi, qui semble suspendu. Dans la salle principale d’une hauteur libre de 8,5 m, sol et plafond suspendu descendent parallèlement vers la chaire, ce qui se reflète en façade par la bande de fenêtres en escalier. La structure claire et simple de l’église lui confère une grande élégance, notamment grâce aux fins profils des fenêtres hautes et étroites et au plafond nervuré léger du vaste foyer, à partir duquel une aile latérale mène à chacune des affectations secondaires et aux volées de marches courbes.

Peu utilisée pendant des années, l’église accueille en 2012 un concert de l’Orchestre symphonique de Bâle. L’acoustique de la salle frappe alors tous·tes les participant·es, au point que l’idée d’un changement d’affectation prend naissance. En 2016, le Canton de Bâle-Ville acquiert ce bâtiment classé afin de le transformer en espace de répétition de musique. Beer Merz Architekten est sélectionné pour ce projet et réalise les travaux, en étroite coordination avec la conservation des monuments historiques. La plupart des bancs ont été retirés et un plateau horizontal a été installé au-dessus du sol en pente. Le ton clair du nouveau parquet en frêne, qui correspond à celui des anciens sièges de l’église, s’harmonise avec les couleurs de l’enduit mural texturé d’origine et du plafond suspendu existant à lattes de bois.

Comme le décrivait Salvisberg: «En superposant simplement les bois, sans aucune coupe, on obtient une bonne acoustique en combinaison avec le mur en béton, sans autre correction d’absorption.»1 Les faibles épaisseurs de bois suffisent à créer des plafonds de résonance. Pour raccourcir les temps de réverbération, des panneaux acoustiques supplémentaires ont été installés à côté de l’orgue, ainsi que des rideaux d’absorption mobiles, dans la galerie et à l’entrée. Pour la protection contre le bruit, les architectes ont installé des vitrages insonorisés en deux parties à l’intérieur, entre les piliers effilés et dans le bas des hautes fenêtres, afin de ne pas perturber l’harmonie de l’espace, et laisser la lumière pénétrer à travers le verre ancien coloré.

Texte original publié dans TEC21 31/2021. Traduit par TTN et résumé par Camille Claessens-Vallet.

Transformation de la First Church of Christ, Bâle (BS)

 

Maître d’ouvrage: Département de la construction et des transports de Bâle-Ville, urbanisme & architecture, service des bâtiments

 

Utilisateur: Orchestre symphonique de Bâle

 

Architecture: Beer Merz Architekten

 

Maître d’œuvre: Bauteam 05

 

Ingénierie civile: Schmidt + Partner

 

Réalisation: 2017-2020

Note

 

1 Otto Rudolf Salvisberg, tapuscrit Holz Vorlesung, in: Tobias Büchi, Conférences à l’ETH Zurich d’Otto Rudolf Salvisberg, (1940), avec la présentation d’Otto Rudolf Salvisberg «Konstruktion und Formenausdruck» en annexe, mémoire de diplôme de la chaire du Pr Dr Werner Oechslin, Zurich 2000, ETH Zurich online, p. 40.

Etichette

Articoli correlati