Spa­zi per tut­te le età

Architetti Tibiletti Associati AFRY Svizzera; Lurati Muttoni Partners Stefan Rotzler; LAND

Il Quartiere intergenerazionale di Coldrerio trasforma il Parco San Rocco in un bene comune urbano. Tra casa di riposo, centro polifunzionale e residenze, la piazza centrale e gli spazi intermedi sostengono prossimità, inclusione e reciprocità tra generazioni.

 

Data di pubblicazione
23-10-2025

Spaces for all ages english version 

Quartiere intergenerazionale, Coldrerio TI

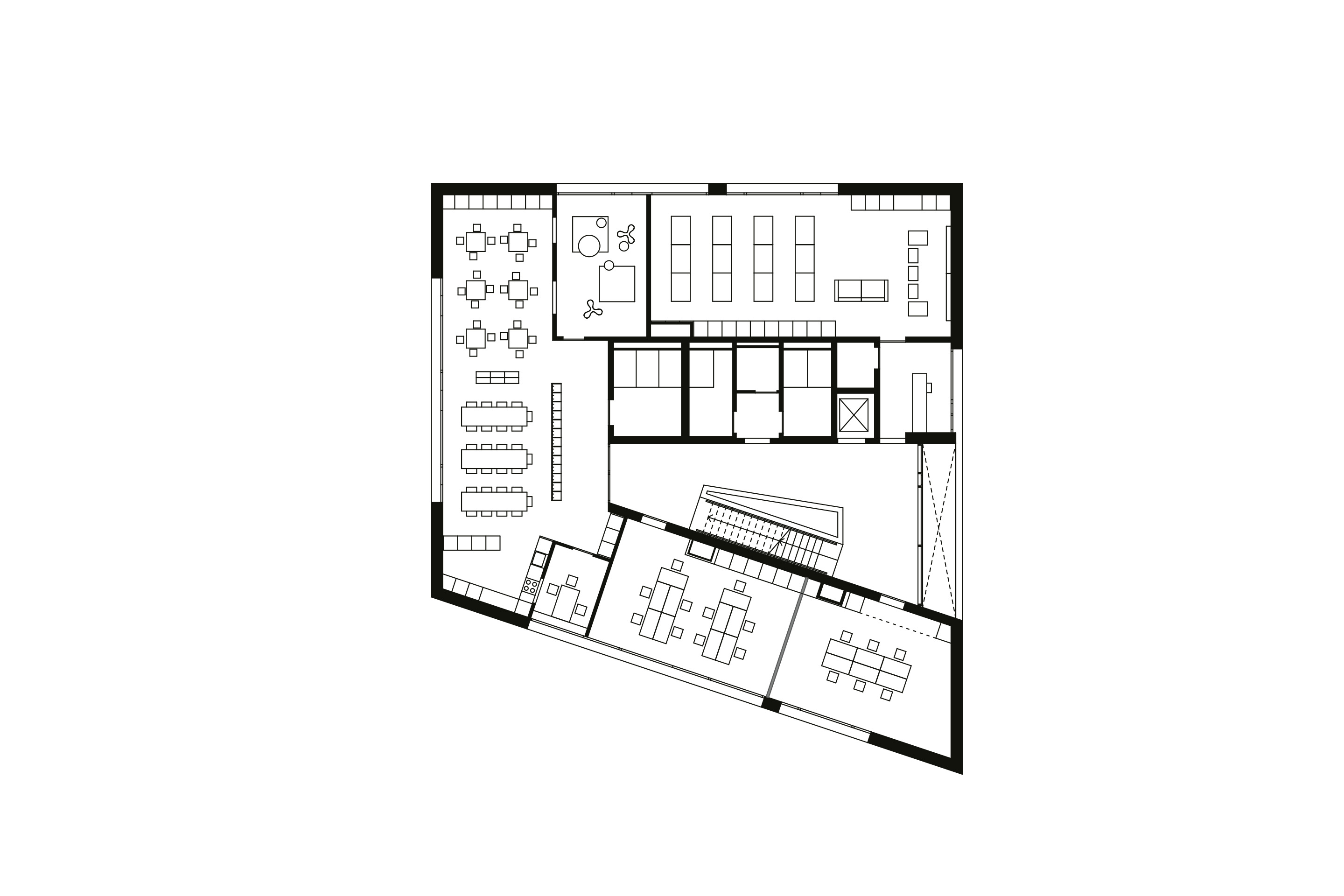
Il Quartiere intergenerazionale di Coldrerio è concepito come un bene comune urbano in cui l’architettura esercita cura attraverso prossimità, reciprocità e riconoscimento. Sviluppato all’interno del Parco San Rocco, il nuovo quartiere si estende su 14’000 mq e integra residenza, servizi e strutture comuni in un paesaggio civico coerente. Il programma si articola in tre edifici principali: una casa di riposo con 79 posti letto e servizi aperti anche al pubblico; un centro polifunzionale che ospita attività giovanili, eventi e programmi scolastici; un blocco residenziale di otto appartamenti pensati per anziani indipendenti. Insieme formano un insieme compatto, ma permeabile, collegato da percorsi pedonali e aperto verso uno spazio civico condiviso.

La piazza pubblica centrale costituisce il fulcro del progetto. Tutti gli edifici si affacciano su questo terreno comune, che funge sia da luogo d’incontro sia da tessuto connettivo, legando l’insieme al contesto urbano circostante. La piazza non è un accessorio, ma il cuore del quartiere, una scena per gli incontri quotidiani che collega generazioni e sostiene i ritmi collettivi della vita. La sua progettazione rafforza il principio di prossimità e accessibilità: residenti, visitatori e cittadini si muovono agevolmente attraverso le soglie, raggiungendo servizi, giardini e aree di aggregazione in pochi minuti a piedi. Percorsi pedonali attrezzati garantiscono la circolazione senza barriere, affermando l’accessibilità come diritto civico e non come semplice aggiunta tecnica.

La coesione spaziale è sostenuta da infrastrutture che favoriscono le relazioni. Cortili, logge coperte e gallerie semi-pubbliche creano una sequenza di spazi intermedi che intrecciano la vita privata con i programmi condivisi. Questi interstizi favoriscono incontri non pianificati: residenti che si soffermano sotto un portico, bambini che attraversano il percorso tra scuola e gioco, anziani che condividono panchine in cortili ombreggiati. L’architettura diventa tessuto connettivo, supportando la reciprocità tra generazioni senza prescrivere modalità di incontro.

Inviti materiali e simbolici traducono questa etica in forma tangibile. La differenziazione dei materiali distingue chiaramente funzioni pubbliche e private, mentre finiture calde, ingressi protetti e linee di copertura estese segnalano protezione e accoglienza. La trasparenza tra interni e spazi esterni aumenta la leggibilità, permettendo alla vita collettiva di essere visibile e dignitosa. La sostenibilità è affrontata attraverso scelte materiali attente e l’integrazione del paesaggio, collocando il quartiere non solo come bene comune sociale, ma anche ambientale.

Il progetto promuove inclusione sociale e solidarietà tra generazioni, rafforzando il senso di comunità. Più che un insieme di edifici, esso costituisce un’infrastruttura di cura, dove l’architettura sostiene la qualità della vita attraverso la prossimità, producendo profondità di relazione e offrendo riconoscimento simbolico. Il Quartiere intergenerazionale di Coldrerio dimostra come i quartieri possano essere progettati come ecologie di supporto: luoghi in cui nessuno è superfluo e l’abitare diventa una pratica civica condivisa.

  • Luogo Coldrerio 
  • Committenza  Fondazione Parco San Rocco, Morbio Inferiore; Comune di Coldrerio 
  • Architettura Architetti Tibiletti Associati SA, Lugano 
  • collaboratori C. Fumagalli, M. Corti, T. Biegger, D. Gatti 
  • Architettura del paesaggio  Stefan Rotzler, Gockhausen; LAND, Lugano 
  • Impresa Consorzio Barella-Medici, Chiasso 
  • Direzione lavori: Direzione Lavori SA, Lugano
  • Ingegneria civile AFRY Svizzera SA, Bellinzona; Lurati Muttoni Partners, Mendrisio 
  • Progetto impianti RVCS Rigozzi Engineering, Giubiasco; Studio Ingegneria Zocchetti SA, Lugano 
  • Progetto impianti elettrici  Piona Engineering SA, Manno; Elettroconsulenze Solcà SA, Mendrisio 
  • Fisica della costruzione IFEC Ingegneria SA, Bellinzona 
  • Illuminotecnica SPLD SA, Paradiso 
  • Geologia Consulenze Geologiche e Ambientali SA, Morbio Inferiore 
  • Fotografia Marcelo Villada Ortiz, Bellinzona 
  • Date concorso | competition 2015–2016 progetto 2016–2018 realizzazione 2019–2022 
  • Certificazione o Standard energetico (casa anziani) Minergie 2019 TI-594, CP (centro polivalente) Minergie 2019 TI-586 
  • Intervento e tipo edificio nuova costruzione
  • Categoria edificio (Ae) residential units MF 4327.4 m², amministrazione  813 m², ristoranti 939.2 m² CP (Centro Polivalente) scuole 904 m², amministrazione 610 m² 
  • Fattore di forma (Ath/Ae) multi-family housing 0.81, amministrazione 1.36, ristoranti 0.99 CP: scuole 0.91, amministrazione 1.84 
  • Riscaldamento 100% teleriscaldamento 
  • Acqua calda Collettori solari 70 m² 
  • Elettricità CA: Impianto fotovoltaico 251 m², 39 kWp, 
  • Produzione fotovoltaica annua 46.15 MWh/year CP: 105 m², 19 kWp, 
  • Produzione fotovoltaica annua 22 MWh/year 
  • Requisito primario involucro 62.2 kWh/m²a (limite: 63.0 kWh/m²a) CP: 56.4 kWh/m²a (limite: 59.1 kWh/m²a) 
  • Indice energetico complessivo (da certificazione) 171.8 kWh/m²a (limite: 173.7 kWh/m²a) CP: 32.8 kWh/m²a (limite: 37.0 kWh/m²a)