In­ge­gne­ria som­mer­sa

Il progetto integrato della foce del Cassarate

Data di pubblicazione
03-03-2022

Il progetto della Foce del Cassarate a Lugano è forse l’architettura dell’acqua più conosciuta e più utilizzata nel Cantone Ticino. Dal 2014, anno dell’inaugurazione, moltissimi abitanti della regione e turisti hanno fruito dell’ampia e straordinaria area di svago realizzata tra il parco Ciani e il circolo Velico. Si tratta di un progetto ambizioso, di qualità paesaggistica riconosciuta e senza precedenti nel territorio.

Le ragioni che hanno promosso la sua realizzazione sono chiaramente riconducibili al triplice fil rouge che lega questa pubblicazione, volta ad approfondire la sicurezza, la rinaturalizzazione e la fruibilità delle rive. Di questi tre aspetti, il più evidente e immediato è senza dubbio la fruibilità: è ciò che ha reso tale realizzazione così nota. In realtà le amministrazioni sono state motivate a investire proprio dagli altri criteri: la sicurezza e la rinaturalizzazione. Così, sotto l'aspetto qualitativo del paesaggio, si nasconde una serie di opere e studi, non visibili ma essenziali.

Il ponte pedonale, in precedenza più vicino al lago e accessibile grazie ad alcuni gradini, è stato rifatto spostandolo più a monte per favorire il flusso naturale del fiume. Contestualmente, è stato anche allungato e adattato, raccordando in maniera continua le due sponde, i cui frangibordi si trovano a due quote differenti. L’appoggio sul lato del parco Ciani si situa infatti a un’altezza inferiore rispetto a quello della sponda opposta poiché, in adiacenza, è stata realizzata una zona rinaturalizzata e inondabile – water garden. La scelta della forma della passerella, un traliccio monolitico realizzato in acciaio cor-ten, non è solo legata al tema estetico o a quello statico, ma anche all’utilizzo del ponte stesso che, di fatto, è una infrastruttura fluviale, in grado di rispondere alle diverse situazioni di piena del fiume. Così, come il Ponte Fola – realizzato nel 2010 pochi km più a monte – anche il ponte ciclo-pedonale della foce è sollevabile in caso di piena centenaria. Nel cavedio posto sulla sponda del lato lido, è stata installato un pistone meccanico azionabile manualmente, qualora un sensore posizionato a monte, e collegato alla centrale di pronto intervento, rilevi l’innalzamento eccessivo del livello del fiume.

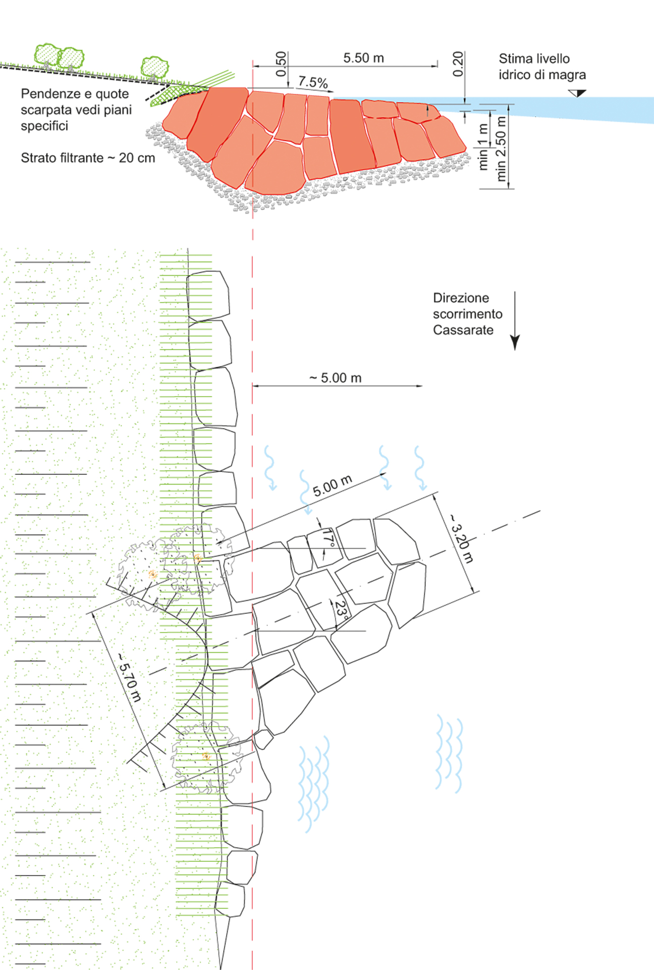
Ciò che è stato detto ci ricorda quanto sia delicato questo tipo di realizzazione e quanto, quella in esame, sia una infrastruttura sensibile, letteralmente in balia delle piene e dei movimenti dell’acqua che la colpiscono, la modellano e la sollecitano. Analogamente, ogniqualvolta il modello idrogeologico ha evidenziato potenziali cunei di scivolamento e erosioni degli argini, sono stati previsti dei micropali e degli ancoraggi, che hanno proprio la funzione di cucire il terreno e renderlo resistente agli impatti e ai movimenti legati al flusso idraulico.

Guardando poi la sezione esecutiva si notano diversi altri elementi, poco visibili dal molo o dalla passerella: si tratta dei massi, non solo disposti lungo l’alveo – pettini – o in determinati punti sulle sponde – pennelli – per deviare e controllare il flusso, ma anche posizionati sotto il dosso dal lato del parco, a formare una sorta di unghia, che ha la funzione di stabilizzare le zone a forte rischio erosione e la cui stratigrafia è stata opportunamente definita per evitare il dilavamento. Lo stesso dosso, realizzato solo sul lato città, protegge dalla piena e ne contiene l’acqua senza esserne eroso a sua volta. Il tutto grazie a una protezione tramite ciottoli e a un sistema vegetativo ad apparato radicale profondo.

Nulla è stato lasciato al caso e nulla ha una pura funzione ornamentale. Anche la foce stessa, nel punto in cui si immette nel lago, è stata allargata per ridurre il livello della piena, offrendo così contemporaneamente più spazio per la balneazione. Il risultato è visibile, utilizzabile e funzionale. Il tutto senza dimenticare che, al di là dell’aspetto paesaggistico e di godibilità dello spazio, tutte le infrastrutture legate a un elemento vivo e mutevole quale l’acqua necessitano costante monitoraggio e manutenzione, come giustamente previsto nei piani di gestione dell’opera.

Luogo: Lugano

 

Committenza: Città di Lugano e Cantone Ticino

 

Architettura del paesaggio: Officina del Paesaggio Sagl, Lugano

 

Ingegneria Civile: Passera & Associati SA, Lugano

 

Calcoli idraulici: Hunziker, Zarn & Partner AG, Domat/Ems

 

Biologia ambientale: Luca Paltrinieri, Lugano Geologia: Urs Lüchinger, Lugano

 

Impresa: Pervangher, Airolo

 

Pietra Naturale: Ongaro graniti SA, Cresciano

 

Date: concorso 2004, progetto 2004-2012, realizzazione 2012-2014

Etichette

Articoli correlati