Il fa­sci­no del­la fi­li­gra­na in una zo­na traf­fi­ca­ta

ll complesso residenziale di Buchegg sorge in una delle piazze più trafficate di Zurigo. Il nuovo intervento edilizio soddisfa i massimi requisiti di isolamento acustico ed efficienza energetica. Ma l’esterno è tutt’altro che una scialba facciata funzionale.

Data di pubblicazione
05-11-2018
Revision
20-11-2018

Il brusio dei motori e l’aria malsana aleggiano su Bucheggplatz. Oltre 2500 automobili, autobus, autocarri e tram attraversano ogni ora l’incrocio di Zürich-Oerlikon, nella City, diretti a Zürich-West o viceversa. Il quotidiano caos del pendolarismo è la diretta conseguenza delle politiche degli anni Sessanta del Novecento, quando lo sviluppo a misura d’auto era un imperativo auspicato per la vita urbana e la cultura del lavoro.

Oggi prevalgono gli aspetti negativi: chi abita nei pressi di questo nodo stradale deve sopportare rumore, polveri sottili e altri disagi, nonostante il sito sia stato acquisito, come nel caso della cooperativa ­edilizia Waidberg, prima dell’avvento del traffico motorizzato. La cooperativa costruì delle tipiche case a schiera del ­periodo prebellico sul margine sud di Bucheggplatz. Oggi gli edifici a tre piani hanno fatto posto a nuovi stabili, disposti a tenaglia. A vincere il concorso per il progetto sull’area di circa 2 ha, è stato lo studio zurighese Duplex Architekten.

Da inizio anno il sito ospita un insediamento di tre blocchi abitativi di sei-sette piani disposti intorno a un cortile. Una situazione critica è stata trasformata in una zona residenziale sontuosa, mantenendo però la sua vocazione sociale. Nonostante l’ampia volumetria, la densità del sito rispetta i parametri urbanistici. Il nuovo insediamento sorge leggermente rialzato e, visto dagli edifici più in basso, si afferma con vigore nello skyline urbano.

Vista sgombra a sud

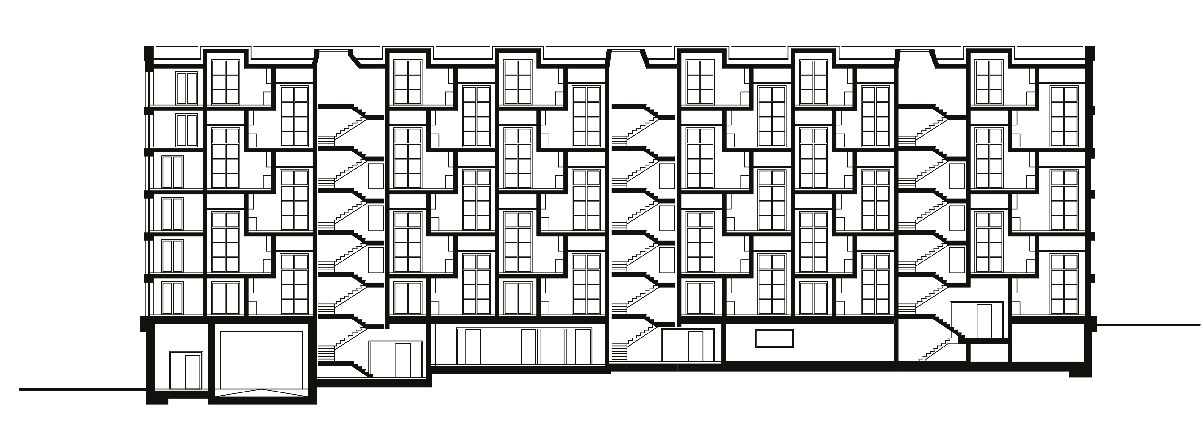
I tre edifici adempiono alla loro funzione principale grazie alla loro collocazione: la disposizione e le angolazioni consentono quella modifica urbanistica da tempo necessaria, proteggendo il cortile interno dal fragore circostante. Il centro residenziale di Buchegg è definito dal perimetro dei blocchi su tre lati: a sud il cortile e la vista restano aperti. Gli edifici presentano una facciata a ventaglio rivolta all’interno. A tutti i 110 appartamenti corrisponde un balcone con vista sul panorama urbano.


Sul lato esterno, i tre edifici risultano rigorosamente lineari. Le facciate lungo gli assi viari segnati dal forte pendolarismo sono però tutt’altro che chiuse, inespressive o scarne. Al contrario, sono filigranate: disegnate da nicchie e aggetti, con cornici sottolineate da scossaline metalliche color oro. La scelta di ricorrere a finestre molto alte e a nicchie cieche con gli sfondati colorati dona al complesso un’atmosfera dal sapore quasi mediterraneo. Il variegato motivo decorativo è supportato da una struttura variamente ritmata. Facciate così affascinanti non avrebbero forse meritato una posizione migliore, più centrale? In ogni caso, grazie all’esterno gradevole e al cortile interno rilassante, si supera ampiamente la media dei nuovi centri residenziali.

Densità in legno

Le facciate sul fronte strada convincono non solo per l’estetica, ma anche per l’isolamento acustico; celano soluzioni costruttive sorprendenti. La struttura degli edifici è un’ossatura massiccia, con pareti esterne costituite da elementi in legno ibridi e rinforzate da colonne in calcestruzzo poste all’interno, che sostengono anche i solai intermedi. Lo spessore medio delle pareti è di quasi 50 cm; gli elementi scatolari sporgono di 20 cm. I requisiti di un involucro termoisolante superiore alla media prescritti dal bando di concorso sono pienamente soddisfatti: la cooperativa Waidberg ha ottenuto la certificazione «Minergie-P». La prefabbricazione standardizzata e il rapido montaggio dei singoli elementi sono stati ulteriori vantaggi della produzione in legno. Nel nuovo complesso residenziale cooperativo, il materiale da costruzione ha convinto per la duttilità d’impiego nell’acustica, nella protezione dal rumore e dal calore, ma anche per la versatilità nell’utilizzo urbano per la densificazione edilizia. La vera sorpresa è però l’opulenta decorazione.

Cucine a due piani

Anche all’interno è bandita quell’austerità ormai consueta nei tanti complessi residenziali non profit. Le piante e l’allestimento degli appartamenti da 2-1/2 a 5-1/2 locali sono piuttosto lussuosi. Per queste tipologie di appartamenti, le superfici fino a 110 m² sono quantomeno generose. L’effetto spaziale, tuttavia, è un po’ sacrificato per via degli spigoli interni, risultanti in parte dalla disposizione dei vani interni e in parte dalle facciate a ventaglio rivolte sul cortile. Le «cucine insonorizzate» a doppia altezza sono invece di proporzioni straordinariamente riuscite.

Questa tipologia spaziale è stata progettata per disporre la maggior parte possibile dei vani a utilizzazione meno sensibile in corrispondenza delle facciate esposte al rumore. Un’analoga proposta innovativa con altezze extra era già stata introdotta da Duplex Architekten nel concorso per il centro residenziale urbano di Kronenwiese. In quell’occasione, Duplex Architekten non si aggiudicarono il mandato, ma la soluzione fu riproposta in occasione di questo progetto. Il decoro di ispirazione orientale contribuisce a riequilibrare l’ambiente, dati i volumi insoliti della cucina. Pur con tutto questo, la nuova costruzione della cooperativa Waidberg mantiene la promessa di uno spazio abitativo a prezzi vantaggiosi. Nel complesso residenziale di Buchegg, un appartamento di 4 1/2 locali costa circa 2000 franchi al mese.

 

Informazioni sul progetto

 

PARTECIPANTI AL PROGETTO
Committenza: Cooperativa edilizia Waidberg Zurigo
Architettura: Duplex Architekten, Zurigo
Direzione lavori: adp Architekten, Winterthur
Impresario costruttore / costruzioni in legno: Implenia, Dietlikon
Statico legno: Timbatec, Zurigo
Fisica della costruzione: Wichser Akustik & Bauphysik, Zurigo
Architettura del paesaggio: Studio

Articoli correlati