Ca­sa Mat­ter a Gor­do­la

Moro & Moro Architetti

Pur impiegato strutturalmente, nel progetto di Moro & Moro il legno si palesa solo negli interni; all'esterno è mascherato da un rivestimento in alluminio, così che l'edificio possa integrarsi in un contesto urbano dove tale materiale è assente.

Data di pubblicazione
05-12-2019

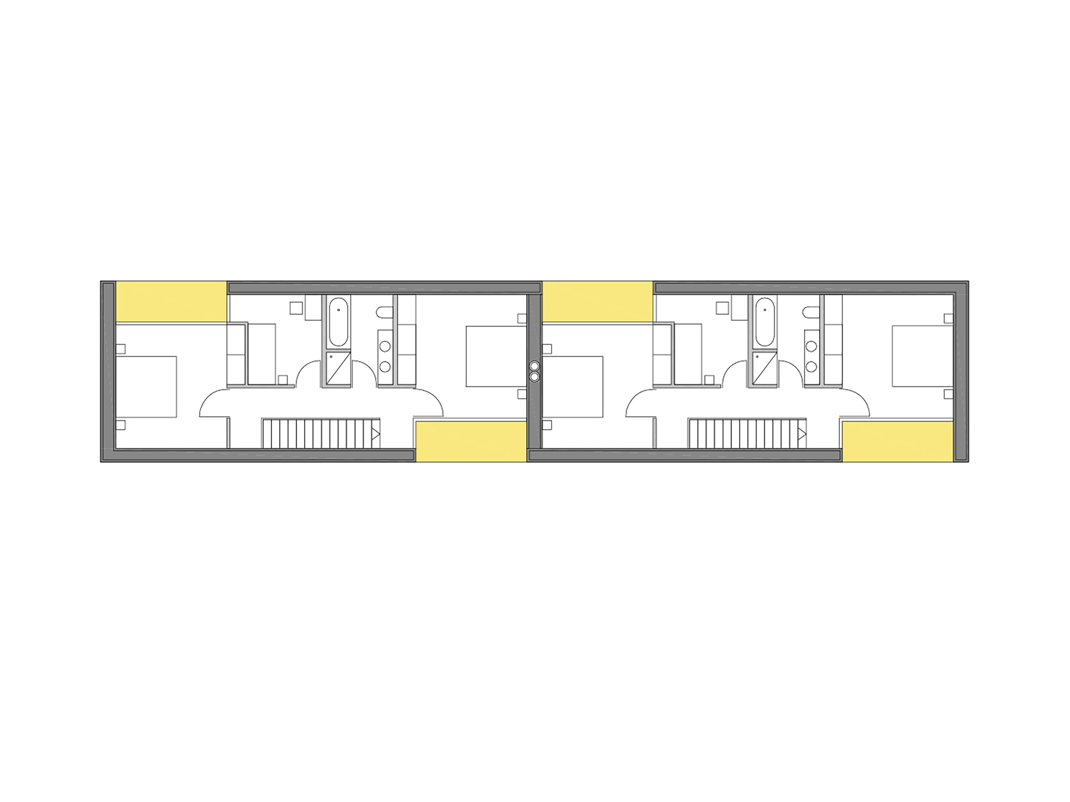
La doppia residenza è stata concepita in relazione alle caratteristiche del luogo. La situazione pedemontana con il declivio verso la strada cantonale e la ferrovia contrappone il panorama verso il piano con il disturbo fonico del traffico che scorre davanti alla proprietà.

Abbiamo proposto quindi una tipologia con due unità abitative in sequenza longitudinale, con traforature trasversali a loggia con profondità variabile, per consentire le viste diagonali verso il panorama a valle e a monte, e preservare gli spazi abitativi dal rumore e dalle intemperie.

La costruzione è realizzata con una struttura lignea prefabbricata con pareti a pannelli di OSB isolanti e solette in assito massiccio a vista. Il rivestimento esterno dell’involucro ventilato è costituito da lamiere pieghettate di alluminio che proteggono dagli agenti atmosferici.

L’architettura che ne deriva è caratterizzata da un impiego strutturale del legno percepibile esplicitamente all’interno, ma non ostentato all’esterno in un paesaggio dove il legno è assente dalla tradizione edilizia locale.

Quindi, come per i serramenti assemblati della produzione industriale, si può esprimere il concetto architettonico di edificio in legno-alluminio.

Luogo Gordola

Committenza Gloria e Gerold Matter, Gordola

Architettura Moro & Moro Architetti, Locarno

Collaboratori F. Albi, F. Turuani

Progettista struttura in legno Elisabetta Gaioni e Martin Hügli/Laube SA, Biasca; Impresa Rofer SA, Gordola

Ingegneria civile Rofer SA, Gordola

Progetto facciate Laube SA, Biasca

Progetto impianti RVCS Gilardi Sandro Ing. Dipl., Giubiasco

Progetto impianti elettrici Elettricità Bronz SA, Tenero

Fisica della costruzione EcoControl SA, Locarno

Fotovoltaico Elettricità Bronz SA, Tenero

Illuminotecnica Elettricità Bronz SA, Tenero

Progetto serramenti Regazzi SA, Gordola

Fotografia Zoe Moro, Verscio

Date progetto 2013, realizzazione 2014-2015

Intervento e tipo edificio costruzione nuova, casa bifamiliare

Riscaldamento pompa di calore aria-acqua (2)

Acqua calda pompa di calore aria-acqua (2)

Particolarità edificio principale costruito mediante struttura prefabbricata in legno e materiali a secco (sottofondi, pareti interne, finiture).

«Archi» 6/2019 può essere acquistato quiQui puoi invece leggere l'editoriale con l'indice del numero.

Etichette

Articoli correlati