Vom De­ba­kel zum Drei­tei­ler

Neubau Schwimmbad Lido, Rapperswil-Jona; Projektwettbewerb im selektiven Verfahren

Mit dem neuen Schwimmbad Lido in Rapperswil-Jona wollte es bisher nicht so ganz klappen. Doch nach mehr als einem Jahrzehnt des Hin und Her scheint nun ein grosser Schritt getan. Für den Ersatzneubau des desolaten Bestands schlagen Peter Moor / raderschallpartner eine stringente Lösung vor.

Date de publication
06-06-2024

Es scheint wie verhext: Seit bald zwölf Jahren zerbrechen sich unzählige Leute den Kopf über das Lido-Areal – und doch steht dort bis heute kein neues Schwimmbad.

Aber von vorne: Das Bad wurde 1954/55 erbaut und hat sich im Lauf der Jahrzehnte von einer Liegewiese mit Gartenbad zu einer multifunktionalen Sportanlage mit Eisbahn gemausert. Im Jahr 2007 deckte eine Bestandsaufnahme zahlreiche bauliche Mängel, wie zum Beispiel den schlechten Zustand der Badewassertechnik, am Schwimmbad auf. Ein Projektwettbewerb für einen Neubau im Jahr 2012 blieb Theorie – zu unterschiedlich waren die Nutzerinteressen. Daraufhin gab der Stadtrat ein Entwicklungskonzept für das gesamte Areal in Auftrag, den «Masterplan Lido 2015».

2018 bemängelten Fach­leute erneut den schlechten Zustand des bestehenden Bads, der Weiterbetrieb sollte aber bis zum Start des geplanten Neubaus geduldet werden. Noch im selben Jahr stimmte die Bevölkerung dem Baukredit für das Siegerprojekt «Blitz» zu. In der Ausführungsplanung zeichneten sich jedoch massive Kostenüberschreitungen ab, das Projekt wurde 2020 kurz vor Bau­beginn gestoppt – und die Badi wieder geöffnet. Die Stadt musste in die Badewassertechnik investieren und die maximale Besucherzahl pro Tag deckeln, um die Wasserwerte zu erhalten. Doch damit nicht genug: ­Statische Gutachten wiesen 2020 aufgrund massiver Risse und eindringendem Wasser eine bestenfalls zweifel­hafte Trag­sicherheit nach. Ein Gutachten blieb unter Verschluss, ein zweites wollten die ­Verfassenden nur anonym veröffentlichen. Der Einsturz des Schwimmbads sollte nun durch 250 Spriessen im Untergeschoss verhindert werden. Die dringende Empfeh­lung lautete: Ausserbetriebnahme und Rückbau.

Der «temporäre» Ausnahmezustand wurde zwar zähneknirschend für die Badesaison 2021/22 verlängert, doch gegen Ende der Saison konnten die Gutachtenden den Betrieb wegen der «weit fortgeschrittenen Korrosion der Bewehrung» nicht mehr verantworten – das Bad blieb 2023 geschlossen. Da sich die Bevölkerung 2021 in einer Umfrage mit 86 % für die Sanierung ausgesprochen hatte, wurde eine entsprechende Studie in Auftrag ­gegeben – den Projektkredit lehnte das Volk jedoch ab. Das Argument eines schnelleren Verfahrens ebnete schlies­slich den Weg für einen weiteren Projektwettbewerb.

Dreiteilung und wenig Aushub haben ­Oberwasser

Inzwischen sind wieder neue Nutzungsabsichten hinzugekommen, sodass der Stadtrat eine übergeord­nete Sportstättenplanung in die Wege geleitet hat. Neu soll sich der Eis- und Wassersport auf dem ­Areal Lido konzentrieren. Auf dieser Basis organisierte die Stadt 2022 einen Studienauftrag für das gesamte Areal, der wiederum die Grundlage für die Überarbeitung des Masterplans bildete.

Erster Baustein: das neue Schwimmbad Lido. Für den selektiven Projektwettbewerb mit Prä­qualifikation bewarben sich 37 Teams. Davon wurden 13 zugelassen, darunter ein Team aus der Kategorie «Nachwuchs». Neben dem Entwurf für ein neues Hallen- und Freibad mit Aussenanlagen sollten die Teams auch die öffentlichen ­Flächen zwischen Freibad und See als erweiterte Liegewiese miteinbeziehen. Die Anlage sollte sich zudem für den Schulsport eignen, damit die Stadt auf den Weiterbetrieb und die damit verbundene Gesamtsanierung der bestehenden Bäder  der Schulhäuser Hanfländer und Schachen verzichten kann.

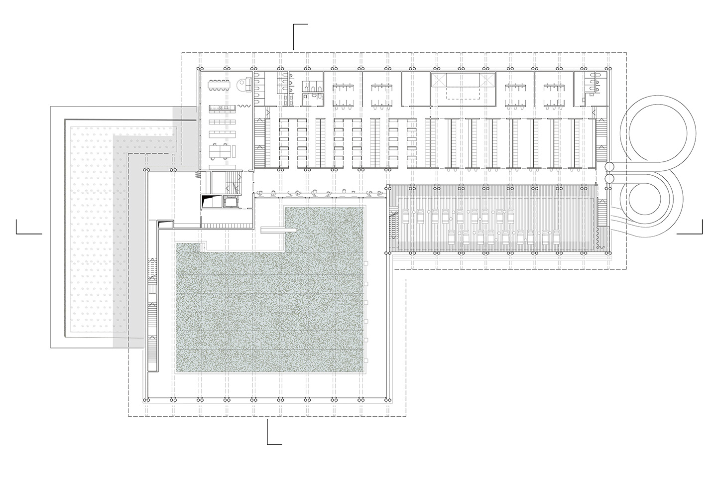
Gewonnen hat das Team von Peter Moor und raderschallpartner mit dem Projekt «Dreiteiler». Der Name ist Programm: Das Schwimmbad besteht aus drei harmonisch gefügten Volumen, die geschickt in die Umgebung zwischen Wohnbauten und Eishalle gesetzt wurden. Die Dreiteilung des Baukörpers gibt unmittelbar Aufschluss über seine innere Organisation und die clevere Wegeführung im Gebäude überzeugte die Jury. Die Staffelung bricht einerseits optisch die Gebäudelängen und ermöglicht andererseits die Verzahnung des Hallenbads mit dem Aussenraum.
Die «neue Fuge», wie der Freiraum im Jurybericht bezeichnet wird, setzt sich zum See hin als von vielen Bäumen begleiteter Strandweg fort und zeigt damit ein langfristiges Denken in Bezug auf den Masterplan.

Das Siegerteam berücksichtigt aber auch den Grundwasserspiegel des Sees und hebt das Erdgeschoss mit den Hallenbadbecken an. Damit reduzieren die Planenden nicht nur den Aushub und sparen Baukosten, sondern punkten mit ihrem kompakten «Dreiteiler» auch in Sachen Nachhaltigkeit. Der geschickte Umgang mit der Topografie zeige sich aber auch in der Gestaltung des Freibads und zelebriere das Programm auf landschafts­archi­tek­to­ni­scher Ebene, so die begeisterte Jury.

Kompakt, kompakter,  Nido – und doch zu gross

Das zweitplatzierte Projekt «Nido» spielt mit der Setzung in der nordwestlichen Ecke des Projektperimeters eine maximale Aussenfläche frei. Das Team von Armon Semadeni Architekten und Uniola platziert zudem das Aussensportbecken direkt neben dem Hallenbad.

Im Gegensatz zum filigranen Siegerprojekt tritt «Nido» selbstbewusst auf und kann sich gegenüber der Eishalle besser behaupten. Die unverwechselbare Architektursprache wirke aber keineswegs fremd, da sie mit Materialien und Elementen aus der Umgebung aufgeladen sei, so die Jury. In weiser Voraussicht der kommenden Veränderungen auf dem Areal führen die Planenden die Zugangsachse zum Hallenbad weiter und schaffen gleichzeitig eine Verbindung zum Uferweg.

Allerdings funktioniert der Entwurf im Winter viel besser als im Sommer: Der Zugang zum Freibad erweist sich als Nadelöhr – bis zu 2000 Personen täglich hätten erst durch den Innenbereich ins Freie geschleust werden müssen. Die Jury lobte hingegen die Sichtbezüge und Raumachsen, die das Team trotz der tiefen Grundrisse entwickeln konnte, sowie die hohe architektonische Qualität. Trotz seiner kompakten Anordnung weist «Nido» im Vergleich zu den anderen drei rangierten Beiträgen das umfangreichste Volumen und die grösste Fläche auf und ist damit der teuerste Entwurf. Der fast quadratischen Form kann durchaus eine gewisse Introvertiertheit zugeschrieben werden.

Mit «Dreiteiler» hat sich die Jury für ein Projekt entschieden, das sowohl im Innenraum als auch im Freiraum klar überzeugt. Die Fassadengestaltung wird im Jurybericht zwar als wenig «robust» bezeichnet – doch es stellt sich die Frage, ob sich das Hallenbad durch sein Äusseres überhaupt gegen die Eishalle behaupten kann und muss – oder ob es nicht vielmehr durch seinen feingliedrigen Charakter einen Gegenpol setzen darf.

Das Tempo ist hoch, bereits im September soll der Urnengang stattfinden. Ob der Baukredit diesmal durchkommt, wird sich im Juni zeigen. Notfalls könnte sich der Gemeinderat auch eine Variante ohne Hallenbad vorstellen. Doch bis das Bad steht, werden noch einige Bade­saisons ins Wasser fallen: Frühestens 2029 wird im Lido wieder geplanscht und gekrault.

Jurybericht, Pläne und Bilder auf competitions.espazium.ch

Rangierte Projekte

1. Rang, 1. Preis: «Dreiteiler»
Peter Moor, Zürich / raderschall­partner, Meilen; Synaxis, Zürich; Kannewischer Ingenieurbüro, Zug; Gartenmann Engineering, Zürich
2. Rang, 2. Preis: «Nido»
Armon Semadeni Architekten, Zürich / Uniola, Zürich; dsp Ingenieure + Planer, Uster; Meierhans + Partner, Schwerzenbach; JOP Josef Ottinger + Partner, Rothenburg; Staubli, Kurath & Partner, Zürich
3. Rang, 3. Preis: «Yara»
Bollhalder Walser Architektur, Zürich / ASP Landschaftsarchitekten, Zürich; Borgogno + Eggenberger + Partner, St. Gallen; Zlatko Spahic / Gode, Zürich; Wirkungsgrad Inge­nieure, Luzern
4. Rang, 4. Preis: «Elma»
Morger Partner Architekten, Basel / Stauffer Rösch, Basel; Schnetzer Puskas Ingenieure, Basel; Martini Schäfer, Basel

Fachjury

Bettina Neumann, Architektin, Zürich; Cornelia Mattiello-Schwaller, Architektin, Zürich; Lukas Schweingruber, Landschaftsarchitekt, Zürich; Maria Viñé, Mitglied Stadtbildkommission, Landschaftsarchitektin, Zürich (Ersatz)

Sachjury

Christian Leutenegger, Stadtrat; Ressortvorsteher Bau, Liegenschaften (Vorsitz); Tanja Zschokke Gloor, Stadt­rätin
 

Magazine

Sur ce sujet