Elys, Ba­sel

Prix SIA Shortlist 2024

Date de publication
23-02-2024

Architektur: baubüro in situ, Zürich
Bauingenieurwesen: Jauslin + Stebler, Muttenz

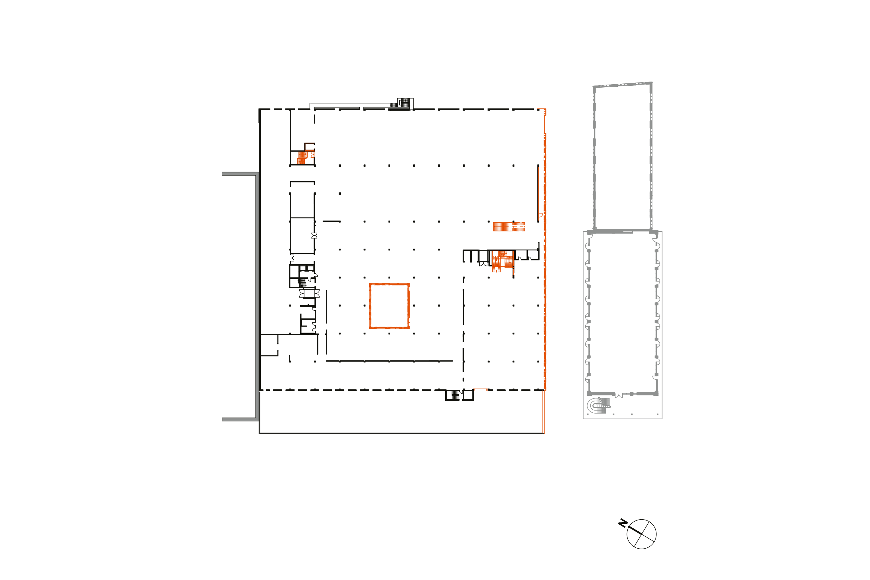
Bei der Umnutzung des Kultur- und Gewerbebaus Elys durch baubüro in situ in Kooperation mit dem Fach­planungsbüro Zirkular stand die Kreislaufwirtschaft im Mittelpunkt. Das bringen die 200 «Lagerfenster» in unterschiedlichen Farben, Formen und Materialien gut zum Ausdruck.

In situ trennte das ehemalige Coop-Verteil­zentrum städtebaulich vom Lagergebäude, an das es angebaut war, und baute es um zwei Achsen zurück. Sowohl die neu entstandene Südostfassade entlang der autofreien Gasse als auch ein neuer Lichthof im Kern gewähren dem Gebäude mit einer Grundfläche von 88 m × 86 m mehr natürliches Licht. Die vertikale Gliederung der neuen Ostfassade nimmt Bezug auf die bestehenden Fassaden des Gebäudes. Die neuen Dachaufbauten konnten mit demontiertem Trapezblech des ehemaligen Coop-Weinlagers umgesetzt werden. So kamen 2000 m² Trapezblech direkt vom Areal ein zweites Mal zum Einsatz. Für die neuen Aussenwände in Holzrahmenbauweise fanden die Bauteiljäger Pfetten, Sparren und Leimbinder auf umliegenden Baustellen. Im Projekt Elys machen sie 40 % der Holzrahmen aus. Die Holzrahmenbauelemente des Gebäudes sind mit Steinwolldämmresten gefüllt, die auf nahen Baustellen gesammelt wurden. Durch den Erhalt der industriellen Struktur und die Wiederverwendung von Bauteilen konnte viel graue Energie gespart werden.

Die Mieterinnen und Mieter durften den Innenausbau selbst bestimmen und beliessen die Oberflächen oft im rohen Zustand, um den industriellen Charme zu zelebrieren. Im Erdgeschoss haben sich inzwischen Läden, Produktionsstätten und ein Café eingefunden – im Obergeschoss befinden sich eine Boulderhalle, Ateliers und zwei Sporthallen für die benachbarte Grundschule.

Weitere Informationen zum Projekt:
prixsia.ch/elys


Lesen Sie auch:
Zir­ku­lär-Hy­bri­de

Weitere Beiträge zum Prix SIA 2024 finden sich in unserem digitalen Dossier und unter prixsia.ch

Étiquettes

Sur ce sujet