Luca Selva ar­chi­tek­ten, si­tua­tions bâ­loises

A Bâle, extraordinaire laboratoire de l’avant-garde architecturale depuis les années 1980, la dernière décennie est marquée par l’intense production du bureau Luca Selva Architekten. Au milieu du parfois troublant vacarme bâlois empreint de désirs de performances et d’exploits formels, le travail de l’architecte bâlois est intimement relié aux conditions urbaines de sa ville.

Date de publication
07-01-2016
Revision
07-01-2016

Lorsqu’on lui demande quel bâtiment il conseille de visiter à Bâle, Luca Selva recommande en premier lieu l’immeuble de bureau Steinentorberg réalisé par Diener & Diener en 1990, situé dans le même îlot que le bureau de l’architecte, dans le quartier de la gare. Le bâtiment d’angle longe sur son plus petit côté une rue fortement en pente et traversée par une ligne de tramway. Parallèlement à sa grande façade, un imposant pont routier dessine un nouveau sol de référence aligné au niveau haut du soubassement de l’immeuble. Le bâtiment appartient si intimement à son contexte urbain qu’il est impossible de prédire qui de lui ou de l’infrastructure routière précède dans le temps. L’attachement de Luca Selva à sa ville est ensuite plus explicite lorsqu’il recommande de découvrir Am Viadukt, un immeuble de logements réalisé par l’architecte bâlois Rudolf Linder en 1915. L’impressionnant bâtiment se pose au pied du zoo de Bâle et déroule fièrement sa façade le long du viaduc routier voisin et face aux infrastructures ferroviaires de l’autre côté du parc. La présence de l’immeuble dans son site dégage une rare impression d’inhérence d’une architecture envers sa ville. Les deux immeubles visités sont des réponses précises aux données changeantes des sites qui les abritent. C’est cette «exactitude» que recherche Luca Selva dans ses réalisations: le rêve d’immanence d’un bâtiment avec ses conditions urbaines.

Typologie spécifique1 

Dans le Gellertpark, un quartier dominé par des villas bourgeoises et enclavé au cœur de la métropole bâloise, un surprenant bâtiment de logement se niche à l’intérieur d’un jardin planté de grands feuillus: quatre dalles en béton blanc soutenues par de fins poteaux périphériques semblent émerger des feuillages. La géométrie irrégulière des plateaux résulte du dessin du périmètre légal constructible dont sont soustraites les emprises circulaires des houppiers des arbres préservés. En contraste à cette géométrie irrégulière, à l’intérieur, deux murs porteurs parallèles contiennent le hall commun et l’escalier distributif des appartements. Si le plan de l’immeuble est à l’évidence une déduction exacte des données du règlement et du site, sa géométrie rappelle fortement un immeuble de logement bâlois réalisé en 1908 dans la Ahornstrasse par Rudolf Linder. Dans le projet au Gellertpark, la forme architecturale peut s’expliquer par un raisonnement déductif des données particulières du site, mais aussi d’une façon plus référentielle. Les deux compréhensions du projet se complètent. L’exacte réponse voulue par l’architecte aux données spécifiques du site se superpose à un référencement architectural plus discret, mais tout autant tiré de sa ville. 

Membranes résonnantes
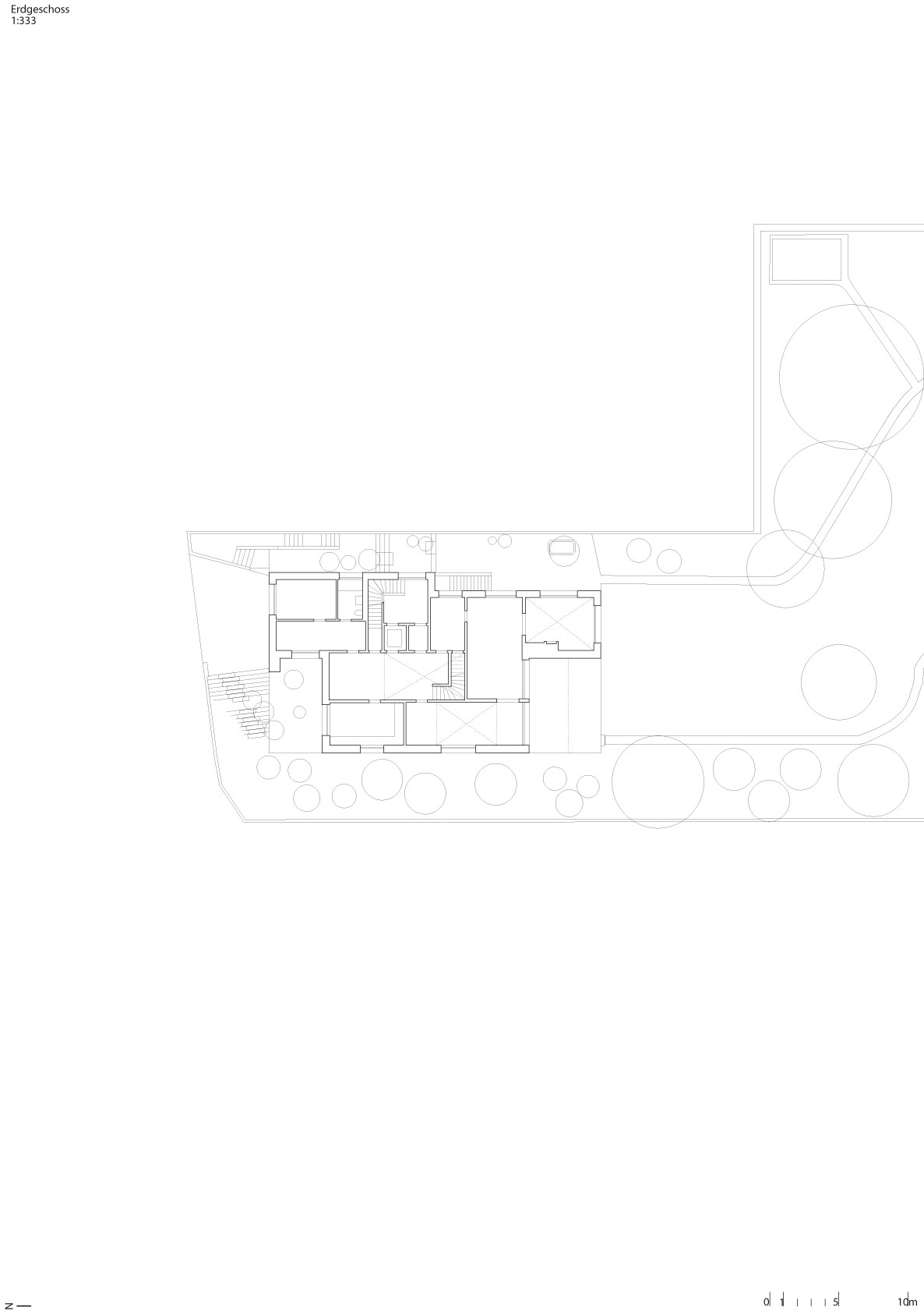
La résonance entre l’architecture de Luca Selva Architekten et sa ville est encore plus explicite dans le projet de home multigénérationnel réalisé dans le quartier de Binningen sur un terrain en situation de promontoire dominant l’agglomération bâloise. L’Architektur Galerie Berlin a récemment exposé une série de photographies prises à partir des fenêtres du bâtiment2. L’exposition met l’accent sur le dispositif architectural du projet consistant en une disposition précise des ouvertures en fonction des vues vers les paysages de la ville et du parc environnant. Sur le vitrage, le reflet des espaces intérieurs se superpose aux vues vers l’extérieur. Dans l’exposition berlinoise, cet effet de surimpression des paysages intérieurs et extérieurs est à son comble grâce au support vitré sur lequel sont imprimées les images: en plus du double paysage de Binningen, l’espace de la galerie se reflète sur le verre. La fine membrane vitrée concentre les multiples relations de l’architecture avec son milieu. De la même façon, Luca Selva Architekten envisage les enveloppes de ses bâtiments comme une membrane réflexive qui concentre en elle les données du projet. Dans le projet de Binningen, c’est dans le vitrage des fenêtres que transparaissent ces résonances. Pour l’immeuble de logement réalisé sur la Hegenheimerstrasse, c’est toute la peau du bâtiment qui réagit comme une membrane résonnante. Dans le quartier de Kannenfeld situé à quelques encablures de la frontière française, un immeuble en forme de T se pose au centre d’une cour entourée d’immeubles de différentes époques. Dans cet ancien résidu urbain utilisé pour la maintenance des rues de Bâle, un volume en béton clair s’implante face au fragment d’une construction datant du 19e siècle. En réponse au mur pignon et aveugle, les ouvertures sont placées au nu intérieur de l’enveloppe, accentuant ainsi l’effet d’une masse solide et pérenne. La forme en T est complétée par un volume entièrement recouvert d’une résille en cuivre avec les fenêtres fixées en léger débord du nu extérieur. Par contraste avec le premier, la peau de celui-ci apparaît foncée, tendre et changeante. Le volume s’imprègne de la disparité architecturale de l’intérieur de l’îlot. A Kannenfeld, le dispositif urbain des cours ouvertes dessine la morphologie du quartier et dans l’une de ces cours, ancien délaissé urbain, la peau du bâtiment fonctionne comme une membrane sensible qui concentre les particularités du lieu qui l’abrite. 

Situations précises

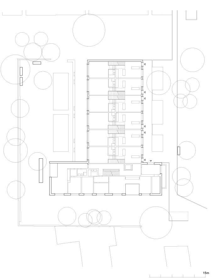
C’est en ces termes que Luca Selva décrit son processus de conception: «Nous recherchons le particulier dans le projet et nous essayons d’être le plus exact possible par rapport aux données du site et à toutes les conditions qui forment le projet.» Cette exactitude conceptuelle doublée d’une sensibilité précise pour sa ville se traduit d’une autre façon dans le projet Densa-Park. Les deux immeubles de logement se situent à Kleinhüningen, un quartier voisin de la frontière allemande enserré entre le Rhin et la Wiese. Dans un environnement urbain où se dispersent sans ordre apparent des immeubles de logement, des bureaux et un centre commercial réalisé par Diener & Diener, les deux barres en brique apparente sont librement disposées à l’intérieur d’un îlot ouvert. La première forme un front bâti sur l’unique rue qui dessert l’îlot et la seconde se déploie en direction de la rivière. Plutôt que de rechercher un ordonnancement du site, les barres se plient librement sans vouloir à tout prix reconstituer une unité urbaine d’ensemble. Le choix de l’implantation des deux bâtiments dévoile l’intérêt de la dispersion urbaine environnante. Depuis l’intérieur de l’îlot, des vues obliques s’ouvrent indifféremment vers la Wiese ou encore vers les immeubles revêtus de briques et l’équipement commercial voisin. 

L’inhérence des projets de l’architecte bâlois dans leur milieu urbain résulte des dispositifs architecturaux qu’il met en place de la manière «la plus exacte possible» en réponse aux données spécifiques à chaque projet. Cette relation intime qu’entretient l’architecture avec sa ville ne peut pas être rapprochée de la notion de «Stimmung», terme qu’auraient volontiers employé ses collègues bâlois. Luca Selva se positionne dans une perspective moins encline aux retours historiques et postures hérités de l’enseignement postmoderne popularisés à l’Ecole polytechnique fédérale de Zurich depuis les années 19703. Il oppose l’idée de «Genaue». Pour chacun de ses projets, cette quête d’exactitude propose une architecture qui répond précisément aux complexités des situations urbaines d’une métropole contemporaine, en l’occurrence Bâle. Les données réglementaires d’un terrain dans le quartier de Gellertpark dessinent littéralement la géométrie du bâtiment. A Binningen, le projet de home multigénérationnel fonctionne comme un dispositif photographique qui se projette vers les paysages extérieurs et les superpose avec les reflets des espaces intérieurs sur une fine membrane vitrée. Les particularités d’une cour urbaine délaissée dans le quartier de Kannenfeld caractérisent précisément la peau du bâtiment qui s’y insère. Enfin, l’hétérogène disparité d’une frange urbaine à Kleinhüningen est prolongée – et même par moment accentuée – par la disposition libre des deux barres de logements. Ensemble, les réalisations de Luca Selva Architekten fonctionnent comme un révélateur de la complexité de la métropole bâloise, oscillant constamment entre la permanence des empreintes urbaines et architecturales de la ville et les données changeantes de chaque situation de projet.


Notes

1. SpecificTypolgies est le titre d’une exposition de Luca Selva Architekten qui s’est tenue dans le Palazzo Bembo, lors de la Biennale d’architecture de Venise de 2014. L’exposition s’inscrivait dans le thème général proposé pour la biennale par son curateur Rem Koolhaas, Fundamentals.

2. Eight Windows est une exposition qui s’est tenue à l’Architektur Galerie de Berlin entre le 30.10 et le 12.12.2015. L’exposition présentait cinq images du photographe Yohan Zerdou prises dans le home multigénérationnel réalisé par Luca Selva Architekten en 2013.

3. A l’Epfz, suite au passage entre 1972 et 1975 de Aldo Rossi en tant qu’enseignant invité, les professeurs Miroslav Sik et Fabio Reinhart notamment ont enseigné et diffusé l’architecture analogue. Une grande partie des architectes zurichois et bâlois sont passé par cet enseignement. Au début des années 1990, Luca Selva était étudiant, diplômé et ensuite assistant du professeur Dolf Schnebli.

Sur ce sujet