Güns­tig woh­nen in Vol­ta­Nord

Stadtbaustein VoltaNord – Baufeld 5, Basel/ Neubau Wohnüberbauung

Für das Wohnbauprogramm «1000+» sollen im Basler Entwicklungsgebiet VoltaNord preisgünstige Wohnungen entstehen. Der Wettbewerbsbeitrag der ARGE Jonger Waeger setzt sich mit einem soliden Lärmschutzkonzept, einer effizienten Erschliessung und einer überzeugenden Architektur durch.

Date de publication
02-06-2022

Einstufiger anonymer Projektwettbewerb im offenen Verfahren

Das Entwicklungsgebiet Volta­­Nord zwischen der Bahn­trasse von Basel nach Mulhouse, der Elsässerstrasse und der französischen Grenze soll mit einem Bebauungsplan von einem Indus­triestandort zu einem «durchmischten und lebendigen Stadtteil» des St.-Johann-Quartiers werden. Der nördliche Teil verbleibt in der Industrie- und Gewerbezone und wird durch ruhiges Gewerbe und Dienstleistungen vom Süden mit Schwerpunkt auf Wohnnutzung abgetrennt. Im Westen, in einem Spickel entlang den Gleisen, wird der «Saint-Louis-Park» mit einer Naturschutzzone entstehen (TEC21 7/2022). Im Süden, an der Schnittstelle zum bestehenden Quartier, ist der Lysbüchelplatz geplant.

Zwischen diesem neuen Quartierplatz und der Elsässerstras­se im Osten liegt der Wettbewerbs­perimeter für die neue Überbauung. Dort wird im Rahmen des Wohnbauprogramms «1000+» preisgünstiger Wohnraum entstehen. Dieses Ziel soll mit einer hohen Ausnutzung, effizienten Grundrissen und einer einfachen Bauweise erreicht werden. Die Wohnungen müssen aber nicht nur wirtschaftlich sein, sondern auch hohe Ansprüche an eine soziale und ökologische Nachhaltigkeit erfüllen. Von den am Wettbewerb teilnehmenden Teams wurden «ganzheitliche und innovative Entwurfs-, Konstruktions- und Materialkonzepte unter Einbezug der Gebäudetechnik und der Vegetation» erwartet.

Lärmriegel

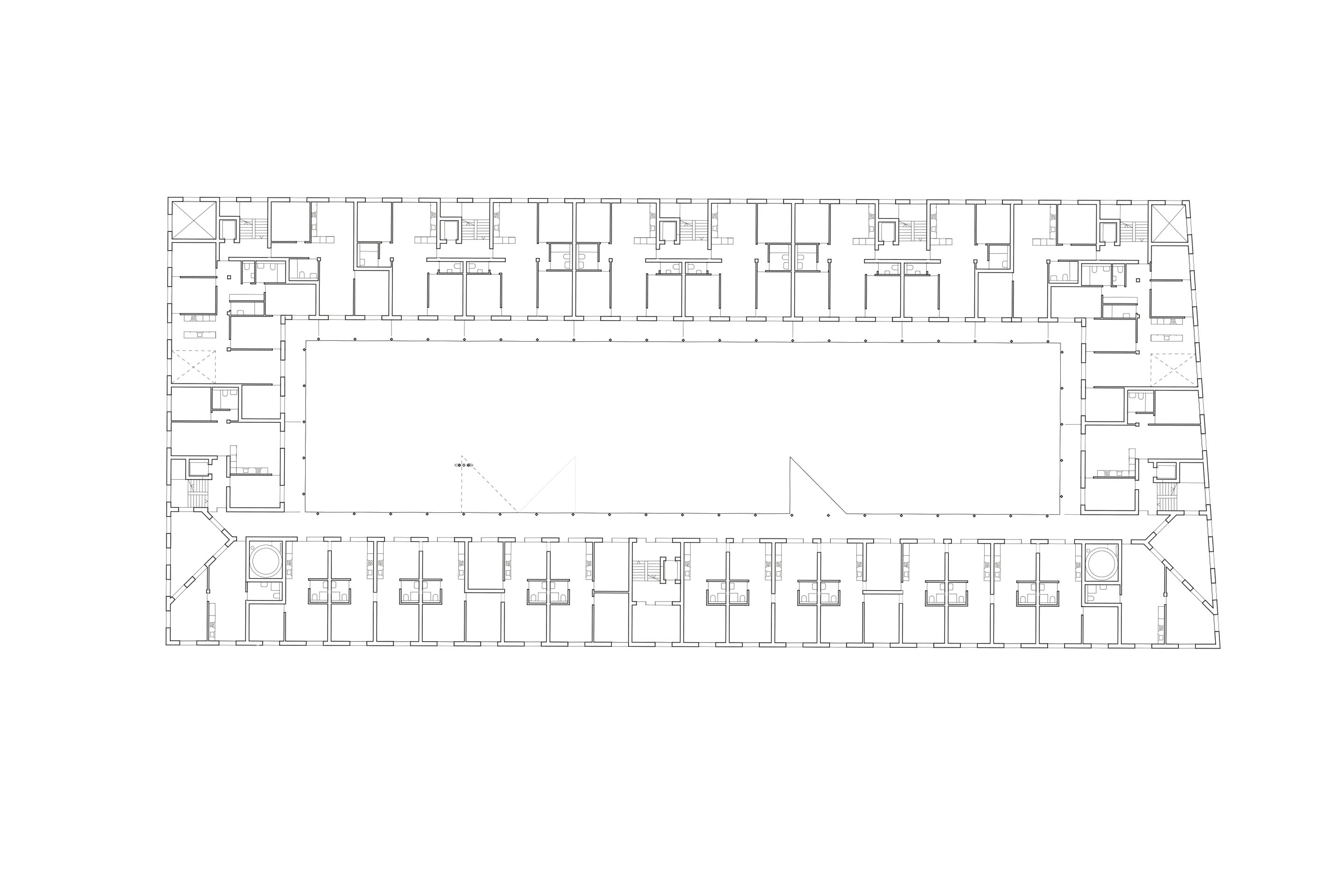
Die Jury empfiehlt einstimmig den Beitrag «Vita Volta» der Arbeitsgemeinschaft Jonger Waeger Architekten/-innen zur Weiterbearbeitung. Das Projekt sieht einen 30 m hohen Riegel im Norden vor, an den vier niedrigere Querriegel andocken. So entstehen drei gut proportionierte, gegen Süden offene Höfe. Dieses einfache Konzept reagiert differenziert auf die unterschiedliche Umgebung. Im Norden zur Primarschule nimmt ein eingeschossiger «Gebäudefuss» mit Ateliers und Nebenzugängen die Massstäblichkeit des Bestands auf. Im Westen zum neuen Lysbüchelplatz hingegen schliesst ein acht­geschossiger Querriegel die Wohnüberbauung adäquat ab. Der Hauptzugang zu den Wohnungen erfolgt konsequent über die drei Zugangshöfe im Süden.

Lediglich vier Treppenhäuser in der höheren, als Lärmriegel gesetzten Längsbaute erschliessen die ganze Überbauung effizient. Hofseitig gelangt man über eine hohe Gartenloggia zur grosszü­gigen Lobby mit angrenzenden Kinderwagen- und Veloräumen. Die südlichen Wohnungen in den Querbauten sind über Laubengänge an die Treppenhäuser angebunden. Im Erdgeschoss sind Gewerberäume und im leicht erhöhten Hochparterre kleinere Geschosswohnungen sowie zwei­geschossige Studios und Maiso­nettewohnungen geplant. Im Längsriegel befinden sich 3 1/2- und 5 1/2-Zimmer-Wohnungen, die über eine Loggia und Wohnküchen erschlossen sind. Im sechsten Obergeschoss befinden sich weitere Gemeinschaftsräume wie Wasch- und Gemeinschaftsküchen, gedeckte Dachterrassen und Dachgärten. Mit der zweiseitigen Orientierung lassen sich die rigiden Lärmschutzvor­gaben gut erfüllen. Die Wohnungsgrundrisse sind vielfältig. Geschosswohnungen werden mit zwei­geschos­sigen Wohnungen ergänzt und die Treppenhäuser gekonnt mit Laubengängen kombiniert.

Die Materialisierung nimmt Bezug auf den industriellen Kontext. Der Sockel ist mineralisch und robust gehalten, während die Obergeschosse mit Welleternit und Scobalitplatten verkleidet sind. Eine filigrane Stahlkonstruktion für die Balkone bietet Pflanzmöglichkeiten für Klettergewächse. Der Holzbau bleibt im Innern mit den lasierten Brettsperrholzdecken und den rohen Holzstützen sichtbar. Der Einsatz von Beton ist auf die weisse Wanne gegen das Erdreich, die aussteifenden Scheiben zur Erdbebensicherheit und die Wohnungstrennwände beschränkt. Das übrige Tragwerk besteht fast ausschliesslich aus Holz. Dies reduziert das Eigengewicht und damit die Fundationen.

Waldhof

Das Projekt «Volt» von Elmiger Architekten wurde mit dem zweiten Preis ausgezeichnet. Es sieht eine Blockrandbebauung vor, die einen grosszügigen Innenhof konsequent gegen aussen abschliesst. Dieser ist über den südlichen Abschluss aus einem niedrigeren Gebäude mit Pultdach gut belichtet. Im nicht unterbauten Innenhof soll sich eine naturnahe, waldartige Vegetation aus einheimischen Pioniergehölzen entwickeln. Schling- und Kletterpflanzen sollen sich an den Bäumen und Fassaden hochranken. Um die wertvolle Bodenvegetation zu schonen, sind schwebende Gitterroste mit kleinen Aufenthaltsnischen als Erschliessung des «Waldhofs» vorge­sehen. Im siebten Obergeschoss ist ein breites Angebot von Gemeinschaftsräumen wie Waschräume, Hochbeete, Gästewohnungen sowie Musik- und Gemeinschaftsräume geplant. Dies kompensiert zum Teil die eingeschränkten Begegnungs­zonen im Innenhof. Die Jury würdigt zwar die starke Idee, bleibt aber «aus sozialräumlichen Überlegungen am Schluss doch etwas ratlos zurück».

Die Erschliessung erfolgt über fünf Treppenhäuser, an die ­jeweils zwei Wohnungen angeschlossen sind. Die Wohnungen im kleineren Gebäude werden über zwei lateral angeordnete Treppenhäuser erschlossen, die mit einem Laubengang verbunden sind. Die hofseitige, umlaufende Balkonschicht wird im Süden zum Laubengang. Die 3 1/2- und 4 1/2-Zimmer-Wohnungen im Norden verfügen über durchgehende Wohn- und Essräume mit durchlaufenden Balkonen zum bewaldeten Innenhof im Südwesten. In den Ecken sind grosse 6 1/2-Zimmer-Wohnungen untergebracht mit einem übereck orientierten, zweigeschossigen Essraum.

Der Beitrag hat die höchsten Erstellungskosten der Projekte der engeren Wahl und ist nicht besonders effizient. Die Werte bei den Treibhausgasemissionen sind gut, während beim Lärmschutz an einigen Punkten nachgebessert werden muss. Die eigenwillige Volumetrie ist laut Jury grundsätzlich möglich, auch wenn sie dem Regelwerk für Volta­Nord teilweise widerspricht.

Betontisch

Der Beitrag «Fuchur fliegt» von Haer­le Hubacher Architekten landete auf dem dritten Rang und wurde mit einem Ankauf ausgezeichnet. Der Entwurf besteht aus vier Querriegeln, die über Loggien an den Längsseiten verbunden sind. So ergeben sich drei Innenhöfe, die in Nord-Süd-Richtung durchlässig sind. Die Wohnungen sind über einem Betontisch als Holzbau angeordnet. Im zwei­geschossigen Erdgeschoss sind öf­fentliche Nutzungen vorgesehen. Ein Teil dient als gedeckter Freiraum für die benachbarte Schule, während der südliche Teil mit Ateliers und Vorgärten belegt ist. Der Freiraum kann vielfältig genutzt werden.

Auch dieser Beitrag kommt mit lediglich vier Treppenhäusern aus, die bis zu sechs Wohnungen höchst effizient erschliessen. Das Wohnungsangebot ist vielfältig und vorwiegend auf grössere Haushalte ausgelegt. Im Fokus steht das Mehrgenerationenwohnen. Über die Hälfte der Wohnungen verfügen über vier oder fünf Zimmer. Dazu kommen noch separat zugängliche Zimmer und Studios, wodurch sich weitere Nutzungsmöglichkeiten ergeben. Der Lärmschutz zur Elsässerstrasse ist über Gewerbe- und Büroflächen in den Obergeschossen gut gelöst. Allerdings steht dies im Widerspruch zum Bebauungsplan Volta­Nord, der nur Gewerberäume im Erdgeschoss erlaubt, und führte letztlich zum Ankauf. Die Jury ortet auch gewisse Schwächen im kon­struktiven Aufbau des Betontischs und findet die Fassade zur Elsässerstrasse nicht überzeugend.

Lärmgeschützt, effizient und wohnlich

Der Beitrag «Fuchur fliegt» besticht mit einem klaren Konzept und mit der Qualität der angebotenen Wohnungen. Er ist aber wegen der Gewerberäume in den Obergeschossen nicht kompatibel mit dem Bebauungsplan und weist konstruktive Schwächen auf. Das Projekt «Volt» zeichnet sich durch die Radikalität des Freiraumkonzepts aus. Der Innenhof als Dschungel dient allerdings vor allem als Blickfang und ist nur beschränkt nutzbar. Im Vergleich zu den übrigen Beiträgen erweist sich die Setzung des Entwurfs «Vita Volta» mit einem hohen Riegel gegen den Industrielärm grundsätzlich als richtige Wahl. Der Beitrag kombiniert eine sehr effiziente Erschliessung mit einem reichen Angebot an gemeinschaftlichen Nutzungen und einer gros­sen Vielfalt unterschiedlicher Wohnungstypen.

Jurybericht und Pläne auf competitions.espazium.ch

 

Rangierung

1. Rang, 1. Preis: «Vita Volta»
ARGE Jonger Waeger Architekten/-innen, Zürich; ghiggi paesaggi Landschaft & Städtebau, Zürich; WaltGalmarini, Zürich; Nova Energie Basel, Basel; Gartenmann Engineering, Basel
2. Rang, 2. Preis: «Volt»
Elmiger Architekten, Zürich; Goldrand, Zürich; Pirmin Jung Schweiz, Thun; Waldhauser + Hermann, Münchenstein
3. Rang, 1. Ankauf: «Fuchur fliegt»
Haerle Hubacher Architekten, Zürich; raderschallpartner landschafts­architekten, Meilen; Makiol Wiederkehr, Beinwil am See; Bakus Bauphysik & Akustik, Zürich
4. Rang, 3. Preis: «Le Crocrodrome»
kollektive architekt, Basel; Ort für Landschafts­architektur, Zürich
5. Rang, 2. Ankauf: «In den Bäumen»
Elizaveta Radi, Zürich; Potgeter Landschaftsarchitektur, Zürich
6. Rang, 3. Ankauf: «Auf Kurs»
bauzeit architekten, Biel; BNP Landschaftsarchi­tekten, Zürich; Prona, Biel; Baukonstrukt, Biel
7. Rang, 4. Preis: «La Fleur de Lys»
BGM Architekten, Basel; Zwischenraum Landschaftsarchitektur, Altendorf; Miyo Visualisierung, Othmarsingen

Fachjury

Beat Aeberhard, Kantonsbaumeister Basel-Stadt (Vorsitz); Marie-Noëlle Adolph, Landschaftsarchitektin, Meilen; Alain Roserens, Architekt, Zürich; Luca Selva, Architekt, Basel; Andreas Wirz, Architekt, Zürich

Sachjury

Tanja Soland, Regierungsrätin BS, Vorsteherin Finanzdepartement; Jürg Degen, Leiter Städtebau, Bau- und Verkehrs­departement BS; Peter Kaufmann, Leiter Finanzvermögen, Immobilien BS; Gerold Perler, Leiter Wohnen, Bau- und Verkehrsdepartement BS

Sur ce sujet