Zu Hause in zwei Wel­ten

Über 50 Wohnungen sind in einem ehemaligen Bürohaus in Bern entstanden. Mit dieser Umnutzung im «Brückenkopf Ost» beleben Bauart Architekten gleich zwei Stadtebenen und setzen den ersten Baustein für die Entwicklung eines neuen Quartiers.

Date de publication
13-01-2022

Zusätzlich zu der allgemeinen Tendenz, Büroflächen entsprechend der schrumpfenden Raumbedürfnisse zu verringern, gibt es in der Stadt Bern eine zweite Entwicklung. Durch die Zusammenführung und Unterbringung der kantonalen und der bundeseigenen Ämter werden fortlaufend grosse, vormals angemietete Liegenschaften in der Stadt frei.

Im Oktober 2019 ist das kantonale Amt für Migration und Personenstand (MIP) umgezogen und hat ein angemietetes Bürohaus leer zurückgelassen. Allerdings liess der Zustand des Gebäudes von 1963 hinsichtlich energetischer Auflagen und Komfort für die Mitarbeitenden zu wünschen übrig; es musste saniert werden.

Aufgrund seiner Lage und seiner direkten Einbindung in ein bauliches Ensemble sticht es aus der Menge der ungenutzten Bürogebäude hervor. Die Be­sitzer des Komplexes, zu dem das Haus an der Eigerstrasse 73, der sogenannte «Brückenkopf Ost», gehört, nahmen dies zum Anlass, die Sanierungsmöglichkeiten jenseits der Schaffung neuer Büroflächen zu überprüfen. Deren Vermietung wäre zwar lukrativ, birgt aber im Zuge der weiter sinkenden Nachfrage gegenüber einer angespannten Lage auf dem Wohnungsmarkt langfristig weniger Sicherheit. Ausschlaggebend für die Sanierung war auch die baurechtliche Situation, die eine Ausnutzung des Grundstücks, wie sie der Bestand bietet, für einen Neubau nicht mehr zugelassen hätte.

Motor für ein neues Stück Stadt

Vor allem das benachbarte Gaswerkareal, um dessen Entwicklung sich die Stadt seit rund 30 Jahren bemüht, macht die Idee, hier Wohnungen anzusiedeln, interessant und lässt dem Bau eine wichtige Funktion innerhalb des künftigen Wohngefüges im Quartier zukommen.

Denn im November 2021 ging die Planung einen grossen Schritt vorwärts: Der entschiedene städtebauliche Ideenwettbewerb sieht eine Mischbebauung mit 60 000–80 000 m2 oberirdischer Geschossfläche und eine Entwicklung als Kultur- und Freizeitmeile zwischen dem Flussschwimmbad Marzili, dem Jugendzentrum Gaskessel und dem südlich anschliessenden Naturraum vor. Das bedeutet neu geschaffenen Wohnraum für rund 1000 Menschen. Im Moment sind die Stadtwerke ewb aber noch damit beschäftigt, den Boden auf einer Fläche von 5000 m2 und in Tiefen bis zu 11 m abzutragen, denn durch die jahrzehntelange industrielle Nutzung ist er mit Schadstoffen belastet. Der Siegerentwurf dient als Grundlage für den Rahmenplan, ein Mobilitätskonzept und anschliessend den Zonenplan des Areals (ZPP), der 2023 der Bevölkerung zur Abstimmung vorgelegt werden soll.

Lesen sie auch: Die Rückeroberung der Stadt als Wohnort – Umbau von Bürohäusern zu urbanen Wohnungen

Einerseits wirkt die hohe Dichte der geplanten Baufelder entlang des Aareufers erschreckend und darf laut Jurybericht in der folgenden Ausarbeitung immerhin etwas heruntergefahren werden. Andererseits ist das Gebiet als neues Wohnquartier mit seiner Nähe zur Innenstadt und zur Aare und durch die Weiterentwicklung des bestehenden Kulturangebots sehr attraktiv.

Die Planung für die Wohnungen, die teils von Genossenschaften, teils von der Stadt gebaut werden, schliesst das Bestandsgebäude am «Brückenkopf West», das die Monbijoubrücke auf der anderen Strassenseite flankiert, mit ein. Es ist zusammen mit dem nun sanierten und hier näher betrachteten «Brückenkopf Ost» entstanden, mit dem es unter der Brücke hindurch verbunden ist und bis dato das äussere Erscheinungsbild teilte.

Dass die ungleichen Geschwister im Moment nicht mehr als solche zu erkennen sind, ist nur ein vorübergehender Zustand: Anstelle des «Brückenkopfs West» ist als geometrischer Widerpart zur Monbijoubrücke ein Hochhaus geplant, dessen Gestalt sich zukünftig zur Fassade des Wohnhauses am «Brückenkopf Ost» verhalten muss. Denn das ehemalige Bürohaus verkörpert jetzt eine erste Setzung im neuen Quartier.

Kühle Köpfe im Paragrafendschungel

Angeregt durch ihr Engagement in einer zweistufigen Testplanung für das Gaswerkareal, die dem Wettbewerb vorausging, wandten sich Bauart Architekten an die Besitzer des Brückenkopfs, eine private, junge Erbengemeinschaft, und schlugen eine Umnutzung des östlichen Gebäudeteils als Wohnhaus mit Gewerbe vor. Nach einer Machbarkeitsstudie folgte 2016 der Auftrag.

Die Realisierung war für alle Beteiligten durchaus ein Wagnis: Denn es galt, den Bauteil vom unter der Brücke verbundenen westlichen Brückenkopf-Gebäude, von der Brücke selbst, der Kantonsstrasse und den städtischen Strassenräumen neben und unter der Brücke baurechtlich zu isolieren, um eine Umwidmung zu Wohnzwecken zu ermöglichen, was bei der gegebenen Einordnung als Dienstleistungszone machbar ist. Das Entflechten der Besitzverhältnisse und der naturgemäss verschränkten Nutzungen und Gewohnheitsrechte trug die Bauherrschaft über vier Jahre hinweg mit, sodass 2019 mit den Sanierungsarbeiten begonnen werden konnte.

-> Jurybericht und Pläne Wettbewerb Gaswerkareal

Die sichtbarste Veränderung ergab sich nach Untersuchung der wohlproportionierten Bestandsfassade: Der Prüfbericht attestierte nicht angemessen zu behebende Mängel in Bezug auf ihre energetische und bautechnische Qualität, sodass – unter Einbeziehung der Stadtbildkommission – ihr Abriss empfohlen wurde.

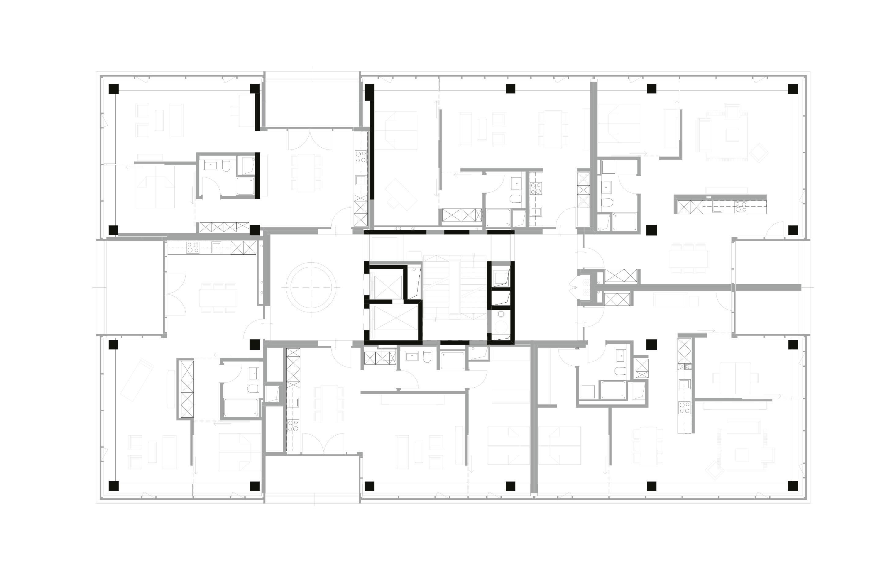
Die Fassade, die das Haus von Hufschmid + Naue Architekten seit 1964 schmückte, bildete mit einer schmalen, vertikalen Rasterung die Büronutzung nach aussen ab. Ab der Fuge in Höhe der Brücke aufwärts überwiegt bei der neuen Fassade eine horizontale Prägung, wiederum ein Abbild der jetzt veränderten Nutzung.

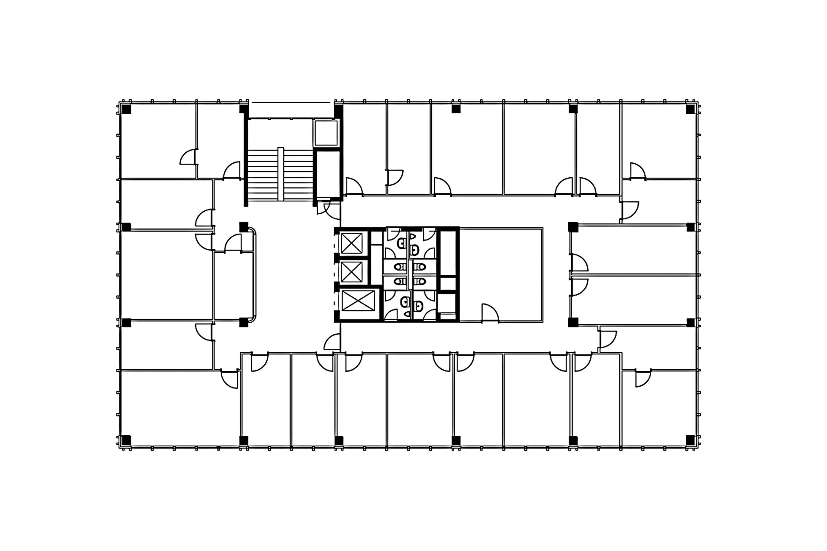
Hinsichtlich Lärm- und Sonnenschutz wurden hohe Ansprüche an die klimawirksame Ausbildung der Fenster gestellt, die sich in den Kosten deutlich niederschlagen. Zum Dachgeschoss hin nehmen die Fensterhöhen zu, und die umlaufenden, matt schimmernden Aluminiumpaneele, die die Brüstungen und Deckenstärken verblenden, werden schmaler. Durch diese Dynamik scheint das Haus schwer auf der oberen Stadt­ebene zu lasten und himmelwärts leichter zu werden. Zu allen vier Seiten brechen übereinander liegende Loggien die rigide Form und schaffen vertikale Fugen. Was man von aussen nicht ahnt: Ihre gedachten Achsen kreuzen sich in der zentralen Erschliessungshalle. ­

Diese wiederum liegt in einem Abschnitt, in dem der konstruktive Raster ausnahmsweise schmaler ist, begründet durch das hier bestehende Treppenhaus, das von einem aussteifenden Betonschacht umgeben ist.

Das Eingangsgeschoss als Scharnier

Der Haupteingang liegt auf der oberen Stadtebene in Verlängerung der Monbijoubrücke, an einer der grössten Einfallstrassen im Süden der Stadt. Schon morgens um 4 Uhr brausen hier die ersten Autos herein. Die seitlich vorgelagerte Terrasse in Richtung Aare war bisher weitgehend ungenutzt – sie dient hauptsächlich als Wartebereich vor einem öffentlichen Lift, der die Besuchenden des Marzilibads auf die Flussebene befördert. In Stosszeiten reiht sich hier Fahrrad an Kinderwagen. Als erster öffentlicher Baustein der Quartier­entwicklung und vor allem für die Bewohnerschaft des Brückenkopfs signalisiert sie nun als Restaurant­terrasse die öffentliche Qualität des Gebäudes. Ein schicker Fahrradraum, Gastronomie und Geschäftsräume unterstreichen das angestrebte Selbstverständnis des Hauses.

Neben dem Eingang haben sich zwei Designer mit Hund einquartiert. Nach eigener Aussage empfinden sie die für Bern ungewöhnlich städtische Atmosphäre als anregend und den rohen Innenausbau nach Jahren in der historischen Altstadt als eine Befreiung. Mit einem offenen Tätigkeitsspektrum von Innenarchitektur bis zum Verfassen von subjektiven Stadtführern verfolgen sie genau den unkonventionellen Lebensentwurf, der sich in dem Haus entfalten soll.

Als Puffer zur Umgebung ist die Fassade im Eingangsgeschoss eingerückt und bildet eine Arkade, die womöglich als augenzwinkernder Gruss in Richtung der Berner Laubengänge zu verstehen ist. In der Gestaltung der Eingangshalle kulminieren die zentralen Gestaltungsansätze, die die Planenden verfolgt haben: Durch eine kreisrunde Öffnung in der Decke, die sich durch alle darüber liegenden Etagen stanzt, überhöhen sie den Raum als Dreh- und Angelpunkt.

Tageslicht gelangt über das Oberlicht in die Tiefe, und die Öffnung der Etagen zueinander ermöglicht eine direkte oder auch nur über die Geräuschkulisse vermittelte Kommunikation. Die aus den Sockelgeschossen kommende Treppe ist ab der Eingangshalle nach oben geschlossen und führt neu hinter dem zentralen Liftblock weiter. Indem die Decken über den ehemaligen Treppenhausschacht hinweg auf allen Etagen mit Ortbeton ergänzt wurden, gewinnt der Bau kostbare, an der Fassade gelegene Fläche zugunsten der Wohnräume. Gleichzeitig gewährleistet der Kern in Verbindung mit den Stützen in den Aussenwänden die Erdbebensicherheit.

Durch die zwei unabhängigen Treppenhäuser gelten oberer und unterer Bereich brandschutztechnisch als getrennte Volumen, die über die Eingangshalle entfluchtet werden können. Durch diesen Schachzug gilt das Gebäude nicht als Hochhaus, obwohl es über 40 m hoch ist; entsprechend weitreichendere Auflagen blieben der Bauherrschaft somit erspart.

Der problematischste Teil des Hauses, der dunkle Innenbereich, wird in der Vertikalen geöffnet und versammelt alle Erschliessungen. Das damit verbundene Entfernen grosser Mengen von Beton war sowohl energetisch als auch logistisch aufwendig, doch die ge­wonnene Wohnfläche, aber auch die Grosszügigkeit als Stärkung der internen und publikumsorientierten Kommunikation rechtfertigen die Massnahme. Die Schnitte und Brüche sind auf den Betonwänden weiterhin sichtbar. Zusammen mit dem vorgefundenen und ergänzten Terrazzo, eigens angefertigten Handläufen, edlen Leuchten und einer durchgängigen Signaletik entfalten die Räume eine Lässigkeit, die die vermeintlichen Makel nobilitiert.

Die ausführliche Version dieses Artikels ist erschienen in TEC21 1–2/2021 «Home statt Office»

Bauherrschaft: Brückenkopf, Bern

 

Architektur: Bauart Architekten + Planer, Bern, Neuenburg, Zürich

 

Bauherrenvertretung: Reflecta, Bern

 

Bauleitung: Eberhart, Bern

 

Tragwerksplanung: Bächtold + Moor, Bern

 

Elektro-/HLKS-Planung: Amstein + Walthert, Bern

 

Bauphysik, Energie- und Akustikberatung, Begleitung Schadstoffsanierung: Gartenmann Engineering, Bern

 

Fassadenplanung: Fachwerk F + K Engineering, Bern

 

Baumeister: Cäsar Bay, Konolfingen

 

Fassadenbau: Charles Sauter, Lyss

 

Sanierung Flachdach: Tecton Abdichtungen, Niederbipp

 

Sanierung Oberflächen: Witschi, Bern

 

Bauzeit: 2019–2021

 

Kosten (BKP 1–9): 20.55 Mio. Fr.

 

Stadtentwicklungskonzept 2016 (STEK) Plan I, Grüne Wohn- und Arbeitsstadt – Ziele 2030 – «Bern lebt in Quartieren»

Étiquettes
Magazine

Sur ce sujet