Va­ria­zioni sul tema

Nella riconversione della Sigristenhaus Boswil, Gian Salis ha adottato lo stesso approccio che da secoli si applica all’uso dei materiali da costruzione. E così, dove un tempo vivevano e lavoravano dei contadini, oggi si fa musica.

Date de publication
11-11-2021

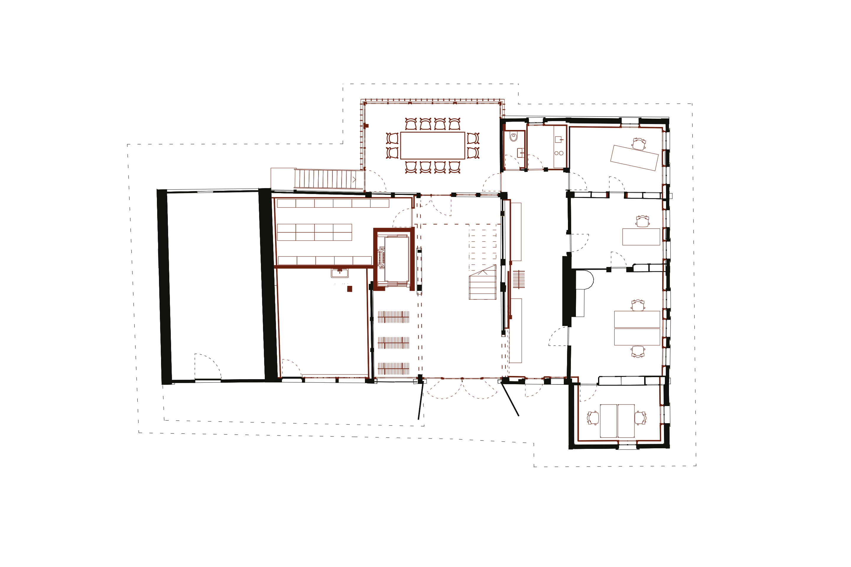
Il posto è già magico di per sé. Su una collina di Boswil, in Argovia, si trovano quelle che un tempo erano una chiesa, una canonica e la casa del sacrestano, e che oggi appartengono alla fondazione Künstlerhaus Boswil. Note musicali attraversano il paesaggio in parte pianeggiante e in parte collinare, costellato da fattorie e grandi tigli. Nel 2014 Gian Salis aveva vinto sia il bando per la ristrutturazione dell’atrio della vecchia chiesa, terminato nel 2017, sia quello per la ristrutturazione della casa del sacrestano, completato quest’anno: una fattoria risalente alla fine del XVII secolo, tutelata come monumento, oggi ospita due sale prove, alloggi per artisti, uffici e sale riunioni. L’edificio aveva già subito innumerevoli modifiche nel corso dei secoli, di alcune delle quali si possono ancora vedere o intuire le tracce – come il tetto a padiglione, che fu di paglia fino al 1876.

La struttura preesistente rappresentava una sfida. Non solo stava invecchiando, ma in alcuni punti stava per crollare perché mancavano le fondamenta, dunque ne sono state poste di nuove. Inoltre i vani erano piccoli e molto bassi, e così in vari punti del piano terra – tra cui l’atrio e le stanze dove oggi si trovano gli uffici – il pavimento è stato scavato per guadagnare altezza.

Adiacente all’ala residenziale si trovano quelli che erano il granaio e la stalla, costruiti con una tecnica molto antica tipica dell’Argovia (Hochstudbau), in cui la struttura ruota intorno a un montante centrale. Le travi sono, per così dire, assemblate a incastro ai pilastri centrali e non rigidamente vincolate come in un tetto convenzionale, il che ha dei vantaggi: per esempio, durante lavori precedenti ha permesso di sollevare la gronda in corrispondenza dell’ala residenziale cambiando l’angolo di inclinazione, facendo prendere al tetto la sorprendente forma a onda che si vede tutt’oggi. Secondo lo stesso principio, le nuove travi di rinforzo della gronda sono state affiancate ai vecchi arcarecci. Il risultato è una fine struttura che lascia vedere dal basso le vecchie scandole – leggermente sbiadite dalla pioggia e molto inclinate – dando l’idea della trama di un tessuto. E tutto ciò senza alcuna traccia di pesanti interventi sul preesistente.

Dimensioni espressive

Salis ha dunque mantenuto fede al principio su cui da secoli si basano gli interventi su questo edificio: adattare la vecchia struttura architettonica alle nuove circostanze ed esigenze, con i mezzi più semplici possibili. Anche negli interni. Salis e Andreas Treier il titolare della locale Schäfer Holzbautechnik hanno infatti adottato un approccio molto accorto al legno preesistente: laddove in altri casi sarebbe stato smaltito, loro hanno smontato, ordinato, numerato e registrato le tavole per poter riutilizzare le più belle. E così, alcuni pezzi del vecchio pavimento sono stati usati per le nuove pareti. Nell’atrio, si possono notare differenze di tonalità tra le tavole che compongono la parete che fiancheggia la scala di metallo, dovute al contatto con le travi di sostegno su cui un tempo poggiavano.

Due stili, un linguaggio

Un’altra sfida era quella di rendere più luminosi quegli spazi. Dove possibile, l’assetto delle vecchie stanze è stato mantenuto, mentre dove necessario sono state inserite nuove aperture. Questo ha portato alla coesistenza di due stili. Le sale con le finestre tradizionali – gli odierni uffici – e le camere degli ospiti al primo piano, sono vani di ridotte dimensioni e quasi inte­ramente rivestiti con i vecchi pannelli. ­Nonostante il nuovo isolamento, non si ha l’impressione che i locali di lavoro abbiano subito grandi modifiche, perché l’occhio non dev’essere colpito dalle tracce di pe­santi interventi costruttivi: come in ogni altra parte della casa, anche qui quando fa caldo si aprono le finestre.

Contraltare interno è la sala riunioni, ricavata nell’ampliamento costruito sul retro della casa e dotata di una grande finestra che regala una vista panoramica dei dintorni rurali. Lo stesso effetto fa l’alta sala prove sotto il tetto spiovente, luminosa e aperta grazie all’enorme vetrata che affaccia sull’esterno. Spazi nuovi, curati fino al minimo dettaglio, che sono stati rivestiti esternamente con sottili tavole di legno su richiesta dell’Ufficio dei beni culturali, in modo che l’edificio rimanesse esteticamente parte integrante del villaggio. E così il legno – vecchio o nuovo a seconda dei casi – unisce stili diversi con un unico ­linguaggio.

Elemento centrale dell’edificio è la grande scala di metallo nell’atrio, perfettamente integrata nella struttura di legno: dal piano terra, di fronte alla grande vetrata accanto alla reception, conduce al piano con le camere degli ospiti, e poi su fino alle due sale prove. È stata poi sfruttata l’apertura preesistente nel tetto da cui, in base all’ora del giorno, filtrano diverse tonalità di luce solare, rendendo l’atmosfera dell’atrio ancora più piacevole.

Il fatto che la Boswiler Künstlerhaus non abbia perso la sua magia come invece accade in altri luoghi – dove interventi architettonici troppo estesi nascondono il vecchio e inseriscono il nuovo con una esasperata ricerca di perfezione e grande dispendio di tecniche costruttive – è merito dell’architetto, del proprietario e probabilmente anche del budget limitato. Questo intervento ci mostra che è possibile inserirsi nel solco di un approccio vecchio di secoli, e al contempo esplorare tutte le possibilità del design contemporaneo, soddisfacendo nuove esigenze.

Questo articolo è stato pubblicato nel numero speciale «Città in legno: Uffici, centri tecnici, ateliers e altri luoghi di lavoro». Potete trovare altri articoli sul tema del legno nel nostro dossier digitale.

Partecipanti al progetto

 

Committenza: Fondazione Künstlerhaus, Boswil

 

Architettura: Gian Salis Architekt, Zurigo

 

Statica del legno: Makiol Wiederkehr, Beinwil am See

 

Paesaggista: Jane Bihr-de Salis, Kallern

 

Costruzione in legno: Schäfer Holzbau Technik, Aarau

 

Solai: Lignatur, Waldstadt

 


Edificio

 

Superficie (SIA 416): 956 m2

 

Volume (SIA 416): 2972 m3

 


Legno e costruzione
Adattamento all’edificio esistente

 

Travi: abete rosso/bianco 11 m3 (Svizzera)

 

Puntoni: abete bianco / legno massiccio 35 m3 (Svizzera)

 

Supporti: abete rosso/bianco, 46 m3 (Svizzera)

 


Date e costi

 

Costruzione: giugno 2019-marzo 2021

 

Carpenteria: ottobre 2019-giugno 2020 

 

Totale (CCC 1-9): 5.3 Mio CHF incl. IVA, incl. rivestimenti interni ca. 1 Mio CHF

Sur ce sujet