Raum neu den­ken

Die Bebauung von Hinterhöfen erfordert ein hohes Mass an Anpassung an die gegebenen Verhältnisse. Oft ist der Platz beengt, der Abstand zu Nachbargebäuden vorgeschrieben und die Bauhöhe begrenzt. Ein gelungenes Beispiel zeigt die Hofbebauung in der Thiersteinerallee in Basel von Luca Selva Architekten.

Date de publication
12-10-2021

Wer durch Basels Strassen spaziert, ahnt nicht, was sich in so manchen Hinterhöfen versteckt. Ursprünglich dienten sie in den Arbeiterquartieren dem Kleingewerbe als Werkstätten und Lagerräume. Bereits Anfang der 1980er-Jahre kamen erste Wünsche auf, diese Innenhöfe ansprechender und grüner zu gestalten - insbesondere durch die Bewohner.

Seit spätestens 20 Jahren erwecken sie immer mehr das Interesse der Investoren. Verdichtung ist ein Thema. Die Stadt Basel benötigt mehr Wohnungen und sieht in den Hinterhöfen noch Potenzial, um Wohnraum zu schaffen. So sind manche Höfe heute grüne Oasen, in anderen versteckt sich moderne Bauarchitektur – wie in der Thiersteinerallee im Gundeldingerquartier.

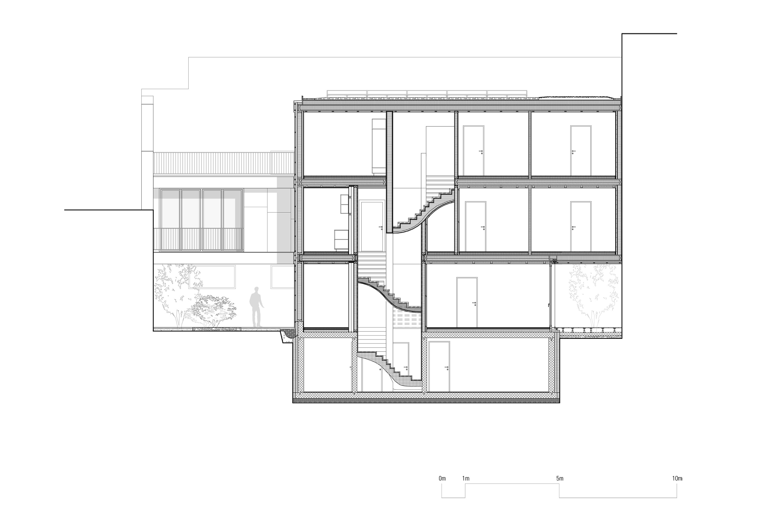
Die CPV/CAP Pensionskasse Coop beauftragte das Büro Luca Selva Architekten mit der Instamdsetzung der Wohnhäuser in der Thiersteinerallee 7–11 und 19–21. Und im Zuge dessen auch mit der Bebauung des ursprünglich als Lagerumschlag und Lagergebäude genutzten Hinterhofs in Hausnummer 9. Zur Strasse hin lassen die denkmalgeschützen Fassaden aus der Jahrhundertwende heute dabei nicht erahnen, was sich dahinter befindet. Im Hinterhof klemmt ein Kupfergebilde zwischen den Brandwänden der drei angrenzenden Gebäude. Dadurch scheint das zweistöckige Mehrfamilienhaus zwischen den Mauern zu schweben, was der Hofbebauung seine Leichtigkeit verleiht.

Maximale Raumnutzung

Was einem sofort auffällt, ist die verwinkelte Form des Gebäudes. Es wirkt wie herausgeschnitten aus einem riesigen Kupferblock. Es ist der Negativraum, der übrig bleibt, nachdem alle Grenzbabstände eingehalten wurden. Ziel des Architekturbüros war es, den grösstmöglichen Raum auszunutzen. Ganz gewollt dockt das Gebäude an alle drei umliegenden Brandmauern einmal an, springt aber jedesmal dann zurück, wenn der Mindestabstand von sechs Metern zu den Fensteröffnungen in den benachbarten Gebäuden eingehalten werden muss. So ergeben sich immer wieder versteckte Innenhöfe und überdachte Terrassen im Erdgeschoss. Genauso ist die Dachterrasse der Wohnung im zweiten Stock das Resultat aus der erlaubten Maximalhöhe zum Nachbarhaus.

Auch die Kupferfassade ist nicht zufällig gewählt. Abgesehen davon, dass sie pflegeleicht und unterhaltsarm ist, greift sie die typischen Kupferelemente – wie Dachrinnen und Simse – der umliegenden Gebäude aus der Jahrhundertwende wieder auf. Sobald die Sonne auf das Kupfer scheint, ergeben zudem sich spannende Lichtspiele auf den rohen Brandschutzmauern im Innenhof.

Trotzdem darf die kupferne Streckmetallfassade durchaus kritisch betrachtet werden: Kupfer ist ein Schwermetall und bei Regen können sich kleinste Partikel herauswaschen und ins Grundwasser gelangen. Um dem entgegenzuwirken, haben die Architekten eine Methode entwickelt, um das Kupfer unterirdisch herauszufiltern, bevor es ins Grundwasser gelangt. Zudem lässt die Kupferfassade nicht vermuten, dass sich darunter eigentlich eine Holzkonstruktion verbirgt.

Die reduzierte Form und die einheitliche Materialwahl verleihen dem Gebäude seine Leichtigkeit. Im Erdgeschoss lässt es sich einmal um das Gebäude herumgehen. Innenhöfe wechseln ab mit überdachten Terrassen, wodurch sich immer wieder spannende Durchblicke ergeben. Dieses Zusammenspiel von offen und bedacht, gross und klein lockert den beengten Raum optisch auf.

Luftige Geschosse

Im Innern zieht sich das Konzept der maximalen Ausnutzung des gegeben Raums weiter: Die umliegenden Gebäude erlauben zwar nur zwei Stockwerke, doch diese Höhe möchten die Architekten optimal ausnutzen. So ergibt sich für einen Neubau eine eher ungewöhnlich hohe Raumhöhe von 2.70 Metern. Und wieder wird der eher beengte Raum durch diese Höhe aufgelockert. Eine zusätzliche optische Täuschung erzeugt die hölzerne Zimmerdecke, aus dem selben Lärchenholz wie der Fussboden. Ein Spiel, dass sich im Aussenbereich fortsetzt. Hier sind Boden und Decken der überdachten Terrassen beide aus sibirischer Lärche. Durch die grossen Glasfronten vereinen sich so Aussen und Innen zu einer Einheit.

Ungewöhnliches umsetzen

Es macht sich bemerkbar, dass die Bauherrschaft Raum zum Experimentieren und Ausprobieren gelassen hat. Einen erheblichen Beitrag zur Lösung der Wohnraumknappheit in Basel Stadt leistet diese Art der Hinterhofverdichtung allerdings eher weniger. Aber es zeigt, wie durch ausgeklügelte Architektur der vorhandene Raum optimal genutzt werden kann, ohne dass dabei die einzelne Wohnparteien an Privatsphäre durch eine zu dichte Bebauung verlieren.

Die reduzierte Formsprache ist modern, ohne aufdringlich zu wirken. Zwar steht das Gebäude deutlich im Kontrast zu den Wohnhäusern aus der Jahrhundertwende, durch seinen einheitlichen und unaufgeregten Charakter macht es sich jedoch nicht wichtig. Dadurch wirkt der Hinterhof nicht beengend, sondern klar gegliedert und offen.

Sur ce sujet