Una casa a Lu­diano

Tocchetti Pessina Architetti

Rivisitazione contemporanea della capanna alpina, l'abitazione progettata da Tocchetti Pessina instaura una rara armonia tra scelte architettoniche e scelte strutturali.

Date de publication
09-12-2019
Stefano Miccoli
Ingegnere civile POLIMI, assistente alla cattedra di strutture all’AAM, dottorando all’Università di Granada

Incastonata tra l’insediamento abitativo esistente e un affluente del fiume Brenno, la parcella interessata dall’intervento si sviluppa su un semipiano che permette di abbracciare l’arco alpino.

Le peculiarità del fondo, nel caso specifico: l’orientamento ottimale, la presenza della cascata e gli imponenti blocchi di roccia (sprüg), costituiscono gli spunti principali per la definizione dell’architettura di questo progetto.

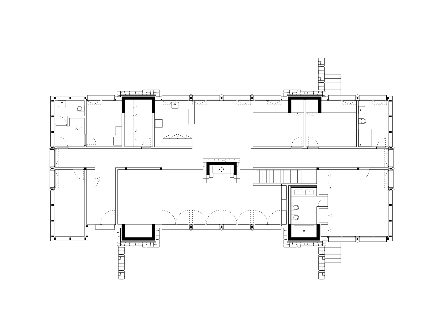
L’edificio proposto si pone perpendicolarmente alla vallata andando ad ancorarsi nella topografia esistente. La volumetria slanciata non si pone come limite costruito, ma cerca bensì di permettere che il paesaggio l’attraversi.

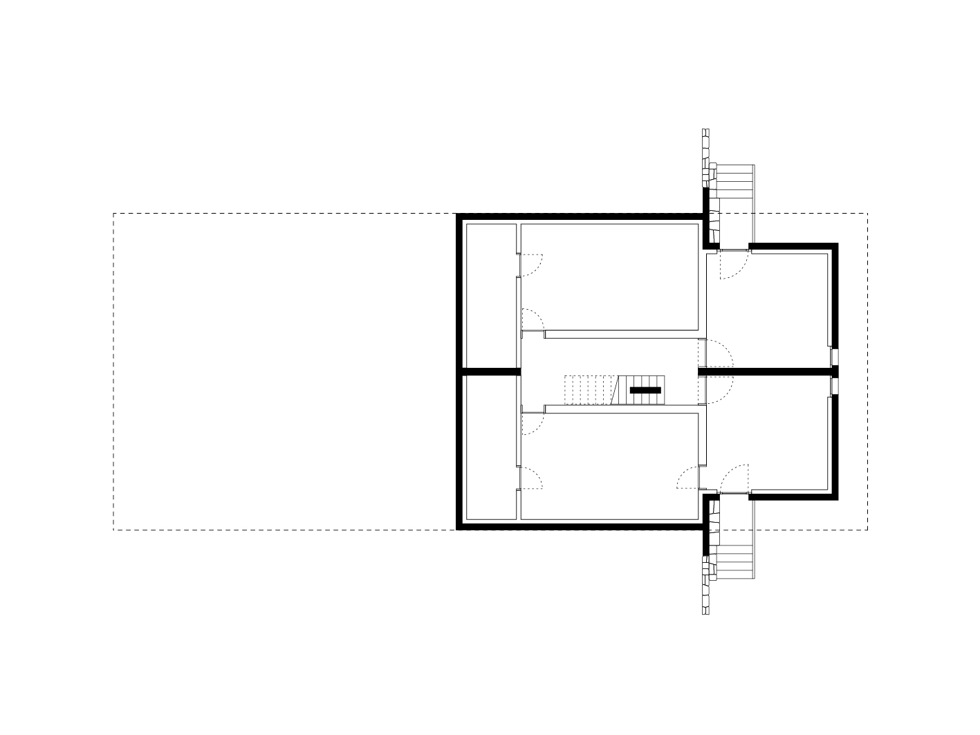
Disposta su due livelli, l’abitazione ospita i locali principali al piano terreno, al disotto dei quali troviamo gli spazi secondari e le superfici necessarie ai locali tecnici.

Dalla zona giorno si accede direttamente all’ampio giardino; il rapporto tra interno ed esterno viene rivisitato ampliando l’offerta spaziale della casa.

L’ampio tetto a falde intende proteggere i futuri abitanti, le pregiate facciate e si libra nella vallata bleniese.

I materiali scelti, di provenienza autoctona, quali il ­sasso e il legno, si riallacciano alle tradizioni costruttive locali. I locali posti al livello inferiore sono cinti da una parete in cemento armato facciavista parzialmente interrata.

Il tema dell’abitazione unifamiliare viene ulteriormente sviluppato sulla base di un’attenta analisi delle preesistenze; il carattere dell’edificio intende riproporre i temi cari dall’architettura alpina senza omettere gli sviluppi del tempo.

Considerazioni sulla struttura

di Stefano Miccoli

La casa a Ludiano di Tocchetti e Pessina è un esempio particolarmente riuscito di armonia tra scelte architettoniche e scelte strutturali. Non è infatti possibile parlare della struttura senza interpellare le idee architettoniche.

La struttura portante verticale principale è costituita da quattro elementi a «C» in calcestruzzo armato, dove sono sistemati i servizi dell’abitazione, e dal camino centrale, sempre in calcestruzzo armato. Gli elementi in calcestruzzo, aiutati all’interno dell’abitazione da due appoggi puntuali in legno, dalle pareti esterne a telaio in legno, e da cinque putrelle in acciaio, sostengono sei travi in legno lamellare di larice di sezione 200 × 400 mm (centrali) e 160 × 320 mm (laterali), che si sviluppano in senso longitudinale. Il larice è scelto sia per ragioni di durabilità (alcune rimangono esposte) sia per uniformità di materiale con i rivestimenti interni ed esterni (quelle interne e non a vista sono infatti realizzate in abete). Le sei travi longitudinali sostengono gli elementi strutturali della copertura: travetti rettilinei in legno massiccio d’abete (non a vista) classe C24 di sezione 100 × 180 mm nella parte centrale, capriate triangolari laterali, la cui forma deriva da un’esigenza più architettonica che strutturale, travetti doppi in legno massiccio di larice di sezione 100 × 160 mm.

Il collegamento tra le putrelle metalliche e le travi ­longitudinali interne all’abitazione è nascosto, in questo modo si ha l’impressione che la trave longitudinale che attraversa la zona giorno non abbia sostegni intermedi, una  soluzione quindi che risolve il problema strutturale del sostegno ma allo stesso tempo permette la creazione dello spazio architettonico desiderato.

Luogo Ludiano, comune di Serravalle
Committenza Privata
Architettura Consorzio Tocchetti Pessina Architetti, Lugano
Collaboratori T. Coletta, M. Luppi, L. Pessina, L. Plebani, O. Viscardi, S. Tocchetti
Impresa Milani S.A., Ludiano
Costruzione in legno Laube SA, Biasca
Ingegneria civile e geologia Consorzio Ingegneri Tocchetti Pedrazzini Guidotti, Lugano
Progetto impianti RVCS V.R.T. S.A., Lugano
Progetto impianti elettrici Elettroconsulenze Solcà S.A., Lugano
Fisica della costruzione IFEC S.A., Rivera
Acustica IFEC S.A., Rivera
Fotografia Giorgio Marafioti, Lugano
Date progetto 2016, realizzazione 2018
Pianificazione energetica V.R.T. S.A., Lugano
Certificazione Standard energetico RUEn 2008
Intervento e tipo edificio costruzione nuova
Categoria edificio (Ae) abitazione monofamiliare, 285 m2
Fattore di forma (Ath/Ae) 2.76
Riscaldamento e acqua calda sanitaria pompa di calore geotermica
Acqua calda Produzione acqua calda sanitaria mediante l‘impianto geotermico
Requisito primario involucro dell’edificio 45 kWh/(m2a)
Particolarità resa del calore mediante serpentine a bassa temperatura

«Archi» 6/2019 può essere acquistato quiQui puoi invece leggere l'editoriale con l'indice del numero.

Étiquettes

Sur ce sujet