Der Fast-Blo­ckrand

Projektwettbewerb Instandsetzung und Erweiterung Haus Eber, Zürich

Mit einer Erweiterung des historischen Hauses Eber in Zürich-Aussersihl will die Stiftung Jugendwohnnetz 95 Zimmer für junge Erwachsene in Ausbildung schaffen. Den Wettbewerb gewonnen haben Wild Architekten aus Zürich. Sie ergänzen das Bestandsgebäude an zwei Seiten.

Date de publication
01-11-2018
Revision
01-11-2018

Das städtische Grundstück mit dem denkmalgeschütz­ten Haus Eber (1904, Architektur: Friedrich Wehrli) im Quartier Hard soll im Baurecht an die Stiftung Jugendwohnnetz (Juwo) abgegeben werden. Sie will dort ihr Wohnangebot um 95 Zimmer erweitern, um jungen Erwachsenen in Ausbildung trotz dem angespannten Zürcher Wohnungsmarkt eine Bleibe in der Stadt zu ermöglichen. Das Amt für Hochbauten führte dazu Anfang 2018 im Auftrag der Juwo einen Projektwettbewerb im offenen Verfahren durch. Aus 116 eingereichten Arbeiten zeichnete die Jury sieben Projekte aus.

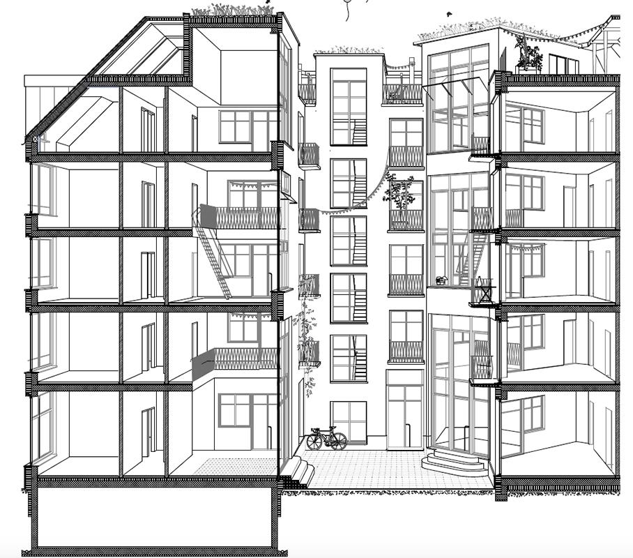
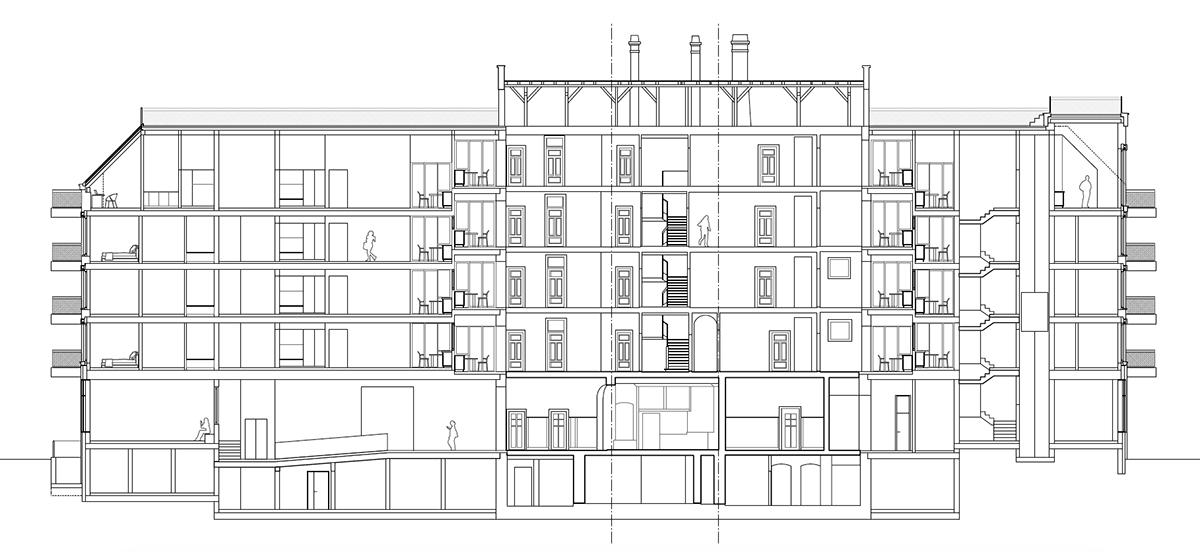
Die Erweiterung soll in die bestehende Quartierstruktur eingepasst werden und einen Anschluss zum Bestand bilden. Zudem sollten die Planer in diesem neuen Ensemble eine zeitgemässe Interpretation des Gemeinschaftswohnens liefern sowie die Vorgaben der 2000-Watt-Gesellschaft und von Minergie-P-Eco erfüllen. Diese Aufgabenstellung erfüllten Wild Architekten aus Zürich mit dem Projekt «Lena» in den Augen der Jury am besten.

Die Tradition fortführen

Die von den Planern vorgeschlagene Erweiterung setzt beidseitig an das Bestandsgebäude an und erweitert den Blockrand, schliesst ihn je­­doch nicht. Die Gebäudekubatur des Altbaus wird übernommen, bis auf Traufhöhe und Dachgeometrie, da dies die Vorgaben für die Quartier­erhaltungszone nicht zulassen.

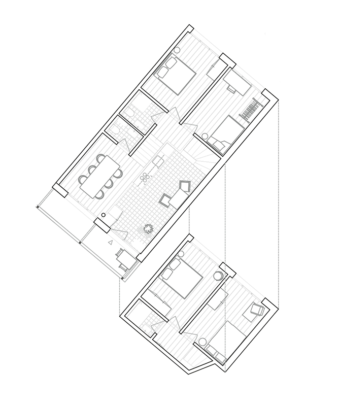
Die neuen Wohnungen sind mehrheitlich als Maisonette-Einheiten mit überhohen Wohn-/Essbereichen geplant und werden über einen Laubengang im Hof erschlossen. Partiell erweitert sich der Raum des Laubengangs zu gemeinschaftlichen Begegnungszonen. Für den Altbau sind bis auf den Einbau von Etagenküchen in den oberen Geschossen keine grösseren Eingriffe vorgesehen.

Im Hochparterre planen die Architekten Atelier­wohnungen mit einem direkten strassenseitigen Eingang. Insgesamt fügt sich das Projekt stimmig in die bestehende Quartier­struktur ein, und auch wirtschaftlich und nachhaltig scheint die kompakte Form eine gute Lösung zu sein. Allerdings empfand die Jury den Vorschlag als architektonisch etwas zurückhaltend.

Variantenreiche Neuinterpretationen

Die klassische Weiterführung des Blockrands entspricht im Wesentlichen dem Grund­gedanken der Quartiererhaltungszone. Andere Architek­turteams interpretierten die Situation aber auch neu. Sie schlugen Anbauten vor, die an nur einer Seite des Hauses Eber platziert werden. So würde eine der beiden Strassenachsen akzentuiert. Andere wollten das Bestandsgebäude als Solitär erhalten und durch einen stirnseitig an der Bullingerstrasse situierten Neubau ergänzen. Auch teils oder ganz geschlossene Ringformen waren als Projektvorschläge eingegangen.

Die Eingaben zeigten ein viel­seitiges Spektrum an Möglichkeiten, und viele Teilnehmende suchten nach besonderen Konzepten, die sich bezüglich Erschliessung, Aussenraumgestaltung und Grundrissorganisation vom regulären Wohnungs­bau unterscheiden. Aufgrund der städtebaulichen Situation und den Anforderungen an den Entwurf entschied sich die Jury mit «Lena» für eine konventionelle, qualitativ jedoch hochwertige und schöne Lösung.

Einst peripher, jetzt zentral

Mit besonderem Augenmerk auf die in Zürich geforderte städtische Nach­verdichtung ist das Projekt ebenfalls positiv zu bewerten. Das Grundstück an der Herdern-/Bullingerstrasse gehörte früher eher zu den Zürcher Aussenbezirken. Heute ist das Stadtzentrum jedoch an das Quartier herangewachsen, das nicht zuletzt wegen des benachbarten Letzistadions zu einem belebten Ort mit viel Verkehr geworden ist. Die an das Haus Eber anschliessenden Grundstücke sind geprägt von Parkplätzen, Flachbauten und einer VBZ-Busgarage. Man wünscht sich hier eine ähnlich verdichtende, trotzdem umsichtige kleinteilige Blockrandbebauung, die sich in das bestehende Quartier einfügt und das ursprüngliche Stadtbild Zürichs unterstreicht.

Weitere Pläne und Bilder finden Sie in der Rubrik Wettbewerbe.

Auszeichnungen
 

1. Rang, 1. Preis: «Lena»
Wild Architekten, Zürich


2. Rang, 2. Preis: «Okay jetz»
Clou Architekten, Zürich


3. Rang, 3. Preis: «Gastg.eber»
Herger Luchsinger Architekten, Risch-Rotkreuz, mit Erni Grimm Architekten, Zollikon


4. Rang, 4. Preis: «Uhu»
Zita Cotti Architekten, Zürich, mit Kolb Landschaftsarchitektur, Zürich


5. Rang, 5. Preis: «Aurora»
Fiederling Habersang Architekten, Zürich


6. Rang, 6. Preis: «Atrium Blume»
Stefanie Scherer Architektin, Zürich, mit Mettler Landschaftsarchitektur, Gossau


7. Rang, 7. Preis: «Bacchus»
Bollhalder Eberle Architektur, Zürich

FachJury
 

Jeremy Hoskyn, Amt für Hochbauten, Zürich
 

Rahel Lämmler, Amt für Städtebau, Zürich
 

Mischa Spoerri, Architekt, Zürich
 

Johanna Blättler, Architektin, Luzern
 

Lukas Schaffhuser, Architekt, Zürich
 

Raphael Schmid, Architekt (Ersatz)

 

SachJury
 

Patrik Suter, Geschäftsführer Jugendwohnnetz Juwo


Marie-Louise van Swelm, stv. Geschäfsführerin Juwo


Kurt Stamopoulos, Mitglied Stiftungsrat und Baukommission Juwo


Thomas Wernli, Liegenschaftenverwaltung Zürich


Felix Bosshard, Quartierverein Aussersihl-Hard (Ersatz)

Sur ce sujet