Wanne im Was­ser

Das neue Hauptgebäude der Swiss Re am Zürichsee ist ein Skelettbau mit Stahlbetonverbunddecken – so weit Routine. Doch die Arbeit der Ingenieure von EBP war alles andere als alltäglich. Dem Tragwerk blieb wenig Platz, und der Ersatzneubau schwimmt regelrecht im Wasser.

Date de publication
08-02-2018
Revision
12-02-2018

Den Mythenquai am westlichen Ufer des Zürichsees gab es so nicht immer. Erst mit der Aufschüttung der Quaianlage in den 1880er-Jahren erschloss sich das unzugängliche Sumpfland am See­ufer. Die Stadtbewohner erhielten eine Flaniermeile vom Zürichhorn am östlichen bis hin zum Belvoirpark am westlichen Ufer.

Der Mythenquai entstand – und mit ihm eine prominente Bauzone. Den Wandel von der öffentlichen Promenade hin zum Geschäftsviertel leiteten drei Versicherungsgesellschaften ein, die am Mythen- und am damaligen Alpenquai ihre Hauptsitze erstellten: 1897 die Rentenanstalt, 1899 die Zürich-Versicherung und 1913 die Schweizer Rückversicherungs-Gesellschaft, die heutige Swiss Re.

Die Lage war zwar attraktiv, doch der Baugrund am Seeufer äusserst diffizil. Als aufgeschüttetes Sumpfland ist dieser ein von Grundwasser gesättigter und nur schlecht tragfähiger und setzungsempfindlicher Untergrund (künstliche Aufschüttungen gelagert auf Seeschlamm und Seekreide; erst in etwa 20 m Tiefe finden sich gut gelagerte Silte). R. Henauer & J. Lee Bauinge­nieure liessen Mitte der 1960er-Jahre für den Neubau der Schweizer Rückversicherungs-Gesellschaft von Werner Stücheli, den Vorgänger des aktuellen Gebäudes, ein dem Standort angepasstes Verfahren einsetzen.

Die Konstruktion wurde in Deckelbauweise erstellt – zuerst die Bodenplatte des Erdgeschosses und danach schrittweise die Untergeschosse ins Erdreich hinein. Der Aushub der Baugrube erfolgte dabei jeweils unter der bereits erstellten Decke, zuletzt wurde die Bodenplatte eingebracht. Umringt sind die Untergeschosse von einer 60 cm starken und 25 m in den Untergrund reichenden Schlitzwand, die als Baugrubenabschluss funktioniert. Zusammen mit der Bodenplatte bildet diese Schlitzwand eine Wanne – schwarz abgedichtet –, die regelrecht im wassergesättigten Uferbereich treibt.

Unter dem Grundwasserspiegel

Anfang der Nullerjahre war der Stücheli-Bau in die Jahre gekommen. Den Studienauftrag zum Ersatzneubau «Swiss Re Next» gewannen 2008 Diener & Diener Architekten. Der Bestand musste weichen, aber seine noch einwandfreie Schlitzwand war ein zentrales Element der aktuellen Arbeiten. Ein Rückbau ohne die Sicherung dieses bestehenden Baugrubenabschlusses hätte fatale Folgen gehabt, ebenso eine unbedachte Demontage der Untergeschosse.

Für Baustellen, die sich wie hier unterhalb des Grundwasserspiegels befinden, müssen sich die Ingenieure mit komplexen bodenmechanischen Begebenheiten auseinandersetzen. Die Gebäudewanne könnte aufschwimmen, wenn der Auftrieb plötzlich grösser ist als die Last. Ein Aushub kann nur trockenen Fusses geschehen, wenn der Wasserspiegel innerhalb der Schlitzwand abgesenkt wird. Eine Wasserhaltung mit Abpumpen und Wiedereinleiten ist notwendig.

Durch die Absenkung des Wasserspiegels entsteht in diesem wenig durchlässigen Boden ein hydrostatischer Druck von unten gegen die Sohle. Ihm entgegen wirkt einzig die vertikale Last, die innerhalb der Baugrube auf die Sohle wirkt. Ist sie zu klein, kann es zu einem verheerenden Sohlenaufbruch kommen.

Ausserdem wirken starke seitliche Kräfte auf den Baugrubenabschluss. Aktiver Erd- und Wasserdruck presst die Schlitzwand in die Baugrube hinein. Bliebe diese nicht durch die bestehenden Untergeschossdecken und die Bodenplatte gestützt – sie wirken wie Spriesse –, so würden die horizontalen Kräfte zum Kollaps des Baugrubenabschlusses führen, was drastische Konsequenzen für die direkte Umgebung hätte. Trotzdem musste auch der Bestand in den Untergeschossen ersetzt werden.

Stets im Kräftegleichgewicht

Aus diesem Grund entwickelten die Bauingenieure ein sorgfältiges Konzept für den Rückbau des Bestands. Statt der Decken übernahm eine temporäre Spriessplattform die Stützfunktion, und die Bodenplatte wurde in kleinen Teilen von 15–70 m2 sukzessive ersetzt. Zudem liessen sie 20 Kleinfilterbrunnen bohren, durch die das Grundwasser stetig abgepumpt und der Wasserspiegel, der sich normalerweise etwa 1 bis 2 m unter dem Stras­senniveau am Mythenquai befindet, innerhalb der Baugrube sukzessive gesenkt wurde.

Der Porenwasserdruck unterhalb Unterkante Schlitzwand wurde mithilfe von Überlaufbrunnen entspannt, womit die Sicherheit gegen einen Sohlbruch gewährleistet war. Der Bau­prozess war minu­tiös und in klar abgestimmten Phasen auf dieses Konzept ausgelegt.
Zuerst erfolgte der Rückbau des Bestands in klassischer Weise bis hinunter ins erste Untergeschoss. Parallel dazu liessen die Ingenieure entlang der Schlitzwand vertikale Stahlträger und mit ihnen verbundene Longarinen einbauen.

Die Spriessplattform wurde direkt nach dem Rückbau des ersten Unter­geschosses eingebaut. Sie ist eine tischartige Kon­struktion aus über 1000 t Stahl und besteht aus einem etwa 55 × 80 m grossen und 6.8 bis 8.8 m weit ge­rasterten Trägerrost aus HEB500-Profilen über den gesamten Baugrubengrundriss (vgl. Foto). Dieser Rost lagerte auf HEB300-Stützen, die durch den Restbestand hindurch auf bereits neu betonierte Bodenplattenteilstücke platziert wurden. Sobald die Spriess­plattform fertiggestellt war, gaben hydraulische Pressen an allen vier Stirnseiten des Rosts Kräfte von 100 bis 200 t auf die vertikalen Stahlträger ab. Über die Longarinen wurden diese auf die Schlitzwand übertragen.

Ähnlich einem Tunnelschalwagen – aber horizontal angeordnet – übernahm ein Schild aus vertikalen Stahl­trägern und Longarinen die Stützfunktion des Baugrubenabschlusses und entlastete schliesslich die Decken des Bestands. Diese Kraftumlagerung ermöglichte den weiteren Rückbau ohne ungewollte Verformungen der Schlitzwand und damit ohne Setzungen des Baugrunds ausserhalb der Baugrube.

Zwischen dieser temporären Konstruktion konnten die Bauarbeiter unter stetiger Beobachtung und Messung der Baugrube die bestehende Altbau­substanz rückbauen, die zusätzlich notwendigen schwimmenden Pfähle für die Fundation setzen (900 Selbstbohrpfähle mit Mantelreibung), etappenweise die Bodenplatte ersetzen, Schutt abtransportieren und den neuen Beton für die drei wasserdichten Untergeschosse einbringen.

Der Wasserspiegel wurde den Rückbauarbeiten und der entsprechenden Last­reduktion folgend abgesenkt und danach wieder angehoben. Sobald die Decke über dem zweiten Untergeschoss vollständig eingebaut war, konnten die Spriessplattform insgesamt zurückgebaut und die verbliebenen Öffnungen in den neuen Decken zubetoniert werden. Ab diesem Zeitpunkt erst nahm man den Fortschritt des Ersatzneubaus wahr – nach fast eineinhalb Jahren.

Aus Betonwanne wächst Skelettbau

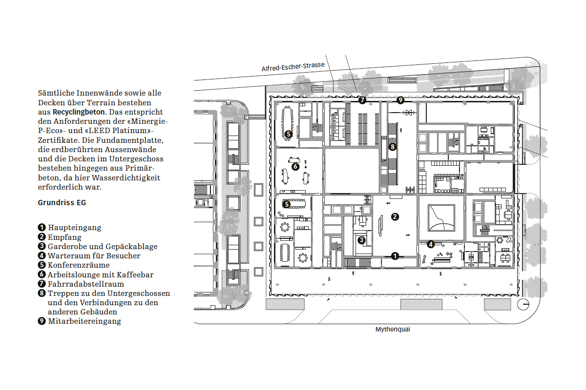
Im folgenden, für die notwendigen Arbeiten zeitlich knapp bemessenen Jahr schossen die weiteren sieben Geschosse als kompakter Quader mit einem Grundriss von 57 × 71 m regelrecht aus dem Boden in eine Höhe von 25 m. Auf dem Erdgeschoss mit dem Eingangsbereich stapeln sich fünf Obergeschosse, von denen vier als Grossraumbüros dienen und das oberste seeseitig für in­formellere Tätigkeiten konzipiert ist (vgl. Grundriss EG).

Der Bau unter Terrain ist statisch ein Massivbau mit Flachdecken auf vorfabrizierten Stützen und Wandscheiben. Die Decken funktionieren auch als Scheiben, die im Endzustand die bestehende Schlitzwand dauerhaft abstützen und horizontale Einwirkungen aus Wind- und Erdbebenlasten in den Baugrund ableiten. Das Bauwerk über Terrain ist hingegen ein Skelettbau mit vorfabrizierten Stahlstützen und gedrungenen Stahl-Beton-Verbunddecken. Die Stützen sind aus Vollstahlrohren mit einem ergänzenden Stahlmantel ge­fertigt, deren Zwischenraum aus brandschutzspezifischen Gründen vor Ort ausbetoniert wurde.

An den Fassaden stehen runde Profile mit einem von den oberen bis zu den unteren Geschossen von 250 bis 450 mm zunehmenden Durchmesser. Im Innern stehen auch Vierkantrohre. Generell spannen die Primärträger als geschweisste Blechträger senkrecht zur Strassenachse. Die grossen Spannweiten von bis zu 14 m ermöglichen flexibel nutzbare Grossraumbüroflächen.

Die Sekundärträger aus HEB550-Profilen, die als Verbundträger ausgebildet sind, verlaufen orthogonal dazu. Die Trägerunterkanten liegen in derselben Ebene, und die 18 cm starke Betonplatte auf Verbundblechen ist schubfest mit den Stahlträgern verbunden. Die gesamte Konstruktionshöhe inklusive der untergehängten Decke beträgt nur 75 cm.

Um die Medien und das Tragwerk in dieser reduzierten Konstruktions­­höhe unterbringen zu können, sind alle Träger systematisch für Medienleitungen perforiert (vgl. Fassadenschnitt). Nur bei den Kernzonen, wo HLKS-Leitungen aus den Erschliessungsschächten austreten, erleichtern 30 cm starke Flachdecken die Leitungsführung.

Zwei Atrien durchstossen den Quader vom Erdgeschoss bis zum Dach und belichten die inneren Flächen der 72 × 58 m grossen Grundrissfläche. Vier Betonkerne, die die Etagen erschliessen und im steifen Stahlbetonkasten des Untergeschosses eingespannt sind, steifen des Gebäude gegen horizontale Kräfte aus.

Vorhang vor Verbundbau

Umhüllt wird der kompakte Quader von einer zweischichtigen Glasfassade. Die äussere Haut ist gewellt und hängt als Vorhang an auskragenden Konsolen. 914 Glaswellen bringen es auf ein Gewicht von 377 t. Der obere, höher frequentiert gewellte Vorhang hängt über Chromstahlstangen am sechsten Obergeschoss, der untere, breiter gewellte Vorhang am vierten Obergeschoss. An den Anschlussstellen ergänzten die Bauingenieure den Trägerraster der Decken mit zu­sätzlichen Tertiär­trägern, um die Torsion des Fassaden­trägers auffangen zu können.

Der Ersatzneubau ist aus tragwerksspezifischer Sicht also ein Stahl-Beton-Verbundbau mit einem Skelettbau als Tragstruktur, kein Glasbau. Das Glas ist nur die Fassade – der Vorhang, der das Tragwerk transparent einhüllt. Es bildet die Schauseite, die das Gebäude nach aussen repräsentieren soll und damit auch den Zeitgeist widerspiegelt – so vergänglich dieser manchmal auch sein mag. Das Tragwerk dahinter bezeugt als solide Ausführung hingegen Beständigkeit.

Am Bau Beteiligte
 

Bauherrschaft
Swiss Re Investments, Zürich
 

Generalplanung
ARGE Generalplaner Swiss Re Next; Diener & Diener Architekten, Basel; Proplaning, Basel
 

Architektur
Diener & Diener Architekten, Basel
 

Tragwerk
Ernst Basler + Partner, Zürich
 

Baumanagement
Proplaning, Basel
 

Tiefbauplanung
Suisseplan Ingenieure, Zürich
 

Fassadenplanung
Emmer, Pfenninger + Partner, Münchenstein
 

Elektroplanung, MSR, technische Koordination
Sytek, Binningen
 

HLKS-Planung, räumliche Koordination
Dr. Eicher + Pauli, Liestal
 

Lichtplanung
LichtKunstLicht, Bonn
 

Landschaftsarchitektur
Vogt Landschaftsarchitekten, Zürich
 

Arbeitsplatzgestaltung
Sevil Peach, London
 

Zertifizierung / Label
Minergie-P-Eco, LEED-Platinum

Sur ce sujet