Trans­for­ma­tion du temple de la Fus­te­rie à Ge­nève

Garder le vide et le conforter

La restauration du temple de la Fusterie, à Genève, se base d’abord sur un constat: chaque année, et suite à la disparition de son radier, le bâtiment subit un tassement différentiel qui le fait pencher en direction du lac. Cette problématique est aujourd’hui devenue un moteur de projet.

Date de publication
26-01-2022

Alors que le nombre de fidèles baisse avec constance, l’Église repense la manière de poursuivre ses deux missions: celle, sacrée, et celle d’organisation sociale, articulées au sein du lieu de culte. «Qu’est-ce qu’une église? Elle peut se résumer à l’autel autour duquel les fidèles se réunissent; c’est une table ­au-­dessus de laquelle il y a un toit» pourrait-on retenir de la dernière Journée suisse du patrimoine religieux, qui s’est tenue à l’Université de Berne le 27 août 2021. Pourtant, de plus en plus de projets de rénovations d’édifices religieux sont refusés par les commissions du patrimoine car ils proposent de supprimer les bancs qui articulent aujourd’hui l’espace et les rites. Enlever les bancs pour rendre les usages flexibles et proposer de nouveaux programmes: voilà notamment l’une des propositions du projet de restauration du bureau Féroé architectes pour le temple de la Fusterie, à Genève.

Édifié au début du 18e siècle, le temple de la Fusterie est situé dans l’hypercentre genevois, en rive gauche. Tout en étant fréquenté par la bourgeoisie, il a surtout été utilisé par des réfugiés huguenots pour leur permettre de pratiquer leur culte, suite à la révocation de l’édit de Nantes. Par ailleurs, le concepteur du temple – Jean Vennes, architecte et ingénieur – était lui-même un réfugié de Sommières, dans le Gard.

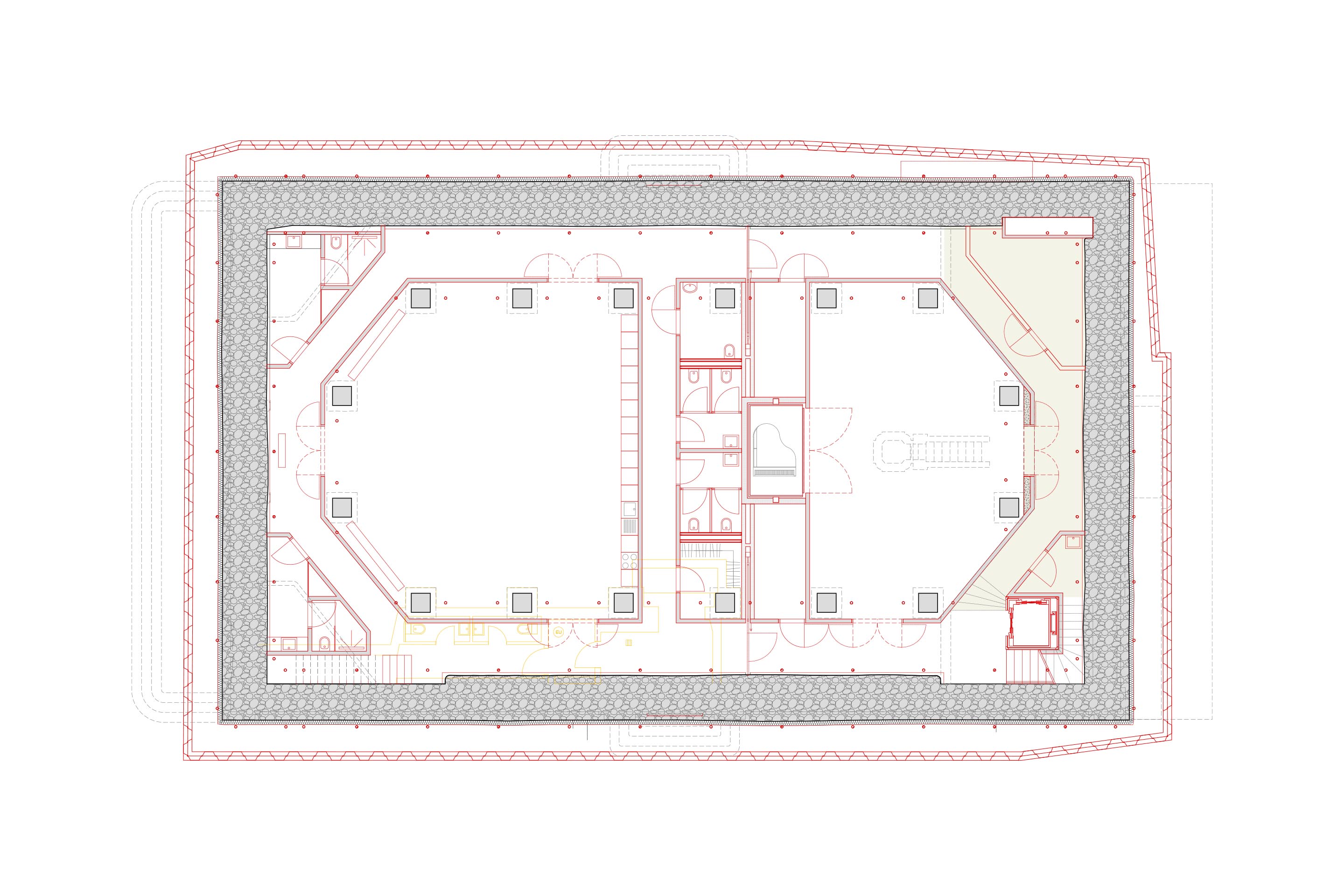
Peu à peu, le lieu a été délaissé et mal entretenu durant les siècles suivants. Situé à la croisée des rues marchandes les plus visitées de Genève, le temple, par sa situation et son plan ouvert sur quatre façades, est un lieu qui se prête à devenir un jalon culturel de la ville. Construit sur les remblais de l’ancien port de la Fusterie, le temple possédait un radier en bois, directement posé sur le limon, et occupant environ 50% de la surface des fondations.

ll ne reste aujourd’hui plus que l’empreinte en négatif de ce radier, lequel s’est totalement putréfié suite à l’abaissement de la nappe superficielle. Le bâtiment repose donc désormais sur des fondations de boulets assemblés à la chaux – une situation fragile : les relevés ont souligné un tassement différentiel de l’édifice, qui penche en direction du lac, à raison de 1 à 1,5 mm par an. On note à l’heure actuelle une différence de niveau de 28 cm entre les façades nord et sud du bâtiment. L’enjeu de cette restauration est donc non seulement de trouver une solution pour les fondations du temple, mais aussi de créer des espaces pour l’exploitation future, afin de permettre le développement de nouveaux usages.

Le bureau Féroé architectes, après avoir mis au jour cette problématique à la suite de longues analyses avec les ingénieurs d’Ingeni et de Gadz, s’empare de ce constat pour en faire un moteur de projet. La première hypothèse pour consolider les fondations était l’utilisation de micropieux, insérés de part en part dans les fondations: celle-ci n’a néanmoins pas été retenue car elle engendrait paradoxalement une atteinte irrémédiable à la substance historique en sous-sol. Les architectes ont préféré une autre option: excaver pour permettre l’insertion de longrines en béton dotées de micropieux de chaque côté des fondations et sous les 16 piliers intérieurs. Ces travaux nécessitant une excavation importante, il s’avère plus judicieux de conserver le vide pour permettre l’augmentation de la surface utile: ce qui a, depuis le début du siècle dernier, toujours constitué une problématique importante quant à l’exploitation de l’édifice, lequel est doté d’une magnifique nef, mais totalement dépourvu d’espaces secondaires. L’espace ainsi dégagé, articulé par des partitions en terrabloc, sera équipé d’une salle polyvalente, de loges avec douches et sanitaires, d’un dépôt permettant d’accueillir un piano à queue et du matériel de scène, de locaux techniques et des toilettes accessibles aux personnes à mobilité réduite.

Temple de la Fusterie, Genève (GE)

 

Maître d’ouvrage: Fondation pour la conservation des temples genevois (construits avant 1907)

 

Architecture: Féroé architectes

 

Ingénierie civile: Ingeni

 

Géotechnique et environnement: Gadz

 

Ingénierie énergie: Énergestion

 

Géomatique: hkd géomatique

 

Réalisation: 2022-2025

Sur ce sujet