Si­lence, on su­ré­lève

Construire la ville sur la ville, sans tapage : malgré les efforts et la patience pour la réaliser, une fois l’échafaudage retiré, cette opération de surélévation menée par Jaccaud & Associés s’avère pratiquement imperceptible depuis la rue.

Date de publication
02-11-2023

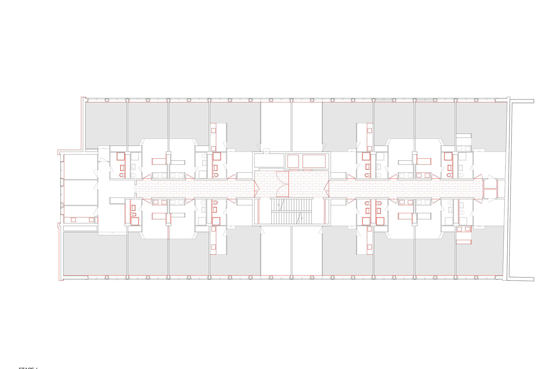
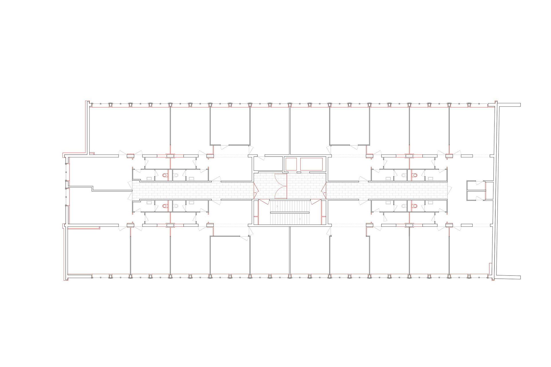
L’immeuble situé aux 42-44 rue de Lausanne, à Genève, a été construit en 1962 par les frères Zollikofer pour accueillir des commerces (rez-de-chaussée), des bureaux (niveaux 1, 2 et 3) et des logements (étages 4, 5, 6, 7 et attique). Conçu de manière pragmatique, il s’organise autour d’un noyau central avec un système porteur poteaux-dalles. En 2013, il fait l’objet d’un mandat d’étude parallèles (MEP) lancée par son propriétaire zurichois, un fonds immobilier suisse (SGI) et remportée par le bureau Jaccaud & Associés avec une approche patrimoniale sensible, pragmatique et durable. L’intervention porte sur la transformation des deux derniers étages existants dont l’attique, l’ajout de deux nouveaux étages et l’isolation de l’entier du bâtiment. Elle s’inscrit dans la continuité des logiques constructive et architecturale de l’existant, dans un environnement urbain hétéroclite, d’architectures et de gabarits variés.

Occupant l’angle nord-est du carrefour avec la rue du Môle, le bâtiment surélevé s’intègre parfaitement dans le front bâti de la rue de Lausanne grâce une transition subtile et sensible entre l’ancienne façade et la nouvelle. En effet, les panneaux originaux des contre-cœurs – constitués d’une mosaïque de marbre – étaient en bon état et sans défaut d’étanchéité. Les architectes, pour des raisons économiques, écologiques et architecturales, proposent donc une isolation intérieure, permettant la conservation de la façade des années 1960 tout en répondant aux standards énergétiques. Aussi la façade des étages en surélévation est-elle prolongée par un système constructif constitué d’une ossature de profilés en aluminium verticaux et horizontaux, qui articule la transition entre existant et nouveau. Pour assurer une cohérence visuelle entre les deux parties, les architectes emploient de nouveaux panneaux de mosaïque en verre, moins onéreux que le marbre. Ce changement de matériau reste cependant perceptible selon la lumière et les différents reflets qu’induisent les mosaïques de verre et de marbre.

L’opération de surélévation se lit dans les dimensions réduites des contre-cœurs des nouveaux étages mais l’ajout de brise-soleil sur l’entier de la façade renforce la lecture d’un bâtiment uniforme. Les stores sont intégrés dans les contre-cœurs de la nouvelle façade, alors qu’ils sont posés en applique sur les profilés en aluminium existants, répondant de manière simple et efficace aux contraintes constructives de la façade et aux exigences thermiques.

Construire

La nouvelle construction, composée de dalles mixtes béton-acier et d’une structure ponctuelle en acier, n’a pas nécessité une consolidation structurelle en sous-œuvre mais uniquement quelques renforts aux trois premiers étages de bureaux. Cependant, l’ajout de deux niveaux sur le volume initial implique d’autres contraintes techniques sur la substance existante. Pour des raisons liées aux normes sismiques, des câbles de précontraintes relient la surélévation aux fondations du bâtiment. Par ailleurs, la nouvelle hauteur du bâtiment1 implique un système de voies de fuite renforcé impactant directement les espaces communs tels que les cages d’escaliers et les couloirs de desserte. Concernant le raccord technique des nouveaux étages, les gaines originellement généreuses ont permis d’intégrer la majorité des nouveaux conduits. Néanmoins, des gaines supplémentaires ont été introduites dans certaines salles de bains rénovées à cette occasion. Ces procédés, qui ont minimisé l’impact des transformations sur les étages existants, permettent au propriétaire une certaine flexibilité sur les temporalités de rénovation.

Loger

L’opération aura permis d’augmenter la surface utile du bâtiment et d’offrir au parc immobilier genevois 22 logements supplémentaires. Basés sur les typologies existantes, les quatre derniers étages sont organisés en duplex et simplex comportant des appartements traversants. Selon la LDTR2, les loyers des étages transformés (7e et 8e) sont plafonnés pour cinq ans, alors que ceux des appartements existants rénovés le sont durant trois ans.

La surélévation à Genève reste une pratique controversée. Les critères d’application des dérogations par les instances légales ont dû être précisés au fil des années et coordonnés entre les Communes et le Canton. Le cas de la rue de Lausanne 42-44, qui a fait l’objet d’un recours par la Ville de Genève à l’époque de sa mise à l’enquête en 2015, est un exemple traduisant les difficultés de l’application de l’article 11 de la Loi sur les constructions et installations (LCI) et de sa marge d’interprétation. Dans l’hypercentre genevois, la stratégie de densification par la surélévation, qui visait initialement à pallier le manque de logements et l’étalement urbain, est confrontée aux enjeux d’habitabilité et de durabilité. Cette pratique n’impacte pas uniquement le parc immobilier genevois et le patrimoine bâti mais également les espaces publics adjacents, les infrastructures urbaines et la cohésion sociale de quartier. Les opérations de surélévation sont donc évaluées selon plusieurs critères, tels que, notamment, l’intégration dans un front bâti, le rapport à la rue et aux bâtiments voisins, l’impact sur l’ensoleillement, les choix architecturaux et l’habitabilité. La question du futur de ces nouveaux types de logement et le droit au logement font également partie du débat. Au-delà des cinq années durant lesquelles des loyers modérés sont imposés, ces logements, qui bénéficient d’une situation avantageuse dans l’hypercentre de Genève, s’adresseront uniquement à une partie aisée de la population, ce qui questionne la durabilité et la pérennité d’un habitat pour toutes et tous en centre-ville.

Notes

 

1 La nouvelle hauteur du bâtiment implique le respect des directives de protection incendie de la catégorie «bâtiment de hauteur élevée».

 

2 La Loi sur les démolitions, transformations et rénovations (LDTR) de maisons d’habitation introduit des mesures de soutien en faveur des locataires et de l’emploi.

Surélévation d’un immeuble à la rue de Lausanne 42-44 et création de 22 appartements, Genève (GE)

 

Maître d’ouvrage
Intershop Holding

 

Architecture
Jaccaud & Associés

 

Entreprise totale
Implenia Suisse

 

Génie civil
Synaxis

 

Ingénieur CVS et physique du bâtiment
Energy Management

 

Projet
2013-2015 (projet arrêté en raison d’un recours)

 

Réalisation
2019-2021

 

Surfaces nettes (SN) existantes
6575 m2

 

Surfaces nettes (SN) créées
1410 m2

 

Coût
CHF 16,84 mio

Magazine

Sur ce sujet