Res­tau­rer, en­ve­lop­per, su­ré­le­ver

Date de publication
23-10-2023

La livraison attendue de ce projet à Genève clôt un long débat1. Oui, on peut faire des opérations de surélévations vertueuses à tous points de vue, même dans le quartier qu’on dit être «le plus dense de Suisse»2 – et qui se trouve être également un secteur ISOS. Bien des immeubles de la rue de la Servette avaient déjà été surélevés, avant la loi 10080 de 2008. Avec des résultats plus ou moins réussis, et parfois franchement ratés, si bien que l’ensemble de la rue a été soumis à un épannelage, une notion un peu abstraite qui sert à niveler harmonieusement la «ligne de crête» que forment les immeubles bien visibles en montant depuis la gare de Cornavin.

Plus bas que ses voisins, le numéro 37, déjà surélevé une première fois en 1896, puis transformé à plusieurs reprises, créait une sorte de dent creuse dans ce paysage. La fondation HBM Jean Dutoit en hérite en 2000, lors de la répartition du portfolio de la BCGE en faillite. C’est une casserolle, dans un état pitoyable: une partie du toit est bâchée et la mise en conformité s’avère difficile. Pourtant, la Ville s’oppose à deux reprises au projet de démolition/reconstruction déposé en 2010. Dans un contexte tendu, en plein débat sur les effets de la loi 10080, la fondation décide en 2017 de reprendre le projet à zéro et lance un concours portant sur la rénovation et la surélévation de l’immeuble. Or malgré le résultat exemplaire, malgré la garantie de la commission des monuments de la nature et des sites (CMNS) malgré l’assurance qu’il s’agira bien de logements subventionnés, la Ville répond à nouveau par un préavis négatif. La nouvelle législature lèvera l’opposition.

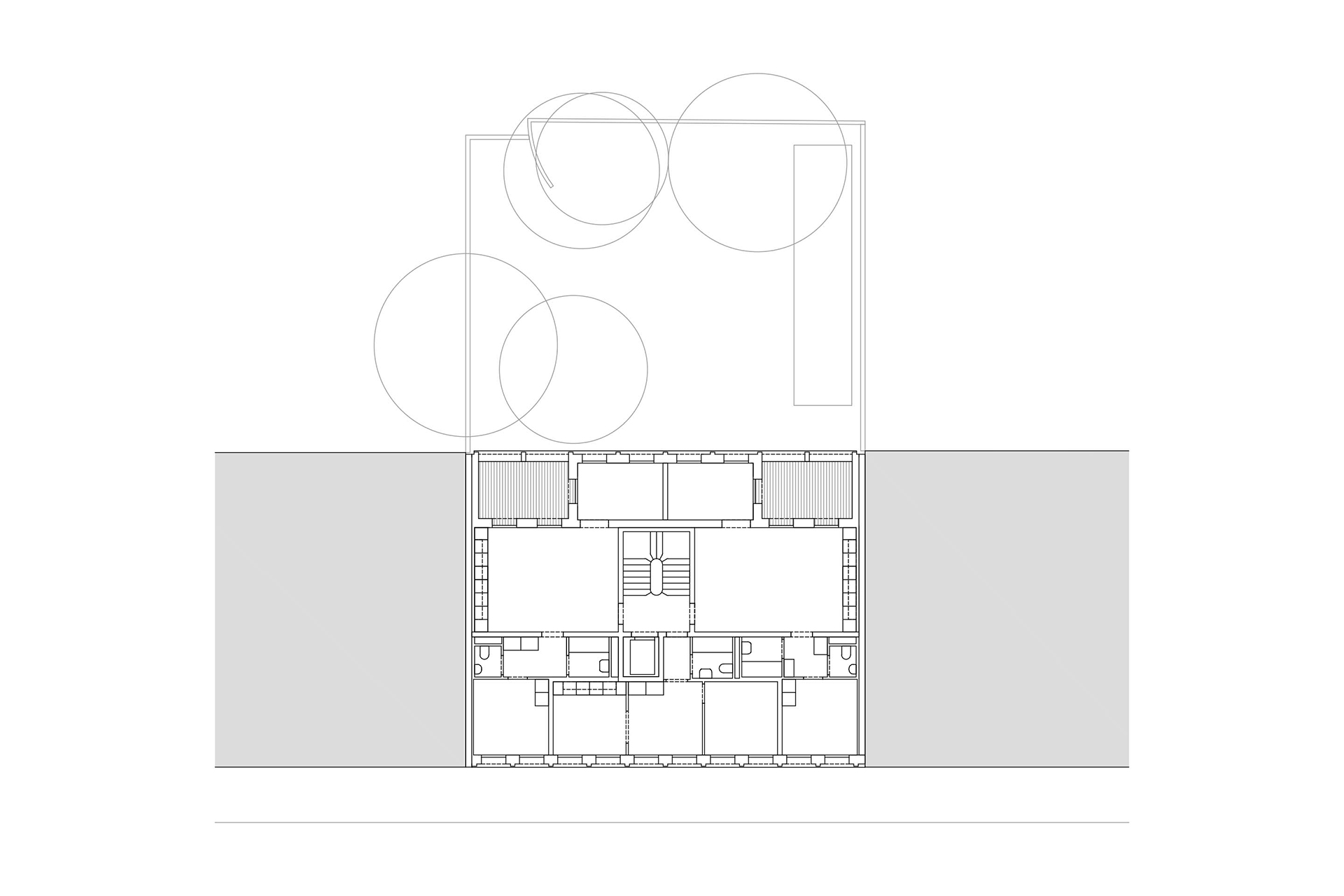
Le projet de Calanchini Greub Architectes propose un changement de langage assumé, tout en soignant la restauration. Il opère un changement typologique: en plaçant l’escalier et le nouvel ascenseur au centre du plan, trois appartements sur rue peuvent être distribués, ce qui répond à l’exigence d’accès pompiers. Au rez, l’ancien escalier devient un passage distribuant la cour et les locaux communs; à l’étage, il laisse place à une chambre. Les combles sont remplacés par deux étages habitables préfabriqués en bois et les appartements existants sont dotés de chambres et loggias dans une nouvelle couche, côté cour, également préfabriquée (caissons de mélèze teintés avec une peinture prégrisante).

Étant donné les enjeux patrimoniaux, la CMNS veille à ce que le projet réemploie au maximum la matière existante: menuiseries, portes, armoires et parquets seront démontés, stockés durant le chantier, puis réemployés dans les pièces côté rue. De ce côté, la façade est restaurée (ainsi que les ferronneries des balcons) et isolée de l’intérieur avec des matériaux perspirants (liège).

Pour le reste, il s’agit d’une rénovation lourde, pour répondre aux contraintes et normes actuelles (résistance structurelle, sismique, sécurité incendie, acoustique, énergétique, accès PMR). Les façades et les murs de refend sont conservés, mais tout le complexe de chape ainsi que la toiture sont entièrement reconstruits. Des reprises en sous-œuvre sont nécessaires pour la descente de charges. Dans les étages existants, les solives sont doublées et dans les nouveaux, on accroche des dalles à caisson bois, chargées d’une préchape (5 cm) et d’une chape (7 cm) pour répondre aux exigences phoniques.

Malgré l’investissement, la fondation HBM Jean Dutoit parvient à conserver les loyers actuels des appartements, alors même que, dans le cadre de la loi régissant les loyers (LDTR), ceux des appartements nouvellement réalisés pourraient théoriquement doubler. Or la fondation n’a pas vocation à tirer un bénéfice, elle œuvre au contraire à mettre à disposition des logements de qualité à une population à revenus modestes.

5+2: réhabilitation, agrandissement et surélévation d’un immeuble d’habitation rue de la Servette 37, Genève (GE)

 

Maîtrise d’ouvrage
Fondation HMB Jean Dutoit

 

Architecture
Calanchini Greub Architectes

 

Ingénieur bois
Charpente Concept

 

Ingénieur civil
FB Ingénieurs

 

Logements créés en surélévation
6 appartements, 452 m2 SP

Notes

 

1 Christian Bernet, «La Ville se déchire à nouveau sur le 37, rue de la Servette», Tribune de Genève, 01.11.2019

 

2 Olaf König, «Ce morceau de Genève est le km² le plus peuplé de Suisse», Tribune de Genève, 30.05.2023.

 

3 Voir Bojana Vasiljevic Menoud, «Conséquences urbaines des surélévations», in Surélévations, conversations urbaines, Infolio, 2018.

Magazine

Sur ce sujet