Re­mettre l’école au mi­lieu du vil­lage

Afin de rassembler plusieurs programmes scolaires auparavant dispersés dans le village, la commune de Tavannes (BE) s’est dotée d’une nouvelle école dont les qualités urbaines, architecturales et plastiques ne passent pas inaperçues. Les architectes zurichois de Raumbureau signent un projet d’une ambitieuse simplicité.

Date de publication
05-02-2024

Érigée au sommet d’une butte au centre de la commune, il serait difficile de ne pas remarquer la nouvelle école de Tavannes, dont le rouge soutenu se découpe sur les collines boisées en arrière-plan. Le village du Jura bernois, situé une vingtaine de kilomètres au nord de Bienne, bénéficie depuis la rentrée 2023 d’un nouvel équipement public alliant le ludique au fonctionnel.

Empiler les fonctions

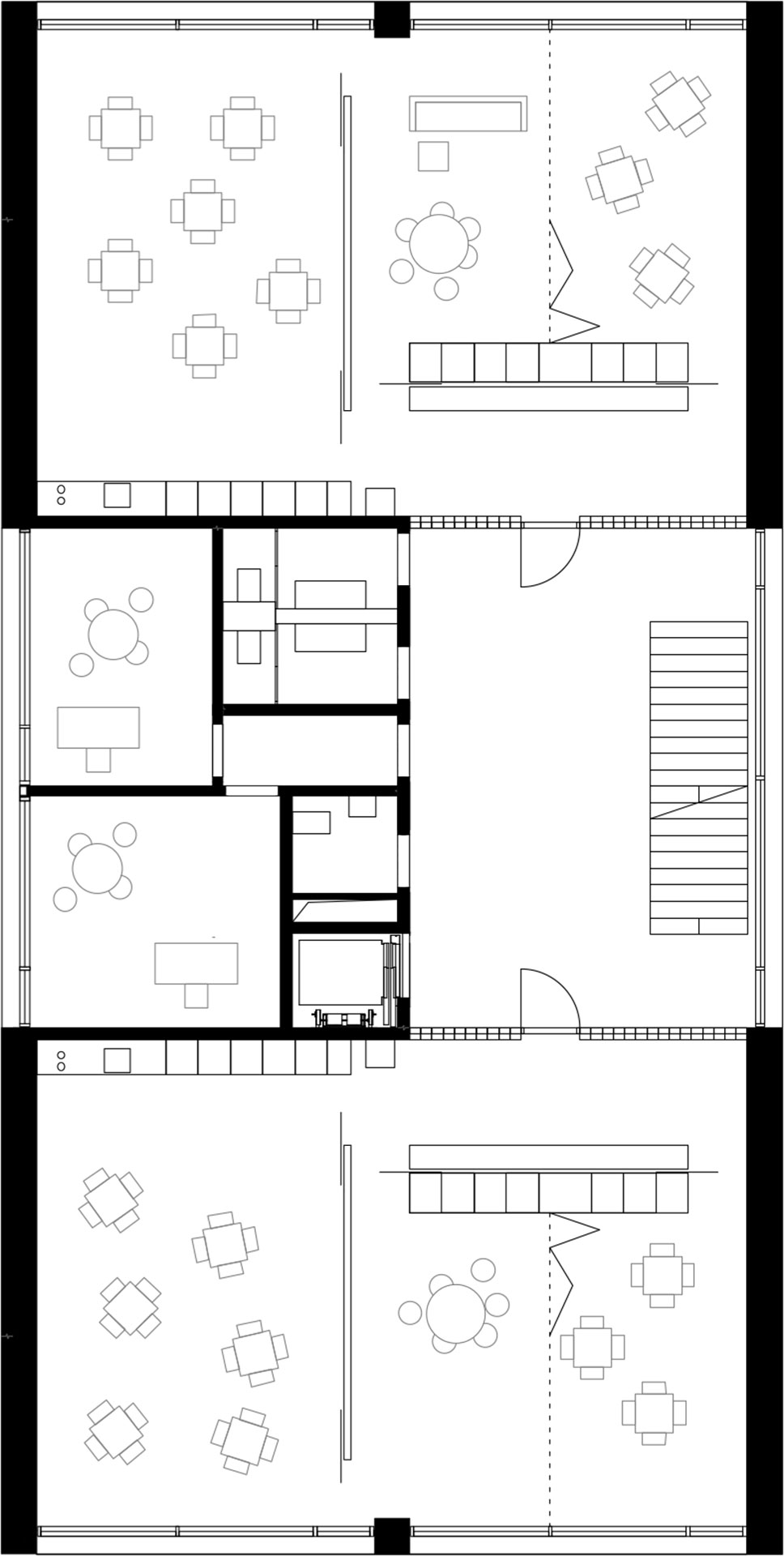
À la croisée de plusieurs rues et venelles, le bâtiment opère une centralisation tant urbanistique que programmatique. Les différentes fonctions accueillies – école enfantine, école continue1, psychomotricité, salle polyvalente – étaient auparavant éparpillées bon an mal an dans différents lieux du village. Leur synthèse en un édifice unique a fait l’objet d’un concours ouvert, qui a permis aux architectes zurichois de Raumbureau de développer une proposition fine et affirmée, dont le jury a salué le parti pris urbanistique fort, la qualité des espaces extérieurs en résultant, ainsi que la fonctionnalité de l’organisation intérieure.

C’est le choix de l’implantation urbaine qui influence la forme architecturale. Dans la parcelle donnée, les architectes dessinent un bâtiment élevé (trois étages) en retrait de l’espace central, qu’ils laissent libre. La cour de l’école est ainsi accolée à l’espace vert du centre sportif communal, créant une vaste place aux airs de jardin public dédié aux enfants. Celui-ci est entouré de bâtiments élevés (comme des immeubles collectifs anciens, mais aussi des édifices publics, par exemple l’école primaire de la commune), auxquels vient s’adjoindre la nouvelle école, reprenant leurs proportions, leur altitude, et les tons rouges de leurs toitures imposantes. La position de l’école, en hauteur et en fond de parcelle, permet non seulement d’aménager un généreux espace extérieur (actuellement en cours de finalisation par les architectes) mais laisse également ouverte la possibilité d’une extension du bâtiment, si la nécessité se présentait.

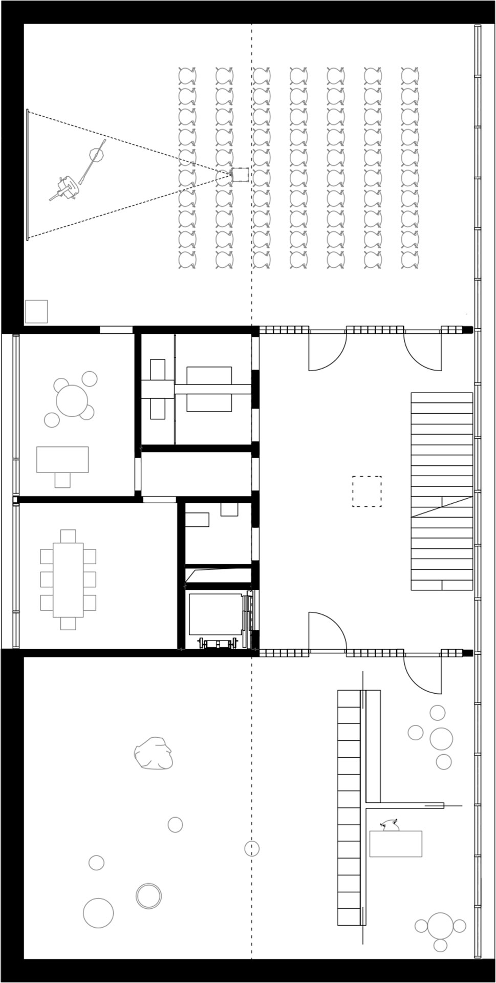
L’intérieur se caractérise par le même rouge que la façade, grâce à un double mur en béton teint dans la masse, accentuant l’aspect monolithique et le sentiment d’un bâtiment creusé dans un même bloc. Au rez-de-chaussée, les salles de l’école enfantine profitent d’un accès de plain-pied aux espaces extérieurs. L’autre face des classes donne sur le hall principal, accueillant un escalier droit recouvert d’un terrazzo sombre. La circulation est traitée comme une pièce majeure, collée à la façade vitrée et baignée de lumière. Elle distribue les salles de classe des différents niveaux, jusqu’aux bureaux administratifs, au dernier étage, ainsi que la salle polyvalente pouvant faire office de cour de récréation en cas de mauvais temps. Ce large espace flexible bénéficie d’une importante hauteur sous plafond, ainsi que de l’éclairage zénithal que prodigue le toit en dents de scie, référence aux usines du village. Enfin, malgré sa position au premier étage, l’école à journée continue comporte un espace extérieur attenant, avec un accès direct à la toiture de l’école enfantine.

Le projet par le masque

Le bâtiment semble pensé à la manière des «masques2» de l’architecte et poète John Hejduk, synthèses architecturales de l’imaginaire partagé d’une ville. En effet, le projet peut se lire comme un concentré chimérique des éléments architecturaux forts de son contexte direct… mais il ajoute aussi un nouveau personnage emblématique à cet inventaire local: l’enfant, en accentuant le caractère ludique de l’école. Comme le mentionne Rolf Jenni, architecte associé de Raumbureau, qui ne renie d’ailleurs pas l’influence de John Hejduk, le bâtiment évoque directement un dessin enfantin. Cet effet se fonde sur la teinte vive du béton, mais aussi sur les formes géométriques – avec le plan carré, le toit pointu, ou cet avant-toit en triangle équilatéral, dans le même béton que la façade – ainsi que sur l’apparente simplicité, derrière laquelle se cache un rigoureux travail de détails.

Car si le nombre de matériaux est restreint3, leur emploi témoigne d’une grande maîtrise, et sert une volonté architecturale précise. Les ouvertures, par exemple, sont les percements maximums réalisables dans le volume initial. Elles sont ainsi dessinées pour occuper toute la hauteur et toute la largeur possible. Le bandeau restant entre deux niveaux reprend exactement l’épaisseur de la dalle. Il en va de même pour les meneaux, qui traduisent l’épaisseur structurelle nécessaire et rendent explicite le schéma statique de l’édifice. Cette précision du geste architectural offre un sentiment de lisibilité du bâtiment, tant dans son fonctionnement que dans sa forme.

S’ajoute au travail des percements un dessin de menuiserie particulièrement lisse, les ouvrants étant maintenus sur le même plan que les partie fixes, créant une continuité entre les éléments et fluidifiant encore la lecture de la façade4. À l’intérieur, la technique est peu visible car peu présente, du fait du caractère low-tech d’un projet se limitant à l’essentiel. À titre d’exemple, les seuls locaux ventilés sont les sanitaires, les salles de classes étant aérées manuellement.

Un équipement public, à court et à long terme

Ainsi, la justesse du bâtiment, tant formelle qu’urbanistique, permet d’en faire un outil précieux, aujourd’hui comme demain. Dans l’immédiat, son fonctionnement pallie un manque majeur: l’édifice offre aux affectations scolaires concernées des espaces dédiés, fonctionnels et centralisés. Le bâtiment présente une réponse ciblée aux besoins listés au concours, dans une fluidité d’usages confortable.

La réussite d’un équipement public tient aussi à son inscription dans le temps long. Si la nouvelle école répond aux contingences du moment, elle ménage aussi les potentiels usages à venir. La flexibilité déjà prévue par les architectes (avec par exemple les salles de classe disposant de cloisons amovibles) est renforcée par la possible autonomie de chaque niveau, voire de chaque classe, au sein de l’ensemble. Enfin, la position de l’école dans la parcelle et son plan quasi diagrammatique permettent d’imaginer de futures extensions ou compléments, en fonction des besoins à venir.

Le projet présente donc une intervention en symbiose avec son environnement, émanant d’un contexte urbain spécifique, et le bonifiant durablement en retour, avec tout le travail de fond que demande une apparente simplicité.

Bâtiment scolaire, Tavannes (BE)

 

Maîtrise d’ouvrage
Municipalité de Tavannes / Service des travaux publics

 

Architecture 
Raumbureau

 

Direction de travaux
RB Direction de Travaux

 

Génie civil
ATB

 

Ingénierie CVSE
Energys

 

Concours
2018

 

Étude et réalisation
2021-2023

Notes

 

1 Accueil des enfants tout au long de la journée, en dehors des seuls horaires scolaires.

 

2 John Hejduk (1929-2000) est un architecte américain dont la pratique a notamment inclus la maîtrise d’œuvre, l’enseignement, ainsi que la publication de textes et dessins. Son travail de «masks» présente une approche singulière révélant par l’illustration, la poésie et le projet architectural l’épaisseur socio-culturelle spécifique à un lieu. Questionné sur son influence, Rolf Jenni, membre associé de Raumbureau, présente le travail de John Hejduk comme une référence indirecte mais importante.

 

3 Les principaux matériaux visibles sont : les murs en béton teinté dans la masse, le sol en terrazzo, les menuiseries en acier noir mat et les pavés de verre opaque.

 

4 Ce détail a été permis par l’usage de poteaux-traverses FWS 60 CV de l’entreprise Schüco, à l’aboutissement d’un dialogue nourri entre les architectes de Raumbureau et le fabricant.

Magazine

Sur ce sujet