Non fi­nito : lo­ge­ments coo­pé­ra­tifs dans un an­cien en­tre­pôt de cho­co­lat

La transformation d’un ancien entrepôt de chocolat en logements coopératifs à Berne relève d’une vision politique, architecturale et sociale à double échelle ; celle de la construction d’un quartier abordable dans un ancien site industriel et celle de la conversion d’un bâtiment obsolète pour créer un nouveau lieu de vie.

Date de publication
14-11-2022
Isabel Concheiro
Architecte, professeure et responsable du Joint Master of Architecture Fribourg, HEIA-Fribourg

Le déménagement, en 2013, de l’usine d’incinération communale vers la nouvelle centrale énergétique à Forsthaus a été l’occasion pour la Ville de Berne d’envisager la construction de logements abordables dans le site occupé depuis 1954. Outre les bâtiments de l’usine Warmbächli, le site hébergeait aussi l’entrepôt de chocolat Tobler, construit en 1962 et dévolu à des activités commerciales gérées par la Ville de Berne depuis 1984. À la suite de l’acquisition du site par le Fonds pour la politique foncière et du logement de la ville de Berne1 en 2012, un concours d’idées d’urbanisme a été organisé avec l’objectif de construire un nouveau quartier mixte d’environ 350 logements. À la différence d’autres propositions, le projet lauréat du bureau BHSF Architekten avec Christian Salewski proposait de «conserver les structures existantes dans la mesure du possible», notamment celle de l’ancien entrepôt de chocolat lequel, selon le programme du concours, «ne devait pas nécessairement être démoli». Si la Ville prévoyait initialement une moitié de logements d’utilité publique, elle a décidé finalement en 2016 «d’octroyer la totalité des logements aux maîtres d’ouvrage d’utilité publique (MOUP)»2. La Ville cèdera les terrains en droit de superficie à chaque coopérative qui «planifie et construit sa parcelle et organise un concours d’architecture»3, à l’exception de l’ancien entrepôt, dont le projet sera réalisé par le bureau BHSF sur la base du concours d’urbanisme. Parmi les six coopératives retenues à la suite de l’appel, la coopérative Warmbächli choisira, plutôt que de construire un nouveau bâtiment, d’explorer les possibilités de transformation de l’entrepôt.

Première expérience

Un projet de transformation de cette envergure est un défi. C’est d’autant plus le cas qu’il est mené par une nouvelle coopérative – sans expérience de construction préalable, fondée en 2013 par une cinquantaine de personnes qui voulaient «repenser comment habiter ensemble» –, et par un bureau relativement jeune – maîtrisant à l’époque, des projets de plus petite échelle. La vision de la coopérative, qui compte aujourd’hui plus de 200 habitants, d’un habitat «écologique, abordable, multigénérationnel et agréable à vivre» s’est développée pendant quatre ans lors de workshops et de discussions, qui ont pris place dans le bâtiment même4. Le terme «sous-estimé» est revenu plusieurs fois dans les conversations avec les architectes et les membres de la coopérative pour décrire un processus long et « hors du commun » qui s’est révélé très fructueux. Le projet est donc le résultat d’une étroite collaboration entre un maître d’ouvrage qui cherchait à «questionner le logement» et des architectes qui ont su à leur tour interroger le bâtiment existant, s’adapter à ses contraintes et révéler son potentiel comme espace habitable.

Une structure à habiter

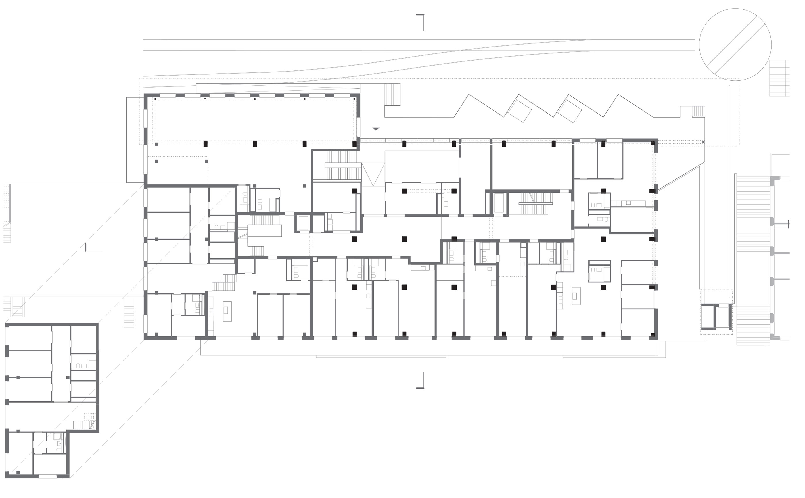
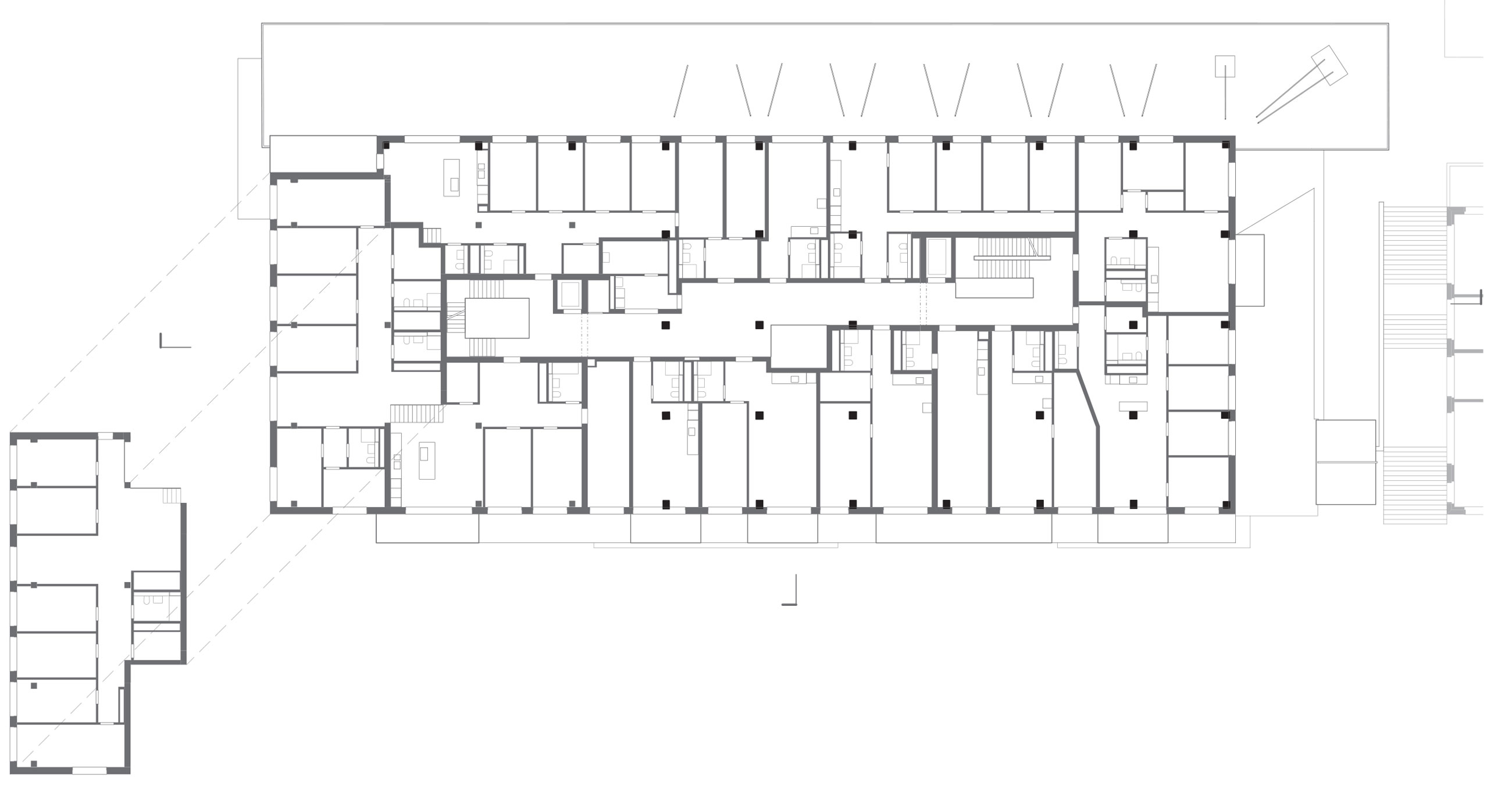
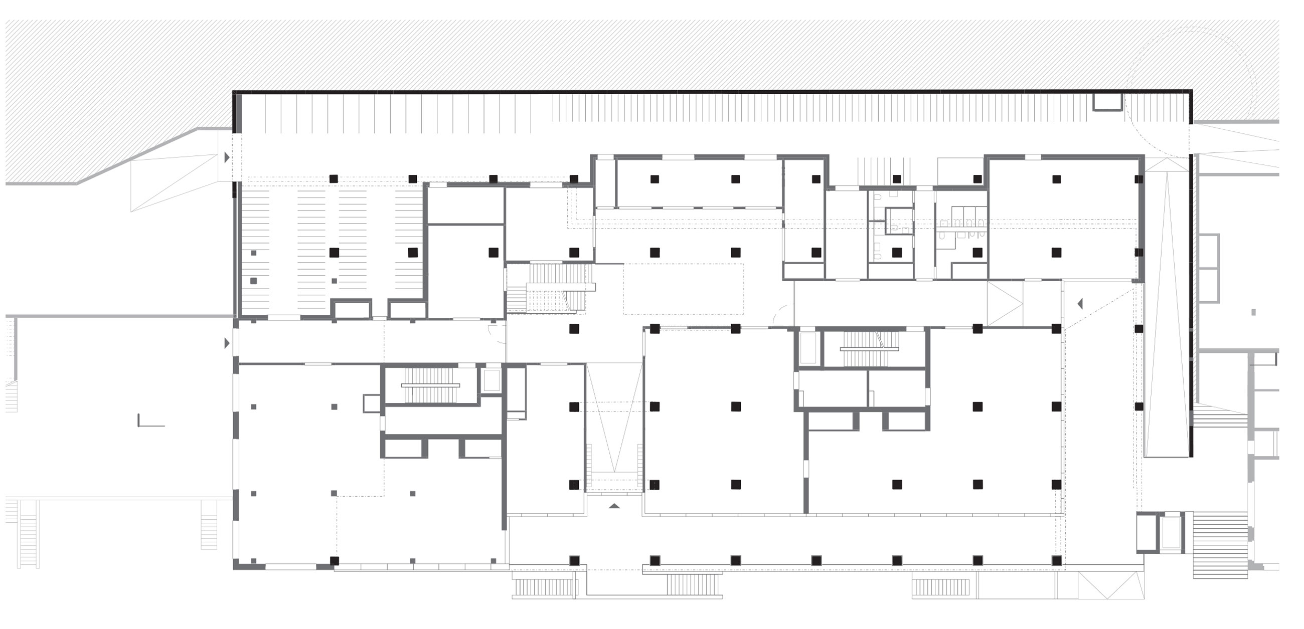
L’entrepôt à transformer était constitué de deux parties distinctes. D’un côté, une structure en béton de trois étages et trois niveaux de sous-sol, avec une grille structurelle de 6 m, une profondeur de 25 m et des hauteurs libres de 4,70 m au rez-de-chaussée, 3,60 m aux étages et environ 5 m au sous-sol. D’un autre côté, un silo qui servait à stocker les fèves de cacao, dont la conservation prévue au stade du concours s’est finalement avérée techniquement difficile, et qui a dû être démoli en même temps que les deux premières portées de la structure.

Les principales stratégies d’intervention dans cette structure ont été les suivantes:

  • une démolition sélective, d’une part, par l’ouverture de trois patios liés à la circulation, amenant lumière naturelle et visibilité aux étages, et par la création d’une cour extérieure qui éclaire les deux premiers niveaux souterrains, auparavant fermés;
  • un renforcement structurel, notamment de la dalle du deuxième et des piliers du troisième sous-sol, afin de reprendre les nouvelles charges, et en créant deux noyaux de circulation de béton qui assurent la résistance antisismique;
  • un ajout de deux types de constructions à la structure: une structure en béton qui termine le bâtiment du côté de l’ancien silo, et une surélévation de trois étages en construction préfabriquée bois située en retrait de la structure existante.

Les contraintes de départ – une grille structurelle et une profondeur ne correspondant pas aux standards de logements – sont intégrées dans le projet. D’une part en assumant la présence de la structure à l’intérieur des logements et dans les parties communes, et d’autre part, en travaillant avec la profondeur pour imaginer d’autres formes d’appropriation de l’espace.

Explorations typologiques

La coopérative cherchait à explorer de nouvelles typologies « permettant une mixité intergénérationnelle et différents modes d’habiter », ainsi que «des espaces où les habitants pouvaient se retrouver». La générosité et la diversité des espaces existants contribueront à définir les différents types de logements et espaces communs. Le projet propose environ 60 logements – allant des appartements de 1,5 à 6,5 pièces, des clusters de 10 à 15 pièces, à des espaces sans affectation – avec des typologies et des degrés d’appropriation variés. Les logements dans la structure existante sont des espaces hauts et profonds, appropriables par la construction de volumes et de mezzanines. Les logements en tête de bâtiment, situés à cheval entre l’ancienne et la nouvelle structure, sont organisés sur trois niveaux, avec une partie commune plus haute et des parties privatives dans deux demi-niveaux de 2,6 m situés dans la nouvelle structure.

Une partie importante du projet, et qui constitue un quart du programme, est la définition d’une série d’espaces communs tant à l’échelle du bâtiment que du quartier. L’espace commun principal, d’une hauteur de 10 m et situé dans le premier sous-sol, relie les deux accès à l’immeuble – en haut, vers l’ancienne plateforme de décharge qui est conservée et, en bas, vers le nouvel espace public du quartier. Il articule les services communs ouverts au quartier, comme le restaurant et la salle polyvalente. D’autre locaux commerciaux et des ateliers sont situés dans le deuxième sous-sol. Ils sont éclairés et liés au nouvel espace public par la cour créée dans la structure existante. Le cœur du bâtiment accueille à chaque étage des espaces de circulation généreux, que les habitants doivent encore s’approprier, tandis que le toit devient une terrasse commune dotée d’une cuisine.

Non finito

Dans la transformation de bâtiments industriels en logements, comment créer une nouvelle identité domestique à partir de l’existant ? Pour les structures à valeur patrimoniale, cette identité est largement définie par les qualités mêmes du bâtiment d’origine. Parmi les opérations pionnières des années 1980, citons la transformation de la filature Le Blan à Lille par Philippe Robert et, dans les exemples récents, l’usine Hug à Dulliken (SO) par Adrien Streich. Mais dans le cas d’architectures sans valeur patrimoniale reconnue, la recherche d’une nouvelle identité est principalement liée à une redéfinition de l’enveloppe, souvent en tissant des analogies avec le caractère industriel du lieu.

Dans la transformation de l’entrepôt Tobler, l’expression extérieure est définie par une façade uniforme en fibrociment qui exprime subtilement les variations des espaces intérieurs – soit par les différentes tailles des ouvertures, par les rythmes des balcons en porte-à-faux, ou encore par la lecture de la surélévation par une légère expression du joint. Mais à l’intérieur, le projet propose de «garder le lien entre ancien et nouveau le plus visible possible» et d’exprimer la matérialité brute et les traces d’usure de l’existant.

Par-delà les questions d’identité, les caractéristiques spatiales de l’entrepôt inscrivent l’opération dans une conception du logement renouvelée, dans laquelle les habitants sont invités à compléter et à s’approprier les espaces5. Du fait de leur générosité spatiale, les bâtiments industriels constituent des lieux d’expérimentation de l’habitat qui font émerger de nouvelles typologies, remettent en question certaines notions de privacité et de confort, et encouragent des formes alternatives d’appropriation de l’espace. Une approche architecturale de la notion de non finito, qui concerne à la fois les bâtiments existants et de nouveaux logements.

Avec mes remerciements à Rebecka Domig de la coopérative Warmbächli et à Pascal Hendrickx de BHSF Architekten.

Réaffectation de l’ancien bâtiment de stockage de Chocolat Tobler, Berne (BE)

 

Maître d’ouvrage:
Wohnbaugenossenschaft Warmbächli

 

Planificateur général:
BHSF Architekten et Itten+Brechbühl

 

Architecture:
BHSF Architekten

 

Concours urbanisme:
BHSF Architekten avec Christian Salewski

 

Génie civil:
Bänziger Partner (étude), Adrian Tschopp (projet)

 

Technique du bâtiment:
Basler & Hofmann West / Gruner

 

Gestion des coûts et direction de travaux:
Itten + Brechbühl

 

Concours:
2012

 

Étude:
2013-2014

 

Planification et réalisation:
2017-2021

 

Surface de plancher:
17 800 m2

 

Coût CFC 1-5:
38.3 mio CHF TTC

 

Notes

 

1. Sur le Fonds für die Boden und Wohnbaupolitik, voir bern.ch, onglet «Immobilien Stadt Bern»

 

2. Legnini, Patrizia, «Un ancien entrepôt de chocolat Tobler converti en logements», Habitation, juin 2022

 

3. Ibid.

 

4. baublog.warmbaechli.ch

 

5. Par exemple: le Loft Building «Tila» à Helsinki, conçu en 2010 par talli architectes, ou les logements-ateliers conçus par Degelo Architekten en 2020 à Bâle-Erlenmatt.

Sur ce sujet