Maison individuelle low-tech
Une construction développée de manière à ce que les maîtres d'ouvrage puissent réaliser la majeure partie des travaux eux-mêmes
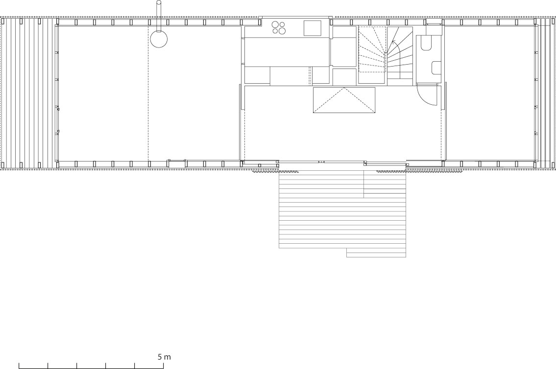
Il s’agit d’une petite habitation pour un menuisier retraité et sa femme à Sainte-Croix (VD). La maison s’implante à proximité de la menuiserie, en limite du jardin existant. Les deux façades longitudinales sont faites d’un bardage croisé en bois et les façades pignons sont entièrement vitrées. L’espace d’entrée de la maison est une pièce «caméléon» en double hauteur. Elle distribue à l’ouest un grand espace à vivre et à l’est un atelier. Les chambres se trouvent à l’étage, l’une s’ouvre sur le pignon est et la seconde, en second jour, sur le salon.
De grandes fenêtres coulissantes orientées plein sud permettent d’ouvrir entièrement la pièce «caméléon» sur le jardin. Elle devient ainsi une loggia protégée du vent. Une ouverture en toiture permet de ventiler l’espace en évacuant l’air chaud. En hiver, la chaleur du soleil est emmagasinée pour être ensuite redistribuée dans les pièces. Des portes coulissantes ferment latéralement la pièce «caméléon» et permettent de gérer la circulation de l’air dans les pièces de jour et dans le bureau. L’espace de la maison n’est pas cloisonné, les différentes parties communiquent entre elles par des jeux de perspectives et de transparences.
La construction a été développée de manière à ce que le menuisier et sa famille puissent réaliser la majeure partie des travaux eux-mêmes. Hormis la dalle en béton, gérant le rapport au terrain en pente, la construction est entièrement en bois. La structure est faite d’une ossature composée de demi-cadres préfabriqués. Le noyau central et les dalles en bois massif forment le contreventement.
La façade en croisillons de bois fait référence aux palissades et aux petits abris que l’on trouve dans les jardins.
Participants au projet
Maître d’ouvrage: Denis Mayland
Architecture/direction des travaux et physique du bâtiment: bunq Architectes, Nyon
Statique bois: Kälin & Assc., Lausanne
Construction en bois: Maillefer Bois, L‘Abergement
Informations générales
Bâtiment
Volume (SIA 416): 617 m3Dates
Durée du construction: 2010–2011Coûts
Coûts totaux (CFC 1–9): 420 000 CHF
Ville en bois n°3
Ville en bois n°3
Megatendances comme moteurs
Un hors-série d'espazium – Les éditions pour la culture du bâti
En collaboration avec:
OFEV Office fédéral de l'environnement, Plan d'action bois, Berne
Wüest Partner, Zurich
Lignum, Économie suisse du bois
