Ka­nal: sans l’huile et l’es­sence. En­tre­tien avec An Fon­teyne

À Bruxelles, une gigantesque usine automobile est transformée en musée par Sergison Bates, EM2N et noAarchitecten. Comment se débarrasser de la voiture tout en conservant sa mémoire? Quels sont les risques et les potentiels d’un contexte in absentia? An Fonteyne (noAarchitecten) décrit en finesse cette architecture conçue à l’échelle de l’automobile, qui n’en finit pas de fasciner.

Date de publication
28-02-2023

De quel bâtiment parlons-nous quand nous évoquons le futur KANAL?

An Fonteyne: Si vous demandiez à n’importe quel habitant de Bruxelles «où est le garage Citroën?», il penserait à ce bâtiment. Par son gigantisme, il a toujours exercé une certaine fascination – en particulier sur les architectes. Il a été construit en 1934 et utilisé comme garage jusqu’au concours, en 2017. Entre 2018 et 2019, le showroom et le garage ont été ouverts comme musée-test, sous le nom de «KANAL Brut». Avec Sergison Bates et EM2N, nous avons décidé de travailler pendant les deux premières années dans les anciens bureaux du bâtiment. Nous étions donc toujours en contact avec cet espace, nous pouvions sentir comment il fonctionnait, observer les détails.

Ce bâtiment est une combinaison assez singulière d’usine et de salles d’exposition. Comment était-il organisé à l’origine?

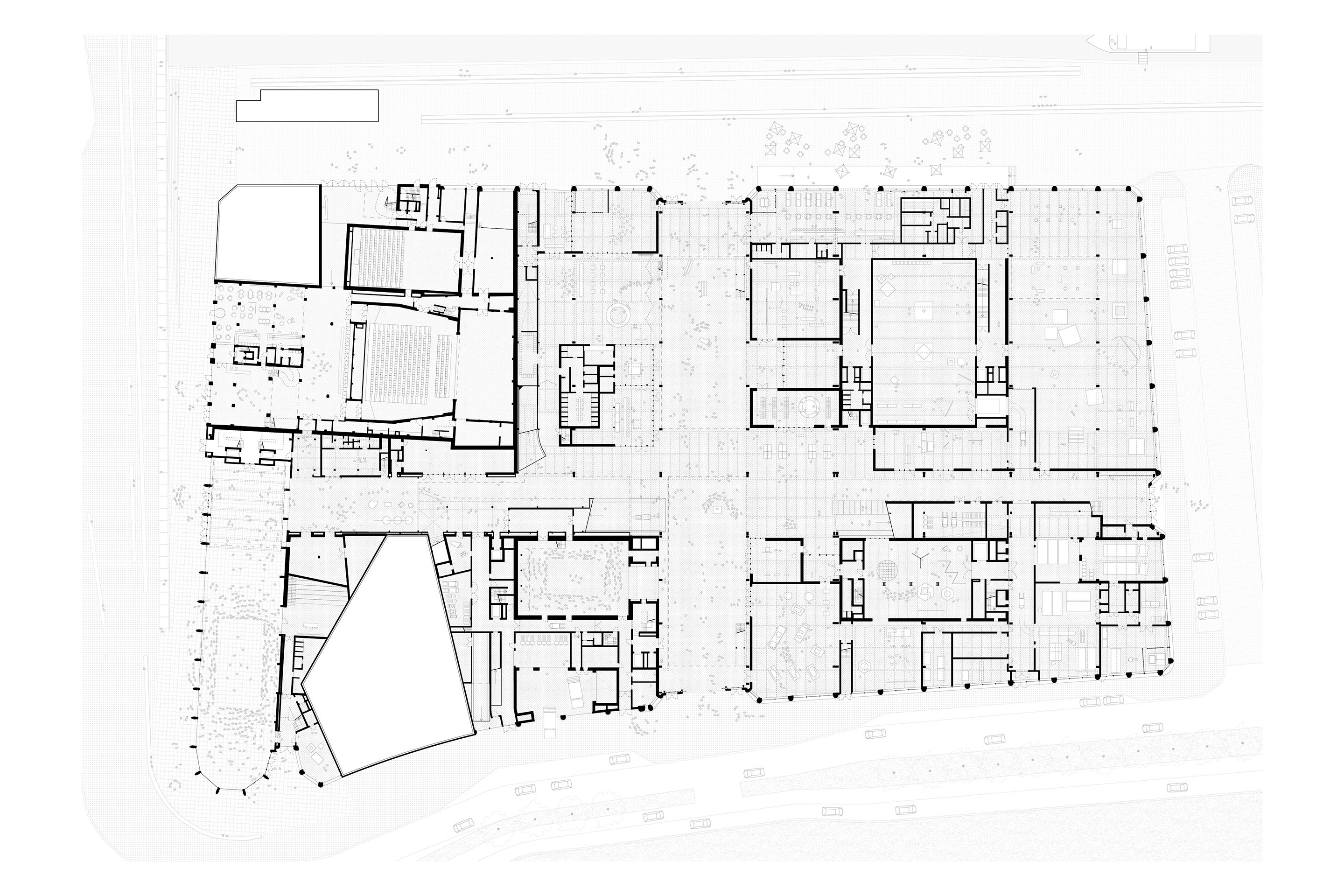
L’édifice est situé au nord du centre de la capitale, au croisement entre le canal de Bruxelles et le boulevard Leopold II. Le showroom – immense, ouvert sur 20 m de haut et 75 m de long – donne sur le boulevard. Sur les dessins d’origine, on peut voir que les fenêtres étaient à guillotine. J’imagine qu’on pouvait rentrer à pied et sortir en roulant, avec sa nouvelle voiture. Et si les gens s’y rendaient pour faire réparer leur véhicule, ils pouvaient, en attendant, se faire couper les cheveux ou prendre un café directement dans ce garage d’un certain niveau d’élégance. À l’arrière, on trouve l’usine qui, selon la légende, aurait été construite en six semaines: un énorme espace aux airs de cathédrale, conçu comme un lieu de production au 19e siècle. La structure est faite de milliers de petites pièces métalliques. Elle contraste avec la façade moderniste et épurée.

Comment imaginez-vous la relation entre le bâtiment et son contexte?

À Bruxelles, on appelle cette zone autour du bâtiment le «croissant pauvre»: c’est un secteur populaire de Bruxelles, très dense. Cela vous donne une certaine responsabilité. Nous avons donc regardé comment le bâtiment pouvait s’adapter à son environnement direct. Les deux axes de croisement du bâtiment forment une figure publique forte, que nous avons décidé de conserver, tout comme les rampes d’accès, très généreuses, qui laissent aux gens le choix de décider s’ils doivent monter un escalier ou simplement se laisser porter par le flux. Pendant l’expérience «KANAL Brut», les enfants ont adoré courir de haut en bas. Ce n’est pas fragile, ce n’est pas comme dans un musée. Nous avons également prévu des parcours moins visibles, des raccourcis verticaux, pour les personnes qui préfèrent rester en retrait: une sorte d’espace d’ombre. Nous avons toujours pensé que KANAL devait rester un intérieur public, avec un musée en son cœur, où chacun est invité à séjourner aussi longtemps qu’il le souhaite. De grandes parties de l’espace seront gratuites. Nous voulions que l’art reste modeste et présent.

Avec la venue du musée, beaucoup redoutent un phénomène de gentrification programmée du quartier. Qu’en pensez-vous?

La gentrification est déjà en cours: de nombreux projets de logements neufs sont réalisés le long des quais. Le musée, en tant qu’immense intérieur public, librement accessible, y contribue inévitablement, mais tente également d’apporter un bon équilibre en étant un espace d’échange radicalement public. La stratégie du «Bouwmeester» bruxellois est multiple: permettre un mélange de personnes vivant dans les mêmes quartiers, mais aussi investir et réguler la présence de l’industrie et de la production – des activités qui disparaissent souvent à cause de la gentrification.

La climatisation et le conditionnement d’un garage pour une utilisation muséale ont pourtant nécessité de lourdes interventions?

Oui, bien sûr. Cependant, si l’on rendait l’ensemble du musée «climatisable», il serait très difficile de conserver ces façades, de garder cette légèreté. Nous avons donc introduit trois nouveaux volumes en brique qui seront climatisés: un pour l’art, un pour la Fondation d’architecture CIVA, et un pour les bureaux. Mais pour le hall de l’usine, nous avons décidé – en concertation avec le client – d’améliorer les performances de la façade, tout en permettant au climat intérieur d’osciller entre 16 degrés, en hiver, et 28, en été: il ne s’agit donc pas du confort auquel on pourrait s’attendre. Nous voulions conserver l’immensité de l’espace et la capacité de la peau à communiquer avec son environnement. Le toit sera ainsi isolé et le verre, qui est actuellement un simple vitrage, deviendra un vitrage sous vide.

Dans un premier temps, la collection qui y sera exposée proviendra du Centre Pompidou à Paris. Que se passera-t-il ensuite?

Il ne s’agit pas ici d’une dépendance du Centre Pompidou, ce n’est pas un autre Metz. Après dix ans, le Centre Pompidou se retirera et KANAL deviendra indépendant. Nous voulons un bâtiment qui n’est jamais terminé: pour les visiteurs, c’est une invitation constante à s’engager avec son espace et ses finitions.

Ce qui fait écho aux intentions originelles du Centre Pompidou, avec ses ateliers et ses bibliothèques!

Oui. La Ville de Bruxelles veut réactiver la zone du canal en tant que zone de production: pour nous, le bâtiment devait devenir un site de production, pas seulement de consommation. Anna Viebrock, la scénographe allemande que nous avons consultée tout au long du processus de conception, a mentionné un poème de John Hejduk qui précise qu’une maison n’oublie jamais les sons qui s’y sont produits. Elle était fascinée par l’idée que, même si ce n’était plus un endroit pour les voitures, on courait toujours le risque de se faire écraser d’une manière ou d’une autre, ou que l’on pouvait entendre le travail du métal en arrière-plan. Elle pensait que cela devait rester. Nous adorons cette idée.

Les voitures auront donc une sorte d’absence très présente dans le bâtiment transformé.

Bien sûr, les gens se promèneront et utiliseront un espace qui ne fait pas référence aux humains – on y trouvait des panneaux indiquant «démontage» ou «tôlerie», des zones où l’on travaillait sur les voitures. Mais tout cela va disparaître. C’est une rénovation vraiment profonde, même si nous ne la considérons pas comme un projet de restauration. Nous avons une marge d’interprétation.

Sinon, cela risquerait de devenir kitsch?

Je pense que si nous avions pu laisser l’espace tel quel, il aurait pu être parfait. Mais dès que vous le touchez, les questions deviennent très claires: faut-il le reconstituer, l’interpréter? Quelles sont les nouvelles lignes directrices? Par exemple, toute la peinture du bâtiment s’est avérée toxique. Comment repeindre cet intérieur autrefois merveilleux? Nous définissons aujourd’hui un nouveau décor. Dans le cadre de ce non-finito, ce sera ensuite aux utilisateurs de décider comment il évoluera, à l’instar des garagistes d’autrefois.

Qu’est-ce qui rend ce bâtiment «beau»? Les parkings n’ont en principe pas été conçus pour être beaux.

Non, mais la beauté est ici dans le décalage, le malentendu: comme le fait par exemple d’être un corps dans un espace conçu pour les voitures, mais où il n’y a plus de voitures. C’est une question d’échelle, faire le tour prend un certain temps. Si vous construisiez un nouveau musée, vous le rendriez beaucoup plus compact. Et, bien que les caractéristiques soient similaires, vous n’êtes pas non plus dans une rue, pour moi. L’idée de ville dans la ville ne s’applique pas complètement. Une fois entré dans KANAL, il y a une autre façon de se comporter, de s’engager, d’autres codes – beaucoup plus de liberté ! Vous l’avez un peu dans le Turbine Hall de la Tate Modern à Londres. Mais ici, ça ne s’arrête jamais, vous pouvez vraiment faire votre circuit, à travers de petits espaces, de grands espaces.

Le flux de voitures dans le bâtiment vous a-t-il aidé à organiser le flux de personnes?

Oui. Et vous pouvez toujours conduire à travers le bâtiment si vous le souhaitez – il fonctionnera toujours parfaitement pour la voiture. Il y a une coexistence des voitures, de l’art et des gens. Nous sommes maintenant à un moment où la voiture est tout ce que nous ne voulons plus; mais ici les camions et les voitures peuvent toujours entrer, monter et descendre, pour des livraisons ou des événements. Espérons que cela se produira.

An Fonteyne est architecte associée du bureau noAarchitecten, basé à Bruxelles et Bruges. Elle est professeure à l’EPFZ depuis 2017.

Magazine

Sur ce sujet