Ka­banna : re­paire d’ar­chi­tecte

Un grand rêve se loge parfois dans un petit projet. En voici un bel exemple.

Date de publication
30-01-2014
Revision
13-10-2015

Nichée sur les hauteurs du petit village replié d’Im Fang où seules quelques demeures traditionnelles animent silencieusement l’unique artère de circulation, Kabanna (« cabane » en patois gruyérien) se démarque par sa forme hybride qui pourrait être issue de la rencontre incongrue entre un hangar à tabac, un chalet de montagne et une des Maisons Cubes réalisées par Piet Blom à Rotterdam.
La fraîcheur des panneaux de mélèze qui ornent dans un calepinage régulier de 22 cm – mesure en adéquation avec la main du concepteur – l’ensemble des façades, la disposition minutieuse des pierres irrégulières qui agrémentent le sol de la terrasse (image) ou encore l’inclinaison du conduit de cheminée témoignent du petit âge de Kabanna. Avec eux se dévoilent également la densité des attentions et le degré de sophistication que son propriétaire, Martin Wagner – associé du bureau basé à Morges Pascal de Benoît & Martin Wagner Architectes SA –, a mis en œuvre dans la confection de sa cabane.

Dimensions minimales, confort optimal


A l’extérieur, le large avant-toit et le mur saillant – deux attributs empruntés à l’architecture locale – délimitent et protègent le seuil de la maisonnette tout autant que les rondins de bois qui y sont disposés (image). Un toit asymétrique à double pente et recouvert de tuiles plates chapeaute le modeste volume intérieur dont la surface de plancher répartie sur deux niveaux offre une quarantaine de mètres carrés à ses usagers ; l’étage étant niché sous le toit, il faudrait encore soustraire une dizaine de mètres carrés pour déterminer la surface réellement habitable.
Dans cet habitat minimal que l’architecte a conçu comme un véritable meuble à habiter, il est pourtant possible de loger six personnes, mais aussi d’y réunir – sans les entasser – une poignée d’amis autour d’une entrevue culinaire dont la préparation peut être opérée directement sur place au moyen d’un potager à bois, lequel fournit également le chauffage et l’eau chaude sanitaire. Pour faire vivre cette organisation minimale, le dessin de chaque élément doit anticiper les usages et être calibré au plus juste.
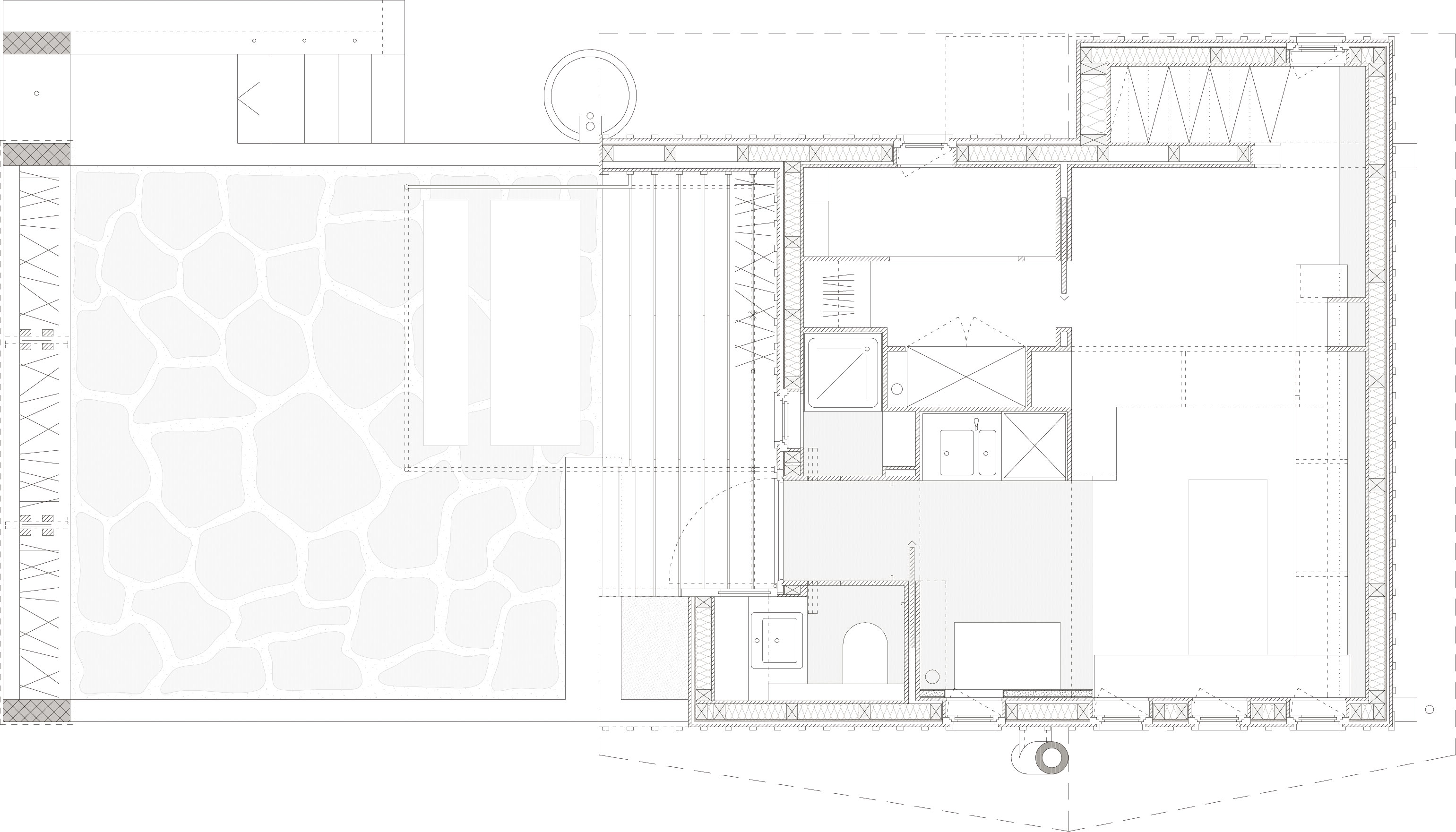
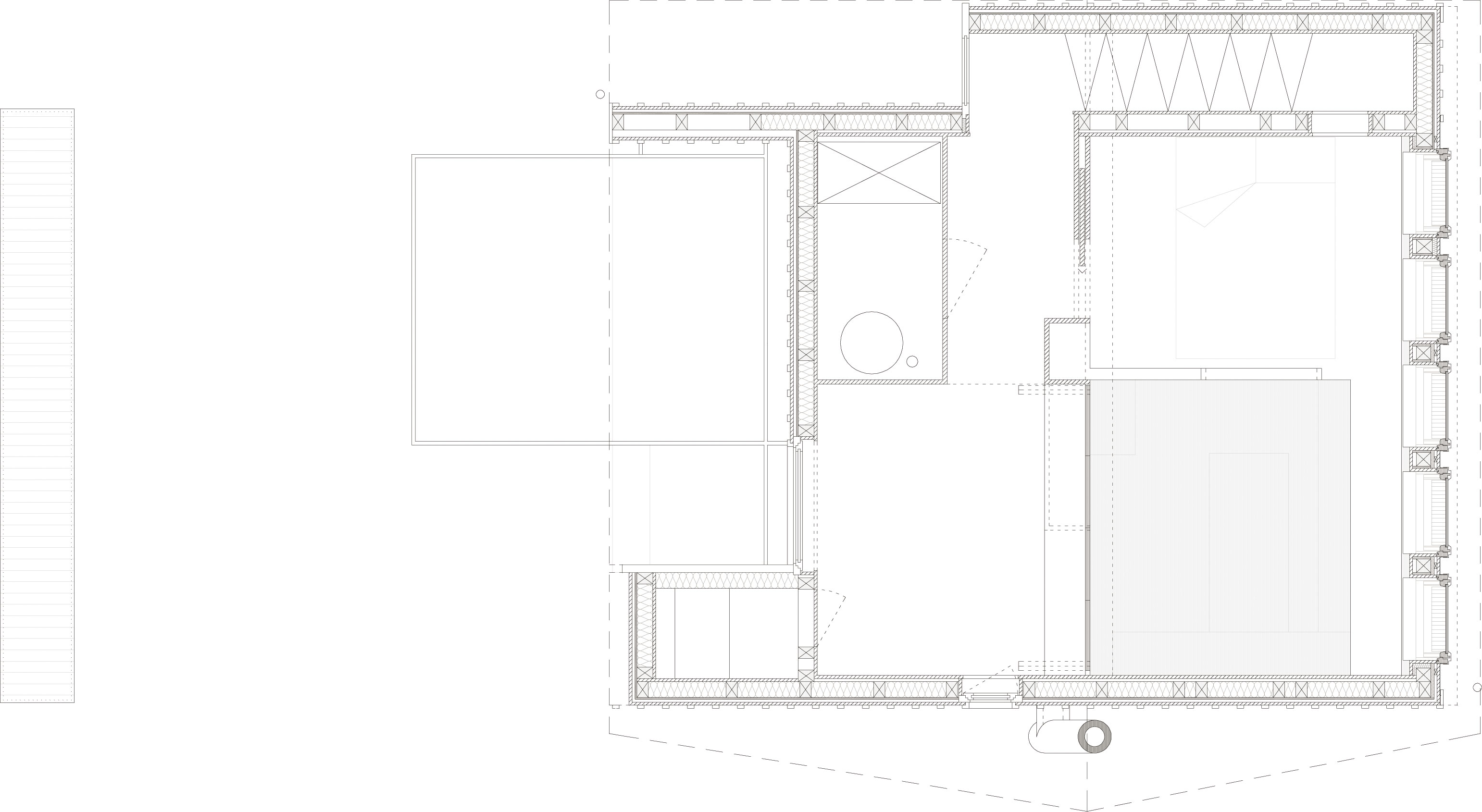
Mises à part deux petites excroissances qui se greffent sur les façades sud et ouest, et qui abritent respectivement sanitaires et escaliers, le plan de la cabane est un carré de 4.75 m par 4.75. La division en quatre quarts relativement proportionnels permet de générer huit sous-ensembles – à raison de quatre par niveau (plans 1 et 2). Dans ces différentes entités agrémentées de multiples niches de rangement se répartissent trois pôles couchage, les pièces humides, un local technique et une généreuse pièce commune organisée autour d’une table en longueur. Toutes ces entités sont interconnectées par le vide disposé en surplomb du coin repas (images 1 et 2). Toutefois, l’indépendance peut être retrouvée au gré des envies en déployant les cloisons coulissantes qui permettent l’obstruction de chacun de ces espaces. Les configurations de ce plan en croix sont donc multiples et le confort y est optimal.
Malgré l’ombre omniprésente qui règne sur la parcelle sise sur le flanc nord de la vallée de la Jogne, l’architecte a souhaité conserver l’esprit renfrogné de la cabane en limitant les ouvertures sur l’extérieur. Les quelques fenêtres étroites qui percent sporadiquement les façades se transforment, vues de l’intérieur, en cadres vivants (image). Dans cette cabane microscopique tout a été pensé de façon macroscopique, y compris les remerciements aux nombreux acteurs – majoritairement locaux – de cette construction dont les noms sont gravés dans une lame horizontale de bois, côté village.

Anatomie de l’architecture


Dès lors, une question se pose : comment un espace offrant un éventail si déployé d’usages et de confort est-il capable de véhiculer, dans des dimensions numériques si minimales, une telle sensation de grandeur ? L’explication est simple ; il suffit de se référer au corps humain. En art et en architecture, cette géométrisation de l’homme fut expérimentée à maintes reprises : « L’homme de Vitruve » réalisé par Leonard de Vinci ; les architectes Francesco Di Giorgio1 et Villard de Honnecourt2 projetèrent, entre autres, le plan cruciforme d’une église sur un corps humain ; Le Corbusier développa le Modulor.
L’observation de Martin Wagner est quelque peu différente : la partie inférieure d’un homme debout nécessite moins d’espace que son tronc et l’étendue de ses bras. D’où le choix stratégique de minimiser l’espace au sol et d’incliner les parois de manière à élargir le volume dans sa partie supérieure. Grâce à cette astuce, l’angle formé entre la face nord et le banc confère à cette assise intérieure une parfaite ergonomie. Dans les toilettes qui n’occupent du sol que le strict minimum, l’inclinaison prononcée de la paroi dégage l’espace nécessaire pour un lavabo mais également une petite fenêtre (image). A l’instar du modèle néerlandais de Piet Blom, la perception de l’espace entre l’intérieur et l’extérieur est totalement déformée.

De la hutte vitruvienne à Kabanna


De prime abord, cette petite construction de bois vissée sur ses deux lames en béton (image) n’a absolument rien – si ce n’est sa dénomination – de la cabane ancestrale et primitive définie par Vitruve dans le premier chapitre de son second livre De architectura3. Mais, l’exactitude de son anatomie ne la rapproche-t-elle pas du modèle corbuséen décrit ci-après ? « Voici la maison primitive : là se qualifie l’homme : un créateur de géométrie ; il ne saurait agir sans géométrie. Il est exact. Pas une pièce de bois dans sa force et sa forme, pas une ligature sans fonction précise. [...] Un jour cette hutte ne sera-t-elle pas le Panthéon de Rome dédié aux dieux ? »4
Au-delà des préceptes théoriques, cette cabane des temps modernes est avant tout pour son propriétaire un lieu de retrait, un refuge à l’écart des intempéries de la vie urbaine. En ce sens, Kabanna ne traduirait-elle pas simplement l’accomplissement d’un rêve d’enfant (croquis) ?5

 

 

Notes

1. Rudolf Arnheim, Dynamique de la forme architecturale, éditions Mardaga, Bruxelles, p. 97
2.  Roland Bechmann, Villard de Honnecourt, la pensée technique au XVIIe siècle, éditions Picard, Paris 
3. Vitruve, Les dix livres d’architecture, trad. nouvelle par M. Ch.-L. Maufras, C. L. F. Panckoucke, 1847.
4. Le Corbusier, Une maison - un palais, 1928, éditions Connivences, Paris, 1989, p. 38 5 En référence aux propos de Arne Klingborg dans Bâtir pour la pédagogie Rudolf Steiner, Editions Anthroposophiques Romandes, Genève, 1983, p. 51 

Magazine

Sur ce sujet