Ima­gi­naire pit­to­resque à Vandœuvres

Sur une commune genevoise où la propriété privée est reine, l’atmosphère néoréaliste des logements locatifs conçus par les architectes Nicola Braghieri et Barbara Tirone ébauche l’action d’une vie sociale jusqu’ici peu présente sur ce territoire.

Date de publication
30-08-2022

Vandœuvres n’est pas une commune ordinaire. Si ses ressources financières sont parmi les plus remarquables du canton de Genève, son patrimoine agricole est tout aussi épatant. Dans un tel contexte, la construction de 36 logements locatifs à caractère social est une première dans un tissu urbain composé de villas individuelles et d’un patrimoine bâti rural. Après dix ans de développement, un référendum, plusieurs arbitrages administratifs et quelques arrêts forcés, le projet livré par l’architecte Nicola Braghieri (ex-m), avec son homologue genevoise Barbara Tirone (A-Architectes), voit enfin le jour.

Un peu de vide s’il vous plaît

Alors que la commune regorge d’une variété de beautés naturelles et construites de toutes sortes, elle présente une lacune surprenante: le village ne possède aucune centralité apparente. Avec son projet intitulé L’esplanade, l’architecte lauréat du concours en procédure ouverte profite de cette fragilité urbaine pour donner le ton de sa proposition. Fragmentés en trois volumes bâtis de trois étages, les logements sont habilement disposés sur le site pour esquisser une première aire de rencontre au service des diverses activités sociales qui gravitent autour de l’école et du centre communal adjacent. Dans son prolongement, cet espace partagé est complété par une deuxième place extérieure à caractère plus privatif, qui prend la forme d’un belvédère végétalisé ouvert sur les champs et le grand paysage.

Les deux nouvelles esplanades publiques, l’une polyvalente et l’autre à caractère contemplatif, invitent les passants et les habitants à ébaucher les gestes d’une vie en communauté. Alors que les « pleins » sont la source de tous les débats lors du développement d’un futur quartier, seule la concrétisation, au cœur de la structure villageoise, d’une série de «vides» favorables aux rencontres spontanées préfigure l’activation sociale d’un territoire en expansion.

Un réduit est aussi un espace

À l’extérieur, les trois bâtiments sont mis en scène suivant le rythme et la modularité d’une série de portiques autoportants en béton. Inspirés des maisons à colombage, toutes les proportions et les détails de l’enveloppe suivent sans exception le principe régulateur déterminé par ce système constructif. La façade gagne en profondeur par une série de balcons continus orientés vers les terres agricoles et le massif alpin. Si ce n’est par le choix de matériaux comme les remplissages en brique Petersen Tegl et les bardages en mélèze, l’ordre et la répétition des façades côté campagne évoquent une période architecturale que l’auteur connaît à la perfection: celle du programme INA-Casa, dédié à la construction de logements sociaux, et qui a marqué toutes les villes italiennes dans les années 1950. Le projet de Luigi Figini & Gino Pollini pour le quartier de Harar à Milan est une référence pour le moins éloquente.

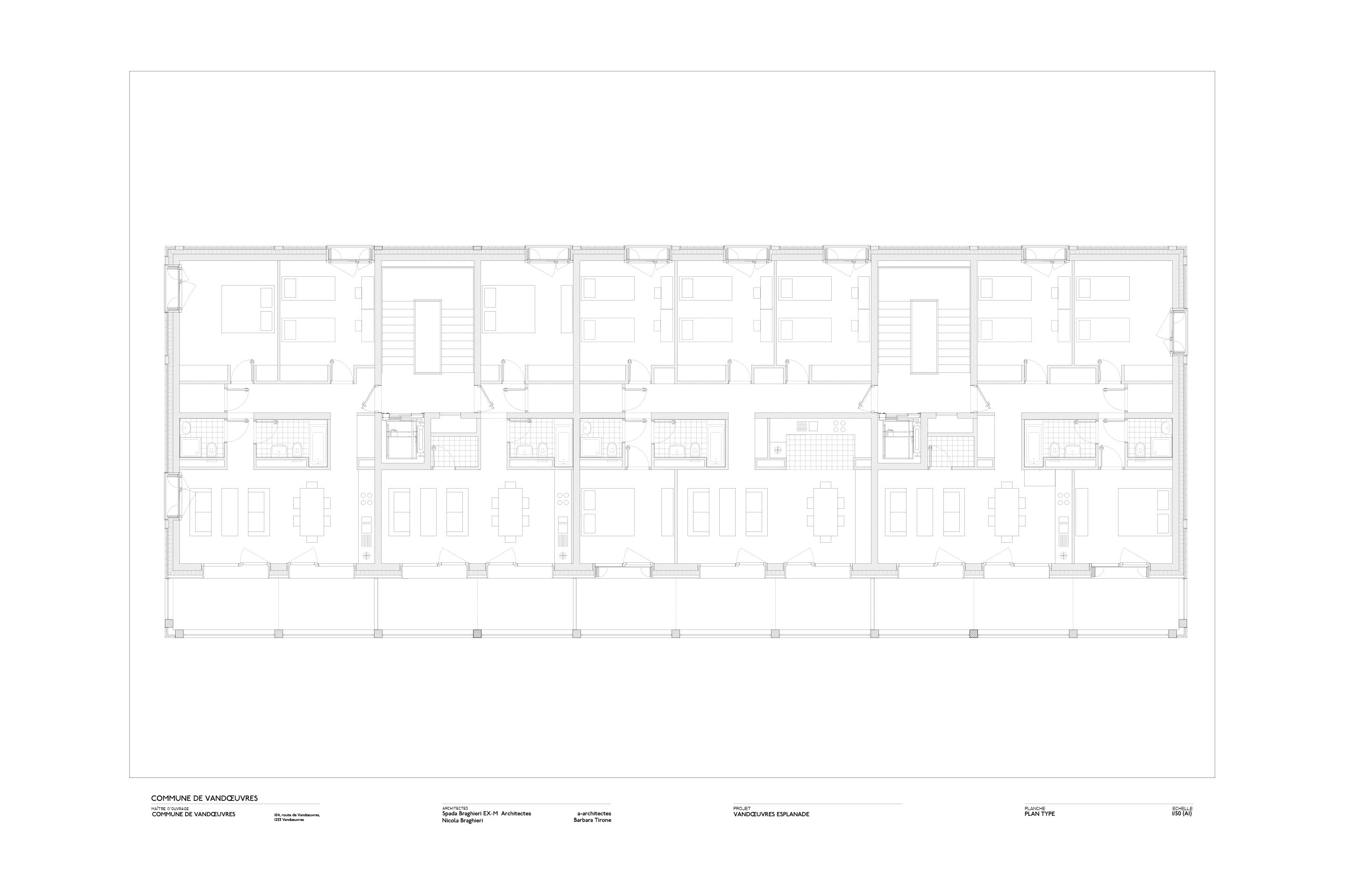
À l’intérieur, tous les appartements bénéficient d’une double orientation fondée sur la même grille structurelle que celle des façades: un module correspond à la largeur moyenne d’une chambre à coucher, doublé quand il s’agit d’un séjour. Les cloisons intérieures en panneaux légers sont facilement modifiables sans intervenir sur la trame portante et confèrent aux appartements un haut degré de flexibilité. L’idée est de permettre au projet de modifier sa configuration spatiale en fonction du besoin futur des familles ou plus ambitieux encore, de l’évolution démographique de la commune.

Malgré la calibration millimétrée du projet, les logements présentent une particularité peu habituelle pour ce type de programme : les pièces à vivre sont distribuées par un long corridor central, épine dorsale du plan, qui concède certains avantages fonctionnels, comme une séparation marquée des zones jour et nuit, mais génère aussi des «résidus spatiaux» à chaque extrémité des appartements. Si au premier regard, cette anomalie spatiale peut ressembler à une faiblesse typologique, elle s’avère être une ressource inattendue et très appréciée par l’ensemble des habitantes et habitants. Les réduits, ces interstices qui ont progressivement disparu dans la conception contemporaine des logements au détriment d’espaces purement fonctionnels, retrouvent à Vandœuvres toute leur utilité. Sans ces pièces aveugles, la matrice et la composition figurative du projet ne sont pas complètes.

Le pittoresque n’est pas une notion genevoise

Des cages d’escalier décorées de motifs végétaux aux pyramides tronquées qui couronnent les toitures, ou encore aux stores à doubles volets battants en métal, le projet est orné de solutions atypiques et peu genevoises. Dans l’ordre et la composition générale de cette architecture, on retrouve une conjugaison d’atmosphères aussi contrastées comme celles issues du caractère populaire des maisons ouvrières milanaises, mais aussi de la générosité et la dignité d’œuvres marquantes produites par le groupe BBPR ou encore Giuseppe Terragni. C’est pourtant cette ambiance singulière et surtout cet imaginaire «pittoresque» qui font le succès de cet ouvrage. Ces choix venus d’ailleurs permettent à l’architecte milanais de conjuguer ruralité et bourgeoisie à parts égales, sans tomber dans l’excès de ces clichés décontextualisés. Sur une commune où la propriété privée est reine, cette opération d’habitat collectif est traitée comme une forme de normalité et non comme une exception.

Malgré sa forme rationaliste et répétitive, le projet est marqué par une atmosphère chaleureuse et domestique qui permet à cette opération de logements de se fondre dans un territoire aussi ambivalent et conformiste que celui de Vandœuvres. Un terroir genevois qui, malgré toutes ses réticences, doit admettre que la plus grande des richesses humaines est celle de s’épanouir en communauté.

36 logements, aménagements extérieurs et parking souterrain, Vandœuvres (GE)

 

Maître d’ouvrage
Commune de Vandœuvres, Canton de Genève

 

Architecture
Ex-m et A-Architectes

 

Ingénierie civile
Ingeni

 

CVSE
DSSA, Buclin & Raymond Moser

 

Ingénierie spécialisée
CSD ingénieurs

 

Procédure
Concours, 2011

 

Planification
2012-2013

 

Réalisation
2014-2019

 

Aménagements extérieurs
2021

 

Surface de plancher brute
8800 m2

 

Coût HT CFC2
20,6 mio CHF

Sur ce sujet