Fon­da­tions: pour un nou­vel âge de la pierre

Délaissée depuis le milieu du 20e siècle, la pierre structurelle connaît aujourd’hui un renouveau au niveau européen. Au vu des qualités écologiques de ce matériau – dont la durabilité n’est pas des moindres –, ne faudrait-il pas en envisager un emploi plus généralisé, notamment au niveau des fondations, qui sont aujourd’hui l’apanage quasi exclusif du béton armé?

Date de publication
11-08-2022
Alia Bengana
Architecte DPLG, enseignante au laboratoire ALICE de l’EPFL et à l’HEIA-FR

Après la Seconde guerre mondiale, la pierre structurelle a été délaissée en Europe pendant près de 40 ans. On assiste aujourd’hui à un renouveau de son utilisation comme principe constructif en Suisse, en France et au Royaume-Uni; un emploi qui demeure cependant marginal face à l’hégémonie du béton armé. Ce renouveau de la pierre a été initié par Gilles Perraudin à la fin des années 1990 avec la construction du Chai de Vauvert, dans les Costières nîmoises. Son agence a depuis livré plusieurs autres constructions réalisées exclusivement en pierre structurelle, comme le musée du vin Patrimonio en Corse, des immeubles de logement à Cornebarrieu ainsi qu’à Lyon et, plus récemment, à Plan-les-Ouates (GE) – une construction réalisée en association avec le bureau Archiplein.

Ces projets ont contribué à permettre à une nouvelle génération d’architectes de réintroduire la pierre massive jusqu’au cœur des villes, avec des immeubles de logements, comme ceux réalisés par les agences Barrault & Pressaco1 et Raphaël Gabrion2 à Paris ou encore Archiplein à Genève (en cours de construction)3. À Londres, Amin Taha, de l’agence Groupwork, est devenu le chef de file de la réactivation de la filière pierre au Royaume-Uni depuis la construction, en 2018, du 15 Clerkenwell Close, un immeuble d’habitation et de bureaux de cinq étages dont l’exosquelette porteur est constitué d’énormes blocs de pierre calcaire bruts – texturés ou polis – provenant d’une carrière à Rutland, à deux heures au nord de Londres. Les architectes parisiens Barrault & Pressaco, tout comme Amin Taha, se sont depuis lors investis dans la promotion et la célébration de la pierre structurelle au travers d’expositions telles que Pierre: révéler la ressource, explorer le matériau, au Pavillon de l’Arsenal en 2018, et The New Stone Age, au London Building Center en 2020.

Un très bon bilan carbone

Si la pierre massive séduit par sa sobriété, sa pérennité ou ses textures variées, elle permet surtout de réduire les multiples couches de façade de nos architectures contemporaines: elle est structure porteuse en même temps que surface finie. C’est là son atout majeur en vue d’une diminution de l’impact carbone. De plus, l’extraction des blocs consomme peu d’énergie et le matériau n’est ni cuit, ni transformé. Avec la terre crue, la pierre structurelle demeure le matériau de construction le plus écologique, d’autant plus si elle n’est pas transportée sur de trop longues distances (moins de 300 km) et qu’elle est jointoyée à la chaux plutôt qu’au ciment4. En ne considérant que le complexe structurel d’un immeuble, le choix de la pierre massive au lieu du béton armé diminuerait de 60 % l’impact carbone global d’une construction nouvelle5.

Fonder en pierre

Avec toutes ces qualités, il est certain qu’il faudrait recourir davantage à la pierre, mais pourrait-on à nouveau l’utiliser en fondations? «Oui, bien évidemment, comment-a-t-on fait pendant des siècles? Toutes nos architectures – lorsqu’elles étaient fondées – l’étaient en pierre ou en bois», rappelle Gilles Perraudin. La cathédrale de Lausanne a été fondée en pierre; la tour Eiffel avec un complexe mixte pierre et béton. Le frein à l’utilisation de la pierre résiderait principalement selon lui dans une habitude qui s’est imposée: «Réaliser systématiquement des sous-sols et des radiers en béton armé, c’est plus simple et ça rassure tout le monde!» Selon Sarah Nichols, co-commissaire de l’exposition Béton au Musée d’architecture suisse de Bâle (S AM)6, et auteure d’une thèse sur l’histoire du béton en Suisse, un autre argument pourrait prévaloir: «Du moment que vous avez planifié les fondations en béton, vous avez le camion, les coffrages, tout le processus en place. Si nous voulons repenser l’emploi des matériaux, il faut commencer par le sous-sol et remonter vers le haut.» 7 Pour inciter l’utilisation de matériaux alternatifs moins gourmands en carbone, l’un des leviers pourrait donc être de ne plus recourir systématiquement au béton dès les fondations.

En effet, si on projette des fondations ponctuelles, ou des semelles filantes, les fondations pourraient à nouveau être réalisées avec une pierre adéquate, c’est-à-dire à la porosité réduite afin qu’elle résiste à l’eau. En Suisse, il en existe: si la molasse qui couvre une partie du Plateau est trop poreuse, les roches métamorphiques de type gneiss que l’on trouve au Tessin ou le calcaire du Jura, comme la pierre d’Hauterive, sont tout à fait adaptées à la réalisation de sous-sols ou de fondations. Pour les deux immeubles réalisés à Plan-les-Ouates par le consortium Perraudin/Archiplein, les sous-sols auraient pu être en pierre, car l’un des carriers qui n’a finalement pas été retenu lors de l’appel d’offres proposait une pierre bon marché qui avait toutes les qualités structurelles pour la réalisation des murs enterrés.

L’obligation légale relative aux abris antiatomiques constitue également un frein. Ils doivent protéger des effets mécaniques et thermiques d’une explosion nucléaire, mais aussi des retombées radioactives, et il ne viendrait pas à l’idée de les réaliser en pierre. Pourtant, le territoire suisse offre déjà une protection de toute la population8 en cas d’attaque nucléaire grâce aux abris privés et publics déjà présents sur le territoire. Cet argument ne devrait donc plus en être un.

Enfin, un autre frein à la mise en œuvre de la pierre en sous-sol ou en fondations est qu’on ne la voit pas. Selon une idée préconçue, la pierre serait un matériau noble qu’il s’agit de valoriser – un adage que Stefano Zerbi9 réfute catégoriquement: la pierre structurelle n’est pas plus «noble» que celle exploitée pour produire du gravier à béton. Les carriers ont d’ailleurs toujours différentes catégories de pierre disponibles, à des prix décroissants qui n’impliquent pas automatiquement un amoindrissement des capacités mécaniques de la matière. Les blocs moins séduisants pourraient donc être placés en sous-sol.

Quelques exemples récents en France

Gilles Perraudin a ainsi réalisé le Chai de Vauvert avec des pierres de second choix qu’un carrossier de la région du Pont du Gard utilisait comme pierres de clôture, en raison de leur faible coût. À Vauvert, la nature géologique du terrain a permis de monter les murs massifs sur un simple sol compacté en graviers avec une couche de béton de propreté de 5 cm seulement.

Pour le Musée du vin de Patrimonio, en Corse, les murs de fondations d’une épaisseur de 60 cm sont réalisés en béton cyclopéen (non armé) sur une fine semelle filante en béton armé. Cette technique, appelée aussi béton de site, est un mélange de pierres (provenant ici des anciens murets de vignes des collines avoisinant le site) et de béton maigre coulé au fur et à mesure de l’empilement des lits de pierre. Les murs en maçonnerie de pierre massive sont ensuite posés sans mortier directement sur le soubassement avec une coupure d’étanchéité.

Pour le projet non réalisé du Centre culturel de Calvi, toujours en Corse, Gilles Perraudin avait imaginé, avec l’aide d’un ingénieur audacieux, des fondations ponctuelles en colonnes ballastées reliées par des longrines en bois. Des trous assez profonds, de 60 à 80 cm de diamètre, auraient été creusés à l’aide d’une aiguille vibrante, puis remplis de pierres qui auraient été tassées.

Et en Suisse?

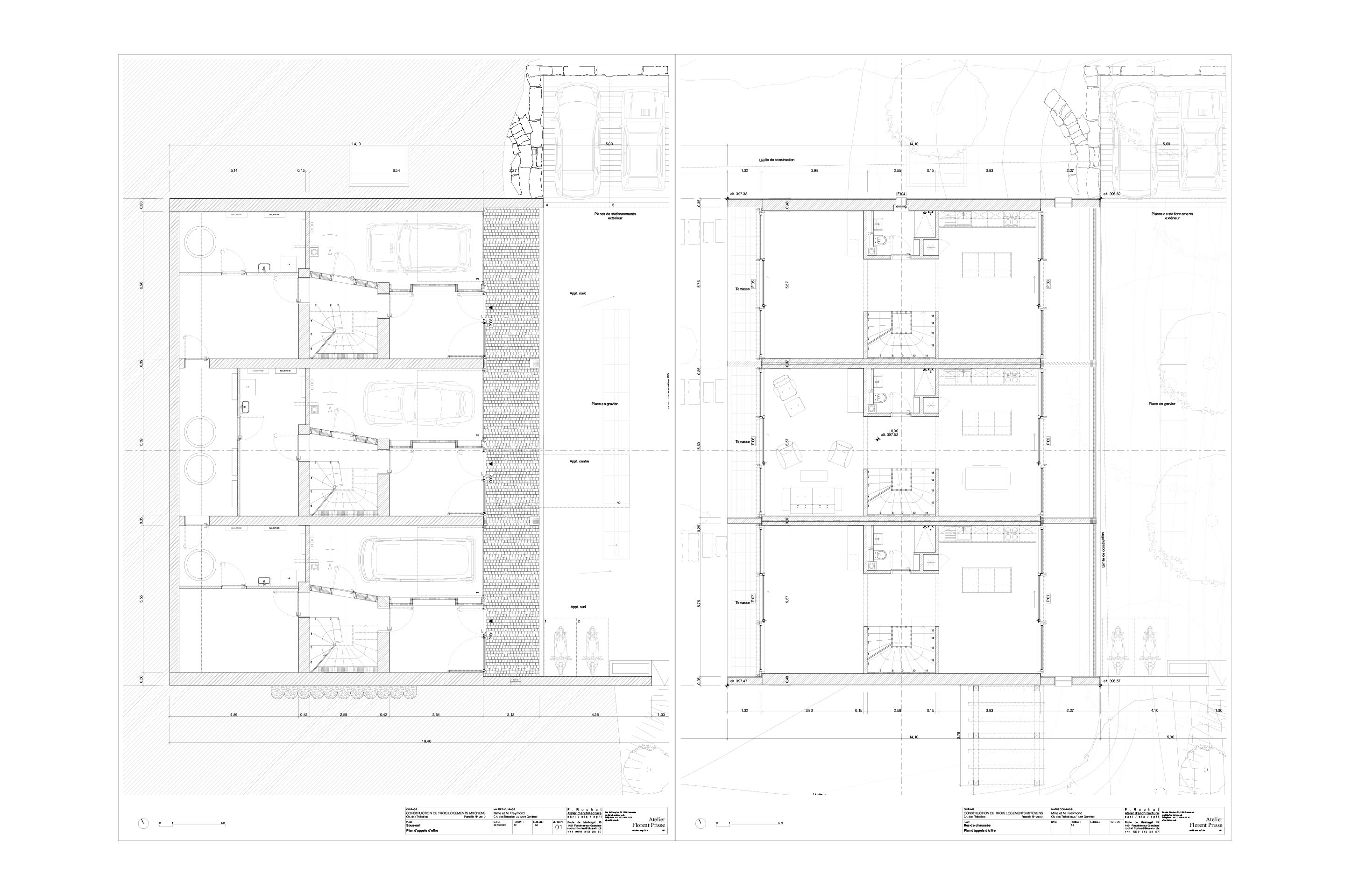
L’architecture vernaculaire suisse regorge de bâtiments en bois fondés ou posés sur des pierres. On peut donc théoriquement en concevoir à nouveau. L’architecte Florian Rochat a été mandaté par Pro Natura pour la réhabilitation de chalets d’alpage dans le canton de Vaud. Ce travail en moyenne montagne permet de comprendre l’ingéniosité de la construction des chalets d’alpage et de reproduire les systèmes constructifs pour leur réparation. Lorsque cela s’avère nécessaire, ils sont refondés sur des pierres issues de la démolition ou provenant des pierriers avoisinants. Le mortier est quant à lui réalisé à partir d’argile trouvée localement, cuite et broyée, appelée sable rose. C’est cette expérience au Pays-d’Enhaut qui a poussé Florian Rochat et son associé Florent Prisse à imaginer des fondations en gneiss de Cresciano, une carrière des environs de Bellinzone (TI), pour un petit immeuble de trois logements à Genthod (GE), bientôt en chantier. La molasse locale n’étant pas adaptée, les architectes se sont tournés vers une carrière tessinoise qu’ils connaissaient, afin de travailler avec des partenaires qui les mettaient en confiance. Les maîtres d’ouvrage auraient été convaincus de la mise en œuvre de la pierre massive par une visite de l’immeuble de Plan-les-Ouates. Le projet prévoit un sous-sol qui abritera une cave, un local technique et un parking. Les murs d’assises du sous-sol, de 50 cm d’épaisseur, seront posés sur des pierres de 80 cm de longueur. Sur ce socle s’élèveront deux niveaux en briques monolithiques. Si elle est réalisée, cette prouesse aura été rendue possible d’une part grâce à la sensibilité des clients envers les questions relatives aux matériaux et à leur énergie grise, et d’autre part grâce à une maîtrise des coûts dans le projet des architectes.

Pierre locale?

Faut-il se battre, en Suisse romande, pour réaliser des fondations en pierre, quitte à ce que celle-ci voyage depuis le Tessin? À cette question Florian Rochat répond que les pierres de fondation ont toujours voyagé. Quand on construisait, en toute logique, avec des pierres locales, les maçons comprenaient rapidement si une pierre était suffisamment dure et étanche pour être positionnée en fondation. Les pierres de fondations des bâtiments de la région de Neuchâtel par exemple – en grès coquillé ou en pierre d’Hauterive – proviennent des rives sud, respectivement nord, du lac de Neuchâtel ou même du Jura, car elles résistaient mieux au gel et avaient un bien meilleur facteur de capillarité que les molasses locales. De même, les fondations de la cathédrale de Lausanne (1170-1235), initialement en molasse, comme ses murs, ont été reprises en sous-œuvre dans un second temps pour être remplacées par des calcaires du Jura.

Il est certain qu’il faut davantage construire en pierre, car le matériau est abondant. Si la Terre est appelée la planète bleue, plus de 60 % de sa masse et plus de 80 % de son volume sont cependant constituées de roches, dont seule la partie la plus superficielle est accessible et exploitable. Pourtant le nombre de carrières a été divisé par dix en Suisse depuis le début du 20e siècle et, aujourd’hui, la majorité de la pierre exploitée est concassée pour servir de gravier à béton. Or le plus grand avantage de la pierre massive est sa durabilité: après plusieurs siècles, elle pourra être réutilisée telle quelle – nombreux sont les châteaux et les villages abandonnés à avoir été transformés en «carrière» –, et non broyée après quelques dizaines d’années, comme c’est le cas aujourd’hui pour le béton. Quitte à grignoter des montagnes, ne vaut-il pas mieux le faire pour un matériau pérenne et réutilisable à l’infini?

Notes

 

1 Immeuble de 17 logements situé rue Oberkampf à Paris, 2017, la pierre autoportante d’une épaisseur de 30 cm est utilisée en façade et est isolée de l’intérieur en chaux-chanvre.

 

2 Neuf logements sociaux et un local d’activité à Paris, 2021.

 

3 Immeuble de logements en pierre massive et planchers mixtes bois-béton pour le compte de la Fondation Nicolas Bogueret situé face au fleuve, au 1 rue de la Coulouvrenière à Genève, face au fleuve.

 

4 Guillaume Habert, «A-t-on assez de pierre en Suisse et pourquoi nous devrions en utiliser plus?», espazium.ch, 01/10/2018, traduction de l’article paru dans Archi 5/2018.

 

5 Analyse de cycle de vie réalisée par le bureau d’étude Elioth dans le cadre de l’exposition «Pierre: révéler la ressource, explorer le matériau» au Pavillon de l’arsenal de Paris (octobre à décembre 2018).

 

6 L’exposition Béton a eu lieu au S AM Basel, Musée d’architecture Suisse du 20.11.2021-24.04.2022. Cette exposition est une coproduction entre le S AM, les archives gta/ETH Zurich, les archives de la construction moderne/EPF Lausanne et l’Archivio del Moderno dell’Academia di Architettura/USI.

 

7 «Le béton en récit – Entretien avec Sarah Nichols», Tracés 12/2021.

 

8 Le site de protection civile suisse recense 300 000 abris privés et 5100 abris publics, ce qui représente un taux de couverture de 114 % de la population (8,6 millions de places protégées).

 

9 Stefano Zerbi est architecte et directeur de la section architecture de la SUPSI au Tessin. Il est également auteur d’une thèse à l’EPFL en 2010 sur la pierre structurelle et de nombreux articles sur le sujet.

Retrouvez tous les articles de la rubrique "Laisse Béton" ici

Étiquettes

Sur ce sujet