Dis­cré­tion et co­hé­rence à Chailly

Date de publication
18-10-2023

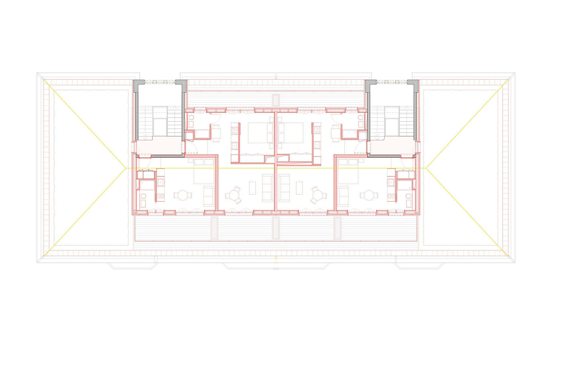
La surélévation de cet immeuble de logements lausannois des années 1930 s’inscrit dans la continuité de l’existant. Conçu pour se confondre visuellement avec son support, l’ajout en bois d’un niveau remplace la toiture à quatre pans d’origine qui accueillait des galetas. Le nouveau volume s’intègre entre les deux cages d’escalier de l’immeuble, libérant ainsi les extrémités du bâtiment. Cette position centrale déroge à la longueur autorisée par le règlement communal (RPGA 2006) pour respecter la composition symétrique du bâtiment tout en intégrant la circulation existante, qui dessert ainsi quatre nouveaux appartements de petite taille. Cette position d’attique discret parfait la composition de l’immeuble: dans ses proportions et son positionnement, le nouveau volume semble appartenir au projet d’origine.

La confusion est renforcée par la déclinaison d’un vocabulaire architectural similaire entre l’existant et le nouveau. Ainsi, le dessin des ouvertures rappelle la modénature des étages inférieurs. Le détail d’avant-toit, où le chéneau encaissé repose sur des éléments mimant l’extrémité des chevrons, reprend le motif géométrique des denticules de la corniche d’origine. Cette dernière est par ailleurs essentielle dans le travail de jonction entre la surélévation et son porteur: une large bande de cuivre en recouvre l’angle et tient à distance le début de la terrasse et son garde-corps. La corniche devient alors une horizontale majeure qui couronne le corps maçonné. C’est elle qui lie les volumes et donne une hiérarchie dans leur lecture.

L’utilisation de teintes similaires entre la façade en bois et celle du crépi rénové a pour but de renforcer encore ce sentiment d’appartenance de la surélévation à son porteur. Avec l’application de peinture couvrante sur des planches brutes de sciage, les architectes du bureau bunq souhaitent donner au bardage de l’attique une texture rappelant celle du crépi rénové, lui-même agrémenté de grains de quartz pour se rapprocher de la surface d’époque. La différence de matériau ne devrait se lire qu’en s’approchant. Pourtant, l’ajout ne pastiche pas l’original : l’usage du bois en ossature et en façade, ainsi que l’interprétation du langage art déco du bâtiment existant contemporanéisent la surélévation.

Le choix d’une structure préfabriquée en bois, rapide à mettre en œuvre, contribue aussi à alléger l’ajout. Simplement posé sur l’existant, le nouveau plancher s’organise selon des sommiers principaux (NS) et secondaires (OE). Les 7 cm de la dalle nervurée en béton des anciens combles ne permettant pas de répartir les nouvelles charges, la trame structurelle s’appuie sur les murs porteurs des étages inférieurs, sans renfort. La différence de 30 cm entre le palier existant et l’intérieur des appartements est habilement rattrapée par un hall à mi-niveau qui marque l’entrée et organise les typologies. L’épaisseur du plancher permet également de distribuer l’ensemble des installations techniques, qui parviennent à cet étage en empruntant les anciens dévaloirs, préservant les locataires de travaux intrusifs.

Car sur le bâtiment existant, l’intervention est minimale. L’assainissement énergétique global, initialement prévu, a été écarté, faute d’entente entre les services concernés. La performance de l’enveloppe est certes améliorée par l’insufflation d’ouate de cellulose dans le plancher de la surélévation et par la mise en œuvre d’un complexe végétalisé aux extrémités. Mais sur la façade, les architectes se contentent de mettre aux normes les garde-corps, d’isoler les caissons de stores et de rafraîchir l’ensemble. Les «pierres» de tablettes, soubassement et encadrements sont nettoyées par un procédé d’aérogommage, moins agressif et plus précis que le sablage, qui valorise les ornements géométriques caractéristiques des façades. Des travaux suivront sur l’immeuble voisin, lui aussi classé note 3 à l’inventaire cantonal et avec qui le bâtiment forme un ensemble. Cet enchaînement permet d’assurer une continuité dans la mise en œuvre de ce chantier si urbain pour le contexte lausannois.

4 + 1: surélévation d’un immeuble à l’avenue Béthusy, Lausanne (VD)

 

Maîtrise d’ouvrage
La Foncière

 

Architecture
bunq

 

Génie civil
Ingeni

 

Conception
2020-2022

 

Réalisation
2023-2024

 

Logements créés en surélévation
4 appartements, 164 m2 SP

Magazine

Sur ce sujet