De Temple de l’art à En­semble ou­vert

L’extension du musée d’art de Zurich (Kunsthaus Zürich) par le bureau David Chipperfield Architects forme avec les bâtiments existants de la Heimplatz le plus grand musée d’art de Suisse. Cette nouvelle construction offrira non seulement plus d’espace à des collections en expansion, mais surtout un «Musée du 21siècle» à Zurich, ainsi confortée dans sa position de métropole internationale.

Date de publication
11-02-2021

L’histoire du musée d’art de la Heimplatz à Zurich s’est écrite en plusieurs étapes. Datant de 1910, le bâtiment initial de l’architecte Karl Moser a déjà été agrandi par trois fois sur son propre terrain. Les constructions qui se sont succédées au fil des générations matérialisent des positions architecturales et des conceptions scénographiques différentes, tout en témoignant de l’évolution du rôle du Kunsthaus dans la sphère publique de la ville.

Le premier bâtiment de Karl Moser, «Temple de l’art», s’inscrit dans le courant du Jugendstil. Le bâtiment consacré à la collection permanente, doté d’un portique central, et l’aile des expositions temporaires, en retrait, offrent des espaces à la symétrie nette, des parcours bien définis où le vagabondage du regard ne doit rien au hasard. Même si, à l’époque, l’entrée du Kunsthaus était gratuite pour tous trois jours par mois, l’agencement proposé s’adressait en premier lieu aux amateurs d’art. Quinze ans plus tard, Moser ajouta au bâtiment de la collection une bibliothèque et une galerie des sculptures, côté jardin. L’autre agrandissement notable fut réalisé en 1958 par les frères Pfister. Tout en longueur, la nouvelle aile sur pilotis, dans un style moderniste tempéré, s’accole à celle de Moser. Sous la grande salle des expositions temporaires, on retrouve, derrière une vaste baie vitrée, le restaurant et l’auditorium du Kunsthaus – autant de programmes publics qui animent la Heimplatz. De même, la construction annexe réalisée par Erwin Müller en 1976 définit, face à la Rämistrasse, un petit parvis sur lequel donnent plusieurs espaces ornés de grandes vitrines. Occupée à l’origine par des boutiques, elle abrite aujourd’hui la bibliothèque du Kunsthaus.

À travers le choix de la transparence des rez-de-chaussée et de nouveaux programmes publics, ces différentes interventions traduisent la volonté du Kunsthaus en tant qu’institution de se mêler toujours plus étroitement à son environnement urbain et de s’ouvrir au grand public. Le musée contemporain se voit ainsi conforté dans son rôle de lieu de communication et de médiation. L’actuelle extension du Kunsthaus s’inscrit dans le prolongement logique de cette volonté. Elle accueille les collections artistiques de 1960 à nos jours, issues des fonds du musée et de la Fondation Hubert Looser. Avec l’adjonction de la collection Emil Bührle, la peinture française devient prépondérante, au point que seul Paris peut encore rivaliser en la matière. La collection privée de Werner et Gabriele Merzbacher réunit quant à elle plusieurs courants célébrant la couleur. L’extension propose également une zone dédiée aux expositions temporaires, thématiques ou monographiques, et des espaces pouvant accueillir aussi bien des performances que des installations ou de la vidéo. Avec une telle approche de sa mission de conservation, le nouveau Kunsthaus procure à l’art un abri pour l’avenir, de part et d’autre de la Heimplatz. Parallèlement aux espaces d’exposition classiques et modulables, des lieux de rencontre dynamiques voient ainsi le jour, ouverts à tous, où l’expérience de l’art se fait aussi depuis l’espace public.

Croissance conjointe pour Zurich et le Kunsthaus

L’importance que revêt l’agrandissement du Kunsthaus ne se limite pas au seul positionnement du musée dans le monde de l’art. La ville de Zurich, en pleine croissance, tire elle aussi profit de cette offre culturelle augmentée et de ces nouveaux lieux publics Cette croissance conjointe s’inscrit dans le cadre du plan directeur pour le quartier universitaire. Associée aux édifices culturels existants de la Heimplatz, notamment le théâtre Schauspielhaus, l’extension du Kunsthaus est censée inaugurer l’agenda urbanistique «Kultur- und Bildungsmeile» (culture et éducation). Ce projet est donc le fruit d’une collaboration entre le secteur public et l’institution. La ville de Zurich, la Zürcher Kunstgesellschaft (société zurichoise des beaux-arts) et la Stiftung Zürcher Kunsthaus (fondation zurichoise du Kunsthaus) se sont associées au sein de la «Einfache Gesellschaft Kunsthaus-Erweiterung (EGKE)» (société simple pour l’extension du Kunsthaus), qui intervient en qualité de maître d’ouvrage. L’Office des travaux publics de la Ville de Zurich est chargé de la gestion du projet.

Le projet est financé par le Kunsthaus et la Ville de Zurich, chacun à hauteur de 88 millions de francs suisses. Le Canton contribue à hauteur de 30 autres millions. Le terrain qui s’étend entre la Heimplatz et le gymnase cantonal est en outre cédé en droit de superficie par le Canton à la fondation Stiftung Zürcher Kunsthaus. Cette tradition de collaboration entre les pouvoirs publics et le Kunsthaus de Zurich ne date pas d’hier puisque la Ville et le corps électoral étaient déjà impliqués dans le processus de décision et le financement du premier projet de construction du musée de la Heimplatz. La Ville avait en effet mis l’actuel bien-fonds situé au sud-ouest de la Heimplatz à la disposition de la Kunstgesellschaft et avait soutenu le projet à hauteur de 100 000 francs suisses en 1906 à l’issue d’une votation populaire en faveur de la construction du Kunsthaus. Dans le cadre de la procédure de concours organisée en 1904, le président de la ville de l’époque, l’architecte Hans Konrad Pestalozzi, avait siégé en qualité de président du jury.

Aujourd’hui, la Ville de Zurich est, elle-même, membre de la maîtrise d’ouvrage dans le cadre d’un partenariat public-privé. En 2008, son Office des travaux publics a organisé un concours anonyme par appel d’offres à l’international selon la procédure sélective. Sur les 214 candidatures, 20 équipes s’étaient qualifiées – onze suisses, sept issues d’autres pays européens et deux du reste du monde – parmi lesquelles certains cabinets d’envergure internationale, tels que Caruso St John à Londres ou des cabinets suisses de renom comme Gigon/Guyer, Diener & Diener, Max Dudler, Meili Peter, Miller & Maranta ou encore pool Architekten (cf. TEC21 1–2/2009 au sujet de l’issue du concours).

Tenir compte de la tradition architecturale de la ville

Les équipes ont été confrontées à l’enjeu complexe de devoir réaliser un gros volume sur une petite parcelle, tout en prenant soin d’intégrer la construction neuve à une échelle adaptée à son environnement historique.

En 2008, le choix s’est porté sur le projet de David Chipperfield Architects à Berlin avec les paysagistes belges de Wirtz International. Un positionnement clair dans l’architecture de la ville qui fait encore mieux apparaître «l’harmonie entre les extérieurs publics et les bâtiments le long de la Hochschul-Meile» ainsi que la création d’une «atmosphère urbaine très marquée» sur la Heimplatz ont su convaincre le jury d’adopter cette proposition. Le caractère compact, presque carré, de l’agencement du plan, la simplicité d’accès et la maîtrise de la lumière ont été jugés très satisfaisants. Une certaine «fascination pour l’historicisme» a toutefois été reprochée à la conception de la façade. Son calepinage strict conjugué à une mise en œuvre rigoureuse des matériaux dans le respect de la tradition architecturale des bâtiments publics de la ville constituait cependant «l’une des meilleures solutions proposées».

Une place du musée pour Zurich

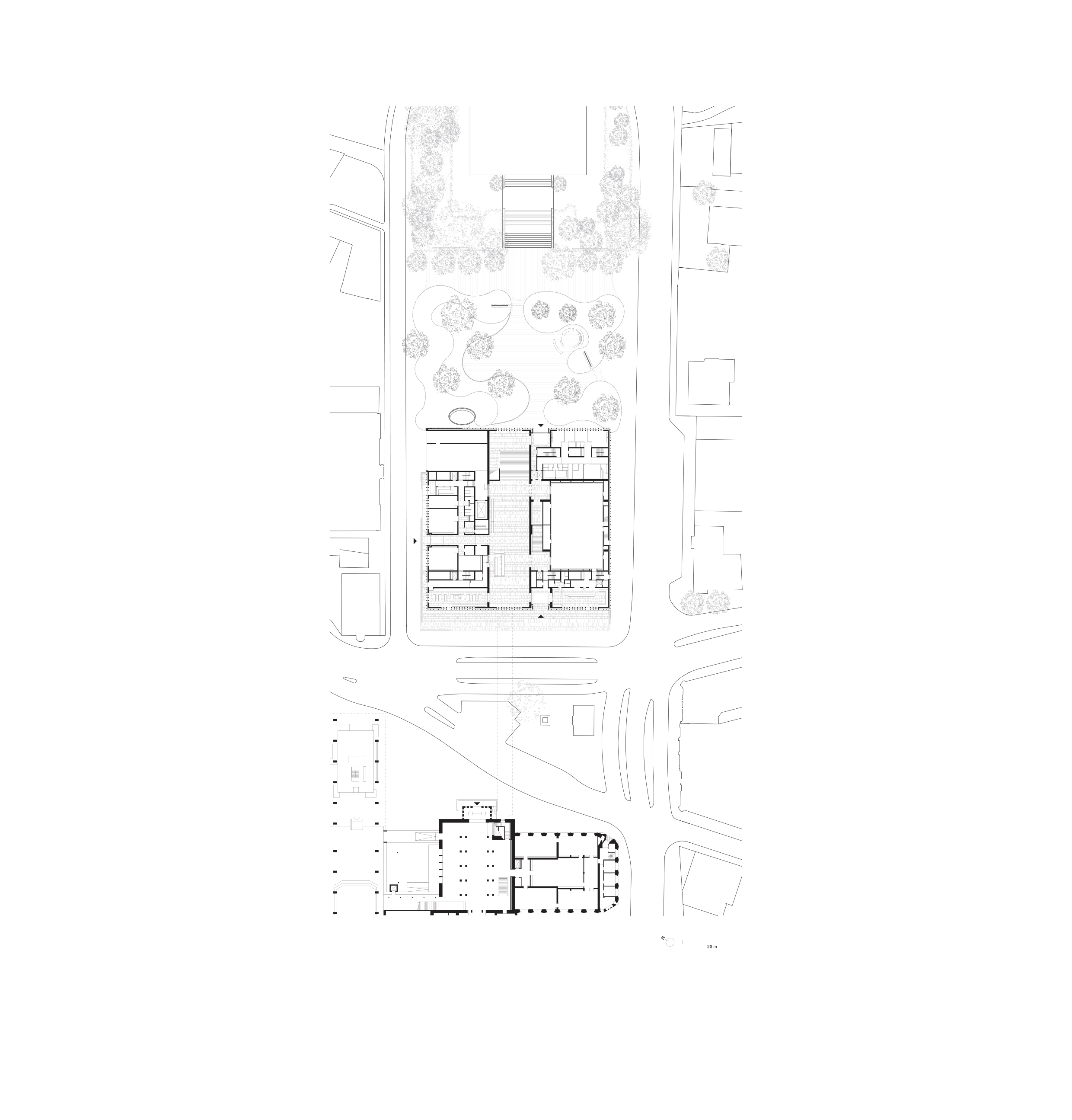
L’extension est à la fois objet autonome et élément urbain. Il ne s’agit pas d’un petit bâtiment au milieu d’un parc mais d’un volume imposant qui, conjointement au complexe du Kunsthaus existant et au théâtre, délimite la Heimplatz dans l’espace. Il n’est pas question, en l’occurrence, d’une simple extension jouxtant le bâtiment existant mais bien d’un agrandissement qui n’est rendu possible que par l’espace public commun avec la Heimplatz. Celle-ci tient en effet un rôle important pour le Kunsthaus car, en dépit de l’existence d’un passage souterrain fonctionnel, c’est elle qui sert d’accès principal aux bâtiments du musée qui se font face. Contrairement à ce que prévoyaient les plans à l’origine, David Chipperfield Architects n’ont pas réussi à supprimer le trafic automobile. Le jury a abandonné ce point, le déclarant irréaliste bien que souhaitable. Le concours, lancé à la suite de celui-ci, pour l’aménagement de la Heimplatz n’a pas réussi non plus à remettre en question la gestion existante du trafic (voir TEC21 35/2019 ou bit.ly/heimplatz).

Du fait de cette situation urbaine, la proposition de Chipperfield mise sur la continuité et le dialogue. La présence visuelle de l’ensemble architectural existant du Kunsthaus, depuis l’intérieur de l’extension, a constitué un fil rouge majeur du projet. L’existant ne doit pas perdre en importance à cause de la construction neuve. La façon dont la construction de Moser est mise en scène au niveau de la grande travée donnant sur la Heimplatz témoigne de cette intention. L’extension constitue certes le plus grand bâtiment de la place, mais son expression calme met toutefois la construction neuve en retrait. La façade en pierre calcaire sciée s’inspire des façades traditionnelles en pierre qu’on trouve aussi bien sur la construction de Moser que sur d’autres bâtiments importants de Zurich. Il convient toutefois de remarquer que, comparé aux autres constructions qui bordent la place, le corps massif du bâtiment ne favorise pas le dialogue souhaité avec l’extérieur.

La zone de marbre clair, à l’avant de la construction neuve, figure les prémices de la future rénovation de la Heimplatz: le revêtement doit par la suite s’étendre sur toute la place. Du côté nord de l’extension, un second espace extérieur public – baptisé «Garten der Kunst», ou jardin de l’art – forme un contrepoint.

Le hall, espace urbain

Le hall public qui relie par un escalier la Heimplatz au jardin situé plus haut est l’élément central du projet de Chipperfield. Ne serait-ce que par sa taille, l’espace a déjà une dimension urbaine. Celui-ci s’étend de la façade côté place à la façade côté jardin et traverse le bâtiment sur toute sa hauteur. Comme un écho visuel, de grandes fenêtres donnant sur les extérieurs environnants renforcent l’effet produit. Un autre escalier situé sur le côté à l’arrière des jardins et menant au gymnase cantonal offre un prolongement à celui du hall du Kunsthaus.

Ce hall offre au visiteur un outil clair pour se repérer, ce qui s’avère d’une importance décisive pour un bâtiment de cette taille. Au rez-de-chaussée, toutes les zones publiques – le bar, la grande salle de conférence, la boutique du musée et les espaces de médiation – sont accessibles depuis le hall.

Les zones d’exposition se trouvent au niveau des deux étages supérieurs, de part et d’autre du hall. Elles constituent la «Haus der Räume» (maison des salles) dans un enchaînement de volumes de tailles différentes. Leur disposition permet des parcours variés. Les enfilades créent des liens visuels à l’intérieur et débouchent souvent sur une vue sur la ville. Au premier étage, la lumière du jour entre dans le bâtiment par les côtés, et au deuxième, par des ouvertures zénithales afin que le visiteur puisse trouver des repères dans le temps et l’espace.

Des salles destinées aux expositions temporaires de format intermédiaire constituent un raffinement de ce plan classique qui rappelle les musées du 19e siècle. Placées aux angles du bâtiment, elles peuvent être isolées du parcours le temps d’être installées, sans impact gênant sur le reste de l’exposition.

Volumes et transparence

Trouver la juste proportion d’ouverture des salles à la lumière naturelle est l’un des enjeux majeurs dans le domaine de l’architecture muséale. Si la lumière naturelle offre des conditions idéales pour présenter les œuvres d’art, de grandes ouvertures en façade posent des problèmes d’entretien et de conservation. Sur tout le pourtour de l’extension, de grandes fenêtres offrent une porosité visuelle entre intérieur et extérieur. La pénétration de la lumière naturelle est contrôlée grâce à la configuration particulière de la façade. La structure à lésènes devant les fenêtres fait office de brise-soleil.

Les nombreuses ouvertures en façade sont également une main tendue vers l’espace public en ceci qu’elles permettent de poser un regard sur l’art sans même avoir à pénétrer dans le musée. Ce jeu de transparence se perçoit d’autant mieux le soir, quand le bâtiment est illuminé de l’intérieur.

Avec ses espaces intérieurs et extérieurs largement accessibles, l’extension offre un nouvel élément au tissu urbain. L’avenir nous dira si le hall central, à la fois cœur du bâtiment et lieu public, sera traversé autant par les visiteurs du musée que par les simples passants. Vaste espace d’exposition et lieu de manifestation, cette nouvelle extension en a assurément le potentiel.

Extension du musée d’art de Zurich (Kunsthaus Zürich)

 

Concours: 2009

 

Réalisation: 2015-2020

 

Maître d’ouvrage: Einfache Gesellschaft Kunsthaus-Erweiterung (EGKE)

 

Gestion du projet maîtrise d’ouvrage: Ville de Zurich, Office des travaux publics

 

Propriétaire: Fondation Stiftung Zürcher Kunsthaus (SZK)

 

Architecte: David Chipperfield Architects, Berlin

 

Structure: IG EKZH, Uster

 

CVCS: Polke, Ziege, von Moos, Zurich

 

Architecture du paysage: Wirtz International, Schoten (B)

 

Revêtements sols bois: GDM Parkette, Uster

 

Travaux en pierre naturelle: ARGE Kunsthaus, Stuttgart

 

Mise en œuvre laiton: Baur Metallbau, Mettmenstetten

 

Éclairage exposition: Zumtobel Licht, Zurich

 

Coût total: CHF 206 millions, réserves comprises

Olga Rausch est architecte à Zurich et correspondante pour TEC21. Cet article a été publié en langue originale allemande dans TEC21 38/2020.

Sur ce sujet