Cons­truire pour ha­bi­ter

Bâtir ensemble pour mieux cohabiter : c’est l’idéal qui a guidé la coopérative DomaHabitare à Sainte-Croix (VD) pour réaliser un immeuble en partie autoconstruit de neuf appartements où l’espace est partagé au quotidien.

Date de publication
07-02-2018
Revision
13-02-2018

Une drôle d’embarcation vogue sur le stratus qui stagne à Sainte-Croix, au pied du Jura. Derrière une coque transparente faite de polycarbonate ondulé, de fenêtres de différentes couleurs, de panneaux solaires – tout cela agencé dans un ordre assez rocambolesque – on devine une structure entièrement en bois, couronnée d’un arc en plein cintre. Sur le pignon émerge une étrange tourelle en béton décorée d’un bas-relief et un nichoir à oiseaux campé à son sommet. Cela ressemble à l’abri qu’une poignée de survivants se serait construit après une catastrophe écologique. Visiblement construit sans plan précis et en recyclant ce que l’on avait sous la main, la bâtisse est une manifestation rare de la « méthode du bricoleur »1 – une métaphore dont on abuse généralement pour excuser quelque improvisation résultant d’un budget mal maîtrisé ou un détail inélégant. Mais dans ce cas précis, le bricolage était un choix parfaitement assumé. Les sociétaires de la coopérative DomaHabitare, futurs habitants de l’immeuble, ont en effet renoncé, dès le départ de leur entreprise, à ficeler le projet avant de le mettre à exécution. Il s’agissait de rester ouverts à toutes les opportunités, de prendre des décisions ensemble, sur un rythme incrémental. Ainsi, le chantier, tel un banquet improvisé, fait cohabiter au gré des rencontres les coopérateurs et les entreprises de la région qui entrent dans leur ligne de pensée. On économise sur la façade, certes, mais on s’offre un pignon en tavillons traditionnels sur un coup de cœur et un escalier monté sur une voûte sarrasine réalisée par une des rares entreprises à maîtriser cette technique.

Les habitants appellent volontiers « notre arche » son toit en forme de coque de bateau retournée. La métonymie indique bien l’intention de ces Argonautes de voguer à contre-courant, de se soustraire aux standards de la société post-industrielle. Et ils pourront effectivement survivre longtemps, dans une habitation ­pratiquement autonome qui récupère les eaux de pluie, évacue ses déchets organiques, produit suffisamment d’énergie pour la consommation de ses neufs foyers et permet même de conserver à l’abri les fruits et légumes issus du jardin potager.

Une cohabitation bien tempérée


L’architecte mandaté par les habitants le confesse de but en blanc : ce ne sont pas les détails et l’expression qui l’intéressent, mais bien les techniques employées. Une fois dédouané de certaines révérences envers le milieu, il a la main libre pour accompagner un projet coopératif dont la radicalité l’a séduit. La communauté repose sur quelques principes hautement écologiques qui n’autorisent que des matériaux dégradables ou le réemploi. Pour y répondre, il conçoit le bâtiment tout entier comme une maquette 1:1 dans laquelle il est permis d’expérimenter, de déplacer, de corriger à mesure que se constitue l’édifice, au rythme des décisions. Impliqués jusque dans le chantier, les coopérateurs vont donc construire leur arche eux-mêmes, apprendre progressivement à l’habiter.

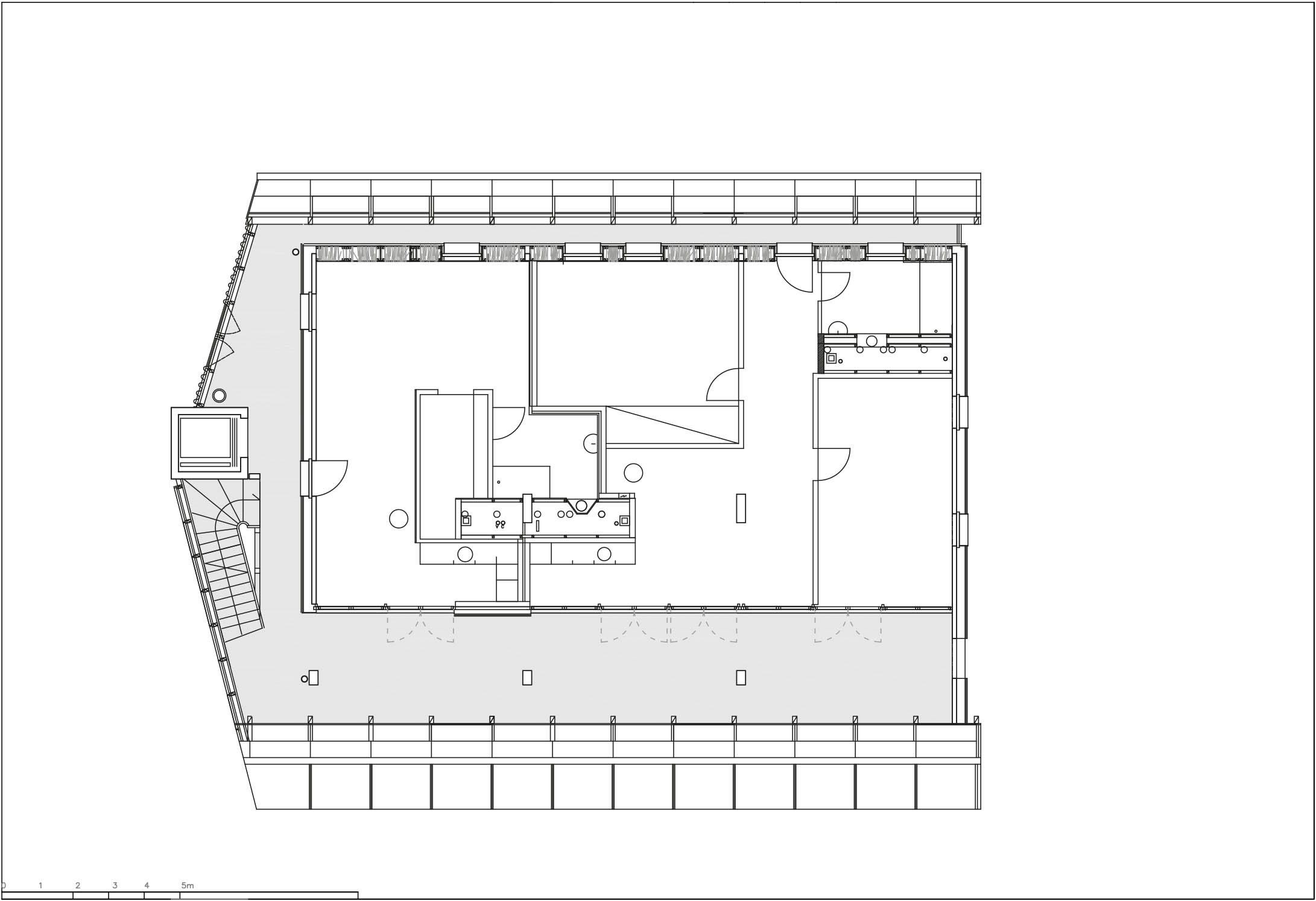
L’esquisse fondatrice est celle d’une grande serre habitable, au climat tempéré, dans laquelle viendront se loger les appartements. Le climat particulier de Sainte-Croix favorise a priori une exploitation judicieuse du rayonnement solaire. Elle se matérialisera par cette périphérie transparente et lumineuse : au nord une coursive d’accès, au sud de profondes vérandas. L’agencement du plan, emprunté à quelques projets inspirants de Lacaton & Vassal consistant à rendre habitable l’une des couches participant au confort thermique de l’ensemble, nourrit le projet des coopérateurs : il est adopté que tous les espaces compris dans la zone tempérée seront collectivisés, en plus du jardin potager et d’une cuisine commune. Les plateaux des trois étages peuvent ensuite être occupés librement. Les cloisons sont montées en briques de terre crue, afin de pouvoir être démontées à la main, en temps voulu. Les habitants définissent eux-mêmes la position des murs mitoyens et le cloisonnement de leurs appartements autour des deux blocs sanitaires. Certains créent de petites chambres, d’autres déploient un grand espace. Ainsi, au sein du groupe, les relations humaines se tissent en même temps que se matérialise l’agencement spatial : l’espace vécu et l’espace conçu se constituent ensemble. Et on ne sait plus si c’est la maison qui construit la communauté ou l’inverse. Le bricolage dont nous parlons ici ne relève donc pas d’un souci d’esthétique architecturale, mais bien d’anthropologie, une méthode pour concevoir cette petite machine à cohabiter.

Derrière sa robe translucide, la bâtisse exhibe une structure simple, des matériaux traités avec honnêteté, mais aussi bientôt les traces du quotidien qui rempliront bientôt les coursives et les vérandas : plantes et bouteilles vides, jouets et meubles à chaussure. Va-et-vient, engueulades, potins. A l’ère de la médiatisation de l’intime, cette exposition manifeste a de quoi étonner : au lieu des intérieurs mis en scène et rendus conformes à une certaine idée photogénique de l’habitat collectif, les coopérateurs de Sainte-Croix exhibent ostensiblement leur fruste domesticité, en toute transparence. La cohabitation de neuf foyers de tous les âges est possible, nous disent-ils, à condition d’en discuter ouvertement, d’impliquer entièrement les résidents dans le projet, et de régler les inévitables conflits de voisinage au quotidien. Nul ne sait où voguera cette embarcation, puisque personne n’a établi de carte. Aux Argonautes nous souhaitons bon voyage.

 

Note

1    « Pour le bricoleur, la règle de son jeu est de toujours s’arranger avec les ‹ moyens du bord ›, c’est-à-dire un ensemble à chaque instant fini d’outils et de matériaux, hétéroclites au surplus, parce que la composition de l’ensemble n’est pas en rapport avec le projet du moment, ni d’ailleurs avec aucun projet particulier, mais est le résultat contingent de toutes les occasions qui se sont présentées de renouveler ou d’enrichir le stock, ou de l’entretenir avec les résidus de constructions et de destructions antérieures ». Claude Lévi-Strauss, La pensée sauvage, Paris, Plon, 1990 (1962), p. 31.

 

Entreprises

Maître d’ouvrage : Coopérative DomaHabitare
Architecte : Christian Jelk, Atelier 404
Structure bois : groupe JPF-Ducret, Jean-Marc Ducret
Escaliers et voûtes sarrasines : Pittet artisans
Briques terre crue : Terrabloc
Enduits de finition : Feinraum, Carlo Vagnières
Solaire thermique : Jean Crausaz, Giez
Solaire photovoltaïque : SP énergie, O. Prior et C. Soutter
Energétique : Constantin Soutter
Ingénieur civil BA : TBM, Claude Michaud
Récupération des eaux pluviales : Alain Delplanque

Magazine

Sur ce sujet