Du com­mun à la com­mu­nauté

À Denens (VD), un groupement de locataires vient d’emménager dans une ancienne grange, transformée en un cluster de six habitations, un des premiers de Suisse romande en milieu rural. Mise en œuvre avec des matériaux biosourcés, géosourcés ou issus du réemploi, cette réalisation est un condensé d’intentions sociales et de réflexions environnementales.

Date de publication
03-10-2023

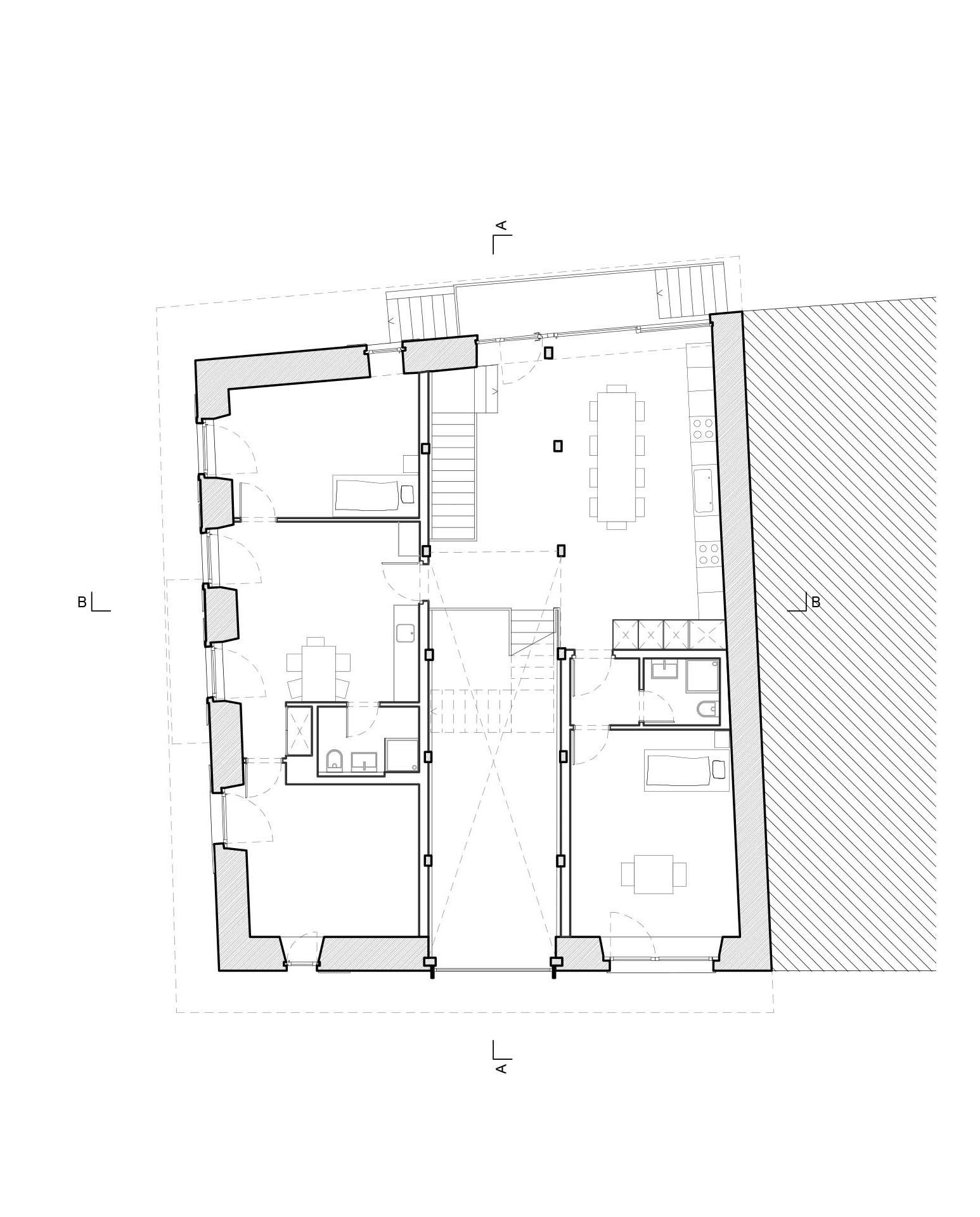
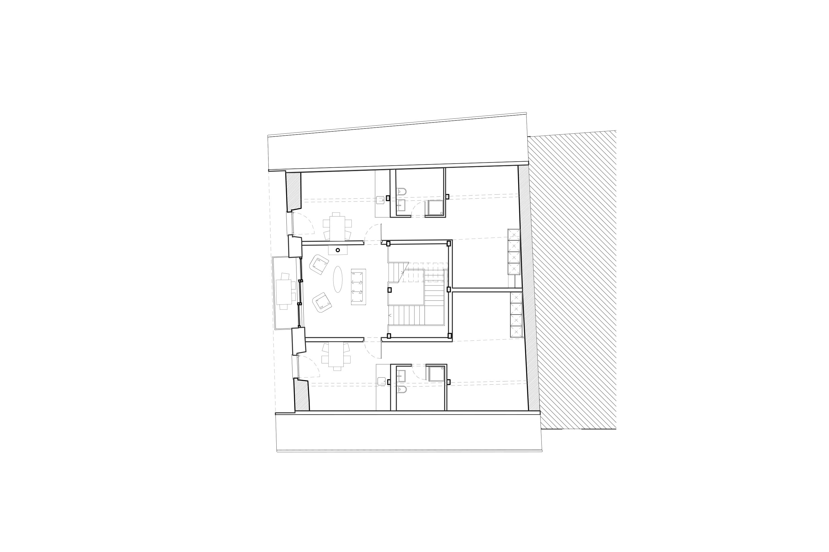
Au cœur de la grange se déploie un espace piranésien. Depuis le hall du rez inférieur, ouvert sur le jardin, jusqu’à la mezzanine dont la fenêtre de toit cadre le ciel, les espaces communs s’enchaînent et s’alternent autour du vide dessiné par les six unités de vie qui deviennent secondaires, presque anecdotiques. Conçues pour s’insérer dans la trame structurelle existante, les différentes typologies sont réduites au minimum, ou presque: une à deux pièces, une salle de bains, un coin cuisine et des rangements quand la place le permet. Pour les éclairer, quelques nouvelles ouvertures complètent les fenêtres existantes. La simplicité de l’intervention architecturale des unités laisse d’autant plus de place aux lieux partagés de l’espace central, véritable cœur programmatique du projet. De l’un à l’autre, des vues diagonales se croisent et les habitant·es s’y rencontrent.

Organisés verticalement, ces paliers sont aussi pensés en fonction de leur relation avec l’extérieur, selon une gradation d’usages et de ressentis allant, de bas en haut, du plus commun au plus intime, du plus frais au plus chaud. Cette ascension à travers le bâtiment est générée par la substance même de la grange. Par son volume, sa structure et sa présence, elle séduit les architectes et provoque leur attitude: intervenir au minimum pour laisser l’existant s’exprimer, aussi dans la construction. Partout où cela est possible, les matériaux sont conservés, adaptés, réemployés, comme les encadrements des fenêtres ou les volets, simplement déportés sur la façade isolée. Ou comme les murs démontés dont les briques de terre cuite ont été réutilisées et complétées avec des briques de terre crue, façonnées avec la matière excavée in situ. Ou encore comme les gabions du jardin, formés des pierres extraites lors du percement des nouvelles fenêtres. Tout est conçu pour réduire le déplacement de ressources et, quand la matière doit être importée, elle est majoritairement issue de chantiers de déconstruction, comme ces solives provenant d’un immeuble d’habitation à Genève et mises en œuvre pour les dalles massives des étages.

De l’espace au programme

Si le projet se développe dans la hauteur du volume bâti, il s’écrit aussi sur la longueur temporelle. Après environ un siècle d’exploitation agricole de la grange, qui aurait cessé vers la moitié du 20e siècle, un logement de fonction y avait été aménagé dans les années 1970. En 2005, un projet de trois appartements est envisagé mais n’aboutit pas. Les taux d’intérêt sont alors trop élevés et, surtout, la banque juge les surfaces des appartements trop grandes pour l’emplacement – et donc pas assez rentables. Le projet est arrêté jusqu’en 2014, quand l’étudiant en architecture de la famille se penche dessus. Arthur de Buren, ainsi que deux camarades d’étude, parviennent alors à intégrer quatre appartements dans le plan. Mais, là encore, le contexte n’est pas favorable. La commune est en pleine révision de son règlement d’urbanisme et tous les projets de construction sont gelés. Ce n’est qu’en 2021, un an après l’entrée en force du nouveau règlement, que le chantier pourra finalement démarrer pour aboutir à l’emménagement des locataires en 2023, 18 ans après la première esquisse.

Ce temps long doit toutefois être considéré comme une opportunité pour ce projet. Ce sont ces refus, ces arrêts et ces périodes de maturation qui lui ont permis d’évoluer de logements collectifs en milieu rural en habitat communautaire. Certains modes de pensée et de construire ont profondément progressé pendant ces années, marquées par un regard nouveau sur notre habitat pendant la pandémie et un changement de paradigme dans les perceptions de la crise environnementale. L’influence d’exemples de logements collectifs alternatifs, à Genève ou en Suisse alémanique, a aussi grandi. En 2017, quand Arthur de Buren et Charles Capré, alors fraîchement diplômés, imaginent un cluster, la motivation est principalement architecturale. La variante de quatre appartements obstrue complètement le volume et engage de telles modifications structurelles qu’elle questionne la pertinence même d’une transformation. L’idée d’un espace commun central répond d’abord à la volonté de conserver et valoriser le bâtiment existant. Le plan se dessine rapidement en se nourrissant de cette substance. Puis, progressivement, le commun devient la communauté et la qualité de vie proposée dans cet espace prend son importance. La colocation en cluster apparaît comme une solution programmatique applicable à la typologie de la grange.

Cultiver le vivre ensemble

C’est d’ailleurs l’idée que vont développer les jeunes architectes pour le programme de soutien Sprungbrett im Wohnungsbau. Cette initiative de l’entreprise Promiet offre un tremplin pour la construction de logements innovants en milieu rural ou périphérique. Sélectionné en 2018, le cluster de Denens retient l’attention du jury parce que «c’est un petit projet, qui répond cependant à une problématique générale urgente»1. L’échelle du projet de six habitations seulement est compensée par la valorisation d’un modèle applicable aux nombreuses granges présentes autour du village et, par extension, dans la région lémanique. Pour cela, une pièce de théâtre2 est même co-écrite, mettant en scène huit personnages qui cohabitent dans une société post-pétrole. La pièce, représentée dans plusieurs granges de la région, interpelle le public sur le vivre-ensemble.

Cette démarche s’inscrit dans une réflexion globale sur l’habitat et tend à insuffler une certaine utopie autour de la représentation du foyer. Elle met en avant la pluralité des modèles familiaux existants et répond à une réalité du tissu local: à Denens, environ 70 % des maisons sont des 4 pièces ou plus alors que plus de 50 % des ménages ne sont composés que d’une ou deux personnes. La typologie du cluster répond à ce déséquilibre en offrant des espaces aussi qualitatifs que le logement individuel, tout en optimisant la surface moyenne par habitant·e. La pièce a également la qualité de mettre en scène le quotidien dans une telle colocation et de lever les a priori, en vue de créer une communauté d’habitant·es pour le cluster. Car face aux doutes et réticences des maîtresses de l’ouvrage sur la viabilité de tels logements en zone non urbaine, les architectes se sont engagés à trouver eux-mêmes la banque pour financer le projet, la gérance pour commercialiser les appartements et les locataires pour les habiter. Un projet d’architecture total qui nécessite un investissement au-delà des prestations courantes des mandataires.

Dès le démarrage du chantier, des réunions publiques sont régulièrement organisées afin de constituer progressivement un groupe de personnes prêtes à habiter ensemble, sans pour autant les impliquer dans le processus décisionnel de la conception et des travaux. Car c’est là la particularité de ce projet: bien que le mode de vie s’en inspire directement, il ne s’agit pas d’une coopérative d’habitant·es, mais bien de location. Dans l’idéal, le groupement de locataires pourrait être autonome et solidaire, sous forme d’association. Dans les faits, les baux de location sont finalement assez classiques. Les questions de fonctionnement et de vie commune sont tout de même discutées par et avec les habitant·es. Ce compromis leur permet donc de s’impliquer dans la vie de leur logement tout en profitant d’un système moins engageant et plus rapide à se concrétiser que la coopérative.

L’intégration de ces questions contractuelles et de fonctionnement dans le projet architectural parachève son ancrage dans le temps. L’histoire du bâtiment, la provenance des matériaux, la définition des relations de location et de cohabitation… autant de paramètres que les architectes ont intégré dans leur processus créatif afin d’aboutir à un ensemble cohérent. Ici, l’architecture s’appuie sur ce qui existe afin d’en révéler les qualités intrinsèques, qu’elles soient spatiales, constructives ou sociales.

Cluster de six habitations dans une ancienne Grange, Denens (VD)

 

Maîtresses d’ouvrage
Claire de Buren et Geneviève de Buren-Chandran

 

Architecture
Coopérative d’architecture C/O, Arthur de Buren et Charles Capré

 

Génie civil
Normal Office, Peter Braun & Gil Bustaret

 

Conseil DT
Stéphane Michlig, Quartal

 

Conseil habitat
Laurent Guidetti, Tribu

 

Procédure
mandat direct

 

Planification
2017-2021

 

Réalisation
2021-2023

 

Surface
368 m2

 

Coûts CFC 2 hors honoraires
2 mio CHF

Notes

 

1 Cahier thématique de Hochparterre, septembre 2022 – De nouvelles formes d’habitat

 

2 La théorie de l’ours polaire, écriture collective, mise en scène par Stella Giuliani, collaboration à l’écriture par Alexis Rime, dramaturgie et scénographie par Arthur de Buren, costumes par Audrey Cavelius, régie son et lumière par Adrien Clerc, avec Muriel Blanc Muller, Sophia Ivanoff, Noa Naclerio, Yann Poget, Frédéric Richard, Nella Stücker et Sandrine Terzi Stocker. Représentations au festival des granges à La Chaux du 27.08 au 06.09.20, à Denens les 12 et 13.09.20 et à Crissier les 19 et 20.09.20.

Sur ce sujet