Al­pole, trans­fi­gu­ra­tion mi­ni­male

À Sion, au cœur du projet urbain Ronquoz 21, le bureau sédunois Savioz Fabrizzi a subtilement glissé le centre Alpole de l’EPFL, dédié à l’étude des écosystèmes alpins et polaires, dans l’enveloppe d’une ancienne imprimerie.

Date de publication
11-07-2023

Coordonné par Herzog & de Meuron, le projet urbain Ronquoz 21, amené à requalifier une large zone de la ville de Sion entre les voies ferrées et l’autoroute A9, tient d’ores et déjà une de ses pièces majeures. Le bâtiment Alpole, tout nouveau centre d’étude des écosystèmes alpins et polaires de l’EPFL, a accueilli ses premiers chercheurs et laborantins en décembre 2022. Pour ce faire, l’ancienne imprimerie du quotidien valaisan le Nouvelliste1 a subi une transformation aussi légère que possible – mais aussi profonde que nécessaire.

Avant même l’attribution du mandat, l’EPFL avait décidé d’un geste fort pour le futur centre Alpole, tranchant avec ses habitudes: intégrer un bâtiment préexistant. Dans cette optique, l’école souhaitait s’appuyer sur une intervention architecturale minimale et efficace, le budget du projet étant majoritairement dévolu aux installations techniques lourdes des laboratoires.

Ce parti pris initial a mené à un processus de commande rapide, cherchant à «aller à l’essentiel» – un mantra pragmatique qui marquera l’ensemble de la réalisation. Le projet n’a donc pas été soumis à une procédure de concours traditionnelle, qui aurait ouvert le champ des possibles aux propositions architecturales les plus variées et inattendues, mais a fait l’objet d’une offre d’honoraires combinée à un principe de façade. Malgré ces conditions plaçant a priori l’intervention architecturale au second plan, le bureau Savioz Fabrizzi a remporté la mise en proposant un projet à la personnalité affirmée: une façade répétitive au principe simple et fort, contenant déjà en germe les ambitions des architectes pour la réfection intérieure.

Ce qui se conçoit bien s’arpente clairement

L’intervention sur la façade du bâtiment est claire et fonctionnelle. Une trame régulière de larges fenêtres et un discret crépis moucheté vert-de-gris habillent un édifice aux proportions plutôt habituelles dans ces zones périurbaines (60 m de long pour trois étages).

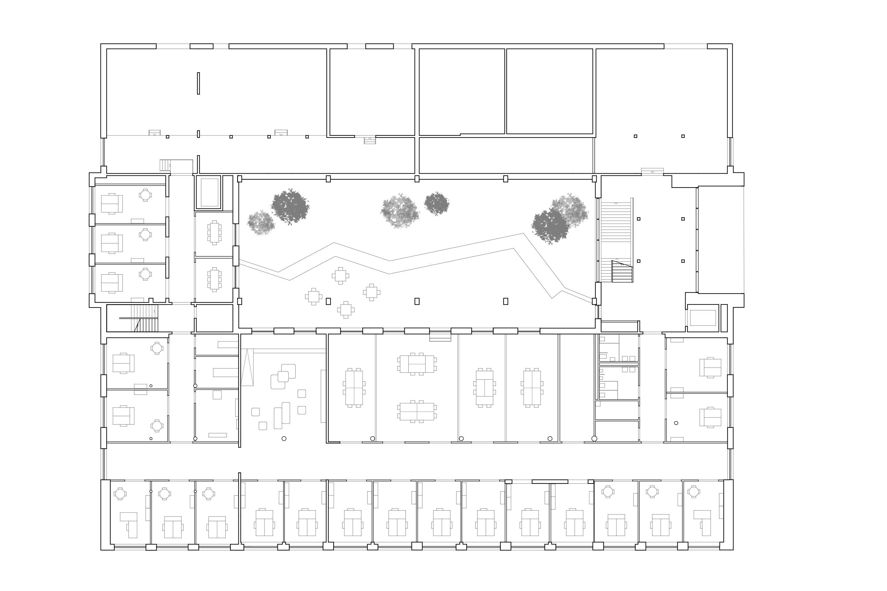
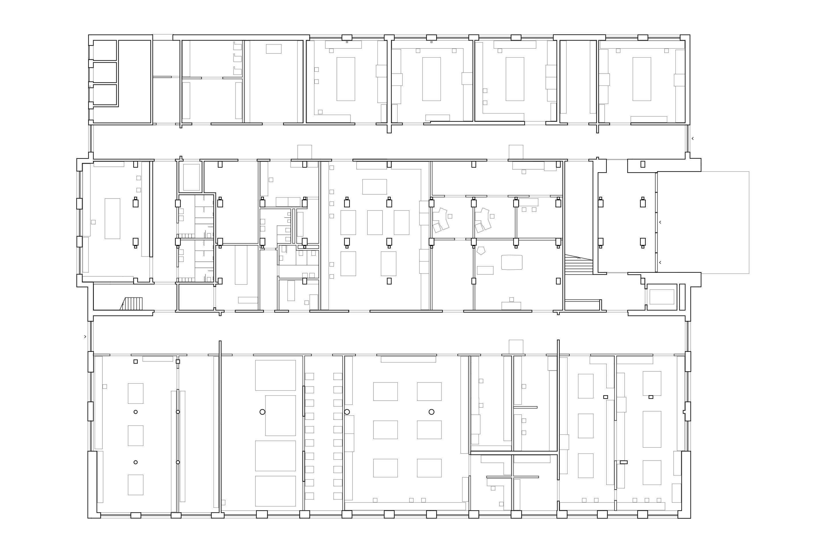
Depuis la rue (ou l’autoroute), le projet affiche donc un caractère rationnel et répétitif, masquant sobrement une intervention intérieure plus profonde. Le nouveau programme du bâtiment se caractérise en effet par une grande complexité technique, ayant guidé les partis pris architecturaux. L’étude des milieux alpins et polaires est particulièrement exigeante et requiert un équipement de pointe: réseaux de liquides et gaz rares, appareils de haute technologie, procédures de sécurité drastiques… le tout prenant place dans une série de laboratoires permettant la cohabitation fluide du personnel et des activités. Face à un tel enjeu, et dans une coquille préexistante au projet, les architectes Savioz Fabrizzi analysent les qualités du lieu et parviennent à repenser en profondeur l’ensemble du fonctionnement de ce bâtiment-usine par quelques choix architecturaux forts, une organisation interne lisible, et une écriture toute en retenue.

La halle centrale, auparavant dédiée à l’impression des journaux, a été «décapsulée» et transformée en un généreux patio. Celui-ci permet notamment d’installer deux anneaux administratifs dans les étages : des bureaux éclairés en façade; et des espaces de réunion ou de repos donnant sur le jardin intérieur. Entre ces deux orbites administratives, un large et haut couloir ceint le bâtiment, profitant des proportions généreuses de l’édifice industriel.

Dans le sens de cette organisation toute en simplicité, l’ensemble des étages a été aménagé dans la structure existante avec des matériaux courants – sol en linoléum, cloisons en briques de ciment peintes, larges cadres de portes en métal thermolaqué recevant la signalétique – facilitant la réversibilité du bâtiment à l’avenir. Ces choix économiques ont été rendus d’autant plus nécessaires que la complexité de l’opération dépassait les prévisions de l’EPFL. On pourra citer à titre d’exemple les reprises de structure antisismiques ou l’exigence particulière du plan de sécurité incendie, liée notamment aux expérimentations scientifiques.

Enfin, le rez-de-chaussée, caractérisé par une grande hauteur sous plafond, semblerait presque avoir été originellement conçu pour recevoir les laboratoires techniques et leur enchevêtrement de tubes, tuyaux et conduits variés. Là encore, une organisation centrifuge autour du patio permet de distribuer les différents locaux.

Esprit, es-tu là?

Toutefois, si l’on contourne naturellement la cour pour se déplacer dans le bâtiment, on fait tout aussi bien de s’y arrêter un instant, pour apprécier l’agréable étrangeté du lieu. Celle-ci n’est pas uniquement due à l’aménagement spatial – sobre équilibre entre minéral et végétal – mais surtout à l’installation artistique nichée en son creux.

L’œuvre du duo Barbezart-Villetard, issue d’un concours de projets, consiste en un travail sonore. Un chapelet d’enceintes parcourt le patio et diffuse un flux léger, composé automatiquement à partir d’une banque de sons, selon un algorithme dépendant des stations météo perchées au sommet de glaciers alentours (par ailleurs étudiés dans le bâtiment). Les sons pré-­enregistrés ont été créés spécifiquement pour l’œuvre, essentiellement à base de longues notes de trompette, et se glissent entre les bruits environnants de la ville et de l’édifice, jusqu’à parfois quasiment s’effacer.

Ce complément acoustique, à mi-chemin entre les sifflements du vent et ceux des machines, fait partie intégrante du projet, au même titre que les passerelles industrielles du précédent programme, conservées dans le patio comme d’imposantes sculptures. C’est d’ailleurs l’ensemble du bâtiment qui est jalonné des traces de sa précédente affectation, avec par exemple la conservation des horloges d’origine dans les parties communes.

Finalement, malgré un cahier des charges contraignant (un budget essentiellement dédié aux impératifs techniques des laboratoires, des normes de sécurité drastiques, et une coque existante dans laquelle s’insérer), le nouveau bâtiment d’Alpole profite habilement des opportunités de la transformation. Les scientifiques attelés à l’étude des milieux alpins et polaires, mesurant quotidiennement les conséquences du changement climatique, intègrent ainsi un bâtiment en cohérence avec cette réalité prégnante. Par la réhabilitation d’un édifice existant, l’utilisation de matériaux simples et un plan aisément réversible, le projet se montre à la hauteur du programme qu’il accueille, visant un impact environnemental minimal et développant un imaginaire fondé sur la réalité climatique. Dans ce contexte de sobriété constructive, les architectes parviennent à magnifier quelques lieux clefs pour rendre le bâtiment plaisant et singulier: comme avec une loggia en double hauteur, percée dans la façade sud, recevant un espace partagé généreux et contemplatif, ou encore un escalier à volée droite en débouchant dans le patio, et favorisant les rencontres informelles.

Ainsi transfigurés, les locaux où était tiré le quotidien valaisan restent un outil de travail efficace, toujours voué à informer sur l’état du monde.

Note

 

1 Le bâtiment a hébergé l’imposante rotative imprimant Le Nouvelliste de 1991 à 2018.

Alpole, pôle de recherche sur l’environnement alpin et polaire, deuxième phase d’implantation de l’EPFL, Sion (VS)

 

Maître de l’ouvrage
Canton du Valais

 

Architecture
Savioz Fabrizzi architectes, Sion

 

Génie civil
Alpatec, Martigny

 

Ingénierie CVS
Kotorritech, Sion

 

Ingénierie électricité
Valsmart, Sion

 

Procédure
Concours, 2018

 

Réalisation
2020-2022

 

Surface de plancher
9635 m2

 

Coûts
34.1 mio CHF

Sur ce sujet