De la forêt de Broc au com­ple­xe spor­tif

En Gruyère, un complexe sportif s’est bâti en bordure de la Sarine sur un terrain inondable. Seize immenses poutres en lamellé-collé d’une longueur de 40m, fabriquées en un seul tenant, portent la toiture de la salle de gymnastique double. Une réalisation du bureau deillon delley architectes. 

Publikationsdatum
15-02-2022

Si la Sarine était une rivière qui roulait de grosses eaux troubles à la fonte des neiges, inondait les terres, déversant cailloux et gravier et charriant des arbres entiers, sa sauvagerie s’apaisait grâce à ses innombrables méandres. La sinuosité de son cours ralentissait son impétuosité et rendait sa surface enfin navigable, en aval de Fribourg. Poissonneuses, ses eaux accueillaient même des saumons atlantiques qui remontaient la rivière pour frayer sur leur lieu de naissance, au pied des Alpes. Comme ses débordements étaient redoutés, son tracé fut en partie corrigé et endigué et son débit régulé par des barrages alimentant des usines hydroélectriques. Les dangers de crue ayant été entièrement maîtrisés ou presque, des terres furent gagnées sur le large lit qu’occupait la rivière.

Le marais d’autrefois devient une plaine

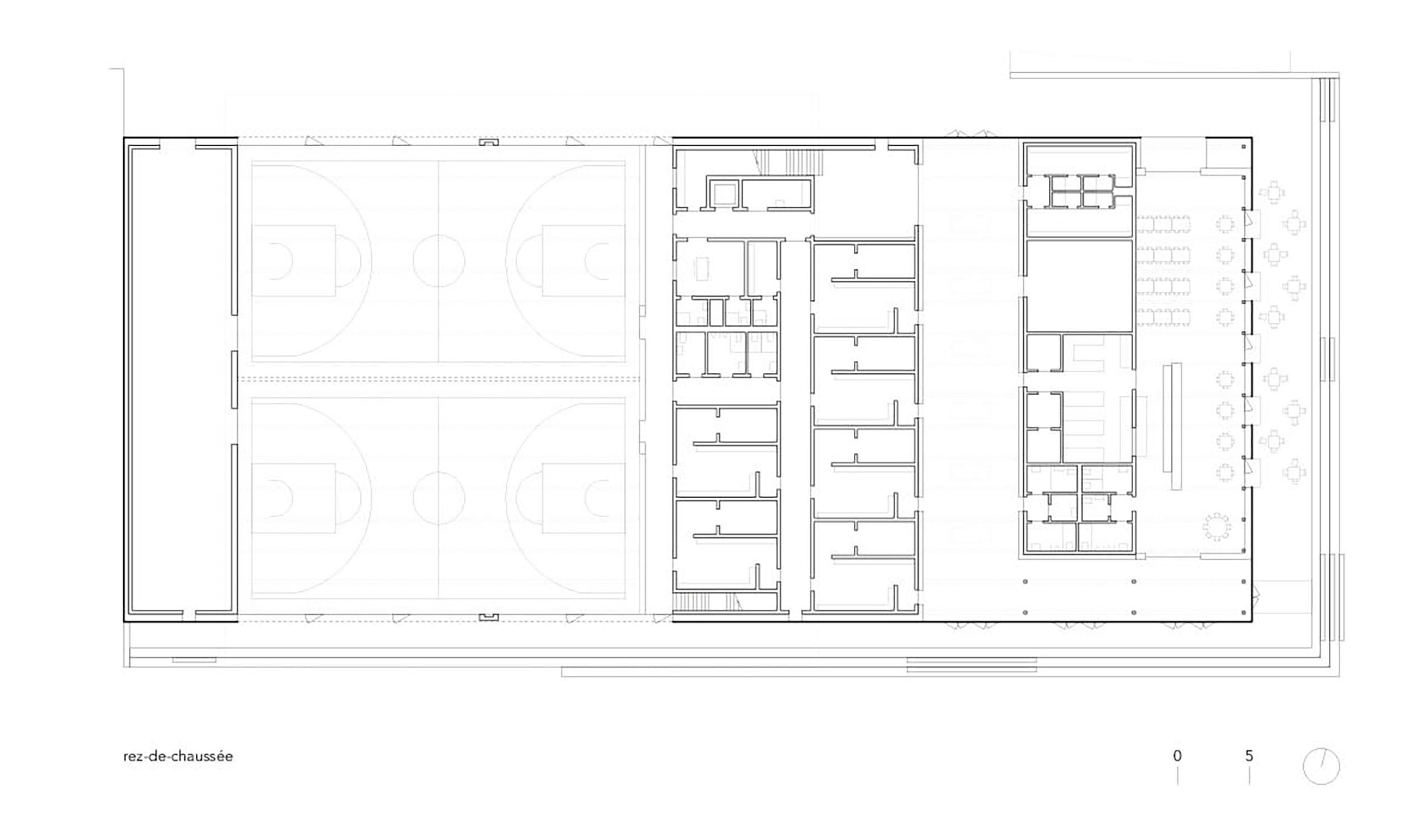
La plaine des Marches bordant la rivière fribourgeoise était autrefois un marais dont le sol était formé d’alluvions déposées par la Trême et la Sarine. Située à Broc, au pied du château de Gruyères, cette plaine devenue fertile est aujourd’hui traversée par une allée de tilleuls qui mène à une vénérable chapelle, haut lieu de pèlerinage dédié à la Vierge. Le village de Broc, qui s’était développé à l’arrivée de la chocolaterie Cailler (passant de 440 à 2150 habitants entre 1890 et 1920), a très tôt possédé une équipe de football locale. Celle-ci s’entraînait dès les années 1930 sur un terrain aménagé à la plaine des Marches. Au fil des ans, d’autres installations sportives s’y sont regroupées; la piscine extérieure, inaugurée en 1962, des terrains de tennis en 1978 et même un boulodrome. Pour rehausser son attractivité, la commune de Broc a décidé d’organiser en 2018 un concours ouvert afin de disposer d’un complexe sportif digne de ce nom. L’objectif était non seulement de construire un volume accueillant une halle de gymnastique double pour les écoliers et les sociétés locales, de proposer une buvette et divers vestiaires, mais également de réaménager les espaces extérieurs pour disposer au total de six pistes de pétanque, deux courts de tennis, deux terrains de football, une place multisport et une place de jeux, avec en plus, un parking de plus de 100 places.

Le concours ouvert distingue le projet Élytres

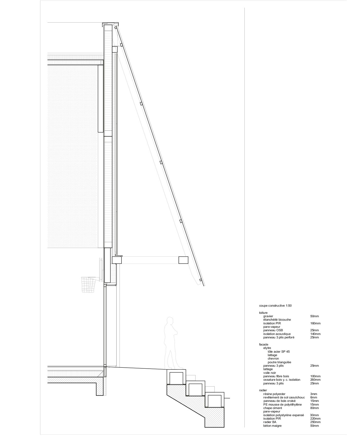
Sur les 82 projets reçus, huit propositions seront primées, dont Élytres, réalisé par deillon delley architectes, en collaboration avec MGI Ingénieurs et ASP landschaftarchitekten. Les élytres, ce sont les ailes opaques et dures des coléoptères qui recouvrent tels des étuis les délicates ailes inférieures. La devise du projet fait référence aux deux grandes faces déportées qui protègent du soleil les parois vitrées disposées de part et d’autre de la salle de gymnastique double. Celles-ci forment de grands avant-toits protecteurs sous lesquels se réfugient les spectateurs, élaborent une meilleure transition entre intérieur et extérieur. Afin d’offrir l’image de pans de verre continus et sans poteaux en dessous de ces ailes, la poussée du vent exercée sur les faces inclinées est transmise à des poutres triangulées posées horizontalement. En sous-face du dispositif, la matière ligneuse apparaît, annonçant l’ambiance chaleureuse qui prévaut à l’intérieur de la salle de gymnastique.

Utiliser ses propres ressources

La commune de Broc, qui possède une large superficie recouverte de forêt (44%), souhaitait valoriser la matière première dont elle dispose. C’est ainsi que le projet utilise majoritairement le bois dans ses espaces représentatifs, la buvette, la salle de gym double, ainsi que dans le couvert lumineux servant d’entrée au complexe. L’ambiance chaleureuse crée un fort contraste avec la minéralité du béton apparent, par ailleurs de très belle facture, présent dans les espaces secondaires, vestiaires, tribunes, distributions intérieures et cuisines. En façade, une pellicule métallique protège le bois des aléas climatiques et adopte une teinte sombre, en lien avec les ardoises et les ferblanteries visibles sur quelques toitures voisines, dont celle du Prieuré. Comme la zone constructible était inondable, le radier est hissé sur un remblai stabilisé à plus d’un mètre au-dessus du terrain naturel. Au nord cependant, la déclivité artificielle reste à peine perceptible, tandis qu’à l’est, le rehaussement dessine une terrasse à ciel ouvert accessible pour la buvette, marquant le territoire par une délimitation franche faite de gradins et de marches. Pour insérer le volume dans le paysage de la plaine, les architectes ont recherché une échelle adaptée, l’adossant aux arbres qui bordent la Sarine, à deux pas de la passerelle qui enjambe le cours d’eau. Des bosquets légers, ainsi que différentes essences d’arbres présentes sur la rive colonisent désormais la plaine, son parking et les alentours du complexe.

Des poutres en bois lamellé-collé de 40 m

Les grumes prélevées dans la forêt de Broc ont été livrées à la scierie Despond à Bulle. Cependant, pour faciliter les flux de sciage et ne pas entraver la production industrielle, le bois fourni au charpentier ne pouvait être garanti quant à sa provenance. Mais la matière locale a servi à fabriquer l’ensemble des poutres principales en lamellé-collé.

Espacées de 2,16 m, celles-ci portent longitudinalement les diverses hauteurs de toitures. Grâce à un entraxe réduit, aucune structure secondaire n’était nécessaire, la stabilité étant assurée par des caissons servant également de contreventement. Ces mêmes éléments structurels composés de panneaux trois plis sur une face, et de panneaux OSB sur l’autre, forment également le revêtement acoustique. Les diaphragmes utilisés à l’horizontale et à la verticale reprennent les poussées du vent et les efforts sismiques. Dans la salle de gymnastique double, la travée de 32 m est franchie par 16 poutres élancées, de 160 × 16 cm (200 cm en leur centre). Ces poutres se prolongent en porte-à-faux pour couvrir d’un seul geste les tribunes situées à l’étage, et jusqu’aux locaux techniques d’où est pulsé l’air mécaniquement. Atteignant une longueur inhabituelle de 40 m, les poutres reçoivent en fabrication une contreflèche de 8 cm qui minimise l’effet de la déformation due au poids propre de la toiture. Le charpentier opte pour des éléments d’un seul tenant, afin de limiter les heures sur le chantier et optimiser la durée du travail.

Transport avec remorque auto-suiveur

Cependant, déplacer des éléments aussi encombrants ne constituait pas une mince affaire. Le transport s’est déroulé de nuit par la route. Le convoi exceptionnel a utilisé une remorque auto-­suiveur pour passer en douceur les points délicats du parcours. Il a donc fallu étudier à l’avance un trajet de 90 km, entre Orges (où se situent les ateliers de collage des poutres) et le site, afin d’identifier les obstacles se présentant sur la route: ponts, routes étroites ou contours resserrés. Inauguré en octobre 2021, le complexe sportif de Broc réjouit les utilisateurs comme le maître d’ouvrage. La bonne entente qui semble avoir régné entre les acteurs du projet, Commune, mandataires et entreprises adjudicataires, est un indicateur fiable qui parle en faveur de la qualité finale. D’ailleurs, tous les points forts relevés au niveau du concours ont pu être maintenus en phase d’exécution: rigueur du plan, flexibilité d’usage et belle ambiance sportive et collective.

Complexe sportif à la plaine des Marches, Broc (FR)

 

Maître d’ouvrage: Commune de Broc

 

Architecture: deillon delley architectes

 

Ingénieur civil: MGI ingénieurs

 

Ingénieur CVS: energil

 

Ingénieur électricité: open-ing

 

Paysagiste: ASP Landschaftsarchitekten

 

Physique et acoustique du bâtiment: Gartenmann Engineering

 

Construction bois: JPF-Ducret

 

Menuiserie: G. Risse

 

Concours: 2018 (voir le résultat du concours)

 

Réalisation: 2020-2021

 

Surface de plancher SIA 416: 3290 m2

 

Coût HT CFC 2: 11,5 millions CHF

Verwandte Beiträge