Salle Per­ri­er et bu­reaux

Projet distingué

Publikationsdatum
21-03-2018
Revision
22-03-2018
Cedric van der Poel
Codirecteur d'espazium.ch, espace numérique des éditions pour la culture du bâti

PROJET

Transformation et réanimation d’une halle de stockage, ancienne fabrique de chocolat Perrier 

CE QU'EN PENSE LE JURY

Ce projet proposé par le bureau d’architecture Pont12 aborde une problématique récurrente posée par la désindustrialisation des villes et les exigences actuelles de densi cation: celle de la réanimation d’un patrimoine architectural et historique.

Au sud de la gare de Renens, sur la commune de Chavannes-près- Renens, l’usine Perrier est l’un des rares témoins du passé industriel de l’Ouest lausannois. Destinée à la confection de chocolat, l’usine s’est développée jusqu’à son rachat et sa délocalisation par un grand groupe industriel à la n de la Seconde Guerre mondiale. Les bâtiments de l’îlot ont progressivement accueilli différents types d’activités secondaires et tertiaires. Ni chauffées, ni éclairées, les deux halles de stockage de fèves de cacao peinaient à trouver une affectation pérenne. Trop à l’étroit dans leur locaux lausannois, les architectes de Pont12 ont décidé de les inves- tir par une transformation douce et écologique et de les ouvrir à la cité.

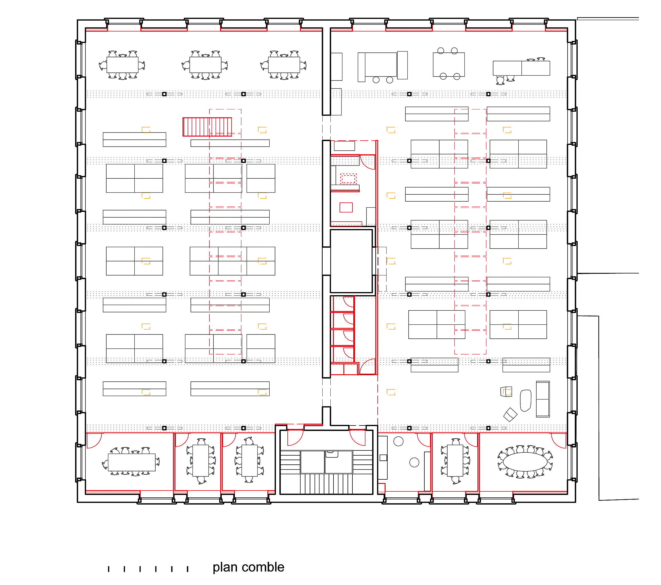
Le premier étage est dédié aux bureaux où les employés se répar- tissent dans deux grands espaces ouverts dont les nuisances originelles ont été atténuées par un profond travail acoustique et de puri cation de l’air.

Suivant leur désir d’ancrer leur projet dans l’environnement dyna- mique de l’îlot et de Chavannes, les architectes ont décidé de n’attribuer aucune affectation exclusive au rez-de-chaussée. Une cuisine commune perchée sur une mezzanine surplombe un espace vide polyvalent collec- tif et public. Pourvu d’équipements son, lumière et projection de base, il a accueilli depuis son ouverture en 2015 un programme culturel varié, faisant ainsi découvrir au public un pan d’histoire de l’Ouest lausannois.

Le jury a été particulièrement enthousiasmé par la démarche présentée par Pont12. Bien plus qu’une réhabilitation, ce projet de réanimation patrimoniale, cet urbanisme social montre que des bâtiments industriels sans grande qualité architecturale peuvent avoir leur rôle à jouer dans l’identité et la mémoire collective d’une région.

Lieu: Chavannes-près-Renens
Maître d’ouvrage: Pont12 Architectes, Chavannes-près-Renens
Maître d’œuvre: Pont12 Architectes, Chavannes-près- Renens
Mise en service: 2015

Pour découvrir l'ensemble des projets récompensés, cliquez ici

Verwandte Beiträge