Nais­sance d’une bi­blio­t­hè­que

Propos recueillis par Marc Frochaux et Stéphanie Sonnette

Noëlla du Plessis, ancienne directrice de la bibliothèque Alexis de Tocqueville, et Clément Blanchet, architecte avec l’OMA du nouveau bâtiment situé sur la presqu’île de Caen, dévoilent le processus de création de cet équipement public, du projet scientifique et culturel au programme et à la traduction de cette vision dans l’espace.

Publikationsdatum
03-05-2017
Revision
09-05-2017

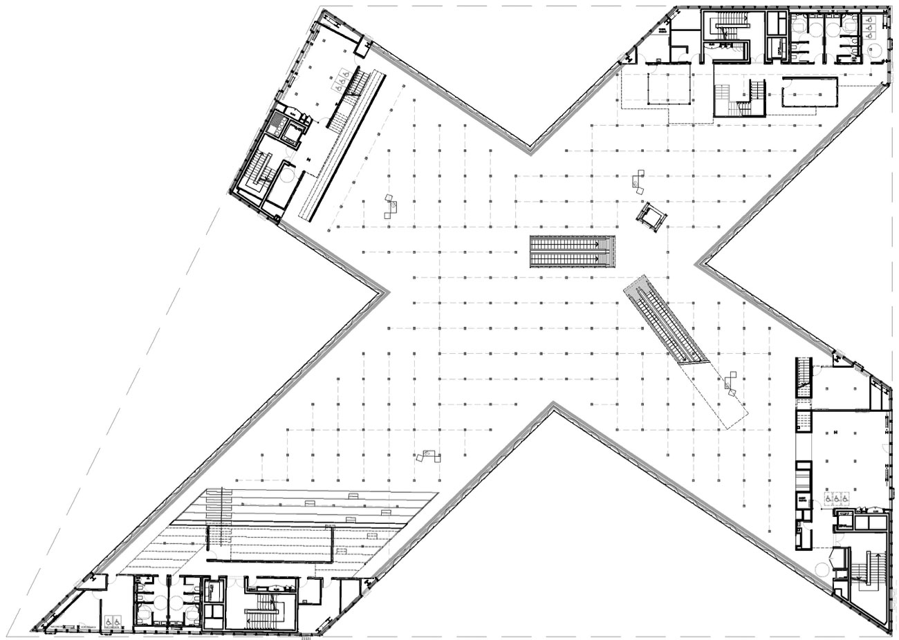
En visite sur la presqu’île de Caen par un de ces dimanches après-midi pluvieux dont la Normandie a le secret, nous trouvons refuge dans la bibliothèque Alexis de Tocqueville conçue par l’Office for Metropolitan Architects (OMA) et récemment achevée. Dans une ville pratiquement déserte, le grand plateau lumineux accueille une foule de lecteurs, familles, retraités et étudiants qui butinent autour des collections en libre accès. Le grand volume en X, surprenant de l’extérieur, prend tout son sens quand on se promène entre ses quatre pôles thématiques.
Nous avons rencontré tour à tour l’un des concepteurs, dans son agence à Paris, puis l’ancienne directrice de l’établissement. Avec l’architecte et la bibliothécaire, nous avons échangé sur quatre thèmes, afin de déterminer comment s’est opérée la traduction architecturale de ce projet culturel, du concept à l’espace: la place des bibliothèques dans l’espace public, la gestion des différents supports, la répartition des domaines de classification dans l’espace et, enfin, la clarification entre l’infrastructure et la scénographie.


 

Présence des livres dans la ville


Noëlla du Plessis: A quoi sert une bibliothèque? C’est la première question que nous nous sommes posée quand nous avons commencé à définir notre projet scientifique et culturel. A l’époque, il semblait que le livre numérique occuperait plus de place qu’il n’en a en réalité dix ans après. Les prêts étaient en baisse et il était légitime de se demander s’il fallait encore construire des bibliothèques, à l’heure où les gens allaient chercher l’information sur internet.
Une bibliothèque, c’est d’abord un lieu de vie et de rencontre, autour du savoir et de la culture. Ce principe semble évident aujourd’hui, mais il faut imaginer qu’en 2007, quand nous avons lancé ce projet, la notion de bibliothèque «troisième lieu» n’existait pas encore (lire l'éditorial Bibliothèques #1: des livres et des villes).
Si, pour certains, internet devait être l’unique porte d’entrée du savoir, nous avons considéré que la bibliothèque restait le seul service public qui propose à tous une offre documentaire variée, matérielle ou virtuelle, et validée par les bibliothécaires, ce qui constitue sa valeur ajoutée. Nous proposons également cette offre à distance, car nous avons conçu en même temps la bibliothèque en ligne, qui donne accès au catalogue mais aussi à des contenus et des services, et la bibliothèque en dur.
Si les publics viennent dans les bibliothèques pour différentes raisons (services, action culturelle, espaces de pause), en dehors de la consultation des documents, les collections gardent cependant leur importance. Feuilleter les documents, découvrir ce qu’on cherchait en butinant dans les rayonnages constitue toujours un attrait de la bibliothèque physique. Nous avons donc mis l’accent, dans notre demande à l’architecte, sur la présentation des collections dans l’espace public, cette présentation même étant porteuse de sens.

Clément Blanchet: Le bâtiment se situe sur la presqu’île de Caen, au bord d’un bassin portuaire, dans un quartier industriel en mutation qui fait l’objet d’un important projet d’aménagement urbain. Nous l’avons conçu comme un filtre : le rez-de-chaussée se veut totalement ouvert et presque indépendant de la bibliothèque, en contact avec la ville, à l’image d’un espace neutre de gare, très fluide. On y trouve un café-restaurant qui s’ouvre sur la terrasse sud-ouest du bassin, un espace d’exposition, un kiosque avec des périodiques, un auditorium de 150 places…
La bibliothèque est traversante, spatialement, mais aussi visuellement : les verres, dont la géométrie reprend les efforts horizontaux, n’ont pas de cadres. La nuit, la grande salle reste éclairée par une lumière ambiante permanente, comme une luciole. En dehors des heures d’ouverture, il est toujours possible de rendre ses livres depuis l’extérieur grâce à une borne de retour automatique. Ainsi, la bibliothèque marque sa présence dans la ville et son fonctionnement est totalement transparent : dans le socle, une double hauteur permet de voir les magasins de traitement et de restauration des livres avant qu’ils ne retournent dans les bacs.

 

Le savoir polarisé


NdP: Nous avons choisi d’organiser les ouvrages dans l’espace, non pas à partir des collections, mais de la perception que les gens ont du savoir. Nous construisons nos collections autour du public, et non l’inverse.
Traditionnellement, les bibliothécaires utilisent la cote décimale élaborée par Dewey1, de 0 (généralités) à 9 (histoire et géographie), mais cette classification, qui aboutit à une présentation linéaire des collections, n’a de sens que pour les bibliothécaires. Nous avons donc souhaité présenter nos collections en quatre pôles thématiques facilement identifiables: art, littérature, sciences et techniques, et enfin les sciences humaines, c’est-à-dire, pour simplifier, tout ce qui n’appartient pas aux autres pôles. Le but était de rendre l’accès aux collections aussi lisible que possible.
Ensuite, nous avons réfléchi avec un programmiste à l’articulation des collections entre ces pôles, aux cheminements qui mènent de l’un à l’autre. La bibliothèque est d’abord un lieu de découverte, les quatre zones ne doivent donc pas être isolées les unes des autres. Par définition, les pôles se complètent. Ce qui nous importait, c’était les propositions temporaires que nous pourrions faire sur ces cheminements : de l’action culturelle, des collections thématiques transversales... Nous avions imaginé des « portes » et des « passerelles » entre les pôles, des espaces pour créer des sollicitations, valoriser et faire vivre les collections par attraction réciproque des pôles. Tout pouvait être éphémère, modulable, à l’exception des pôles, qui permettent de se situer dans cette topographie abstraite des connaissances.
Les concepts que nous avons définis ont dû être confrontés à la mise en espace. Nous avons donné carte blanche aux architectes, dont nous avons suivi les propositions : un véritable plan d’urbanisme avec des rues, des placettes, des chemins de traverse. Cet aménagement «urbain» de la bibliothèque a été au service de la présentation des collections.

CB: Le programme du concours prévoyait quatre pôles et des passerelles, un peu comme dans la fameuse gravure de Piranèse. Ces passerelles sont une métaphore courante de l’échange d’idées. Comment traduire architecturalement ces intentions? Nous avons fait énormément d’hypothèses à partir du schéma fonctionnel proposé par les bibliothécaires avant de proposer de le synthétiser dans une figure en croix. Plutôt que de concevoir des pôles isolés, nous voulions aborder prioritairement la liaison entre ceux-ci. Le croisement de deux lignes est un acte très primitif, qui génère forcément un lieu chargé de signification. Au centre de cette croix, la zone de confluence a la capacité de créer des frictions entre les extrémités.
Ce n’est qu’une fois le concours remporté que nous avons rencontré les bibliothécaires et commencé à développer avec eux l’aménagement de ce plateau de 2500 m2 dans une grammaire urbaine, où l’on trouve des cheminements, des places, des accroches, et même, à l’origine, de petites tours. Le mobilier est lui aussi un dispositif urbain, un élément typologique qui peut être orienté, adapté, aggloméré.
Il y a également des intentions que l’on peut qualifier de paysagères : les étagères sont maintenues à une hauteur maximale de 1,60 m, afin de laisser le regard filer à l’horizon, tandis que certains éléments, plus élevés, permettent de se repérer. Enfin, l’extrémité de chaque pôle est marquée par une intervention qui lui est propre : un grand escalier, des cabanes suspendues, une paroi courbe et un mur percé comme un cabinet de curiosités.

 

Promenade dans l’hyperespace du savoir


NdP: Comment faciliter l’accès aux collections – celles qu’on voit et celles qui sont stockées en magasin, qu’on ne voit pas ? Nous avions imaginé une réponse, qui n’a pas été réellement proposée : des feuilletoires numériques. Ces tablettes disposées dans les rayons, à côté des documents en libre accès, auraient permis d’accéder à tout ce qu’il y a dans la bibliothèque sur le sujet cherché : les livres rangés en magasin, les livres numériques, des bases de données… Cet outil, extension virtuelle du rayonnage, permettait également à l’usager une recherche intuitive, là où il se trouvait, sans avoir à se déplacer vers un catalogue.
Autre idée d’extension de notre offre, les bornes multimédias « normandes ». La bibliothèque dispose d’un fonds normand de grande qualité que nous avons mis en valeur à travers ces bornes prévues dans des rayonnages spécifiques, bien identifiables par leur couleur sombre. On devrait y accéder à la création locale par des extraits de textes lus, de films, de musique, sans que la bibliothèque possède forcément les collections.

CB: Dans le programme initial, le livre physique l’emportait sur le livre numérique. Le projet spatial propose désormais un équilibre entre les deux. Nous nous sommes posé la question de la pérennité des supports à travers le temps et nous voulions établir un parallèle entre la tablette en pierre, qui résiste au temps, le rouleau, le livre, et, aujourd’hui, la tablette numérique, dont l’obsolescence sera certainement plus rapide. Dans la bibliothèque, nous avons proposé d’utiliser les tablettes pour mettre en avant les livres. Elles offrent une sélection de quelques livres suggérés par les bibliothécaires sur un thème donné. C’est un système simple, qui sert à transmettre l’information, lire une préface, cliquer sur le livre, l’enregistrer, le réserver. Ainsi, les livres qui sont absents des rayonnages ont une présence tangible. C’est également un avantage sur le plan de l’économie de l’espace, car le système permet de réduire le nombre de livres au linéaire sur le plateau général de la bibliothèque, tout en gardant le libre accès aux collections.

 

L’infrastructure de l’échange


NdP: Nous voulions un open space, un plateau unique. La réponse architecturale de l’OMA et Clément Blanchet a traduit précisément notre demande. Ils ont organisé les pôles en croix, de manière très rationnelle, avec une place au centre, lieu de confluence, de convergence, occupé par du mobilier modulable. Dans cette place, expositions, rencontres d’auteurs, présentations temporaires de collections devaient permettre le croisement des publics mais aussi des savoirs. Pour l’instant, elle ne semble pas accueillir ces fonctions, la place elle-même est peu lisible, mais l’espace est là. Nous avions souhaité une bibliothèque évolutive, des espaces modulables, la proposition architecturale permet toute adaptation à d’autres usages.

CB: La bibliothèque de Caen est une infrastructure. Elle est conçue comme deux ponts qui se croisent. Cette géométrie se situe à la limite entre la scénographie et l’architecture, mais la scénographie a volontairement été dissociée de l’infrastructure primaire du bâtiment, afin d’en assurer la pérennité dans le temps. C’est rassurant de se dire que la scénographie pourra changer dans dix ou vingt ans.
Comme le plateau est assez contraint en termes de surface, et parce que nous voulions favoriser la flexibilité, nous avons intégré dans le plancher un maillage de boitiers tous les trois mètres puis conçu un mobilier sur roulettes, adaptable à différents types de configurations. Nous avons proposé un outil, un objet qui doit vivre, un squelette avec de nombreux dispositifs. Quand on voit aujourd’hui la manière dont les bibliothécaires trouvent des situations qu’ils ne pouvaient pas imaginer et le sens qu’ils donnent à l’organisation du mobilier, on comprend qu’ils se sont approprié l’espace.

 

Note

1 La classification décimale de Dewey (CDD) est un système visant à classer l’ensemble du fonds documentaire d’une bibliothèque, développé en 1876 par Melvil Dewey, un bibliographe américain.

Tags
Magazine

Verwandte Beiträge