Fee­ling «at home»

dueA architetti I Passera e Associati studio di ingegneria

The Caslano retirement home redefines care architecture, blending domestic scale with civic presence. Spatial continuity, flexible layouts, and visual connections to gardens create a home-like environment where autonomy, social interaction, and dignity coexist seamlessly.

Publikationsdatum
09-09-2025
Hind Al-Shoubaki
Architektin, Stadtplanerin und wissenschaftliche Mitarbeiterin an der Fachhochschule Nordwestschweiz
Stefano Zerbi
Architekt, Professor an der SUPSI und Redaktor bei espazium quaderni

Sentirsi «a casa», testo in italiano 

Casa anziani Malcantonese, Caslano TI

The Caslano Retirement Home reinterprets the typology of elderly care facilities by rooting itself firmly in its urban and territorial context. Inserted along the continuous fabric of the Malcantonese plain, the building stretches across the full length of its lot, an extrusion of the surrounding urban tissue that maintains memory of the territory while projecting a new civic presence. The architectural choice was guided by the intent to remain at a domestic scale, low in height, socially legible, and open to guarantee both the privacy of home and the public character of a neighbourhood landmark.

Central to the design is the search for domesticity within a complex programme that must accommodate diverse degrees of care and autonomy. The building unfolds as a sequence of spaces ranging from collective to private, from social halls to private living quarters. This gradation allows residents to modulate their presence and their relationships, moving fluidly between conviviality and retreat. Rather than reinforcing segregation, the architecture facilitates proximity, reciprocity, and recognition.

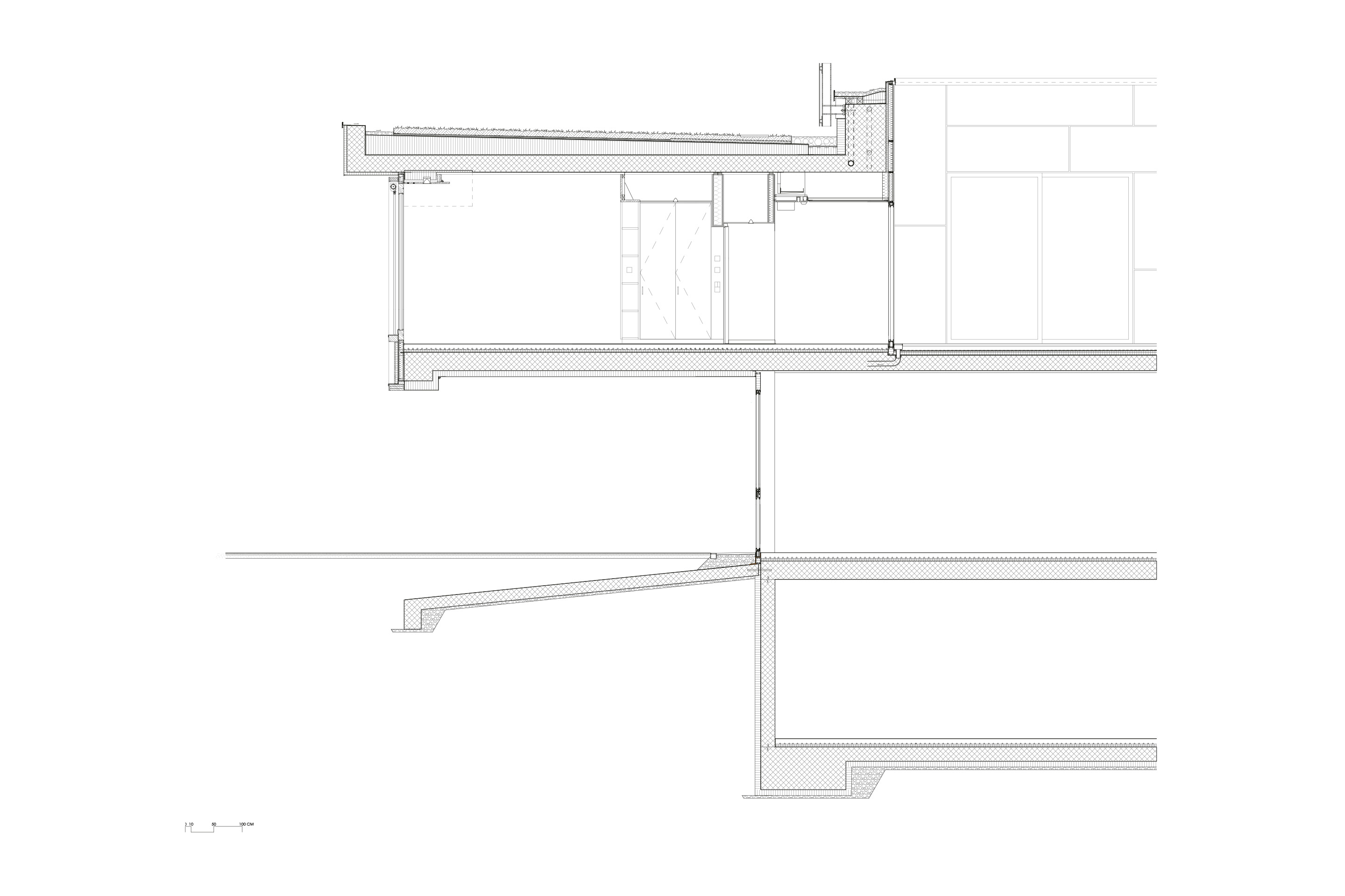
At ground level, three main functions coexist: a day-care centre, a protected living unit, and the social areas of the retirement home. These are directly linked to the exterior, ensuring ease of orientation and permeability to the broader community. Clear pathways guarantee privacy for each unit while maintaining openness to collective life. On the upper floor, circulation avoids the «corridor effect» common in medicalized institutions: instead, spaces are arranged around courts and convivial nodes, producing a dynamic and pleasant environment that supports social interaction.

The sense of «being at home» is cultivated through spatial continuity and secure, legible pathways. Residents can walk safely through a sequence of lounges, courtyards, and semi-public passages that transform everyday movement into an opportunity for encounter. These spaces become more than circulation; they are stages for aggregation, informal conversation, and the weaving of social bonds between residents, staff, and visitors. Domesticity here is not a decorative veneer but a structural principle: the building offers its inhabitants familiarity, recognition, and dignity.

Material choices reinforce this ethos. Warm finishes, timber façades with adjustable screens, and carefully framed views establish a tactile sense of belonging. Large glazed openings connect interiors to gardens and patios, ensuring visual and functional continuity with the outside world. This openness reduces the sense of enclosure and situates the retirement home as part of the wider town fabric rather than an isolated institution. Flexibility is embedded in the structural system, which allows modular use and reconfiguration over time. The ground floor is partially liberated to host pedestrian pathways and covered parking, enabling the building to adapt to evolving needs without compromising its central principle: to foster care through living.

The Caslano Retirement Home thus embodies a domestic dimension of care where fragility is not hidden but supported. By balancing privacy with collectivity, privacy with civic presence, it demonstrates how architecture can accompany aging with dignity, transforming a medicalised programme into a shared space of everyday life.

  • Place Caslano 
  •  Client Fondazione Giovanni e Giuseppina Rossi, Castelrotto 
  • Architecture dueA architetti sagl, Lugano 
  • team members F. Cammarata, F. Magni, F. Di Palma, D. Bosnjak 
  • Contractor Giovanni Quadri SA, Cadempino 
  • Construction management: Direzione Lavori SA, Lugano
  • Civil engineering Passera e Associati studio di ingegneria SA, Lugano 
  • HVAC and Electric system project Tecnoprogetti SA, Camorino 
  • Building physics and Acoustics IFEC ingegneria SA, Rivera 
  • Lighting design Modaluce SA, Bellinzona 
  • Windows design Veragouth SA, Bedano; Maturi Sampietro SA, Mezzovico-Vira 
  • Photography Simone Mengani, Mendrisio; Andrea Pavan, Maturi Sampietro SA, Mezzovico-Vira 
  • Timeline competition 2014-2015; project 2017-2019; r realisation 2020-2023 
  • Energy planning IFEC ingegneria SA, Rivera 
  • Certification or Energy standard Ruen, 2008 
  • Intervention and building type nuova costruzione | new construction 
  • Building category (Ae) casa per anziani | retirement home 5124 m² 
  • Form factor (Ath/Ae) 1.49 
  • Heating 100% district heating system 
  • Hot water 100% pompa di calore aria-acqua | 100% air-water heat pump 
  • Electricity  Photovoltaic system: 405 m², 86 kWp, 76’000 kWh/anno 
  • Primary building envelope requirement 81 MJ/m²a (limit: 108 MJ/m2a) 
  • Special features wood-fired district heating, ventilation system with heat recovery, cooling with 189 kW system, EER = 4.6

Verwandte Beiträge