Wohn­bau­ten in Tu­rin: Ja­ret­ti & Lu­zi

Eine eigenständige, heitere Formensprache in Italiens Nachkriegsmoderne: Eine neue Monografie zeigt die Wohnbauten von Sergio Jaretti und Elio Luzi in Turin (1954–1974).

Publikationsdatum
07-07-2025

In seinen einleitenden Sätzen zeichnet Adam Caruso ein dystopisches Bild der gegenwärtigen Situation in Bezug auf das Bauen in den Städten. Er lenkt den Blick darauf, wie die scharfe Unterbrechung der Baugeschichte durch die Zerstörungen der Weltkriege und die ideologische Steuerung des Wiederaufbaus in vielen europäischen Städten das architektonische Weiterdenken verhinderte.

Nicht so in Italien. Hier konnte sich eine eigene Moderne entfalten, die auf der bis in die Antike zurückreichenden Vergangenheit aufbaute. Eine bisher wenig beachtete Architektur, die sich abseits der grossen Strömungen etablierte, schuf das Duo Sergio Jaretti (1928-2017) und Elio Luzi (1927-2006), das zwischen 1954 und 1974 ausschliesslich in Turin und nur für einen einzigen Auftraggeber baute. 

Innerhalb dieses eng gesteckten Radius reagierten die beiden Architekten individuell auf die Umgebungen und die Bedürfnisse der Wohnungsmarktsegmente, die von ökonomischen Zwängen geprägt waren. Unscheinbaren Restgrundstücken verhalfen sie mit lustvoll gestalteten Wohnbauten, die mit ihrer Gestalt auf die gegebene Situation reagierten, zu neuer Präsenz. 

Gerade die Erdgeschossbereiche sind besonders plastisch gestaltet und verschaffen den Baukörpern eine visuelle Zugänglichkeit. Im Übergang von Handwerk zu Vorfabrikation folgt die Fassadengestaltung einem lockeren Rhythmus und sucht Kontakt zum umgebenden Strassenraum. 

Ornamental bearbeiteter Naturstein und Ziegel vermitteln die Haptik der Materialien, die mit Details aus Metall, Glas und farbigen Elementen auch im Innern eine Wertschätzung erfährt. Den Baukörpern entsprechend sind auch die Raumstaffelungen und internen Wege unkonventionell. Die in der Publikation abgebildeten Häuser verbindet eine Schwingung zwischen der heiteren Nonchalance eines Carlo Mollino und der Materialkenntnis eines Frank Lloyd Wright. 

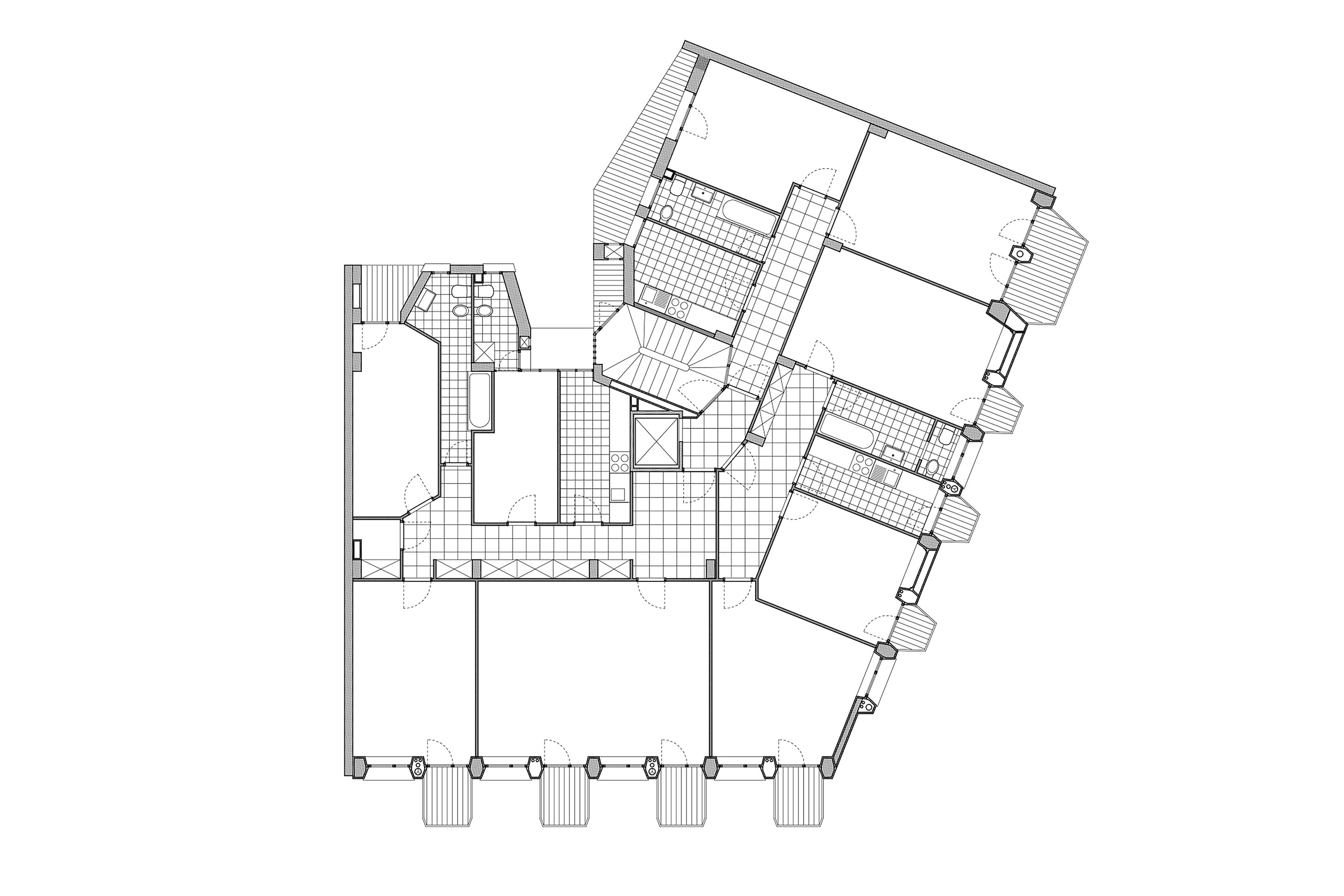
Die Grundrisse lassen sich in neu gezeichneten Plänen studieren. Im Vergleich zeugen zeitgenössische und neue Fotos von der Qualität der Farb- und Materialwahl, die bis heute Bestand hat. 

Bernd Schmutz, Dominik Fiederling (Hg.): Jaretti & Luzi. Wohnbauten in Turin 1954–1974. Park Books, Zürich 2024. Gebunden, 306 Seiten, 126 farbige und 215 s/w-Abbildungen, 19 x 29.5 cm, ISBN 978-3-03860-159-3, Fr. 59.–

Bücher bestellen unter order [at] staempfli.com (order[at]staempfli[dot]com). Für Porto und Verpackung werden Fr. 9.60 in Rechnung gestellt.

Verwandte Beiträge