Stu­di­en­auf­trag «Un­te­re Farb» in Us­ter ent­schie­den

Horisberger wagen architekten und stehrenberger architektur gewinnen zusammen mit der Landschaftsarchitektin Sabine Kaufmann den Studienauftrag für das Stadtarchiv «Untere Farb» in Uster.

Publikationsdatum
02-04-2015
Revision
25-08-2015

Aus 31 Bewerbungen hat die Jury vier Teams aus Architekten und Landschaftsarchitekten ausgewählt. Diese haben Lösungsansätze erarbeitet, wie das Stadtarchiv in der Liegenschaft «Untere Farb» untergebracht werden kann.

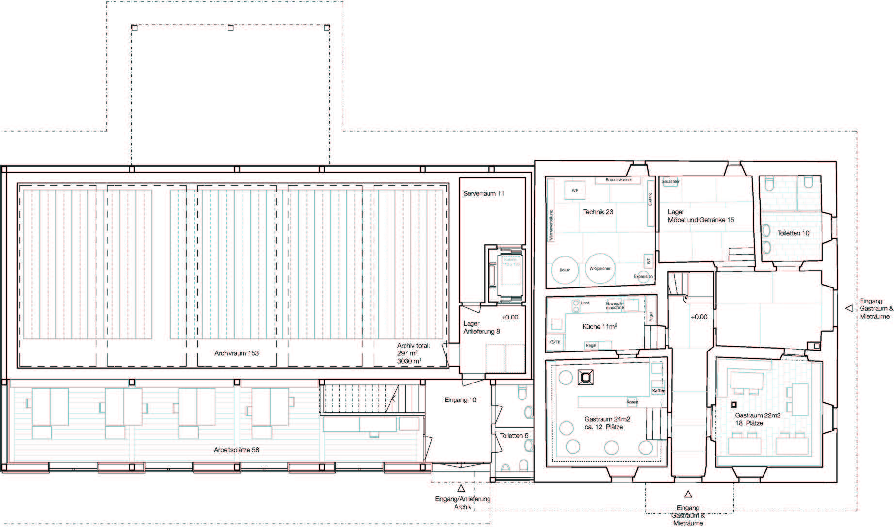
Das Siegerprojekt von horisberger wagen architekten, stehrenberger architektur und der Landschaftsarchitektin Sabine Kaufmann trennt Haupthaus und Scheune. Das Archiv mit den dazugehörenden Arbeits- und Nebenräumen wird im Scheunenteil untergebracht, wo auch unter dem Dach ein grosser Raum für verschiedene Anlässe zur Verfügung steht. Im Haupthaus schlagen die Projektverfasser vermiet- und bewirtbare Räume für kleinere Anlässe vor.

Basierend auf einer sorgfältigen Analyse der bestehenden Tragstruktur wird der Dachstuhls mit wenigen Eingriffen so angepasst, dass nach dem Haus-im-Haus-Prinzip ein massiver Baukörper mit den Archivräumen zwischen den Stützen eingeschoben werden kann.

Das Siegerprojekt besticht laut Jurybericht durch den geschickten Umgang mit der geschützten Bausubstanz und durch den architektonischen Ausdruck, der die Archivnutzung nach aussen trägt. In Bezug auf die Organisation des Stadtarchivs weise es noch Mängel auf, die aber nach der Meinung des Beurteilungsgremiums behoben werden können. Der Entwurf erhalte den visuellen Bezug zum Stadtpark, schaffe jedoch eigenständige, nutzungsgerechte Flächen, heisst es weiter.

Tags

Verwandte Beiträge