Schu­he als Kul­tur­gut

Mit dem Mut, den Raum zum Hauptdarsteller zu erklären, gelingt den Architekten von Lotto Studio, Berlin/Mailand, ein elegantes Schuhgeschäft in Mailand.

Publikationsdatum
20-08-2024
Hella Schindel
Innenarchitektin und Fachjournalistin, Korrespondentin Architektur/Innenarchitektur

Sicher läuft der Verkauf auch bei diesem Schuhgeschäft inzwischen hauptsächlich online. Die Neueröffnung eines Flagshipstores in Mailands «Goldenem Dreieck» mag also zunächst verwundern, hat aber durchaus ein Ziel: Seine Gestaltung erzählt eine ganze Geschichte rund um den Schuh als Ausdruck von Materialkenntnis, Handwerkskunst und lokaler Verwurzelung. 

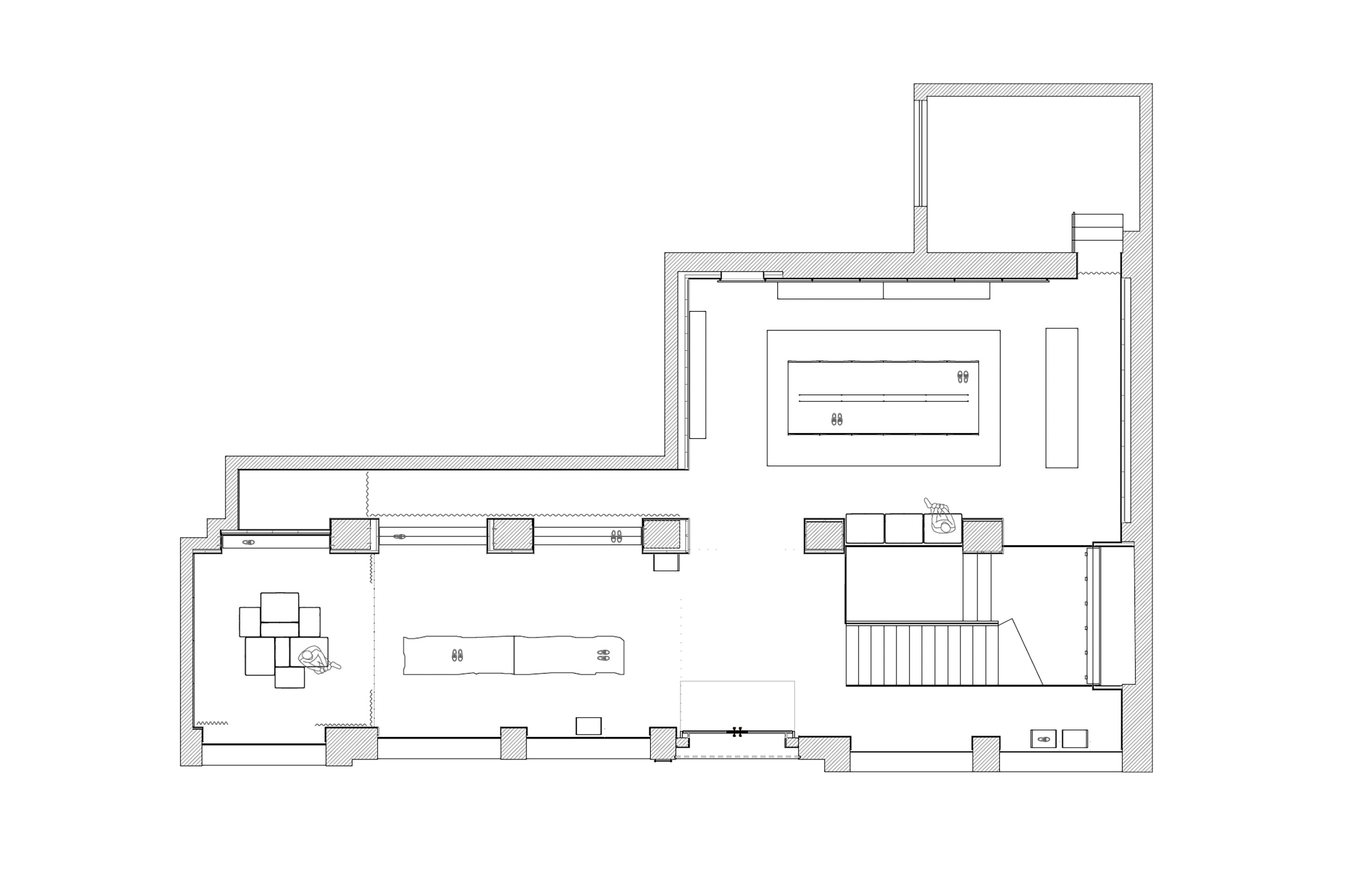
Dafür haben die Architekten von Lotto Studio mit Sitz in Mailand und Berlin mit dem Geschäftsführer und Designer Marco Cima einen Kosmos entwickelt, der sich auf zwei Ebenen über 400 m2 ausdehnt. Mit einer subtil interpretierten Fortführung der Architektursprache des Geschäftshauses ins Innere ergibt sich ein schlüssiges Ganzes, das im Untergeschoss mit einem Surplus aufwartet.

Dabei ist das Haus für norditalienische Verhältnisse nicht weiter auffällig – ebendas ist die Qualität, auf die die Architekten setzen: Massive Risalite aus dunklem Naturstein teilen die Eingangsfassade in fünf Felder, die raumhoch verglast sind. Innen markiert eine Reihe von Wandscheiben eine zur Fassade parallele Achse im hinteren Bereich. Helles Licht, das eher an eine Galerie als an ein Geschäft denken lässt, erfüllt den hohen Raum. So ist der Laden im Vorübergehen bis in die Tiefe zu erfassen. 

Dessen Leere ist als Statement gegenüber dem umgebenden Produktüberfluss zu verstehen und nach einer ersten Irritation ungeheuer wohltuend. Der Innenraum ist spürbar von «materia prima», also puren, unbehandelten Materialien geprägt. Dabei liegt der Fokus auf Körpern, die hier frei wie Skulpturen aus Holz und Stein im Raum stehen. Dank ihres modularen Aufbaus können sie den Platz wechseln oder umgebaut werden. 

Leichte Elemente wie Glas und Stoff verbinden sich mit dem Gussboden und der Decke zu einer zurückgenommenen Raumhülle. Die Wände sind mit einem Verputz versehen, der Flusskiesel aus der Brenta einschliesst und dadurch ein eigenes Volumen gewinnt. Die Ausführung lag bei einem einzelnen Handwerker, dessen Arbeitsweise das homogene Erscheinungsbild des Verputzes zu verdanken ist. Dies, ebenso wie der in den Granit gemeisselte Schriftzug über der Eingangstür, sind Verbeugungen vor Carlo Scarpa, dessen Wurzeln ebenso wie jene des Designers in Venezien liegen. 

Als Träger für die Damenschuhe dient ein freistehendes Objekt aus Travertin-Tafeln. Der Trick funktioniert: Genau wie über die honiggelbe und löchrige Oberfläche möchte man die Hände auch über die Lederschuhe darauf streichen lassen, die als Kostbarkeiten darauf präsentiert sind. 

Den Bereich der Herrenschuhe kennzeichnen Setzungen aus ebenso haptischem, aber dunklerem Material. Als zentrales Display dient ein niedriger Körper aus Nussholz, der über dem Boden zu schweben scheint. 

Stoffsegel, die sich je nach Bedarf versetzen lassen, gliedern einzelne Bereiche, so dass sich die visuellen Eindrücke nie überlagern. Einen Überblick über die Taschen und Schuh-Modelle, um die es ja immerhin geht, findet sich im rückwärtigen Bereich auf wandmontierten Edelstahl-Relings. 

Passgenau und massgefertigt

Prominent führt dagegen eine raumgreifende Treppe ins Untergeschoss, die gleich hinter der Glasfassade sitzt. Die Brüstung aus Rauchglas konnte von den Vormietern übernommen werden und fügt sich harmonisch in den Materialkanon. Vom Zwischenpodest bis zur Decke der Eingangsebene streckt sich ein Regal aus dem bekannten Nussholz. Offene Fächer dienen als beleuchtete Ausstellungsfläche für die Schuhe, geschlossene als weiterer Stauraum. Die Passgenauigkeit und feine Detaillierung betonen die respektvolle Haltung gegenüber anderen handwerklichen Bereichen und ihren Materialien. 

Im Untergeschoss eröffnet sich eine artifizielle Gegenwelt. Zwei weisse, sich gegenüberstehende Stufenelemente füllen den Raum aus. Sie können als Auditorium oder als Ausstellungsfläche verwendet werden. Im Moment dienen sie zur Präsentation einer futuristischen Schuhkollektion mit betonten Gummisohlen. Die umgebenden Wandflächen sind verspiegelt und potenzieren das Szenario zu einem Vexierbild.

Mit Referenzen an Kenner der atmosphärischen Gestaltung wie Carlo Scarpa oder Marcel Breuers Idee des modularen flexiblen Einrichtens, mit der Förderung regionalen Handwerks, mit der Wertschätzung von natürlichen Materialien und des Bestands schaffen die Planenden einen kultivierten Ort. 

Man ist geneigt, den Hut vor soviel Klasse zu ziehen und vergisst, dass das auch in geschäftlicher Hinsicht ein kluger Schachzug ist. Luxuriöse Kleidungsstücke, zumal neu produzierte, gelten unter einigen, die es sich leisten können, leicht als politisch inkorrekt. Eingebunden in eine Geschichte der Wertschätzung vermittelt hier ein Kauf das Gefühl, eine gute Sache zu unterstützen. Storytelling als Geschäftsmodell – so kann es funktionieren. 

Tags

Verwandte Beiträge