Prä­zi­se Pre­zio­se

Zehntenscheune, Dietikon – einstufiger Wettbewerb mit Präqualifikation

Buol & Zünd gewinnen den Wettbewerb zur Sanierung der Zehntenscheune in Dietikon mit einer sorgfältig-pragmatischen Lösung. Ihr Entwurf respektiert den Bestand und integriert die neue Nutzung als Kulturlokal, ohne dass der Bau seinen Charakter verliert.

Publikationsdatum
03-05-2018
Revision
03-05-2018

Um die 400 Jahre alt ist die mächtige Zehntenscheune in Dietikon. Was die Stadt damit vorhat, geht aus dem Kul­turraumkonzept 2016 hervor: Das Denkmalschutzobjekt soll saniert werden und als multifunktionaler Ort für kulturelle Veranstaltungen dienen. Eine flexible Infrastruktur hat ein breites Spektrum von Nutzungen zuzulassen. Der aktuelle Wettbewerb zielte zudem darauf ab, den Gebäudecharakter zu bewahren und ein wirtschaftlich wie auch energetisch vertretbares Projekt zu erhalten. Ort und Programm liessen eigentlich ein kleines Spektrum von Lösungen erwarten. Doch die Jury sah sich mit teils recht unterschiedlichen Ansätzen konfrontiert und stellte fest, dass die Projektverfasser ihre Ellbogen gebraucht haben: Entstanden sind insgesamt acht bedenkenswerte Lösungen, die manchmal trotz oder gerade wegen des Verlusts von Originalsubstanz dem ­Wesen der Scheune als Bautyp und als künftig öffentliches Gebäude gerecht werden.

Seitlich erweitert

So sieht das drittrangierte Projekt «Charlotte» statt eines Untergeschosses einen Anbau im Garten vor: Unter einem grossen Dach, das wie selbstverständlich aus dem Hauptdach herauswächst, findet sich ein räumlich attraktives Gewebe von Innen- und Aussenräumen. Allerdings führt das überhohe Foyer als Reminiszenz an das einstige Tenn gemäss Jury zu Platz-, Erschliessungs- und Sichtproblemen. Der Anbau vermag offensichtlich nicht alle Platzbedürfnisse so abzudecken, dass neben dem Foyer ausreichend Platz für Kasse, Bar und Garderobe bleibt. Zwar liessen sich die Platzbedürfnisse der Bauherrschaft hinterfragen, doch bezweifelt die Jury, dass die anderen Mängel ohne Preisgabe der anerkannten Qualitäten zu beheben sind.

Aufgeräumt und eingesetzt

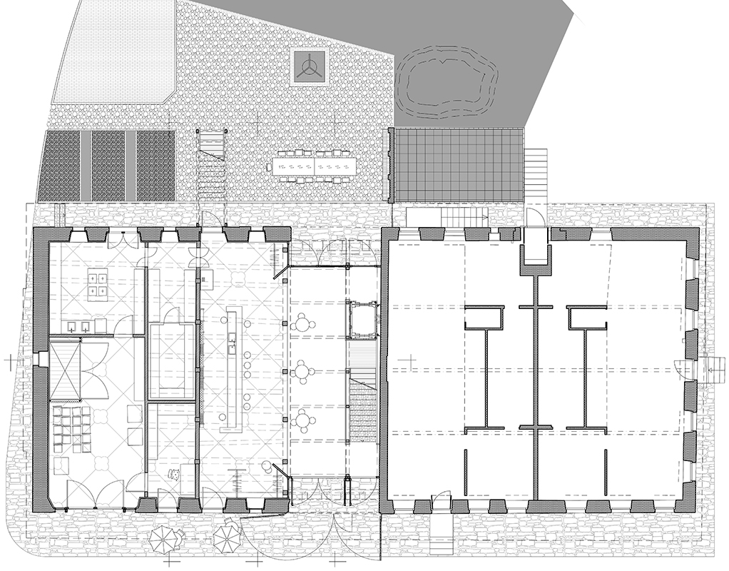
Das Projekt «eben_erdig» auf Rang  2 interpretiert das Betriebskonzept auf seine Weise. Statt den Veranstaltungsraum ins Obergeschoss zu legen, wird er – genau – ebenerdig angeordnet. Eine auf den ersten Blick überraschende Setzung, die einige Vorteile mit sich bringt: Als «Haus im Haus» kommt eine Holzbox in die leer geräumte Scheune zu stehen. Die Berührungspunkte zum denkmalgeschützten Bestand sind minimiert. Das Projekt bietet zwei unterschiedliche räumliche Zustände und damit zwei verschiede­ne Nutzungsszenarien: als Konzert­saal, ein akustisch konditio­nier­     ter, gut proportionierter, rund 5 m hoher Veranstaltungsraum mit einer Bühne, und als Agora, ein akus­tisch nicht oder nur wenig konditio­nierter Mehrzweckraum. Der Haupteingang liegt beim heutigen Ga­ragentor.

Den Vorzügen in Bezug auf Nutzung, Kosten und Nachhaltig­keit stehen auch Nachteile gegenüber. Die beengten Platzverhältnisse bei Eingang und Bar ohne ei­gentliches Foyer bilden einen empfindlichen Schwachpunkt bei der Nutzung als Konzertsaal. Und: Für dieses Konzept muss die Scheune leer geräumt werden; wertvolle histori­sche Bauteile wie die Bohlenwand, die Scheunendurchfahrt und auch der Scheunenboden gehen so verloren.

Überzeugendes Kronjuwel

Der Entwurf  «Kronjuwel» überzeugte die Jury durch die sorgfältige Lösung von Einzelaspekten, die den Blick fürs Ganze nicht aus den Augen verliert. Von der Fluchttreppe aus dem Saal abgesehen kommt das ­Projekt ohne Anbau aus, die freie Fläche hinter dem Haus wird als Festplatz mit Spielgeräten, Bauerngarten und Feuerstelle genutzt. Den zusätzlichen Raumbedarf deckt eine teilweise Unterkellerung. Das Tenn ist zwar nur noch eingeschossig, dient mit Treppe und Lift aber weiterhin der Erschliessung und fungiert im Ober- und Galerie­geschoss quasi als Schwellenraum. Mit einer neuen, bis unters Dach reichenden Wand wird es zur eigenständigen Raumschicht und ist gleichzeitig mit einer übergrossen, bogenförmigen Öffnung direkt mit dem Saal verbunden.

Das OG eignet sich mit seiner Vorzone für unterschiedliche Zwecke. Bei einem Grossanlass finden dort weitere Stuhlreihen Platz, während bei einem kleineren Anlass der Saal nicht überdimensioniert erscheint. Gleiches lässt sich auch von der Bühne sagen, die mit mobilen und fest eingebauten, aber schwenkbaren Elementen ihre Grösse den Bedürfnissen entsprechend verändern kann.

Die Unterkellerung für WC- und Technikräume schafft im EG einen grosszügigen Eingangsbereich. Mit der Bohlenwand erhalten Bar und Ticketverkauf einen attraktiven Rücken. Das Tenn bleibt zu fast zwei Dritteln der Breite frei. Die Abschlüsse zu den Torbögen sind nach innen versetzt. Damit werden die charakteristischen Öffnungen trotz Zwischenboden auf der ganzen Höhe bewahrt und sind auch vom Obergeschoss aus zu sehen. Auf der Nordseite wird das fehlende Tor nicht ersetzt, das historische Tor auf der Zugangsseite bleibt bestehen.

Auszeichnungen
 

1. Rang, 1. Preis: «Kronjuwel»
Buol & Zünd Architektur, Basel
 

2. Rang, 2. Preis: «eben_erdig»
Gasser, Derungs Innenarchitekturen, Zürich; Ferrari Gartmann, Chur; EK Energiekonzepte, Zürich
 

3. Rang, 3. Preis: «Charlotte»
ARGE Roider Giovanoli Architekten, Zürich; Sustainable System Solutions, Dübendorf; Christian Hermann Bau Energie Umwelttechnik, Andelfingen
 

4. Rang, 4. Preis: «Carlo»
Brassel Architekten, Zürich; Conzett Bronzini Partner, Chur; anex Ingenieure, Zürich
 

Fachjury
 

Elisabeth Boesch, Architektin, Zürich (Vorsitz);
Peter Baumgartner, Stadt­architekt Dietikon;
Jakob Steib, Architekt, Zürich;
Alois Diethelm, Architekt, Zürich (Ersatz)

Tags
Magazine

Verwandte Beiträge