Neu­be­wer­tung ei­ner Un­voll­ende­ten

Transformation Hotel Aarauerhof, Aarau

Justus Dahinden erstellte 1972 das Hotel Aarauerhof am Bahnhofplatz als Teil einer städtebaulichen Idee. Heute steht das Gebäude in einer stark veränderten Umgebung. Nun soll das Hotel von heute 70 auf 145 Zimmer erweitert werden. Duplex Architekten machen daraus einen selbstbewussten Solitärbau.

Publikationsdatum
18-02-2026
Gerold Kunz
Architekt, Fachsekretär der Stadtbildkommission Basel und Mitherausgeber der Zentralschweizer Architekturzeitschrift «Karton»

Aarau preist sich als Ort für Kulturinteressierte und Geniessende an. Die Stadt versteht sich als Teil einer naturnahen und kulturellen Tourismusregion, die Gäste aus dem In- und Ausland «durch Einzigartigkeit und Vielfältigkeit» begeistern will. Das Aargauer Kunsthaus mit seiner bedeutenden Sammlung zeitgenössischer Schweizer Kunst ist eines der Flaggschiffe im städtischen Angebot, wie auch die im ISOS als Ortsbild nationaler Bedeutung anerkannte Altstadt, die zwischen Gleistrassee und Aare abseits der geschäftigen Bahnhofstrasse liegt.

Von dieser positiven Stimmung ist auch das Programm für den Studienauftrag «Transformation Hotel Aarauerhof» getragen. Das 1972 erstellte Gebäude am Bahnhofplatz soll von heute 70 auf 145 Zimmer erweitert werden. Noch 2018 ging das Bieler Büro :mlzd siegreich aus einem Wettbewerb für einen Ersatzneubau hervor. Mit einem Besitzerwechsel hat zwischenzeitlich ein Umdenken stattgefunden: Das Gebäude bleibt erhalten und soll nach Plänen des Gewinnerteams um Duplex Architekten umgebaut und erweitert werden.

Gesamtüberbauung am Bahnhofplatz

Beim Aarauerhof handelt es sich um ein Werk des Architekten Justus Dahinden (1925–2020). Er plante das Hotel als Teil einer künftigen Gesamtüberbauung am Bahnhofplatz, als eine «neue städtebauliche Konzeption», getragen vom positiven Geist der späten 1960er-Jahre (Werk 11/1972). Der Bau bestimmt seine Umgebung: Er nimmt heute mit seiner Lage an der Bahnhofstrasse und der Gliederung des Bahnhofplatzes eine stadträumlich vermittelnde Rolle ein. Seine Gestaltung, geprägt von unterschiedlich hohen Kuben mit hellen, abgerundeten Gebäudeecken und dunklen Füllungen, weist Bezüge zum Metabolismus japanischer Prägung auf. 

Der Ursprungsbau reagierte mit der Staffelung der Volumina geschickt auf den damaligen Massstab der umgebenden Bauten, indem er sich auf Seite der Bahnhofstrasse viergeschossig und auf der Rückseite sechs- und siebengeschossig zeigte. Der dominante zentrale Erschliessungsturm überragte mit seinen neun Geschossen das Volumen deutlich und deutete schon damals ein mögliches Wachsen in die Höhe an, was nun Realität werden kann.

Das Kongresshotel war bei der Eröffnung im Erdgeschoss mit Restaurants und im 1. Obergeschoss mit Sälen ausgestattet. Die nach allen vier Seiten orientierten Zimmer befinden sich in den oberen Etagen. Zwei Flügel des windmühlenartigen Gebäudes wurden bereits in den 1990er-Jahren von anderen Architekten aufgestockt, mit der Folge, dass das Gebäude das prägende Wechselspiel der unterschiedlich hohen Trakte einbüsste und seinen Charakter als Solitär festigte.

Raumbetonende Deckenspiegel

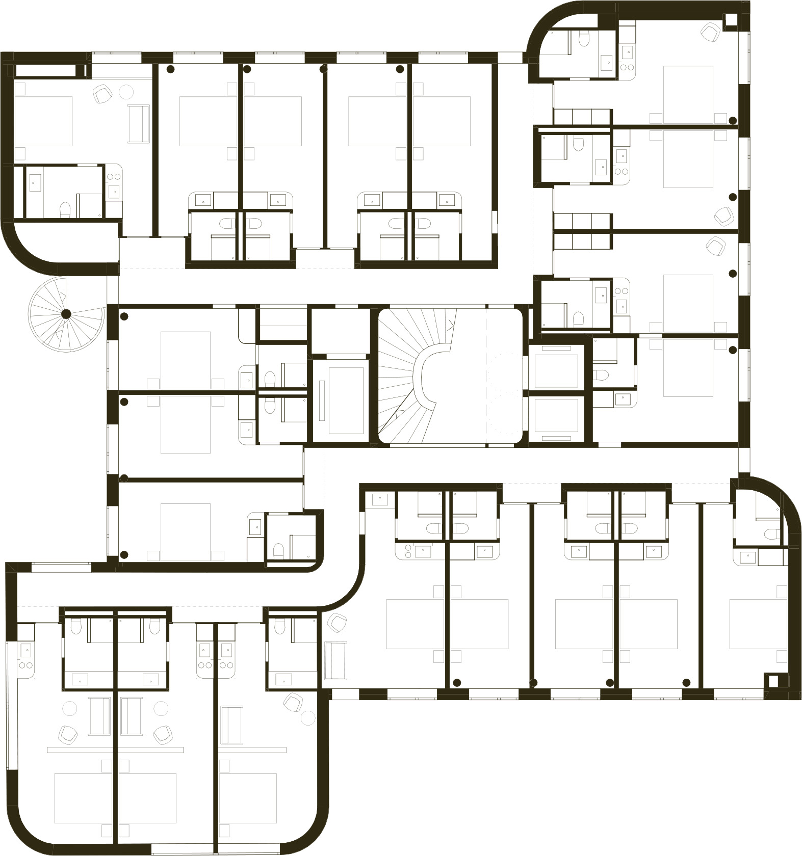
Der Entwurf von Duplex Architekten nimmt Dahindens Konzeption wieder auf. Die Zimmer erstrecken sich vom 1. bis ins 9. Obergeschoss. Die Grundrissorganisation wird in den neuen Geschossen übernommen. Die Decke über dem Erdgeschoss wird verstärkt, nicht nur um die zusätzliche Last der Aufstockung zu tragen, sondern auch um mit dem raumbildenden Deckenspiegel die niedrige Geschosshöhe zu überspielen.

Die Tragstruktur bleibt erhalten, während die bestehenden Fassaden auf allen Geschossen durch Holzfassadenelemente ersetzt werden. Die Aufstockung erfolgt mit vorfabrizierten Raumzellen in Holzbauweise. Die erforderliche Fluchttreppe wird an der Fassade keck zur Schau gestellt.

Den Schlussbericht und weitere Details finden Sie auf competitions.espazium.ch

Im Kern erstellt das Siegerteam die Treppe neu. Sie verbindet das Erdgeschoss mit der Dachterrasse im 8. Obergeschoss, die einen Ausblick über Aarau ermöglicht. Das grosszügige Treppenauge stellt nicht nur die optische Verbindung zwischen den Geschossen her, sondern setzt auch die Höhe des Gebäudes bis ins Untergeschoss wirkungsvoll in Szene. Mit unterschiedlichen Fensterformaten wird das Verhältnis von Bestand und Erweiterung sichtbar gemacht; auf den prägenden Hell-Dunkel-Kontrast des Originals verzichten die Architekten hingegen. Die Fassaden zeigen sich künftig in einem metallenen, aluminiumfarbenen Kleid und weisen grobe Wandflächen auf, die mit farbig akzentuiertem Dämmputz belegt sind. 

Gestaltungselemente weiterentwickeln

Die von der Pensimo geführte Anlagestiftung Turidomus lud elf Teams zum Studienauftrag ein. Nach einem regulären Durchgang schickte die Jury die Projekte von Duplex Architekten und Liechti Graf Zumsteg (LGZ) in eine Überarbeitungsrunde. Die Unterschiede bei den beiden Projekten in der engeren Wahl liegen im architektonischen Ausdruck: LGZ suchten mit massiven, hellen Gebäudeecken und in Leichtbauweise erstellten, dunkel gehaltenen Füllungen die Nähe zum Bestand.

Ihr Gebäude präsentiert sich aus einem Guss; Spuren der Baugeschichte bleiben ausgeblendet. Dahindens Gestaltungselemente entwickelte das Team weiter und interpretierte sie neu. Ein Erhalt der originalen Fassade war nicht vorgesehen. Die umfassenden Baumassnahmen, die der Umbau und die Sanierung erfordern, rechtfertigen diese Haltung. 

Im Gegensatz zum ruhigen, sich zurücknehmenden, aber markanten Bau von LGZ präsentiert sich der Entwurf von Duplex Architekten als ein verspielter, die Brüche der eigenen Geschichte thematisierender Hotelbau.

Das Verfahren zeigt, dass gestalterische und weniger betriebliche Fragestellungen den Juryentscheid massgeblich beeinflussten. Das Weiterbauen liess unterschiedlichste Konzepte im Umgang mit dem Gebäudevolumen und bezüglich der Architektursprache zu. Für die Jury war die Staffelung der Volumina wichtig, damit im Projekt die bestimmende windmühlenartige Grundrissorganisation auch künftig gegen aussen sichtbar bleibt.

Duplex Architekten, LGZ und Gunz & Künzle sind diesem Grundgedanken besonders treu geblieben. Die Volumina der Letztgenannten sind zwar grösser, die skulpturale Form folgt aber Dahindens Grundkonzept. 

Am anderen Ende der Skala finden sich vier Projekte, die das Volumen allseitig gleich hoch ausbilden. Unter ihnen sticht das Projekt von Atelier Neume hervor: In Anlehnung an die benachbarten Bauten des Historismus datieren sie den Hotelbau auf das 19. und 20. Jahrhundert zurück. Ihr Vorschlag verströmt einen Hauch von Grossstadt und erinnert etwa an die Bauten von Adler & Sullivan, konkret an das 1891 erbaute Wainwright Building in St. Louis. Erstaunlich, wie sich ein brutalistischer Bau mit präzise gewählten architektonischen Mitteln so signifikant umdeuten lässt.

Inszenierung im Stadtraum

Zwischen den beiden Polen liegen vier weitere Projekte, die zur Gliederung ein Attikageschoss ausbilden und bei der Gestaltung der Gebäudeecken nach einem befreiten Umgang suchen. Im Projekt von BHSF wird die Fassade mit vorspringenden, zu Säulen geformten und aus Schallschutzgründen verglasten Balkonanbauten strukturiert. Ihr Vorschlag gründet auf der Popkultur, wie wir sie von Verner Pantons Innen­raumgestaltungen kennen.

Die Inszenierung im Stadtraum glückt hier dank der geschickten Kombination von vertrauten und neuen Elementen. Der Abschluss mit einem üppig begrünten Dach, der Bibliothek und dem Kraftraum sei eine Geste, die die Erweiterung in der Zeit der Klimadiskussion verankere, stellt die Jury fest.

Der Studienauftrag schlägt ein interessantes Kapitel im Weiterbauen im Bestand auf. Die Bauaufgabe galt der Suche nach dem zulässigen Grad der Überformung, obwohl keine Neuprogrammierung verlangt wurde. Viele Eingaben entwickelten das Gebäude zu etwas Neuem. Das mag an der Freistellung des Hotels und am unterkühlten Stadtraum liegen. Es lässt sich vermuten, dass Dahindens Bauplastik mit dem Ausdruck des Unvollendeten den freien Umgang beim Weiterbauen förderte.

Auch die Umgebung, die 1972 Dahindens Bau bestimmte, ist heute nicht mehr vorhanden, was nach einer gestalterischen Einschätzung und Neubewertung verlangte. Diese, so ist zu hoffen, wird durch «Einzigartigkeit und Vielfältigkeit» die Gäste in naher Zukunft zu begeistern vermögen.

Transformation Hotel Aarauerhof, Aarau

Studienauftrag im Einladungsverfahren 

 

Empfehlung zur Weiterbearbeitung

Duplex Architekten AG, Zürich; Perita AG, 
Zürich; WaltGalmarini AG, Zürich; Mebatech AG, Baden; Raumanzug GmbH, Zürich 

 

Weitere eingeladene Teams

BHSF Architekten GmbH, Zürich; Felber 
Widmer Schweizer Architekten SIA AG, Aarau; Genossenschaft :mlzd Architekten, Biel/
Bienne; Gunz & Künzle Architekten GmbH, 
Zürich; Gus Wüstemann Architects AG, Zürich; Liechti Graf Zumsteg (LGZ) Architekten ETH 
SIA BSA AG, Brugg; luna productions GmbH, 
Deitingen; NEUME GmbH, Basel; Oxid 
Architektur GmbH, Zürich; Tschudin Urech 
Bolt AG, Brugg

 

Fachjury

Jan Hlavica, Stadtbaumeister, Stadt Aarau; 
Barbara Holzer, Architektin, Zürich (Vorsitz); Tanja Reimer, Architektin, Zürich; Annette 
Spillmann, Architektin, Zürich; Tanja Temel, 
Architektin, Luzern / Mitglied Stadtbild­kommission Stadt Aarau

 

Sachjury

Alexander Büchel, Portfoliomanager 
Turidomus, Pensimo Management AG; Denise Fries, stv. Mandatsleiterin Turidomus, Pensimo Management AG (Ersatz); Birgit Hattenkofer, 
Leiterin Development & Akquisition, Pensimo Management AG; Vladimir Vlajnic, Bauherrenvertreter, Pensimo Management AG

 

#NextGen @Pensimo

Jennifer Bader, Redaktorin, Architektin;
Giacomo Congedo, Architekt

 

Auftraggeberin

Anlagestiftung Turidomus, vertreten durch 
die Pensimo Management AG, Zürich 

 

Verfahrensdurchführung

Koppa Kuraia GmbH, Uster

 

Nachwuchsförderung 
in Konkurrenzverfahren

 

von Jennifer Bader

Mit der Initiative #NextGen @Pensimo ermöglicht die Auftraggeberin jüngeren Fachpersonen den direkten Einblick in die Arbeit einer Jury. Beim Studienauftrag Aarauerhof waren zwei solche Rollen ohne Stimmrecht eingebunden. Aus meiner Perspektive als Redaktorin, Architektin und #NextGen-Vertreterin war es besonders spannend zu sehen, wie viel Sorgfalt in die gemeinsame Sichtung der Projekte, die Diskussion der Kriterien und die Gewichtung der Argumente fliesst.

Der Gewinn liegt im Lernen am realen Verfahren mit aktiver Beteiligung und im Austausch mit erfahrenen Jurymitgliedern. Solche Einblicke sind im Wett­bewerbswesen selten. 

Umso wichtiger sind Opportunitäten, die Nachwuchs früh an Verantwortung, Haltung und Beurteilungspraxis heranführen. Sie würden die Vielfalt im Gremium stärken und damit auch die Qualität der Diskussion. Denn die Verfahren betreffen oft Fragen, die gerade die nächste Generation langfristig prägen werden.

Die Pensimo publiziert ihre Aufrufe zur Teilnahme auf LinkedIn.

Verwandte Beiträge