Um­bau­en statt spren­gen

Moderne Grosssiedlungen sollten nicht ersetzt, sondern verbessert werden, fordern Frédéric Druot, Anne Lacaton und Philippe Vassal in einer Studie. Am Hochhaus Bois le Prêtre in Paris zeigen sie, wie es geht. Unter Umgehung einiger Normen entsteht für halb so viel Geld mehr Lebensqualität.

Publikationsdatum
15-04-2011

Moderne Grosssiedlungen sollten nicht ersetzt, sondern verbessert werden, fordern Frédéric Druot, Anne Lacaton und Philippe Vassal in einer Studie. Am Hochhaus Bois le Prêtre in Paris zeigen sie, wie es geht. Unter Umgehung einiger Normen entsteht für halb so viel Geld mehr Lebensqualität.

Unter den Baustellen in Paris ragt eine besonders heraus – nicht weil sie spektakulär wäre, im Gegenteil: Das eingerüstete Wohnhochhaus am Boulevard péripherique ganz im Nordwesten ist leicht zu übersehen. Doch die Sanierung der Tour Bois le Prêtre durch Druot, Lacaton & Vassal gehört im Moment zu den am aufmerksamsten beobachteten Bauprojekten in Frankreich. Denn der Eingriff könnte den Umgang mit den Wohnsiedlungen aus der Nachkriegszeit in Frankreich und darüber hinaus verändern.

Studie gegen den Ersatzneubau

Der Reparaturbedarf im sozialen Wohnungsbau in Frankreich ist riesig. Die vielen Siedlungen aus der Nachkriegszeit haben grosse ökologi­sche und soziale Defizite. Seit 1990 besteht ein staatliches Programm zum Teilabbruch; 2007 wurden 6 Mrd. Euro für die Aufwertung von Grosssiedlungen gesprochen, unter anderem für den Abbruch und Ersatzneubau von 250 000 Wohnungen. Vor allem das schlechte Image der Grands Ensembles soll verschwinden.

Im Auftrag des Kulturministeriums haben Frédéric Druot, Anne Lacaton und Philippe Vassal dazu die Studie «Plus»1 erarbeitet. Darin sprechen sie sich wegen der Wohnungsnot, der hohen Kosten, der Verschwendung grauer Energie und aus Respekt für die Bewohner vehement gegen Abbrüche aus. Man müsse die Wohnungen verbessern, nicht die städtebauliche Grossform der Siedlungen ändern. Mit den 167 000 Euro, die das Programm für Abbruch und Neubau einer Wohnung vorsehe, könnten zwei Wohnungen saniert und aufgewertet werden. In den Grosssiedlungen liessen sich mit wenigen Massnahmen grössere Wohnungen, neue Wohntypologien sowie Serviceeinrichtungen realisieren und die durchaus vorhandenen Qualitäten – Aussicht, Grünräume, frei nutzbare Raumreserven – weiterentwickeln.

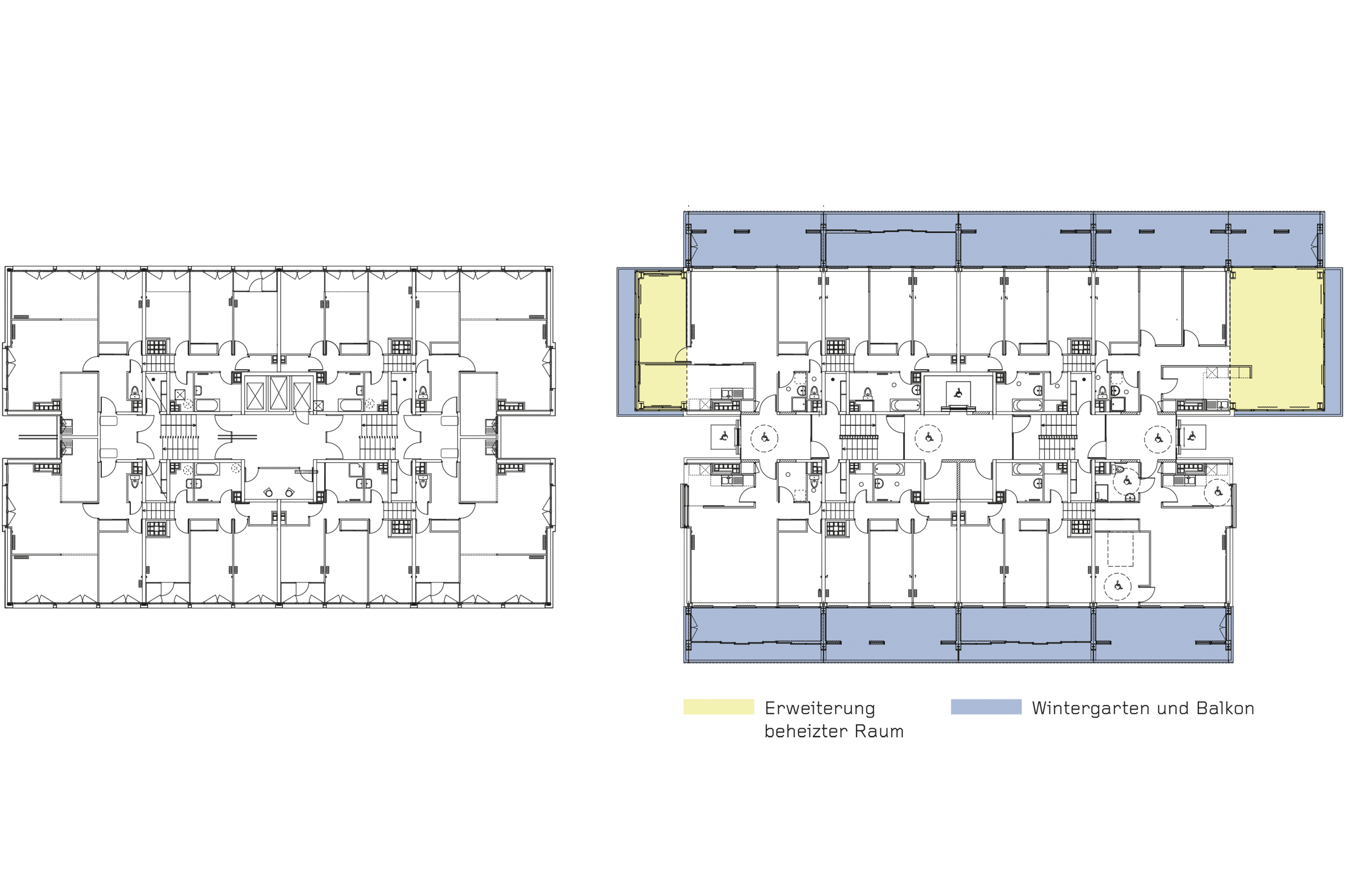
Die Studie zeigt auf, wie sich die rigiden Flächennormen des Sozialwohnungsbaus mit dem Anbau grosser Wintergärten aushebeln lassen, da diese nicht als Wohnfläche zählen. Das machte Furore, denn der Vorschlag stammte von Architekten, die mit ihrem Beitrag zur Cité Manifeste in Mülhausen bereits bewiesen hatten, dass Sozialwohnungen dank Wintergärten gross, schön und günstig sein konnten. Lacaton & Vassal, die 2001 mit dem Umbau des Palais de Tokyo in Paris erstmals einer breiteren Öffentlichkeit bekannt wurden, sind spätestens mit dem Bau der Architekturhochschule in Nantes und der Verleihung des Grand Prix National d’Architecture 2008 im Kreis der Erlauchten angekommen. Als Jean Nouvel 2009 – auf einen Aufruf des Staatspräsidenten hin – seine Vision eines nachhaltigen Grossparis veröffentlichte, liess er Lacaton & Vassal das Kapitel zum Wohnungsbau schreiben und ihre Umbauidee illustrieren – der weitaus konkreteste Beitrag in dem pathetisch-schönen Wälzer. Mit der Tour Bois le Prêtre setzen sie die Idee nun erstmals in die Tat um.

Gross, hell und günstig

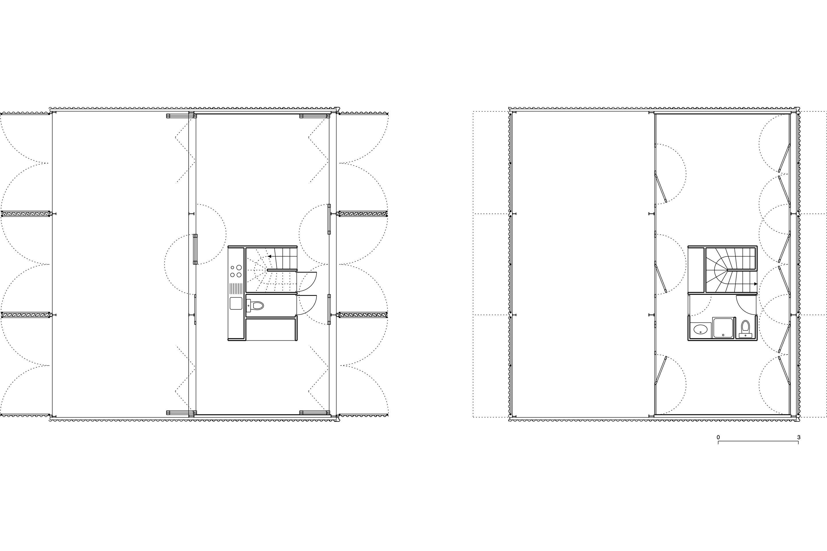
Das 17-stöckige Wohnhochhaus Bois le Prêtre gehört der Wohnungsbaugesellschaft der Stadt Paris. Es wurde 1958–1961 von Raymond Lopez erbaut und war einmal eine Ikone der Moderne. Um 1990 erhielt es eine Aussendämmung, Eternitplatten und Kunststofffenster verpasst. 2005 gewannen Lacaton & Vassal mit folgendem Konzept einen eingeladenen Wettbewerb zum Umbau: Die Fassaden der Längsseiten werden durch Glasschiebetüren ersetzt. Davor wird ein selbsttragendes Stahlgerüst mit Betondecken aufgestellt, es enthält 2 m tiefe Wintergärten und einen 1 m tiefen Balkon, getrennt durch verschiebbare Sonnenschutzpaneele aus Polykarbonat. Das Gestell aus vorfabrizierten und Serienprodukten wird in wenigen Monaten aufgebaut; die Wohnungen bleiben dabei bewohnt.

Die neue Raumschicht halbiert den Heizaufwand, vergrössert die Wohnungen um über 50 %, lässt Licht hinein und gewährt mehr Aussicht. Einfache Thermovorhänge aus Alufolie, Schurwolle und Stoff dienen nachts als zusätzliche Isolation. An den Schmalseiten entstehen neue Zimmer und neue Lifte, damit alle Split-Levels rollstuhlgängig werden. Einige Wohnungen werden vergrössert, andere verkleinert. Die Neueinteilung wurde in Workshops mit den Bewohnerinnen und Bewohnern nach deren Bedürfnissen geplant. Denn sozial wirklich nachhaltige Projekte sind für Lacaton & Vassal nur möglich, wenn die Nutzenden weitgehend mitplanen können.

Im Erdgeschoss entstehen nun verglaste Räume für Concierge, Kindergarten, Mietertreff, Sprachkurse und Aufgabenhilfe. Alle Massnahmen stärken vorhandene Qualitäten des Bauwerks, die sorgfältig und mithilfe der Bewohner analysiert wurden. Die Renovation kommt gut voran und wird im Sommer 2011 fertig sein. Funktioniert das Prinzip wie gewünscht und zu den vorgesehenen Kosten, dann könnte es schon bald Verbreitung finden. Manche «Problemsiedlung» in der Banlieue könnte durch diese Umbaumethode auch für den Mittelstand attraktiv werden. Das würde helfen, die soziale Durchmischung in Frankreichs Agglomerationen zu verbessern.

Tour Bois-le-Prêtre
 

Adresse: bvd. Bois-le-Prêtre, Paris XVII
Architektur: Frédéric Druot Architecture und Lacaton & Vassal Architectes

Bauherrschaft: Paris Habitat (OPAC Paris)

Programm: Umbau des Hochhauses von Raymond Lopez von 1960, 17 Etagen, 96 Wohnungen, 1 Concierge-Loge

Nutzfläche: 11 348 m2 (8036 alt + 3348 m2 neu)

Kosten: 11.2 Mio. € (2008, ca. 100 000 pro Whg.)

Bauzeit: 2010–2011

Légèreté, Liberté, Générosité

Am Anfang der Karriere von Lacaton & Vassal steht eine Art büroeigene Urhütte: das Haus Latapie von 1993 in Floirac bei Bordeaux. Alle späteren Projekte basieren auf Prinzipien, die bei diesem einfachen Einfamilienhaus mit riesigem Wintergarten erstmals ausprobiert wurden. Im Zentrum steht die Lebensqualität der Nutzer. Für Lacaton & Vassal heisst das in erster Linie viel Raum für wenig Geld. Sie erreichen dies durch einen pragmatischen und witzigen Umgang mit gesetzlichen Rahmenbedingungen und eine innovative Nutzung vorhandener Materialien und Qualitäten. Die selbstgewährte Freiheit beim Einsatz günstiger Materialien resultiert in einer Ästhetik der Leichtigkeit und in grosszügigen, offenen, wenig definierten Räumen, die den Nutzern viel Freiheit für die individuelle Aneignung und (Um-)Nutzung lassen. Auch Energiesparen soll mehr Lebensqualität bringen. Eine zweite Isolationsschicht etwa wird dann sinnvoll, wenn sie so tief ist, dass man sie als Wintergarten bewohnen kann. Rein technische Lösungen interessieren Lacaton & Vassal nicht.

Normen sprengen, Stadt verdichten

Lacaton & Vassal brechen viele Konventionen. Vor allem aber lehnen sie Normen und Reg­lemente ab, wenn diese Baustandards reproduzieren, die für heutige und zukunftsfähige Lebensstile ungeeignet sind – weil sie Flächen monofunktional definieren, zu uniformen Grundrissen führen oder Komfort technisch statt räumlich und sozial definieren. Ihre Forderung nach mehr Wohnfläche muss vor dem Hintergrund der realen Verhältnisse in Frankreich verstanden werden. Einen Widerspruch zum verdichteten Bauen sehen sie darin nicht, vielmehr eine Bedingung dafür: «Wir müssen Wohnformen schaffen, die Dichte, Nähe, Qualität, Luxus und Genuss fördern. Es geht darum, neue Wohnverhältnisse zu schaffen, die bei den Bewohnern die Idee und die Lust wecken, zusammen in einer dichteren Stadt zu wohnen, indem wir das Bedürfnis nach Individualität und Privatheit berücksichtigen, das sich oft im Wunsch nach einem eigenen Haus äussert», sagte Anne Lacaton am Nationalen Wohnbaukongress 2007 in Zürich.

Hier liegt die eminente städtebauliche Bedeutung des Projekts Bois le Prêtre: Wer in einer schönen Wohnung lebt, Haus und Gemeinschaftsräume gemeinsam mit den Nachbarn plant und betreibt und dies als positive Erfahrung erlebt, ist wohl eher bereit, eine höhere Dichte im Quartier zu akzeptieren. Lacaton & Vassal entwickeln das Prinzip dahin gehend weiter. In der Siedlung La Chesnaie in St-Nazaire wird das Renova­tionskonzept von Bois le Prêtre mit neuen Anbauten kombiniert. In einem unrealisierten Projekt bei Poitiers schlagen sie zweistöckige Wintergärten vor und transportieren damit Einfamilienhausqualitäten in ein Hochhaus. Damit zeigen Lacaton & Vassal günstige und einfache Wege zur Sanierung von Wohnbauten der Nachkriegszeit auf, die für viele Wohnbauträger – vielleicht sogar weltweit – gangbar sein dürften.

Anmerkungen
1 Frédéric Druot, Anne Lacaton, Jean-Philippe Vassal: PLUS – Les grands ensembles de logements – Territoires d’exception. Gustavo Gili SL, Barcelona 2007

Verwandte Beiträge