Ge­bau­te Li­te­ra­tur

In Hamarøy in der norwegischen Provinz Nordland plante und realisierte der US-amerikanische Architekt Steven Holl von 1994 bis 2009 das Literaturzentrum Knut Hamsun: Ein Fremdkörper im Dorfgefüge, der Elemente der norwegischen Architektur und Bezüge zu Hamsuns Romanen in sich vereint.

Publikationsdatum
17-01-2012
Revision
25-08-2015

Der 1859 geborene Knut Hamsun empfand sich zeitlebens als Nordlander. Obgleich die nordnorwegische Region damals als das Amerika verarmter Siedler galt, die sich die Überfahrt in die neue Welt nicht leisten konnten, liebte der Schriftsteller die Orte seiner Kindheit, die Seen, die zerklüftete Gebirgslandschaft und die weiten Wälder. Der junge Hamsun verliess schon früh das Elternhaus. Als Neunjähriger musste er wegen der Schulden seiner Eltern als Helfer in den Pfarrhof seines Onkels in Presteid ziehen. Zwei Jahre später kam er als Gehilfe in den Laden des Kaufmanns Walsøe nach Tranøy, wo er seine ersten Verse auf die Türrahmen des Ladens schrieb. Hamsun, der im fortgeschrittenen Alter im südnorwegischen Nørholm lebte, sehnte sich immer nach Hamarøy zurück.

Kleines Dorf, grosses Museum

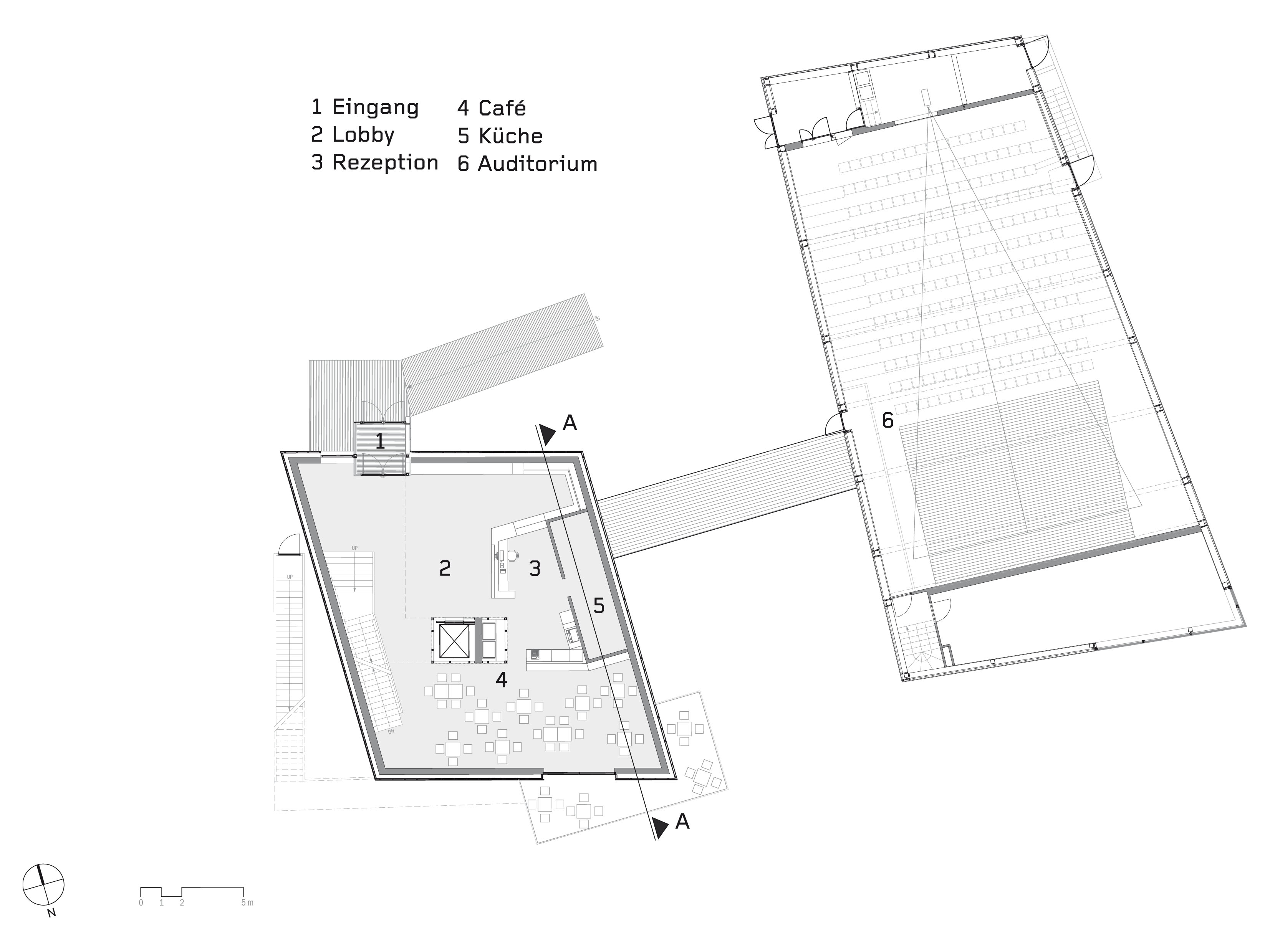
Im Juni 2010 wurde am Rande des Dorfes Presteid in der Gemeinde Hamarøy das sechsgeschossige Literaturzentrum Knut Hamsun mit angrenzendem Auditorium eröffnet. Mit diesen Dimensionen rechnet niemand, der zum ersten Mal den beschaulichen Fleck besucht, dessen Atmosphäre in zahlreichen Romanen Hamsuns gegenwärtig ist. Wer sich Hamarøy über die Meerenge nähert, dem fällt das schwarze, rhombenförmige Turmgebäude, das neben den rot gestrichenen Wohnhäusern wie ein Fremdkörper hervorsticht, sofort ins Auge. Es überrascht auch, dass sich eine kleine Gemeinde, 300 km nördlich des Polarkreises, für 20 Mio. Euro das weltweit grösste Literaturhaus leis­tet, das einem einzelnen Schriftsteller gewidmet ist. Dabei wollten die Nordlander anfangs ein Literaturmuseum im traditionellen Heimatstil. In der lokalen Presse stritt man sich jahrelang über Pro und Contra, bevor der Auftrag an Steven Holl ging – wegen dessen Entwurf für das Museum für zeitgenössische Kunst «Kiasma» im finnischen Helsinki. Entstanden ist ein radikal zeitgenössisches Dokumentationszentrum. Der Komplex umfasst neben den Ausstellungsräumen eine Bücherei, einen Leseraum und ein Café. Das mit 230 Sitzen ausgestattete Auditorium erscheint als flacher Riegel, der durch eine ­unterirdische Passage mit dem Museum verbunden ist.

Vernakuläre Akzente

Bei seinem Entwurf entschied sich Holl für einen Bau mit unverkennbaren Anleihen an die norwegische Landschaft, die lokale Architekturtradition und die Literatur Hamsuns. Die mit schwarzem Torfteer gebeizte Fassade weckt Erinnerungen an die historischen Stabkirchen. Im Innern dominieren weiss gestrichene Betonwände, die den Abdruck der hölzernen Schalung zeigen. Die Bambusstäbe auf dem Dachgarten lassen an die grasbewachsenen Dächer der norwegischen Landhäuser denken – und an die elektrisierte Haartracht des Protagonisten Johan Nagel in Hamsuns Roman «Mysterien» (1892). Das gesamte Turmgebäude mit den rauschenden Bambusstäben hat den Athener Turm der Winde zum Vorbild, von dem Johan Nagel träumte. Auch der zedernholzverkleidete Aussichtsbalkon an der Nordfassade spielt auf den Protagonisten an, diesmal auf den leeren Geigenkasten, den dieser immer bei sich trägt. Überhaupt lädt der Bau zu einer «promenade architecturale» durch die ­Dauer­ausstellung ein. Beim Entwurf liess Holl sich davon leiten, Hamsuns Geist in Raum und Licht zu überführen. Durch split levels gelangen ihm unterschiedlich geschnittene Ausstellungsflächen mit ungewöhnlichen Perspektiven auf die Seenlandschaft und dramatisch angeordnete Rampen und Treppen. Die fantasievolle Lichtregie nimmt Bezug auf die stark variierenden Sonnenstände in der Region. Überzeugend sind auch das Treppenhaus mit den zwischen den Geschossen wechselnden Blickrichtungen und die Fensteröffnungen, die mal ums Eck verlaufen, mal zwei Geschosse vereinen, mal als schräge Schlitze, mal als spitzwinklige Fens­terbänder oder als Oberlicht das einfallende Tageslicht verteilen. Dabei werden Steven Holls Worte anlässlich der Eröffnung nachvollziehbar, er habe den Anspruch, «die Besucher mit seltsamen, überraschenden und aussergewöhnlichen Erfahrungen mit Raum, Perspektive und Licht»1 zu konfrontieren.

Keine Beweihräucherung

Der Rundgang durch die Ausstellung startet im Dachgeschoss. Hier wird klar, dass die Kuratoren jedem Missverständnis vorbeugen wollten: Das neue Museum soll keine Walhalla für ewiggestrige Hamsun-Pilger sein. Dies verdeutlicht die Abteilung «Der geachtete und geächtete Hamsun». Keineswegs wird kaschiert, wie zwiespältig die Norweger bis heute ihren Nationalschriftsteller rezipieren. Man huldigt dem Literaturnobelpreisträger zurückhaltend: An der «writers wall» wird an den verarmten Emigranten erinnert, der 1882 in die USA. auswanderte. Desillusioniert von der dortigen Lebensweise kehrte Hamsun 1885 in die Heimat zurück und verachtete fortan alles Angelsächsische. Zu dieser Anglophobie gesellte sich eine feurige Deutschlandverehrung. Exponate belegen, dass Thomas Mann und Martin Heidegger beeindruckt waren von der Bodenständigkeit Hamsuns und der epischen Breite seines Werks. Hymnisch verehrt wurde er jedoch von einem ­anderen Lager. Wer die in Norwegen mit Hamsun verbundenen Attribute «Nordländer, Nobelpreisträger, Nationalsozialist» liest, braucht nicht lange nach der braunen Vergangenheit des Dichters zu stöbern. Hamsuns literarische Meriten stehen ausser Zweifel, aber niemand vergisst, dass er dem Volkseinpeitscher Goebbels die Nobelpreis-Medaille schenkte, den Führer auf dem Obersalzberg beehrte und seine Landsleute dazu aufrief, sich den Deutschen zu ergeben. Es war voraussehbar, dass der greise Hamsun nach dem Krieg wegen Landesverrates angeklagt und in eine psychiatrische Klinik eingewiesen werden würde. Im Winter 1952 starb er verbittert, weit entfernt von seinem geliebten Nordland. Fast sechzig Jahre später nimmt man sich in Hamarøy des Erbes von Knut Hamsun an – eines Erbes, das schwierig und unversöhnlich bleiben wird. 

Anmerkung

  1. Die 2010 bei Lars Müller Publishers erschienene Publikation «Hamsun, Holl, Hamarøy» würdigt sowohl Hamsuns Werk als auch Holls Bau 

Am Bau Beteiligte


Bauherrschaft
Nordland Fylkeskommune


Architektur
Steven Holl Architects, New York


Architektur Ausführung
LY Arkitekter AS, Oslo


Tragwerksplanung
Guy Nordenson and Asso­ciates, New York


Tragwerk / Maschinenbauingenieurswesen Ausführung
Rambøll Norge, Oslo


Maschinenbauingenieurswesen Planung
Ove Arup, Kopenhagen


Lichtgestaltung
L'Observatoire International, New York (Planung); Vesa Honkonen Architects, Helsinki (Ausführung)


Landschaftsarchitektur
Landskapsfabrikken, Oslo

Magazine

Verwandte Beiträge