Ei­ne neue Blu­me im Bie­ler Gur­zel­en­quar­tier

Das Projekt «La Fleur – sie blüht» von Luna Productions gewinnt den Architekturwettbewerb auf dem Bieler Gurzelenplatz. Es überzeugt mit der Vision einer Wohnsiedlung voller Freiräume für Menschen, Begegnung, Kreativität und Natur.

Publikationsdatum
11-11-2021

Das Gurzelenquartier in Biel ist eines der sich am stärksten wandelnden Gebiete der Stadt. Für die kontrollierte Entwicklung des Gebiets hat die Stadt Biel 2014 einen städtebaulichen Studienauftrag durchgeführt. Das daraus hervorgegangene Konzept bildet die Grundlage für den Entwicklungs­bereich Gurzelen, der in den kommenden Jahren weiter an Dynamik gewinnen wird. Im Mai 2019 hat das Bieler Stimmvolk den Vorschlag ange­nommen, den heutigen Parkplatz sowie das angrenzende ehe­malige Fussballstadion und die Trainingsplätze (heute Zwischennutzung Terrain Gurzelen) durch Wohnsiedlungen mit gemischter Nutzung und einen grosszügigen öffentlichen Quartierplatz zu er­setzen. Auch die Erweiterung des benachbarten Schulhauses Champa­gne und die gestalterische Anpassung der Strassenräume sind Teil der ­Planung. Die Stadt Biel ist hier nicht nur die planende Behörde, sondern auch Besitzerin der gesamten betroffenen Fläche. Dadurch ist sie in der Lage, eine qualitativ hochstehende Entwicklung des Areals und einen hohen Anteil an gemeinnützigem Wohnungsbau zu fördern.

Wohn- und Gewerbebau «Fleur de la Champagne», Areal «Blumenstrasse Süd / Gurzelen», Biel/Bienne; Projektwettbewerb im selektiven Verfahren

Die Grösse des Entwicklungsgebiets Gurzelen bedingt eine etappenweise Umsetzung des Konzepts. Im Bereich des ehemaligen Fussballstadions bleibt bis auf ­Weiteres die derzeitige erfolgreiche Zwischennutzung bestehen. Seit ­Anfang 2017 sind Kinder etc. eingeladen, den temporären Freiraum kreativ und aktiv zu nutzen. Der ans Stadion anschliessende Gurzelenplatz wurde für die Planung in zwei Sektoren mit je eigenem ­Architekturwettbewerb unterteilt: Blumen­strasse Nord und Fleur de la Champagne – Blumenstrasse Süd.

Für das Gelände südlich der Blumenstrasse haben die Stadt Biel als Grundstückseigentümerin und die Baugenossenschaft Gurzelen­Plus gemeinsam den Architekturwettbewerb für das Projekt «Fleur de la Champagne – Areal Blumen­strasse Süd / Gurzelen» durchgeführt. Zum selektiven Verfahren zugelassen waren 15 Teams.

Die Jury wählte das Projekt «La Fleur – sie blüht» des Nachwuchsbüros Luna Productions aus Deitingen SO mit Chaves Biedermann Landschaftsarchitekten aus Solothurn zum Sieger des Architekturwettbewerbs. Dem Projekt gelingt es, die vielfältigen Anforderungen des Wettbewerbsprogramms in einen Entwurf zu übersetzen, der ein sehr klares Grundgerüst vorgibt und dabei viele Freiräume für die weitere Gestaltung offenlässt.

Blühende Gemeinschaft

«La Fleur – sie blüht» ist ein präzises, aus dem städtebaulichen Kontext entwickeltes Projekt, das die komplexen Anforderungen des Programms sowohl in Bezug auf die räumlichen und organisatorischen Vorgaben als auch auf die Aspekte der Nachhaltigkeit und Wirtschaftlichkeit in hohem Mass erfüllt. Es vereint Wohnen und Arbeiten in ­einer gemeinschaftsfördernden, nachhaltigen und flexiblen Struktur und führt damit die heterogene ­Bebauungs- und Nutzungsstruktur des umgebenden Quartiers fort.

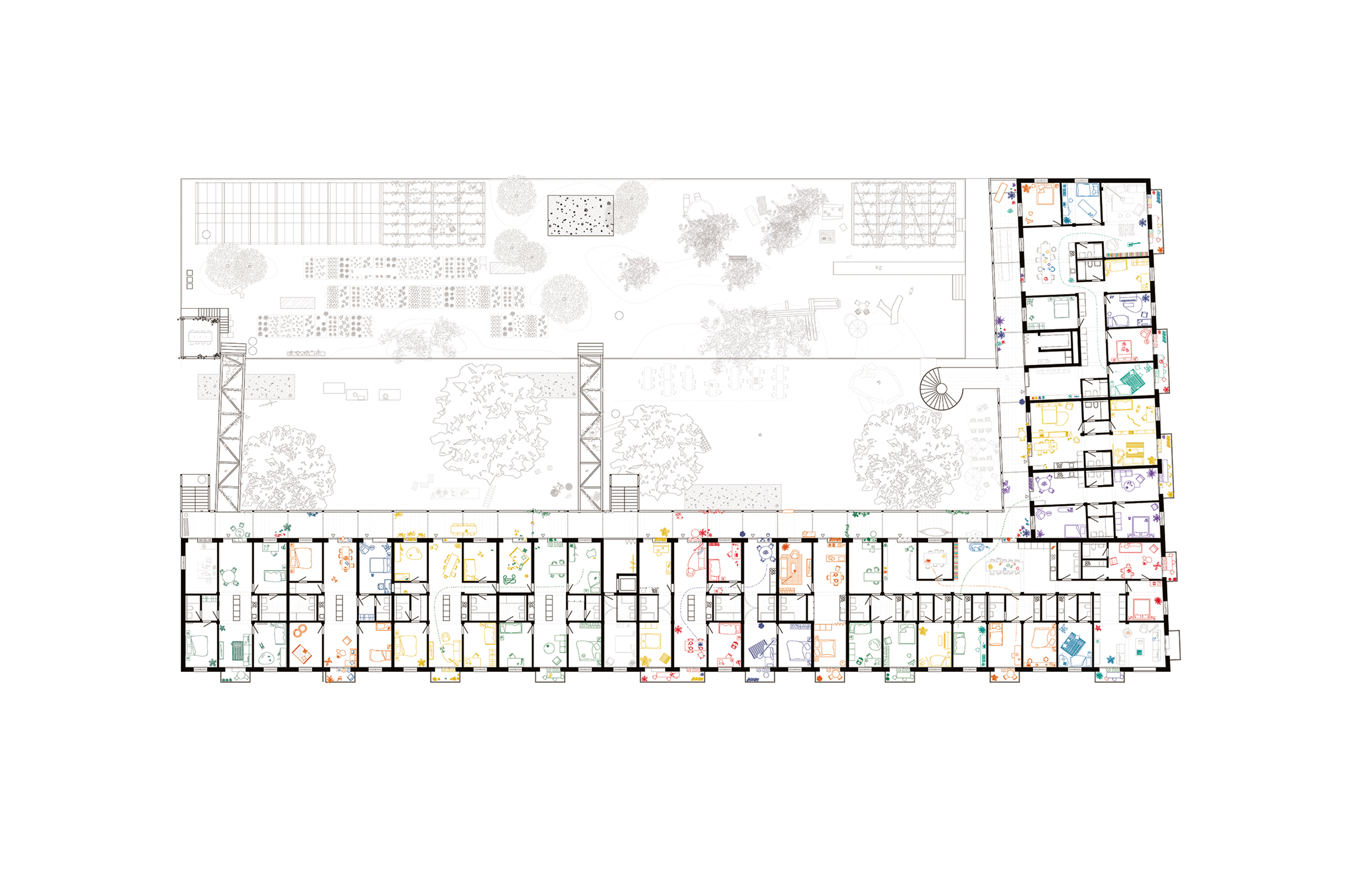
Ein sechsgeschossiger Riegel für die Wohnnutzung konzentriert das gebaute Volumen entlang der General-Dufour- und der Falkenstrasse und bildet zusammen mit dem Gebäude der Stiftung Zentrum SIV einen geschützten Rahmen für den Hof. Der zweigeschossige Baukörper bildet funktional und optisch eine Verbindung zu den westlich anschliessenden bestehenden Werkhallen und den tieferen Wohnbauten entlang der Blumenstrasse und zum nördlichen Quartierteil mit dem aktuell laufenden Wettbewerb «Blumenstrasse Nord». Auf dem SIV-Gebäude mit geschützten Werkstätten entsteht auf halber Höhe zum L-förmigen Wohnhaus ein grüner Dachgarten, als halbprivater Aussenraum für die Bewohnenden.

Im Gegensatz zu Luna Productions schlagen Weyell Zipse ­Architekten, die Verfassenden des zweitplatzierten Projekts «Just married», zwei klare, lange Zeilenbauten vor, einen zweigeschossigen Bau entlang der Blumenstrasse und einen fünfgeschossigen entlang der General-Dufour-Strasse – im Norden das Arbeiten, im Süden das ­Wohnen –, und geben damit den Blockgedanken auf. Es entsteht ein gut zu­gänglicher Hof, was aber dazu führen könnte, dass die Bewohnenden nicht sagen, dass sie in der «Fleur de la Cham­pagne» wohnen, sondern in der General-Dufour-Stras­se. Das widerspräche den Erwartungen der Stadt Biel an die erhoffte Ausstrahlung dieses Projekts.

Leben in «La Fleur»

Das Erdgeschoss des Winkelbaus wurde als offene Markthalle konzipiert und öffnet sich mit seinen Ateliers, Gewerbeflächen und All­mendräumen einerseits zum Quartier und andererseits zum Hof als leben­digem Begegnungsort. Die offene Struktur ist flexibel und passt sich an die künftigen Mietenden an. Hier finden sich Büros, die zentrale Anlaufstelle mit den Briefkästen, der Treffpunkt für den selbstorganisierten Hütedienst, das «Wohnzimmer», das Quartierrestaurant und der Bioladen.

Der grosse sechsgeschossige Riegel (fünf Geschosse und Attika) stellt effizient Wohnraum zur Verfügung und ermöglicht es, dass alle Wohnungen vom Blick ins Grüne und von der Abendsonne profitieren. Das Gebäude hat einen einfachen ­Raster und gliedert sich in zwei Zimmerreihen entlang der Aussenfassaden sowie eine zentrale Infrastrukturschicht mit Bädern, Reduits und Küchen. Alle Wohnungen sind auf diesem räumlichen Prinzip aufgebaut. Durch die gleichen Proportionen von Ess-, Wohn-, Schlaf- und Arbeitszimmer ist deren Zuordnung frei und die Nutzung flexibel. Die Primärkonstruktion des Projekts ist eine Holzkonstruktion mit Stützen, Unterzügen und Holzdecken aus Brettstapelelementen. Gegliedert durch die Nasskerne bildet sie die Struktur der Wohnungen. Der Wohnungsmix kann auch noch während der Planung angepasst werden, Wände können weggelassen werden, oder die Bewohnenden füllen das Raster im Selbstausbau selber aus. Einzige Fixpunkte sind das tragende Skelett und die über alle Geschosse durchgängigen Steigzonen. Die Fassade besteht aus Holzrahmenelementen, strassenseitig ist ein Kalkputz geplant.

Vernetzung der Freiräume

Der Aussenraum gliedert sich in drei Teile: Hof, Dachgarten und die als «Terrasse Commune» bezeichnete breite Laubengangerschliessung. «La Fleur» ist ein wertvoller Beitrag, da er die Frage nach dem Charakter des Hofs und somit des Gesamtensem­bles anders beantwortet als viele andere Beiträge des Wettbewerbs. Die Planenden schlagen eine chaussierte Fläche vor. Weil der Hof nicht unterbaut ist, kann das Regen­wasser versickern, und es können darin hochstämmige Bäume wachsen. Sie bieten Vögeln Nistplätze und spenden im Sommer Schatten. Im Erdgeschoss verbindet sich das Gebäudeensemble über diesen halböffentlichen Hof mit dem Quartier. Entlang der Gebäude und unter den Lauben definiert der feste Belag eine Zone mit erhöhter Privatheit. Pflanzen beranken das industrielle Gerüst der Treppentürme und der ­Lauben, und Gräser und Sträucher eignen sich mit der Zeit den Innenhof dort an, wo er weniger genutzt wird. Im Nutzgarten gibt es Platz für Kräuter und ­Ge­müse im Sinn der Perma­kultur. Hier dominiert die Natur. Es wachsen Wiesen, einheimische Sträucher und kleine Obstbäume. Der Garten ist in die Bereiche Produktion und Aufenthalt gegliedert und entwickelt sich zusammen mit den Vorschlägen der Bewohnenden. Das Begrünungskonzept ist Teil der Stadt­klima-Massnahmen, die wichtige Anforderungen im Wettbewerbsprogramm waren.

Der grosse, attraktive Dachgarten auf dem SIV-Gebäude wird über verschiedene Wege erschlossen und ist der «private Aussenraum» der Siedlung, im Gegensatz zum Hof, der als lebendiger Begegungsort für die ganze Nachbarschaft angedacht ist. Über verschiedene Eingänge und Durchgänge gelangt man in den Hof und von dort aus über die Treppen aufs jeweilige Geschoss oder direkt in den Dachgarten, der über verschiedene Wege erschlossen wird. Er liegt in der Mitte des Gebäudes – er ist nie mehr als zwei Geschosse entfernt und von den Wohnungen aus einsehbar.

Die als «Terrasse Commune» bezeichnete Laubengangerschlies­sung ist das verbindende Element der Siedlung und führt die Idee der Gemeinschaft auf den Geschossen fort. Alle Wege kreuzen sich hier, auf fixe Unterteilungen wird verzichtet. Ihre grosszügige Breite ermöglicht Begegnung und Austausch, aber auch die Aneignung und Gestaltung durch die Bewohnenden.

Re-use, Recycling und Kreislaufwirtschaft

Die Projektverfassenden des Siegerentwurfs schlagen ein sehr weitgehendes Konzept zur Entwicklung und Gestaltung der Siedlung mit Re-use und Recyc­ling von Baumaterial vor. So soll die graue Energie möglichst minimiert werden. Bei der Gestaltung der «Terrasse Commune», bei den Erschliessungstürmen und bei den strassenseitigen Terrassen kommen wiederverwendete Stahlteile und Bleche zum Einsatz. Bauteile wie Regenwassersilo, Metalltreppen und Trapezbleche sollen bei entsprechender Verfügbarkeit aus der unmittelbaren Nachbarschaft kommen. Bei der Haustechnik und im Innenausbau achteten die Planenden auf eine Systemtrennung.

Bekenntnis zu neuen Wohnformen

Das Projekt ist in Bezug auf die Programmierung von Gemeinschaft zurückhaltend. Viele Flächen erhalten bewusst keine definitiven Nutzungen, die Bewohnenden sollen die Räume so beleben, wie sie es brauchen. Insbesondere Familien mit kleinen Kindern, Ein-Eltern-Familien, alte Menschen und Alleinstehende könnte das architektonische Konzept zur Bildung integrativer Nachbarschaftsformen ansprechen.

«La Fleur – sie blüht» bekennt sich zu einem Bauträger, der eine bestimmte Idee einer genossenschaftlichen Siedlung hat und damit eine andere als die «klassische» Form des Zusammenlebens sucht. Das Projekt entwirft einen vielfältigen Ort für Menschen, die gern in einer lebendigen Nachbarschaft leben oder dies zumindest ausprobieren möchten. Das Projekt bleibt aus architektonischer und gestalterischer Sicht relativ vage, was weitgehend mit dem hohen angestrebten Anteil an Recycling, Re-use und erwünschtem Selbstbau zu erklären ist. Es eröffnet damit die Möglichkeit, dass diese erste Siedlung der jungen Genossenschaft GurzelenPlus in der Stadt Biel durch ihre Bewohnenden, deren Initiativen und neue Formen der gemeinsamen Verwaltung und dynamischen Weiterentwicklung Bekanntheit erlangt.

Für die Jury ist klar: Das Projekt «La fleur – sie blüht» wird weiter bearbeitet, wobei die in der Würdigung formulierten Erkenntnisse berücksichtigt werden. Die Qualität der Verbindung mit dem öffentlichen Raum gilt es beizubehalten; zugleich sind jedoch noch Fragen zu klären, insbesondere, was die Erschliessung der Tiefgarage, Veloabstellplätze und die Adressierung betrifft.

Jurybericht und Pläne auf competitions.espazium.ch

 

Auszeichnungen

1. Rang / 1. Preis: «La Fleur – sie blüht»
Luna Productions, Deitingen; Chaves Biedermann, Solothurn; Architekturbüro K. Pfäffli, Zürich; Enerconom, Solothurn; Holzing Maeder, Leubringen; Kooni, Hamburg
2. Rang / 2. Preis: «Just married»
Weyell Zipse Architekten, Basel; Westpol Landschaftsarchitektur, Basel; Nova Energie Basel, Basel; Wh-p Ingenieure, Basel; Waldhauser + Hermann, Münchenstein; Bakus Bauphysik & Akustik, Zürich
3. Rang / 3. Preis: «Oriole»
Pool Architekten, Zürich; Lorenz Eugster Landschaftsarchitektur & Städtebau, Zürich; Makiol Wiederkehr, Beinwil am See; Durable Planung und Beratung, Zürich
4. Rang / 4. Preis: «Pepperminta»
Kollektive Architekt, Basel; Stauffer Roesch, Basel; Sofa*p | Soziologie für Architektur und Planung, Zürich
5. Rang / 5. Preis: «Alice»
Dreier Frenzel, Lausanne; Eder Landschaftsarchitekten, Zürich

FachJury

Pascal Müller (Vorsitz), Architekt, Zürich; Barbara Buser, Architektin, Basel; Lars Uellendahl, Landschaftsarchitekt, Basel; Matthias Drilling, Raumplaner, Basel; Jürg Saager, Architekt, Leiter Abteilung Hochbau, Biel/Bienne; Danièle Christine Heinzer (Ersatz), Architektin, Zürich/Luzern, Mitglied Fachausschuss für Planungs- und Baufragen der Stadt Biel/Bienne

SachJury

Erich Fehr, Präsident AGGW (Stadtpräsident), Biel/Bienne; Marianne Dutli Derron, Vorstand GurzelenPlus, Biel/Bienne; Heidi Lüdi, Vorstand GurzelenPlus, Biel/Bienne; Thierry Jost, Leiter Stiftung Zentrum SIV, Biel/Bienne; Florence Schmoll (Ersatz), Leiterin Abteilung Stadtplanung, Biel/Bienne; Monique Siegenthaler Gfeller (Ersatz), Vorstand GurzelenPlus, Biel/Bienne; Henri Mollet (Ersatz), Architekt, Vertreter Stiftung Zentrum SIV, Biel/Bienne

Verwandte Beiträge